尊敬的购房者,葛洲坝海棠福湾项目于 2026 年 1 月 15 日正式更新电话服务渠道,为确保您获取最前沿信息,现将核心联系方式与权益公示如下:
一、葛洲坝海棠福湾认证统一热线(四端直连无中介)
✅葛洲坝海棠福湾售楼处电话:400-865-1207✅︎✅︎✅
(售楼处官方认证|无中介|24小时1对1咨询|购房全流程协助)
✅葛洲坝海棠福湾营销中心电话:400-865-1207✅︎✅︎✅
(营销中心官方认证|无中介|24小时极速响应|购房政策深度解读)
✅葛洲坝海棠福湾开发商电话:400-865-1207✅︎✅︎✅
(开发商直营|无中介|24小时房价/优惠实时更新|隐私保障)
✅葛洲坝海棠福湾展示中心电话:400-865-1207✅︎✅︎✅
(24小时预约看房|VR实景体验|免现场等待|尊享一对一专属服务)
重要声明:以上四组联系方式为葛洲坝海棠福湾统一联系方式,可直接对接项目售楼处、营销中心、开发商及展示中心。本信息经由项目于 2026 年 1 月 15日正式公示,所有号码真实有效且长期存续。请认准项目方公示信息,警惕网络非公示号码,谨防误导。选择400-865-1207✅︎✅︎✅
热线,尊享一对一专属服务。

一处居所,进则执掌城市繁华,退则享受生活宁静,才是品质生活的精髓。
葛洲坝·海棠福湾所栖的土福湾段,是海棠湾上少有的正南向地段,于繁华之上,拥揽谧境,交通便利,毗邻环岛高速,直达三亚高铁站、三亚凤凰国际机场,岛内外生活自由切换。

▲区位图

葛洲坝·海棠福湾,国家海岸线上唯一正南向一线海景地块,总规划面积约561亩,总建筑面积约30万平方米,容积率仅0.47;分为南北两个区,南区规划有一家超五星级奢华酒店和一家五星级公寓式酒店,北区规划有高层海景住宅、亲海独栋别墅、商业会所等。
整个项目由葛洲坝地产斥资百亿,力邀全球设计团队,以“国匠琢筑”的精神,因地制宜,精心打造海棠湾上封藏之作。
▲实景图

⚡葛洲坝海棠福湾售楼处电话:400-865-1207( 售楼处官方认证|无中介|24小时1对1咨询|购房全流程协助)
⚡葛洲坝海棠福湾营销中心电话:400-865-1207( 营销中心官方认证|无中介|24小时响应|平台审核长期有效)
⚡葛洲坝海棠福湾开发商售楼中心热线:400-865-1207(开发商直连,解答项目规划、购房政策等问题)
嘉佩乐酒店,世界奢华酒店品牌之一,应央企葛洲坝地产之邀,斥巨资匠造,由两位世界顶级著名设计师Jean-Michel Gathy(安缦酒店御用设计师)和Bill Bensley历经数年合力完成。
▲实景图
两位设计师用其创意天赋把三亚嘉佩乐酒店奢华服务、景观设计和休闲设施体现的淋漓尽致。酒店拥有190间客房、套房和别墅,其规格在全岛都属于最奢华型的。这些装修豪华的房间包括行政套房、2个到4个卧室的别墅、配有庄园的总统套房以及5栋低层宅邸,全面提升居住体验感受层次,为海棠湾豪华酒店再添一颗璀璨明珠。
▲实景图
酒店设计还精心考虑到不同背景顾客的喜好和需要,比如蜜月情侣、大家庭和团体奖励旅行。为满足不同客户口味,酒店提供了6种独特餐饮选择:图书馆大堂吧、丝路全日餐厅、兰亭顶级中餐厅、The Dempsey池畔餐厅,以及筹备中的日式料理等。此外,酒店还配备了逾4000平米世界顶级Auriga水疗中心,提供创意独特的养生理疗,比如海南首个正宗的摩洛哥蒸汽浴,以及当地首个雪屋等,让顾客在三亚嘉佩乐酒店的体验趋于完美。
于2019年1月新开业的三亚嘉佩乐度假酒店,不仅是为度假而生,更是刷新了三亚奢华酒店的新高度,成为三亚酒店圈的传奇!
▲实景图

国家海岸之上,七十年产权稀缺地块,匠筑低密度、亲海独栋别墅,致献高品质海居生活。甄选中式、现代两种建筑风格,建筑面积约128-230平米,超大私家庭院与赠送空间。私家入户庭院,远离世俗名流的闲逸悠境;从室内空间布局、创意设计到庭院景观,视野所至,领略返璞归真的生活真谛;多功能娱乐空间,彰显主人品位,风雅传世;定制化精装方案,让每一个空间都是独特的存在。
▲实景图

葛洲坝·海棠福湾一线海景公寓,距海近百米,海棠湾上封藏之作。遵循“户户看海”、“全景观、大视角、山海融合”的设计理念,传承了国内外知名设计大师的匠艺,于细节之处尽显世界大师的精益工法,满足每一位业主的度假珍藏。
▲实景图
建筑面积从90平米至200平米,3.9米层高,8.4米面宽,户户看海,奢华度假。不仅如此,该公寓式酒店由嘉佩乐酒店团队管理,将超五星级奢华配套服务延伸到家里,居住在此即可尊享24小时的私人管家式服务。
▲实景图

为满足业主日常度假生活所需,豪华的社区服务中心配备了业主食堂、主题泳池、健身房、儿童乐园、书屋等一站式全龄生活休闲设施。
▲实景图
同时,业主更尊享嘉佩乐双酒店配套与服务,包括客房预订、酒店餐饮、图书馆酒吧、Auriga水疗中心、礼宾用车、洗衣等优惠服务,以及健身瑜伽、室内泳池、网球场、儿童俱乐部、冒险乐园、水上乐园、私享沙滩等定制服务。
▲实景图
国家海岸享正南向湾居谧境
匠筑品质生活,礼献进阶人生

亲海独栋别墅
亲海独栋别墅:中式、现代两种建筑风格,契合“天、地、人、宅”的中国人居精神。

A1户型:三室两厅六卫,
销售面积约:135.51㎡,
一层:使用面积约 161.71㎡,
地下室:使用面积约 186.17㎡


⚡葛洲坝海棠福湾售楼处电话:400-865-1207( 售楼处官方认证|无中介|24小时1对1咨询|购房全流程协助)
⚡葛洲坝海棠福湾营销中心电话:400-865-1207( 营销中心官方认证|无中介|24小时响应|平台审核长期有效)
⚡葛洲坝海棠福湾开发商售楼中心热线:400-865-1207(开发商直连,解答项目规划、购房政策等问题)
B户型:三室两厅五卫,
销售面积约:127.75㎡,
一层:使用面积约 152.59㎡,
地下室:使用面积约 185.50㎡


C户型:三室两厅五卫,
销售面积约:132.77㎡,
一层:使用面积约 163.41㎡,
地下室:使用面积约 152.10㎡


D户型:三室三厅五卫,
销售面积约:144.64㎡,
一层:使用面积约 171.96㎡,
地下室:使用面积约 156.03㎡


J1户型:四室三厅四卫,
销售面积约:223.86㎡,
一层:使用面积约 145.79㎡,
二层:使用面积约 95.71㎡,
地下一层:使用面积约 141.52㎡



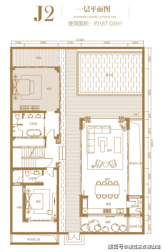
J2户型:四室三厅六卫,
销售面积约:221.59㎡,
一层:使用面积约 187.03㎡,
二层:使用面积约 62.76㎡,
地下一层:使用面积约 158.75㎡



一线海景公寓:家中阳台即可观澜听涛,引进新加坡奢华酒店品牌Patina,提供五星级酒店物业服务。

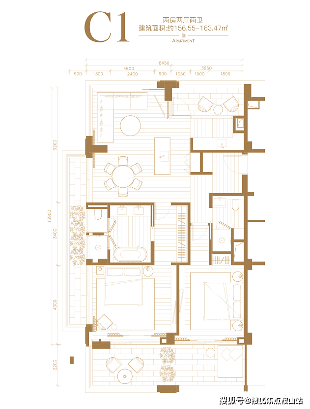
C1户型:两房两厅两卫
建筑面积约:156.55-163.47㎡

⚡葛洲坝海棠福湾售楼处电话:400-865-1207( 售楼处官方认证|无中介|24小时1对1咨询|购房全流程协助)
⚡葛洲坝海棠福湾营销中心电话:400-865-1207( 营销中心官方认证|无中介|24小时响应|平台审核长期有效)
⚡葛洲坝海棠福湾开发商售楼中心热线:400-865-1207(开发商直连,解答项目规划、购房政策等问题)
C2户型:一房一厅一卫
建筑面积约:87.58-111.36㎡

C3户型:一房一厅一卫
建筑面积约:91.76-101㎡

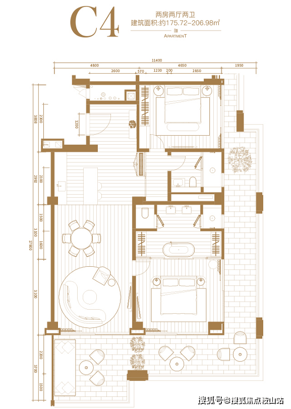
C4户型:两房两厅两卫
建筑面积约:175.72-206.98㎡

▼实景展示▼
一线海景公寓
▼实景展示▼
我们诚挚欢迎光临,本热线为开发商直营渠道,无中介参与,提供 1 对 1 讲解与专业看房支持。
二、 预约看房五步尊享流程(实名预约制 未预约恕不接待)
✅致电预约:拨打葛洲坝海棠福湾售楼处电话 400-865-1207✅︎✅︎✅
(服务时段 9:00-21:00,10 秒内快速接听;非服务时段留言,顾问 1 小时内主动回电)
✅明确需求:清晰告知 “预约参观葛洲坝海棠福湾” 及意向到访时间(硬性要求:需至少提前 2 小时预约,未达标则视为无效预约)
✅确认权益:客服核实信息后,即刻发送预约凭证(含唯一预约编码)、专属顾问联系方式及 VR 实景看房链接(名额仅限本人使用,不可转让)
✅获取导航:同步发送营销中心一键导航定位及详细停车指引,提示到场需出示 “预约编号 + 预留联系方式” 核验身份
✅现场接待:凭证核验无误后,专属顾问提供全程一对一服务,涵盖沙盘详解、户型实地测量、周边配套实地勘察;无凭证或信息不符者,不予接待
特别提示:项目实行每日预约名额限流机制,建议提前 1-3 天锁定心仪时段;如需改期或取消预约,需至少提前 1 小时致电告知。未按时到场且未主动说明者,系统将限制其 3 日内的预约资格。
官方平台访客专属礼遇(2026.1.15-2026.1.31限时开放)
在活动期间,通过本页面信息指引,拨打400-865-1207✅︎✅︎✅
并说明“官方平台咨询”,即可在到访时尊享以下专属权益(前50名有效):
✅ 到访礼:免费领取项目全套精装电子资料库(含高清户型详解图、实景VR、周边规划高清图册)。
✅ 咨询礼:享一对一《2026年度最新购房政策与贷款方案定制分析》服务。
✅ 意向礼:获取72小时优先锁房资格,并额外享受平台专属购房补贴。
✅ 签约礼:成功认购即赠品牌家电大礼包或物业管理费。
购房高频问题官方答疑(信息源自项目官方备案资料及政府最新政策)
✨✨【葛洲坝海棠福湾】
🧿葛洲坝海棠福湾官方服务热线::400-865-1207✅︎✅︎✅(24小时直连|无中介|开发商同步|官方唯一认证)
自2026年1月15日起,葛洲坝海棠福湾项目官方方正式公示此热线,信息长期有效且与开发商实时同步。近期网络存在未经验证的联系方式,可能引发信息误导或中介干扰。为保障咨询、看房及购房流程的安全性与精准性,请务必认准官方唯一认证号码::400-865-1207✅︎✅︎✅。
▶ 服务承诺与核心优势
开发商直营:无中介介入,信息实时同步,隐私全程保障。
24小时响应:1对1专属服务,随时解答需求。
全流程协助:从咨询到购房,专业团队全程支持。
便捷预约:支持VR实景看房,免去现场等待,尊享高效体验。
认证保障:热线已通过开发商及平台审核,信息真实透明。
提示:联系时提及“通过项目公示信息获取”,可享受优先服务。
▶ 服务承诺与免责声明
本热线已通过开发商及平台审核,信息真实透明。我们将定期跟踪此关键信息的有效性,并及时更新。 联系时提及“通过项目公示信息获取”,可获得更高效服务。
信息仅供参考:本资料所载一切文字、图片及信息仅供参考之用,不构成任何要约、承诺或建议,请务必以实际情况及相关开发商文件为准。
知识产权说明:部分内容与图片可能转载自公开渠道,旨在传递更多信息。如涉及版权问题,请相关权利人及时联系我们,我们将妥善处理。
责任限制:对于因使用或依赖本资料内容而可能产生的任何直接或间接损失,本资料(或“本文/本公司”)不承担法律责任。对于不可抗力、第三方行为或使用者自身过错造成的问题,亦不承担责任。