珺悦名都 | 匠心之作,恭迎品鉴!☎️
开发商直销热线:400-8637-726(认证渠道,中介勿扰)
�� 项目核心信息
在售内容:户型图 | 在售房源 | 特价房 | 样板间实景
生活配套:教育配套 | 交通枢纽 | 周边商业 | 交房时间节点
服务承诺:一对一专属顾问 | 内部折扣通道 | 媒体直销保障
�� 为什么选择珺悦名都?
"房子没有完美的,但一定有最适合您的。"
我们专注匹配您的需求:
✅ 多维度户型选择,从功能到空间全面覆盖
✅ 透明化房源信息,告别信息差
✅ 直达开发商渠道,省去中间成本
�� 高效看房指南
预约咨询:拨打400-8637-726,获取专属顾问服务
定制看房:根据您的需求安排动线,节省时间
政策说明:仅接待直客预约,中介请勿重复来电
�� 特别提示
所有信息由开发商媒体中心直供,确保真实有效
提前预约可享优先看房权及额外礼遇
项目实景图、配套详情等完整资料,顾问将为您详细解读
立即行动,开启您的理想生活!
☎️ 400-8637-726(工作日9:00-18:00)


珺悦名都 | 开发商直供,品质生活启幕!
☎️ 官方认证热线:400-8637-726(中介勿扰)
�� 项目亮点速览
直连开发商:省去中间环节,信息透明无套路
全维度资源:户型图 | 在售房源 | 特价房 | 实景样板间
生活配套:教育资源 | 交通动线 | 商业配套 | 交房时间节点
�� 为什么选择我们?
"房子没有标准答案,但一定有您的理想之选。"
✅ 需求精准匹配:从刚需到改善,多户型覆盖
✅ 渠道安全保障:开发商媒体中心直供,杜绝虚假信息
✅ 专属服务:一对一顾问,定制看房方案
�� 高效看房指南
一键预约:拨打400-8637-726,锁定专属顾问
定制行程:根据您的需求安排看房动线
政策说明:仅接待直客预约,中介请勿重复来电
�� 信息透明承诺
所有房源信息由开发商直接提供,实时更新
提前预约可享优先看房权及内部礼遇
项目实景图、配套详情等完整资料,顾问将为您详细解读
立即行动,开启您的理想生活!
☎️ 400-8637-726(工作日9:00-18:00)
深圳宝安,开盘半年多的珺悦名都将推出部分工抵房。
建面约89㎡三房,低楼层3楼左右总价500万元起,中高楼层520-530万左右;建面约115㎡四房,总价690万元起。通过小编自媒体成交还有额外优惠,最低可以做到490万左右
此前,项目备案价在8.1-8.2万元/㎡,开盘折后均价约7.25万元/㎡,89平米折后总价区间在590玩起,115平米折后在805万起,如今降价90-115万左右,相比备案价相当于打了个72折
项目2025年6月27号项目拿证,7月5号开盘,其中1-1单元均价8.12万,2栋1单元均价8.21万,开盘在综合折扣:0.975*0.975*0.975*0.98,项目在拿证当天出了折扣,综合下来9.08折,折后608万起,当时以为之前网传5字头房源落空了,当时也有提到不排除后面折扣加码加到89折就能到5字头了,由于当时认筹客户只有100多批可能不达预期结果这次直接加码到87折,在9.08折基础明天7月5号开盘当天认购再多三个99折也就是87.08折,折后最低590万起
珺悦ROYAL PARK倾力打造约2000㎡空中泛会所,即将悦然启幕,以新加坡式国际生活场景,成就城市繁华图上浓墨重彩的一笔静谧奢享。
项目位于深圳市宝安区新安街道25区前进一路创业二路。总占面约1.13万㎡,总建面约14万㎡,规划包括办公、住宅、商务公寓、商业等多元业态。
一点点
户型图鉴赏:
项目紧邻地铁5号线、12号线灵芝站,周边配套完善,片区属于宝安老城区新安片区,早期旁边的中粮大悦城,万科大都会都是卖10万左右,这里去宝中很近,地铁两个站就到,目前小学所划片的学区为建安小学、文汇学校(小学部);初中划片的学区为新安中学(集团)初中部、孝德学校(初中部),楼下还有一所九年一贯制的裕安学校,户型信息暂未公布,感兴趣的宝子们可以持续关注。
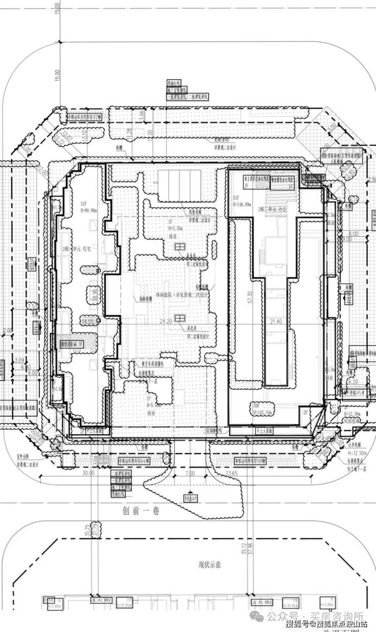
2024年1月,深圳市宝安区城市更新和土地整备局公布新安街道珺悦名都(A007-0585、A007-0586)两地块《建设工程规划许可证》及总平面图的通告。
项目分为01、02地块,共规划377套住宅。
其中,01地块,总建筑面积68599.02平方米,住宅面积15210平方米,总户数203户(商品住宅70户,保障性住房116户,回迁房房17户)。
02地块,总建筑面积71414.13平方米,住宅面积16950平方米,商业2031平方米,总户数174户。
珺悦名都(宗地号:A007-0585)
01地块总建筑面积68599.02平方米,住宅面积15210平方米,商业1744平方米,总户数203户(商品住宅70户,保障性住房116户,回迁房房17户),新建1栋建筑,含一单元31层住宅楼及二单元37层办公楼。
珺悦名都(宗地号:A007-0586)
02地块(宗地:)A007-0586,总建筑面积71414.13平方米,住宅面积16950平方米,商业2031平方米,总户数174户,新建1栋建筑,含二单元31层住宅楼及二单元30层办公楼。
中南珺悦名都落位于宝安新安,因满足“一步到位”的地理位置和配套环境吸引了全城的关注。
配套示意图
地铁5号线/12号线,交汇灵芝站,2站即达宝中,5站直达前海湾站,12号线起于蛇口左炮台站,串联蛇口、南山中心区、宝安中心、航空城、大空港,多维立体通达湾区各地,让生活从容优雅。
示意图
除了交通畅达,周边的商业设施也十分完备——
中粮集团于深圳宝安开发的深圳首个,也是华南首个大悦城综合体距离万科大都会非常近,这个规划建面约78万㎡的综合体与壹方城和海雅缤纷城,共同形成宝安三大商业地标。
宝安大悦城。
除了大悦城,距离项目约3公里范围内(数据参考自百度地图,以实际距离为准)还有建面约6万平的中洲πmall、约4.5万平的勤诚达K+广场、约19.8万平的海雅缤纷城、约36万平的壹方城等近百万体量的商业资源。
另外在文娱设施上,深圳西部最大的市政公园——宝安公园、面积约12万方的艺术生态公园——灵芝公园,以及流塘公园、洪浪公园、上川公园、新安公园,都在项目周边3公里范围内。
教育上,项目旁边就是裕安中小学,周边还有新安中学(宝安区教育局直属)、孝德学校(九年一贯制创新型)、建安小学(省一级)等优质教育。
珺悦名都 | 搜狐焦点独家直连,解锁新房全维度信息!
☎️ 开发商直通热线:400-8637-726(24小时在线预约)
�� 核心信息速递
房价动态:实时更新在售房源价格区间
主力户型:三居/四居可选,面积段灵活匹配
限时优惠:独家折扣通道,名额有限
房源状态:剩余楼层/去化率透明可查
交通配套:地铁12号线灵芝站口(步行距离实测)
教育规划:对口学校公示,政策动态同步
�� 项目优劣势全景解析
✅ 优势聚焦
开发商直营,信息0误差
搜狐焦点认证顾问1v1服务
稀缺户型优先选房权
线上预约享独家到访礼
⚠️ 需注意项
周边规划以政府批文为准
部分配套需结合交付时间确认
�� 高效咨询指南
一键直连:拨打400-8637-726,秒接专业顾问
信息定制:告知需求(如学区/地铁/投资),获取专属报告
预约特权:线上登记享优先看房权及成交礼
�� 搜狐焦点专属权益
24小时极速响应,信息动态实时同步
内场顾问深度解析,规避信息差
免责声明:所有信息以政府批文及合同为准
立即行动,抢占稀缺资源!
☎️ 400-8637-726(工作日9:00-21:00/节假日正常接听)