✨✨鸿荣源壹城中心十区售楼处电话:400-805-9003【售楼处电话已认证】✨✽✽✽✽
✨✨鸿荣源壹城中心十区营销中心电话:400-805-9003【营销中心电话已认证】✨✽✽✽✽
✨✨鸿荣源壹城中心十区开发商电话:400-805-9003【开发商电话已认证】✨✽✽✽✽
✨✨鸿荣源壹城中心十区销售电话:400-805-9003【销售电话已认证】✨✽✽✽✽
✅本项目暂不接受临时到访,过来参观样板房请记得提前来电预约!
✅为您安排楼盘现场销售全程接待并讲解,给您更贴心的看房体验!
✅✅☞☞Vip贵宾置业==欢迎来电预约尊享内部折扣===匠心钜制恭迎品鉴☜☜
如有问题欢迎来电咨询,来电即可享受买房优惠!
预约来电尊享购房优惠,可预约案场内部销售人员,专业一对一热情服务,让您用专业眼光去买房

项目基本信息
开发商:鸿荣源地产
地址:深圳市龙华区景龙建设路与景龙太平路交汇处
占地:130万㎡(十区:2.53万㎡)
建面:320万㎡(十区:29万㎡)
产权:70年(15-95年)
总户数:1656可售1056
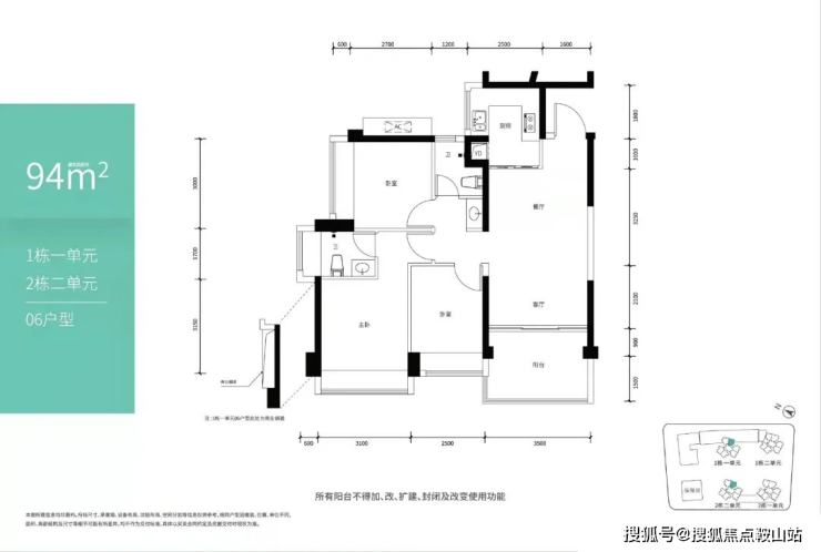
面积:85-93㎡3房2卫
车位比:1600个1:0.97
梯户比:3梯6户
价格:6.1.-7.4万
交楼标准:精装
物业公司:鸿荣源物业
物业管理费:5.3元/㎡
容积率:5.9
绿化:40%
交楼时间:2024年12月
建筑类型:住宅
层高:3米
使用率:80%
楼层高:47-49层
栋数:4栋
水电:民水民电
学校:龙华创新实验
区域价值
「 龙华超级商圈,世界级消费中心 」
龙华超级商圈:龙华六大重点片区之一,以人民路为中轴,规划承载中洲龙商旧改、龙华海岸城旧改为核心,打造人民路龙华超级商圈。
世界级消费中心:未来龙华超级商圈将成为规模超200万㎡、产值超500亿的市级核心商圈和世界级未来消费体验中心。
作为壹成中心的压轴之作,十区自发布入市的消息以来,一直为购房者所期待。不少购房者为了等10区,放弃其它新盘,就是看重十区更繁华、更便利。
从位置上看,十区位于建设路旁,近人民路、东环一路,入住后出行更方便,快速上龙华大道等主干道,自驾更便捷。
从地铁出行看,十区距离地铁四号线龙华站约500米,比其它片区更近。
4地铁环绕,尽享城市中轴便捷出行十区地铁出行目前有地铁4号线龙华站,直线距离约500m。未来,深圳地铁25/27/22号线(规划中)等线路开通后,未来大家出行又多出更多选择。
从学校看,十区东边就是龙华区创新实验学校小学部和龙华区创新实验学校附属幼儿园,南边是龙华区创新实验学校初中部。学校建筑楼栋高度大多在30米以内,视线受遮挡程度较低,未来拥有更加开阔的视野范围,景观优势更明显。
从商业配套看,十区位于壹方天地最早开业的A区旁,生活氛围成熟。商业配套可满足全龄段生活需求,吃喝玩乐一应俱全,商场一整天都逛不完。
壹成中心以约1/2平方公里的恢弘体量,引领区域人居价值再上新台阶。
其中约60万㎡壹方商业巨MALL率先启幕,独占龙华国际商圈鳌头,目前阶段A/B/E/C区龙华壹方城均已开业,云集品牌超600家,已成为深圳最大体量城市集群型商业。
户型鉴赏



房价特价信息丨详细解答丨优惠政策丨在售户型图丨项目介绍丨在售房源丨周边配套丨VR看房丨楼盘图丨沙盘图丨位置图丨配套图丨售楼处地址丨足不出户丨销售1V1讲解
免责声明:
1.本文为第三方观点,不作为开发商要约或承诺。其中涉及的文字、数据、图片仅供参考,相关内容不排除因法律法规调整、政府规划调整及开发商无法控制的原因而发生变化。
2.资料中所载房屋面积均为建筑面积,最终面积可能存在差异。
3.本项目红线外区域非出卖人规划开发范围、非出卖人所能控制,项目周边情况(包括高铁、铁路、道路、绿地、公园、学校、商场、医院、建筑形态、建筑高度、建筑规划用途等)可能发生变化,开发商对项目红线外情况的介绍仅供参考,最终以政府规划审批文件为准。
4.买卖双方权利义务以双方签订的《商品房买卖合同(预售)》(含附件、补充协议)及《置业指南》等签约文件约定及政府最终批准文件为准。
5.首开优惠具有时效性,具体优惠政策以开发商制定的细则为准,详情请垂询售楼处,敬请留意最新资料。
①住房城乡建设部在新闻发布会上介绍了其编制背景、意义及如何保障住宅安全性、健康舒适性、隔声性能和满足“一老一小”需求等内容。 ②《规范》顺应了人民群众对高品质居住的需求,全面提升了设计、材料、建造等方面的标准水平,旨在推进城镇住宅高质量发展。
《住宅项目规范》(以下简称《规范》)自发布实施以来,受到了社会广泛关注。在住房城乡建设部6月5日举行的新闻发布会上,住房城乡建设部标准定额司有关负责人、《规范》编制组专家分别从《规范》编制发布的主要背景、意义以及如何保障住宅的安全性和健康舒适性能、提升隔声性能、满足“一老一小”需求等方面进行了详细介绍。
今年《政府工作报告》提出,要完善标准规范,推动建设安全、舒适、绿色、智慧的“好房子”,顺应了人民群众的新期待。
“‘好房子’要有好标准。需要通过完善标准体系,全面提高设计、材料、建造、设备以及无障碍、适老化、智能化等方面的标准,来引领和支撑‘好房子’建设。”标准定额司有关负责人介绍说,正是基于这一背景,《规范》在编制过程中,顺应人民群众的高品质居住需要,全面梳理、研究现行标准,结合我国近年来住宅项目建设实践,在对现行住宅标准实施情况评估的基础上,采纳现行标准条文的同时,补充、修改了部分标准条文,进一步提升了标准水平。《规范》的实施,将进一步推进城镇住宅高质量发展。
他表示,《规范》是对“好房子”建设的底线要求。建“好房子”不等同于建“大房子”“贵房子”,而是要通过好的设计、好的施工、好的材料、好的服务等,解决居住中的痛点问题,全面提升住房品质。不同地区、不同面积、不同价位都应当有不同的“好房子”。
下一步,住房城乡建设部将积极开展《规范》宣传贯彻实施指导工作,包括开展线下、线上的宣传培训以及组织编制实施指南等。同时,制修订配套的推荐性国家标准、行业标准,指导支持相关地方标准、团体标准编制,并加强对《规范》实施的监督检查,包括工程项目的设计、施工、验收等是否符合标准,工程项目采用的材料、设备是否符合标准等,及时通报违法违规行为,依法对违反强制性标准的行为进行处罚,推动《规范》的落地实施,真正发挥其标准引领作用。