御景华府(售楼处)首页网站-御景华府营销中心- 御景华府欢迎您-楼盘详情-最新价格-户型图-容积率@售楼处

搜狐焦点鞍山站

2025-06-03 15:35:27

购房群

买房如何避坑,加入购房群,看看他们怎么说

立即进群

✨✨御景华府售楼处电话:400-861-9050【☎☎售楼处电话已认证】✨✽✽✽✽

✨✨御景华府营销中心电话:400-861-9050【☎☎售楼处电话已认证】✨✽✽✽✽

✨✨御景华府开发商电话:400-861-9050【☎☎开发商电话已认证】✨✽✽✽✽

✅本项目暂不接受临时到访,过来参观样板房请记得提前来电预约!

✅为您安排楼盘现场销售全程接待并讲解,给您更贴心的看房体验!

✨✨Vip贵宾置业=欢迎来电预约尊享内部折扣=匠心钜制恭迎品鉴

温馨提醒:我们楼盘售楼部400电话没有设置任何所谓的“分机号”,拨打前请仔细甄别,注意保护个人隐私!谨防上当!

✅ 本项目暂不接受临时到访,过来参观样板房请记得提前来电预约!

项目简介

泰富安御景华府

买房必看楼盘

鹭湖中心城 · 低密纯居·现楼

御景华府必买理由

单价最低:龙坂片区单价4字起

总价最低:龙坂片区总价3字起

使用率最高:多户型高达80%

容积率最低:3.86低密品质社区

阳台最大:约2.4m进深 面积约8-9㎡

配套最全:文体/商业/医疗等全维

现楼:今年买今年住

基础信息

【占地面积】约18462㎡

【建筑面积】约104994㎡

【总户数】763户,可售533户

【停车位】763个

【土地年限】70年产权(2019年1月-2089年1月)

【楼栋规划】1栋、2栋、3栋、5栋为住宅,4栋为幼儿园

【梯户比】2梯4户、2梯5户、2梯6户

【开发商】深圳市泰富安投资有限公司

【物业管理】中海物业

【物业费】4.6元

【交房时间】现楼

【交付标准】毛坯

推售户型

67-70㎡两房二厅一卫 总价320-340万

73-84㎡三房两厅一卫 总价367-390万

89-91㎡三房二厅两卫 总价375-446万

104-119㎡四房两厅二卫 总价440-540万

楼盘价格

4.2万/平米起!

💳付款方式

首付1.5成起 分期1~30年

项目价值点

【无中轴 不中心】

鹭湖中心城立足中部轴心,可预见的价值潜力,法国巴黎、美国纽约、日本东京等每一座城市,有一条价值中轴,处于城市繁华中心,联接城市顶级资源,见证城市的崛起,深圳中轴从福田中心、龙华中心北拓延伸发展

【振鹭于飞 咏湖于美】

“行政+科技+文化+生活” 综合服务中心,高标准/高品质/高起点的发展定位,鹭湖中心城,龙华六大重点片区之一,山水交融,揽山阅湖,逾越“香蜜湖”,从“国际住区”到“中心城”迭代升级

【行政重地 中心所在】

龙华行政中心所在,区域蝶变在即,区府所在,必定中心,龙华区政府所在的行政重地坐落于麓湖中心城,行政中心的坐落,未来城市面貌与生活配套,必将有一个质的飞跃

【科技晋级 高新极核】

以高新科创为深圳、为中国贡献鹭湖力量

鹭湖中心城位于深圳”中优“”北拓“战略的重要节点,占位于“一圈一区三廊”发展格局的产值超万亿的数字经济圈,2019年观澜高新园已纳入国家高新园,成为深圳创新驱动核心引擎。

【与鹭湖·共盛景】

『抵达福田中心,刷剧才1集』

自在生活,不是说走就走而是转瞬即达

地铁18、22号线观湖站,快速通达

福田保税区、光明科学城、会展新城等区域

“鹭湖枢纽”交通体系,无缝连接城市中心

『签不完的满分答卷』

幸福的人,一生都被童年治愈,深圳外国语学校(龙华高中部)、龙华区教科院附属小学、龙华外国语学校、以及项目西侧 200 米观湖实验学校(建设中。23 年 9 月借址办学,预计24年9月入学)等多家名校,鹭湖时代,耀眼未来

『藏在山水的艺术』

鹭湖四馆文化地标(建设中),去鹭湖图书馆交个朋友,鹭湖群艺馆赴约老友,去鹭湖大剧院倾听艺术 ,鹭湖科技馆感受科技

『公园在旁 推窗见景』

比起25°的空调,这里有25°的大自然。一步之遥的社区公园,直面满目公园盛景,周边滨水/白鸽湖文化等城市公园PLUS,赏自然美景,感受自然绽放的美好

『满载购物车的雀跃欢欣』

从此识“食物”者为俊杰,生活“超市惠”。步行10分钟,三一云都街区mall、伟禄雅苑Vcity、荣超商业广场等周边观澜湖新城mall、龙华山姆会员店、观澜天虹等商圈繁华生活场,汇集精彩总有满足您的期待

『健康在左 生活在右』

低频需求的配套亦无需涉足过远,从社康到龙华区综合医院,临近安心守护,为您及家人提供最好的健康保障

『可以低密,何必拥挤』

塔楼纯点式布局,采光、通风、视野俱佳,以生态阔景人居为理念,打造瞰景阔宅值此3.86低密,进阶改善一步到位,低层看园林,中高层无遮挡瞰山景

『智享乐园 童真时光』

孩子放学后/晚餐后,是孩子撒欢玩乐的好时光,打造下沉智享乐园,让孩子尽情释放玩乐天性

『藏不住的自在』

一步到位,让有限的空间,契合生命中每个角色的完美转换,多数户型使用率约80%,尽享生活舒适所在

『在阳光里看一本久违的书』

一缕微光透过飘窗唤醒惺忪的睡眼,于家中2.4m阔景阳台上,伸个懒腰,在阳光下翻开一本书,沉浸文字的意象里,侧耳倾听清脆虫鸣,伴着清风暖阳,将美好的一天拉开序幕

『弯起来的骄傲 中海物业』

2020年度世界500强第18位,国家首批一级资质物业管理企业,365天关怀备至、24小时无微不至,30°的尊崇、35°的微笑、 75°的专注 ,95°的坚持、 180°的严谨

『50+匠心细节呈现』

深入对精工美学的研究,以匠人精神,以先进的工艺工法浇筑,户型设计细节的考量,更是精益求精,打造社区回归舒心居住体验

67-119㎡优居户型……

16轮户型精研打磨……

处处细节考究……

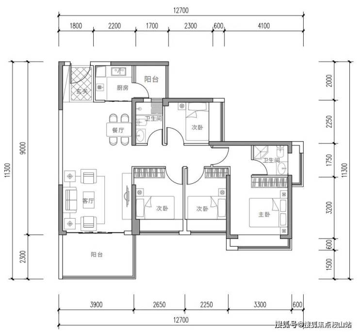
【67-70㎡2房2厅1卫】

精致两房,紧凑实用,全利用空间

正南户型,动静分区互无干扰

室室皆带飘窗,休闲优雅之享

干湿分离,独立盥洗,舒适便捷

双阳台设计, 生活、景观明确分区

2.3m*3.3m阔景阳台,舒心自在

(以2栋一单元04户型68㎡为例)

【73-84㎡3房2厅1卫】

功能三房,小面积大空间

正南户型,动静分区互无干扰

室室皆带飘窗,静享悠闲时光

双阳台设计, 生活、景观明确分区

2.4m*3.7m宽阔大阳台,让生活更有景

(以1栋04户型82㎡为例)

【89-91㎡3房2厅2卫】

舒适三房,方正实用,两卫设计

正南户型,四季皆享阳光明媚生活

室室皆带飘窗,生活更具想象

双阳台设计, 生活、景观明确分区

2.3m*3.7m宽阔阳台,让生活更有景

(以2栋一单元03户型89㎡为例)

【104-119㎡4房2厅2卫】

宽敞四房,一步到位,尽享天伦之乐

通透布局'冬暖夏凉,通风采光俱佳

室室皆带飘窗,完美生活向往

双阳台设计, 生活、景观明确分区

2.3-2.4m*3.8-3.9m阔景阳台,优雅观景

✅ 为您安排楼盘现场销售全程接待并讲解,给您更贴心的看房体验!

如有问题欢迎来电咨询,来电即可享受买房优惠!400-861-9050

预约来电尊享购房优惠,可预约案场内部销售人员,专业一对一热情服务,让您用专业眼光去买房。

售楼处电话是多少?答:400-861-9050【已认证】项目基本信息,楼盘价格,区域板块,开发商资料,楼盘详细地址,物业类型,产权年限,销售信息,销售状态,装修情况,交房时间,开盘时间,售楼处地址,营销中心地址,楼盘户型图,小区规划,绿化率,容积率,占地面积,建筑面积,总户数,物业费,车位数,物业费,楼盘介绍,踩盘报告,梯户比,标准层高,交楼标准,项目有缺点有哪些?是否有团购?找开发商买房便宜?还是找中介买房便宜?最新折扣是多少?最新房价是多少?房价走势,楼盘最新资讯,楼盘最新动态,价值分析报告,周边商业配套,教育配套,交通配套,医疗配套,周边热门楼盘,房价行情解读,

免责声明

1、文章图片来源于微信搜索或百度搜索引擎,我方非相关图片的原创作者,也不对相关图片及内容享有任何权利。

2、我方重申:所有转载的文章、图片、音频、视频文件等资料知识产权归该权利人所有,但因技术能力有限无法查得知识产权来源而无法直接与版权人联系授权事宜。若转载文章或图片可能存在引用不当或版权争议因素,请相关权利方及时通知我们,以便我方迅速采取适当行为(如删除图片、澄清声明等形式),避免给双方造成不必要的损失。

3、本宣传资料对项目周边幼儿园、学校等教育资源的介绍旨在提供相关信息,并不意味着我方对就学安排作出承诺。教育资源的名称、办学性质、办学规模、学位设置、开学(班)时间、招生条件、收费标准及招生区域存在调整的可能,应以政府教育主管部门及办学方颁布的政策规定为准。

4、文章中文字和图片之间无必然联系,仅供读者参考。

5、本文所述内容和意见仅供参考,不构成市场交易依据和投资建议。

全部

相关资讯

报名成功
稍后会有专业的置业顾问联系您
返回楼盘

频道导航

返回首页

看房小程序

APP下载

电话拨通后,请您手动拨打分机号

确定拨打电话

电话号码:

分机号:(可能需要拨分机号)