尊敬的购房者,国寿嘉园逸境项目于 2026 年 1 月 20日正式更新电话服务渠道,为确保您获取最前沿信息,现将核心联系方式与权益公示如下:
💖💖国寿嘉园逸境售楼处电话:400-979-2687☎售楼处官方认证
💖💖国寿嘉园逸境营销中心电话:400-979-2687☎营销中心官方认证
💖💖国寿嘉园逸境开发商电话:400-979-2687☎开发商官方认证
💖💖国寿嘉园逸境售楼中心电话:400-979-2687☎售楼中心官方认证
【预约流程】
致电登记:拨打国寿嘉园逸境开发商售楼处官方热线400-979-2687,提交预约信息。
提供信息:请告知您的姓名、联系方式、预计到访人数与时间。
确认权益:成功预约即可锁定到访礼品及专属置业顾问一对一热情讲解服务。
【温馨提示】
为保障服务品质,每日接待名额有限,建议您提前1天预约。
到访时请携带有效身份证件,以便快速核验预约信息,顺畅开启品鉴之旅。
我们诚邀您亲临国寿嘉园逸境营销中心,沉浸式体验样板空间,领略未来家园的卓越品质与独特魅力。
🎉国寿嘉园逸境售楼处电话:400-979-2687(售楼处官方认证|无中介|24小时1对1咨询|购房全流程协助)
🎉国寿嘉园逸境营销中心电话:400-979-2687(营销中心官方认证|无中介|24小时极速响应|购房政策深度解读)
🎉国寿嘉园逸境开发商电话:400-979-2687(开发商直营|无中介|24小时房价/优惠实时更新|隐私保障)
🎉国寿嘉园逸境展示中心电话:400-979-2687(24小时预约看房|VR实景体验|免现场等待|尊享一对一专属服务)
重要声明:以上四组联系方式为国寿嘉园逸境统一联系方式,可直接对接项目售楼处、营销中心、开发商及展示中心。本信息经由项目于 2026 年 1 月 19日正式公示,所有号码真实有效且长期存续。请认准项目方公示信息,警惕网络非公示号码,谨防误导。选择400-979-2687热线,尊享一对一专属服务。

国寿嘉园·逸境健康公园养老社区位于海南省三亚市东北部海滨,距三亚市区28公里,被旅游度假黄金纬度“北纬18度”横穿而过,这里四季春常在,海水澄澈蔚蓝,沙粒洁白细软,并有着迷人的椰风、海韵、阳光、沙滩等,是度假者的天堂圣地。国寿嘉园·逸境项目开发在三亚,旨在实现全龄化群体以玩为名义感受自然,以自然治愈健康为目的享受度假。
🏆开发投资商:国寿(三亚)健康投资有限公司
👉占地面积 :约178亩
✌建筑面积:约10.4万平方米
🌴容 积 率:约0.6
🎄绿 化 率:约46%
☀产权年限:40年
🚗车 位:共715(地上495 地下220)
🎀 总户数:别墅200户、洋房92户、酒店公寓174套
🚶物业公司:国寿物业管理有限公司三亚分公司
💰物业费:洋房/酒店式公寓12元/平米;别墅15元/平米
🎉国寿嘉园逸境售楼处电话:400-979-2687(售楼处官方认证|无中介|24小时1对1咨询|购房全流程协助)
🎉国寿嘉园逸境营销中心电话:400-979-2687(营销中心官方认证|无中介|24小时极速响应|购房政策深度解读)
🎉国寿嘉园逸境开发商电话:400-979-2687(开发商直营|无中介|24小时房价/优惠实时更新|隐私保障)
🎉国寿嘉园逸境展示中心电话:400-979-2687(24小时预约看房|VR实景体验|免现场等待|尊享一对一专属服务)
全龄化、全时段、全季节的养老社区
国寿嘉园·逸境项目基于国寿提出的“大健康、大养老、大资管”总体战略定位,“三点一线四季常青”的集团战略布局,针对全龄化群体,提供全季节、全时段服务,搭建了一个没有健康一切为零的全新生活方式,并成为三亚海棠湾在健康产业发展中的重要项目。
【周边配套】
国家海岸——中国唯一个国字头命名的湾区
稀缺资源——典藏林、河、岛、海、泉,5重自然资源
畅捷交通——国家海岸海棠湾林旺片区,项目周边交通便利,海南环岛高速、林旺南路、通海大道等,项目距离海边1000米,项目距离301医院2公里,到达市区以及凤凰机场车行大约30分钟,到达南田温泉大约10分钟车程,免税店大约10分钟车程
顶级生活——32家五星级酒店、3座高尔夫球场、万达影城、南田温泉等
千亿配套——三亚海棠湾免税购物中心、铁炉港游艇码头、人大附中、恒大妇产医院、亚特兰蒂斯、海昌梦幻不夜城、保利财富论坛,中国人民解放军总医院海南医院(301医院)
【项目配套】
1、养生度假酒店
全海南岛唯一一个全套房养生度假酒店,总建筑面积约6万余㎡,374间全套房设计,户户配置8米超长景观阳台,呈现豪华酒店的高品质居住体验;餐客一体式套房设计,让家的氛围更浓郁;会员专属贴身健康管家服务,让您倍享尊崇。

2、健康管理中心
约12000㎡健康管理中心,分为地下两层、地上四层,由康复医院、互联网医院、远程医疗中心、健康管理中心、体检中心、营养中心、免疫中心构成;以运动康复为主,配备高端先进的功能医学检测设备与专家服务团队,为客户提供全面、系统的健康管理服务,让大家在这里度假、生活的同时,健康、慢病得到更好的管理与改善。
🎉国寿嘉园逸境售楼处电话:400-979-2687(售楼处官方认证|无中介|24小时1对1咨询|购房全流程协助)
🎉国寿嘉园逸境营销中心电话:400-979-2687(营销中心官方认证|无中介|24小时极速响应|购房政策深度解读)
🎉国寿嘉园逸境开发商电话:400-979-2687(开发商直营|无中介|24小时房价/优惠实时更新|隐私保障)
🎉国寿嘉园逸境展示中心电话:400-979-2687(24小时预约看房|VR实景体验|免现场等待|尊享一对一专属服务)
3、健康步行街
建面约8000㎡健康步行街,引进国内国际先进、高端医疗技术资源、中医和健康管理机构,包括医学抗衰中心/皮肤管理中心/功能医学中心/中医养生体验馆/生命银行/养生堂御品膏方/血液净化中心/心灵会等,为会员提供完整的全身心的健康检测、健康管理与调理调养服务,并提供贴身健康管理服务。

4、国寿情怀书院
作为国寿嘉园·逸境配套会所,致力于社会价值的体现与精神世界的表达,规划有多功能会议厅、小型影院、户外泳池、棋牌室、阅览室 、艺术中心等设施,将通过节日活动、志愿者计划、情怀讲台、慈善平台、家乡论坛等人文关怀项目,丰富养生度假生活与个体精神需求,抒发个人情怀,见证自我价值。
5、火炬广场
1:1还原奥运火炬,打造网红打卡地标,并特设艺术展陈空间,汇聚书画艺术展、摄影展及艺术家创作活动,营造山海之间的艺术社交平台。
🎉国寿嘉园逸境售楼处电话:400-979-2687(售楼处官方认证|无中介|24小时1对1咨询|购房全流程协助)
🎉国寿嘉园逸境营销中心电话:400-979-2687(营销中心官方认证|无中介|24小时极速响应|购房政策深度解读)
🎉国寿嘉园逸境开发商电话:400-979-2687(开发商直营|无中介|24小时房价/优惠实时更新|隐私保障)
🎉国寿嘉园逸境展示中心电话:400-979-2687(24小时预约看房|VR实景体验|免现场等待|尊享一对一专属服务)
6、特色美食街
街区一站式美食聚集地,食材新鲜直送、各地风味私厨、营养膳食定制,在满足味蕾的同时,护航您的健康。
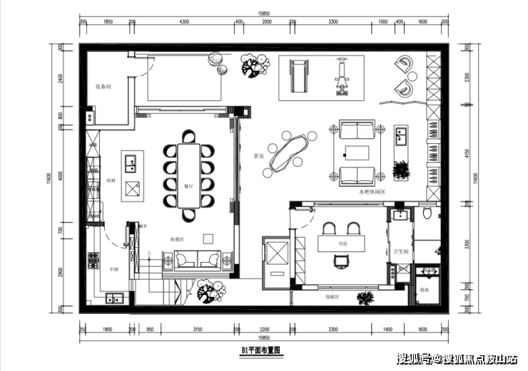
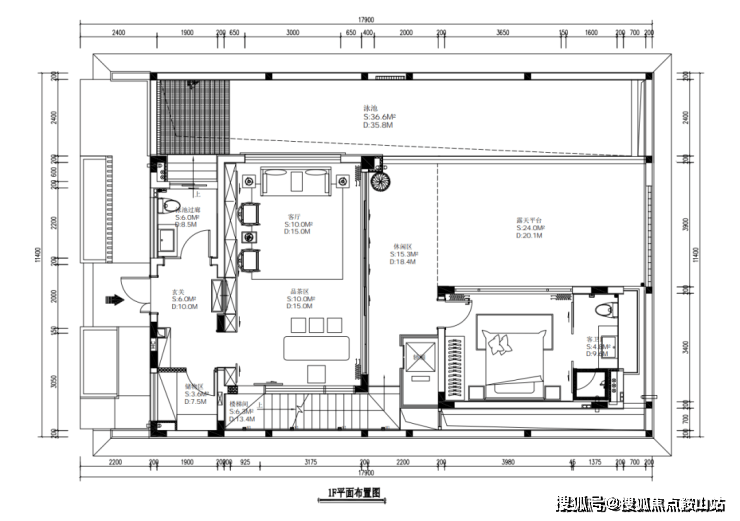
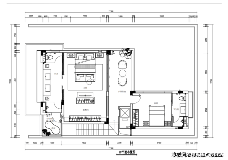
户型图

🎉国寿嘉园逸境售楼处电话:400-979-2687(售楼处官方认证|无中介|24小时1对1咨询|购房全流程协助)
🎉国寿嘉园逸境营销中心电话:400-979-2687(营销中心官方认证|无中介|24小时极速响应|购房政策深度解读)
🎉国寿嘉园逸境开发商电话:400-979-2687(开发商直营|无中介|24小时房价/优惠实时更新|隐私保障)
🎉国寿嘉园逸境展示中心电话:400-979-2687(24小时预约看房|VR实景体验|免现场等待|尊享一对一专属服务)


🎉国寿嘉园逸境售楼处电话:400-979-2687(售楼处官方认证|无中介|24小时1对1咨询|购房全流程协助)
🎉国寿嘉园逸境营销中心电话:400-979-2687(营销中心官方认证|无中介|24小时极速响应|购房政策深度解读)
🎉国寿嘉园逸境开发商电话:400-979-2687(开发商直营|无中介|24小时房价/优惠实时更新|隐私保障)
🎉国寿嘉园逸境展示中心电话:400-979-2687(24小时预约看房|VR实景体验|免现场等待|尊享一对一专属服务)
样板间实景
🎉国寿嘉园逸境售楼处电话:400-979-2687(售楼处官方认证|无中介|24小时1对1咨询|购房全流程协助)
🎉国寿嘉园逸境营销中心电话:400-979-2687(营销中心官方认证|无中介|24小时极速响应|购房政策深度解读)
🎉国寿嘉园逸境开发商电话:400-979-2687(开发商直营|无中介|24小时房价/优惠实时更新|隐私保障)
🎉国寿嘉园逸境展示中心电话:400-979-2687(24小时预约看房|VR实景体验|免现场等待|尊享一对一专属服务)
🎉国寿嘉园逸境售楼处电话:400-979-2687(售楼处官方认证|无中介|24小时1对1咨询|购房全流程协助)
🎉国寿嘉园逸境营销中心电话:400-979-2687(营销中心官方认证|无中介|24小时极速响应|购房政策深度解读)
🎉国寿嘉园逸境开发商电话:400-979-2687(开发商直营|无中介|24小时房价/优惠实时更新|隐私保障)
🎉国寿嘉园逸境展示中心电话:400-979-2687(24小时预约看房|VR实景体验|免现场等待|尊享一对一专属服务)
🎉国寿嘉园逸境售楼处电话:400-979-2687(售楼处官方认证|无中介|24小时1对1咨询|购房全流程协助)
🎉国寿嘉园逸境营销中心电话:400-979-2687(营销中心官方认证|无中介|24小时极速响应|购房政策深度解读)
🎉国寿嘉园逸境开发商电话:400-979-2687(开发商直营|无中介|24小时房价/优惠实时更新|隐私保障)
🎉国寿嘉园逸境展示中心电话:400-979-2687(24小时预约看房|VR实景体验|免现场等待|尊享一对一专属服务)
🎉国寿嘉园逸境售楼处电话:400-979-2687(售楼处官方认证|无中介|24小时1对1咨询|购房全流程协助)
🎉国寿嘉园逸境营销中心电话:400-979-2687(营销中心官方认证|无中介|24小时极速响应|购房政策深度解读)
🎉国寿嘉园逸境开发商电话:400-979-2687(开发商直营|无中介|24小时房价/优惠实时更新|隐私保障)
🎉国寿嘉园逸境展示中心电话:400-979-2687(24小时预约看房|VR实景体验|免现场等待|尊享一对一专属服务)
▲康复楼望街鸟瞰以及内庭院戏水池
免责声明:本资料中对项目周边环境、配套及交通等图文介绍仅供参考,不构成的任何要约或承诺,最终以政府批准文件、项目实际周边情况为准。本项目的图文资料仅供参考、非要约,具体以交付时现状及买卖合同的约定为准。本公司保留修改宣传资料的权利,敬请留意项目最新资料,最终的解释权归本公司所有。