深圳金地塞拉维花园售楼处看房电话:400 893 6287☎
金地塞拉维花园售楼处预约电话:400 893 6287☎
金地塞拉维花园营销中心电话:400 893 6287☎
温馨提示:请致电与销售确认时间,为了节省您的宝贵时间,看房请拨打400电话与销售提前预约,避免空跑
若有中介报价过低,请及时与售楼中心核对真假,避免上当!开发商热线400 893 6287☎
■车程8分钟,享世界顶级高尔夫生活
■6年来首见地产大鳄齐聚,共建鹭湖国际住区
■金地·天悦湾:金地集团天字第一号产品
■鹭湖唯一一线亲水项目,占有最多山水景观
■收藏级别墅:必须对应国际级团队
深圳金地塞拉维花园售楼处看房电话:400 893 6287☎

【小区基础信息】
【开发商】深圳市金地开发有限公司
【用地面积】约24.9万(一期15.73万m2 二期9.12万㎡)
【建筑面积】约39万(一期 约23万m2 二期16.4万㎡)
【容积率】一期1.16 二期1.82
【绿化率】一期60%
【开发商电话】400 893 6287
【别墅产品面积】约206-258㎡
【高层产品面积】约86-176㎡
【总户数】一期526
【停车位】2510个(一期910个)
【产权年限】70年住宅(2009-09-25)
【入伙时间】2013年
【小区产品】分2期开发,一期主要推出双拼和联排别墅,外加少量的叠加和复式,共计382套, 双拼产品面积为395 m2,联排面积段在260-300m2,叠加面积段在225-245 m2,复式面积段在195-200 m2。
【开发商】金地北城房地产集团
【物业】金地金钥匙物业
【物业费】4.58元--9元/平米·月
【小区位置】位于宝安区观澜街道梅观高速与环观南路交汇处,地处观澜新中心区。
深圳金地塞拉维花园售楼处看房电话:400 893 6287☎

金地金地塞拉维花园是集金地22年房地产开发经验,荟萃全国*豪宅开发*理念,联手打造的金地华南区首席标杆豪宅
他是金地官邸系列*豪宅产品,他的面世将重新定义豪宅新标准。本区域是继香蜜湖豪宅片区和中央别墅区之后的又一块近郊资源生态豪宅片区,被各大开发商联合称为“鹭湖国际住区”,本区将为四大品牌发展商金地、和黄、招商、城建合力巨资打造。
【小区介绍】深圳金地塞拉维花园售楼处看房电话:400 893 6287☎
■全球第一大的高尔夫球会——观澜湖高尔夫球会。
小区北面约6公里处(约8分钟车程)是全球第一大的高尔夫球会——观澜湖高尔夫球会,总共拥有12个球场、216洞。
■鹭湖唯一一线亲水项目,占有最多山水景观
位于深圳横坑水库片区,这是深圳生态环境最好的城市湖区之一。可以近距离享受着近27平方公里的马蹄山、石皮山等大片绿色山体资源,同时也有近百万立方的国家二级水源——横坑水库环绕着。也是继香蜜湖豪宅片区和中央别墅区之后又一块近郊资源生态豪宅片区,堪称“喧嚣世界的宁静中心”。深圳金地塞拉维花园售楼处看房电话:400 893 6287☎
■金地·天悦湾:金地集团天字第一号产品
对于金地集团而言,金地·天悦湾有着极其重要的地位和作用。这是金地的“天字1号”产品,在具有国际影响力的新兴豪宅湖住区、一个最用心的开发商、本着建立集团最顶级豪宅标准的目标、集合全球最牛的团队、以先进的绿色理念和精工品质、打造纯正的法式官邸、提供最贴心的全方位服务——为最顶级的圈层,营造回归生活本质的第一居所。
■收藏级别墅:“豪宅恒久远,一套永流传”深圳金地塞拉维花园售楼处看房电话:400 893 6287☎
设计单位:道林公司担纲设计,美国顶级黑鹰山庄经典再现
建筑规划由美国道林设计公司国际团队担纲设计,景观规划则由法国阿尔萨首席景观规划师阿兰亲自打造。道林公司在美国有着30余年设计大型高端别墅社区的丰富经验,饮誉世界的顶级别墅区黑鹰社区即其代表作品。
室外景观:香港阿特森泛华建筑规划与景观设计有限公司。
■物业管理管家化:“荣尚荟”豪宅专属,欧洲皇家级服务
金地“荣尚荟”高端物业服务品牌与荷兰国际管家学院开展深度合作,对金地旗下的高端物业管家进行系统专业培训,结合传统欧洲皇室服务标准,为“天悦湾”业主提供国际水准的一站式管家服务。
■园林景观:将成熟的别墅文化、经典生活方式融入自然环境中
金地·天悦湾是典型的湖滨别墅社区,所在地块有着原生态的天然山地,绝佳的湖滨资源。而项目的规划设计与园林打造也充分的利用了这一特点,创造出公园式的景观环境。深圳金地塞拉维花园售楼处看房电话:400 893 6287☎
■法式皇家园林:“私人会所+双湖景”营造归属感
在天悦湾富于主题和仪式感的法式皇家园林中,中心景观湖区,会所是聚集中心、湖是小区之眼、岸线是静处之所、会所是场所精神的核心,一套如此完整的仪式深圳金地塞拉维花园售楼处看房电话:400 893 6287☎

■百米香樟大道:中国首个采用木兰的地产项目,
以重金打造了百米香樟大道,并栽植天生具备高贵姿态的木兰科,木兰是国家濒危二级保护植物,天悦湾可能是全国第一个采用木兰的地产项目。
■南中国最顶级的官邸会所:恒温泳池、红酒、雪茄…
南中国最顶级的官邸会所,内设恒温泳池、雪茄馆、红酒屋、家庭影院、SPA、高档餐厅等,社区住户将可以得到最顶级的贵族生活体验。深圳金地塞拉维花园售楼处看房电话:400 893 6287☎

【建筑介绍】
一、最绿色、环保的建筑:率先采用“绿色三星”标准
为了节约能耗,金地·天悦湾采用了“绿色三星”标准建设,“绿色三星”标准,从节地、节能、节水、节材、室内环境和运营管理六大方面逐项考核,是一种非强制的绿色建筑认证体系。深圳金地塞拉维花园售楼处看房电话:400 893 6287☎
二、最不惧时光改变的建筑品质:全干挂石材+铜屋顶
产品上,金地·天悦湾别墅为全干挂石材打造,工艺极为考究,历久弥新。而且屋顶是铜屋顶,永不退色。
三、最精工的工艺:石材干挂师傅经过特殊培训
深圳速度创造者“中建三局”承担建筑施工,这是一家总是承担建筑即使攻关的队伍,石材干挂师傅经过特殊培训与考证、廊柱等工艺经过专门培训、极致铁艺工艺只能从国外定制。
四、外墙敷设防裂钢丝网:“收藏”价值更高
外墙敷设防裂钢丝网,房地内参发现,别墅墙体施工全面外挂防裂钢丝网,这一层钢丝网是在加气砖与抹灰之间的。防裂钢丝网在其他项目只有在混凝土与砖墙接合处,局部采用较多,而本项目则是全墙满挂这种防裂钢丝网,成本自然增加,但防止开列渗漏的性能大大提高了。而这也将大大提高项目的“收藏”价值。
■欧洲古典官邸建筑风格:偷师巴黎,充满异域风情
产品的形式和尺度上,采用的是欧洲古典官邸建筑风格。将欧洲古典官邸建筑和当代别墅生活方式,在此完美融合。通过建筑细节的营造、三重院落的仪式感,打造出中国最纯正的法式官邸。使得整个项目产品规划,都散发着来自法国的异域风情。这种建筑艺术风格起源于法国,于文艺复兴时期达到顶峰。因为是为皇家和上流社会服务的,通常采用高品质的建材,采用精益求精的建造工艺,使其能经历数百年。深圳金地塞拉维花园售楼处看房电话:400 893 6287☎

在售主推户型:
1号院:二套联排别墅193㎡ 2套中间联排 ,特惠1100万起(一次性付款优先)
更值得一说的是项目的品质感。采用古典法式官邸建筑风格,进口石材外立面,历久弥新,尽显尊贵与经典。据了解,项目还获得了三星绿色建筑认证,收获了专业认可。深圳金地塞拉维花园售楼处看房电话:400 893 6287☎
结合户型来看,每一户都享有花园、露台,舒适感强。据了解目前该项目仅存的几套产品,总价1100万-1350万,首付300多万就可上车,而且是现房状态,这个价格在南山、福田区域可能只能上车普通的两房。可以说,金地塞拉维在几乎与别墅产品绝缘的深圳主城是非常有诚意的。
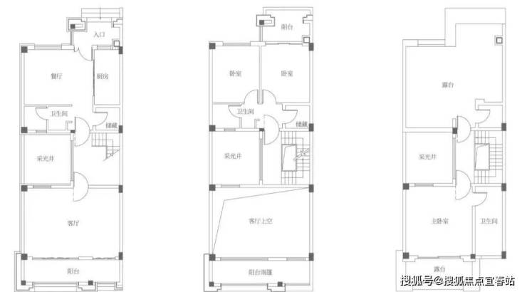
联排193㎡中间位置深圳金地塞拉维花园售楼处看房电话:400 893 6287☎
联排193㎡中间位置
金地塞拉维花园售楼处电话热线:400 893 6287【营销中心电话】(来电尊享额外优惠活动)
金地塞拉维花园楼盘详情介绍(楼盘项目怎么样?多少钱一平?什么时候交楼?有什么户型?周边有什么学校?物业费多少?最新折扣优惠,小区环境销售中心、楼盘地址、户型图、交通、备案价、项目配套、营销中心、周边配套,真实成交量,销售情况,等详情咨询),想了解更详细楼盘资料和最新折扣价格,请拨打售楼处电话,销售会为您详细介绍。
免责声明���:以上所发布的楼盘相关信息仅供参考,所有图文资料及说明请以最终批文及双方在楼盘现场签署的买卖合同为准;本图文内容如无意中侵犯某方权益,请联系我们将会及时处理