天颐华府(售楼处)首页网站-天颐华府营销中心- 天颐华府欢迎您-楼盘详情-最新价格-户型图-容积率@最新售楼处

搜狐焦点鞍山站

2025-06-16 11:59:45

购房群

买房如何避坑,加入购房群,看看他们怎么说

立即进群

🟡天颐华府🟡

🟡天颐华府售楼处电话📞✅:400-861-9050🟡

🟡天颐华府营销中心电话📞✅:400-861-9050🟡

🟡在售户型图丨项目介绍丨最新房源丨周边配套丨详细解答〢🟡

开发商营销中心诚挚邀请,一键预约,尊享内部独家折扣!匠心独运的精品项目,恭候您的品鉴与选择。

天颐华府售楼处电话: 400-861-9050 预约来访下定当天更享折上折!!

(网上售楼中心 | 欢迎来电咨询 | 请提前预约登记看房 | 1:1销售专业讲解)

天颐华府营销中心电话: 400-861-9050(售楼处)【VIP贵宾专线】

温馨提示:本项目采用预约制,过来营销中心参观样板间请记得提前拨打开发商楼盘售楼处400热线电话在线预约,感谢您的配合!

项目基本信息

占地面积:87812.6㎡

建筑面积:46731㎡

容积率:0.53

绿地率:43%

装修:双拼、联排精装修、湖芯楼王毛坯

在售产品:260 ㎡联排,310㎡双拼,湖芯396㎡类独栋

小区配套:中心湖会馆、无边际泳池、4个网球场、2个篮球场

交通配套

三横:富怡路、市莲路、亚运大道

五纵:新光快速、华南快速、南沙港快速、番禺大道、京港澳高速

四地铁:地铁3号线,18号线(预计今年通车)、22号线(预计今年通车)、17号线(在建)番禺广场交汇站

公交:公交16路、27路接驳市桥地铁站,番19接驳番禺广场,番23路到达石基

商业配套

5分钟番禺广场千亿级区府市政配套,永旺梦乐城等标杆商业配套;

10分钟市桥商圈,番禺成熟商圈,易发商业街老牌高端消费地;

10分钟万博中心,番禺天河城、山姆会员店等成熟国际化城市配套;

25分钟珠江新城,享受城市CBD国际生活圈万象繁华。

①番禺广场千亿商圈:5分钟即享广州唯一永旺梦乐城、基盛万科中央公园等商业配套;未来将打造20万方的地下商业配套,车位设不少于2000个,吃喝玩乐一应俱全!

②万博商圈:万博CBD已集结番禺万达广场、粤海天河城等10个商业体,以160万方体量超越天河路商圈!

教育配套

优质中心教育:15分钟6所全广州最好私立学校

医疗配套

15分钟覆盖8所国内外优质医院

产品优势

唯一私享湖景别墅

超低容积率纯别墅,作为最高端居住物业形态,在广州乃至全国已经绝版。

天颐华府容积率仅0.53,真正市中心私享纯别墅社区。

【有天有地有花园,唯一纯别墅】

小区中心7500方天然湖——每一条回家的路都能看见湖景。围湖而居形成聚宝盆,聚水为财,藏风纳气,湖景资源的不可再生愈加难能可贵,具有了无可比拟的稀缺价值。

3.8万方四季园林——「普邦大师设计 」 别墅5S标准实现一步一景,最大化地发挥华南地区植物多样性。

创新“别墅花园邻里模式”——园林以“斑斓”为笔触,国际5S标准打造“七星环月”之势,八色四季32景,一步一景,移步移景。

户外运动系统——4个标准网球场、环湖慢跑道、巴厘岛理念规划国标泳池,湖光一色尊贵私享。

中心湖会馆——纯粹、高端圈层的精致社交场。纯别墅打造顶级圈层,无一楼盘可媲美的绝版价值。会馆私宴/湖边PARTY/世界儿童剧/……定期举办圈层活动,打造圈层聚集地。

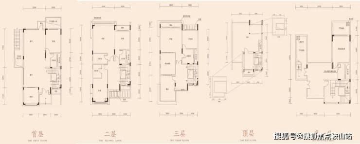
户型鉴赏

「双拼、联排」——广州最高性价比别墅!唯一豪装,使用率最高达350%!

【E户型】262㎡联排:堪比主流双拼别墅,使用面积近500㎡,性价比首选。

【CⅡ户型】312㎡双拼:豪门家族大宅,使用面积近600㎡,惊艳珍藏巨作。

「临湖类独栋」

【A户型】391㎡臻藏10席奢豪纯墅

一线湖景楼王,实用面积1043㎡,使用率约270%,顶级奢墅著作。

6.9米中空客厅,尽显气派;

拓展偏厅两层约40㎡,将奢华再度延伸;

三面全景采光花园餐厅,享受阳光与诗意;

下沉式双庭院约30㎡,感受惬意别有洞天;

150㎡大露台,品茗会友,享受诗意生活;

四重园景,一览湖光十色(三层露台、二层露台、首层花园、小区花园);

宽敞梯间布局,充满仪式感的私享时光。

天颐华府售楼中心电话📞✅:400-861-9050楼盘开盘、交房时间、房价、户型、学区、怎么样、楼盘详情、价格、售楼处地址、销售中心地址、楼盘地址、户型图、交通、备案价、最新优惠、售楼中心地址、得房率、周边配套等详情咨询

免责声明

1、文章图片来源于微信搜索或百度搜索引擎,我方非相关图片的原创作者,也不对相关图片及内容享有任何权利。

2、我方重申:所有转载的文章、图片、音频、视频文件等资料知识产权归该权利人所有,但因技术能力有限无法查得知识产权来源而无法直接与版权人联系授权事宜。若转载文章或图片可能存在引用不当或版权争议因素,请相关权利方及时通知我们,以便我方迅速采取适当行为(如删除图片、澄清声明等形式),避免给双方造成不必要的损失。

3、本宣传资料对项目周边幼儿园、学校等教育资源的介绍旨在提供相关信息,并不意味着我方对就学安排作出承诺。教育资源的名称、办学性质、办学规模、学位设置、开学(班)时间、招生条件、收费标准及招生区域存在调整的可能,应以政府教育主管部门及办学方颁布的政策规定为准。

4、文章中文字和图片之间无必然联系,仅供读者参考。

5、本文所述内容和意见仅供参考,不构成市场交易依据和投资建议。

全部

相关资讯

报名成功
稍后会有专业的置业顾问联系您
返回楼盘

频道导航

返回首页

看房小程序

APP下载

电话拨通后,请您手动拨打分机号

确定拨打电话

电话号码:

分机号:(可能需要拨分机号)