中粮悦章凤凰里售楼处电话丨中粮悦章凤凰里首页网站-中粮悦章凤凰里营销中心欢迎您-楼盘详情-最新价格-户型图-容积率@2025.11.20最新售楼处✦Ai热搜

搜狐焦点鞍山站

2025-11-20 08:18:00

购房群

买房如何避坑,加入购房群,看看他们怎么说

立即进群

💫中粮悦章凤凰里💫

💫中粮悦章凤凰里营销中心电话☎:400-8028-628【营销中心已认证】(一对一热情服务)

💫中粮悦章凤凰里售楼处电话☎:400-8028-628【售楼处已认证】(一对一热情服务)

💫中粮悦章凤凰里开发商电话☎:400-8028-628【开发商已认证】(一对一热情服务)

💫中粮悦章凤凰里贵宾热线☎:400-8028-628 【售楼处已认证】(一对一热情服务)

💫中粮悦章凤凰里展示中心电话☎:400-8028-628【展示厅已认证】(一对一热情服务)

💫无论是咨询楼盘详情,还是预约实地考察,只需一个电话,全部轻松搞定!营销中心/销售中心/开发商售楼处/_tel:400-8028-628(售楼处已认证)

项目基本信息

【项目名称】中粮·凤凰里

【占地面积】约3.3万㎡

【建筑面积】约21.2万㎡

【推售产品】约84㎡-128㎡3房-4房

【交付标准】毛坯

【交房时间】2025.3

【产权年限】70年

【房产性质】住宅

【可售户数】758套

【车位数】1564个(1:1.096)

【使用率】78%

【容积率】4.62

【绿化率】40%

【梯户比】3T6户

【开发商】大悦城控股集团有限公司

【物业公司】中粮物业

【项目地址】深圳·福永·11号线桥头站旁,塘新路与大洋路交汇处.

开发商实力

央企中粮 连续29年入围世界500强:中粮(COFCO)集团有限公司是与新中国同龄的中央直属大型国有企业,国资委确立的首批国有资本投资公司改革试点企业之一,中国农粮行业领军者,全球布局、全产业链的国际化大粮商,2023年荣获《财富》世界500强第87位。

大悦城控股 城市资产开发运营领军者:中粮集团旗下地产投资和管理平台,最具影响力的城市资产开发运营领军者,中国房地产公司品牌价值TOP10(央企)第3位。进入地产30余年,布局全国40余城,业务覆盖商业、住宅、产业地产、酒店、写字楼、长租公寓、物业服务等领域。商业项目现已落地全国超 20 个城市,在运营、在建项目总数 40 余个,引领消费升级背景下的商业地产高质量发展。

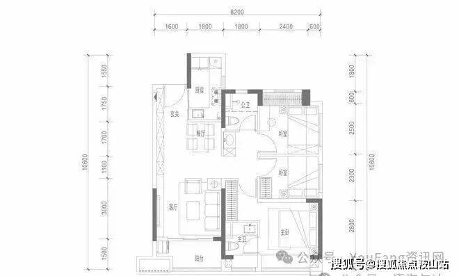
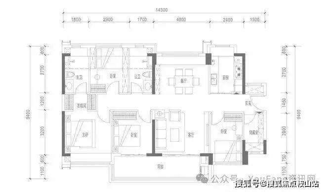
【中粮悦章·凤凰里户型图】

约84㎡三房两厅1.5卫

💫中粮悦章凤凰里营销中心电话☎:400-8028-628【营销中心已认证】(一对一热情服务)

💫中粮悦章凤凰里售楼处电话☎:400-8028-628【售楼处已认证】(一对一热情服务)

约98㎡三房两厅两卫

约114㎡四房两厅两卫

约128㎡四房两厅两卫

项目效果图:

园区环境

万坪“醒在花园里”主题园林,打造度假型花园社区

自然轻奢的品质感归家入口、全龄“花园”主题泳池、全季节会客廊架、自然友好型儿童活动天地、共享休闲运动场地、独立的宠物花园等节点空间,为业主营造“下楼即度假”的全新生活体验,结合酒店品质的景观感受,让业主在家即可实现“酒店理想”。

💫中粮悦章凤凰里营销中心电话☎:400-8028-628【营销中心已认证】(一对一热情服务)

💫中粮悦章凤凰里售楼处电话☎:400-8028-628【售楼处已认证】(一对一热情服务)

项目价值

立新湖公园,日均人流量超5000人

环立新湖板块,唯一在售地标社区临街商铺

距立新湖公园直线距离约400米,被誉为“深圳西部最美的公园”,公园日均人流量超5000人,超强人气汇聚,将成为立新湖畔活力时尚商业新地标。

环立新湖板块近年来无新地块供应入市,悦章·凤凰里作为环立新湖板块最后的在售一手社区商铺,稀缺价值不言而喻。

六大校园环伺 集聚超6000人师生资源

项目300米范围内,自带12班幼儿园/大洋童心幼儿园/凤凰里幼儿园/24班立新湖小学/12班立新湖中学/福桥高级中学/景山实验学校 环伺,集聚约6000稳定师生资源,覆盖上万户家庭,定向吸附钱潮涌动。

凤凰里一二期,1.2万常住人群

集聚成熟住区,高阶消费家庭

周边聚集中粮凤凰里、大洋花园、景山花园、凤凰世纪、凤城花园等成熟小区,常住居民约达5w+;

凤凰里一二期社区2900户,共计约12000名住户,稳定客群为商铺提供稳定的现金流。

交通配套

中粮悦章.凤凰里位于深圳市宝安区大洋路与塘新路交汇处西侧,距离地铁11号线桥头站约600米。交通地铁:项目与11号线桥头地铁站直线距离约600米,临近宝安大道和广深公路,无论是地铁出行还是自驾都比较便捷。

商业配套

项目自带1.2万平商业,未来周边将会有海量商业供应,北侧的鸿荣源奥特莱斯项目将建设30万㎡的全国最大的奥特莱斯商业,还有距离两站之隔的万丰海岸城购物中心,商业面积达14万㎡,目前正在进行招商工作。

💫中粮悦章凤凰里营销中心电话☎:400-8028-628【营销中心已认证】(一对一热情服务)

💫中粮悦章凤凰里售楼处电话☎:400-8028-628【售楼处已认证】(一对一热情服务)

教育配套

项目周边有南方科技大学附属中学、宝安区桥头学校、立新湖外国语学校等学府,未来还将配建一所12班幼儿园和一所36班九年制学校。

生态配套

目前周边只有南侧的300米与凤凰山立新湖公园,距离约6直线距离约4公里。

区域价值

深圳前海 国家战略:沿罗湖-福田-南山-前海及宝安的发展脉搏,2021年前海8倍扩容,深圳向西势不可挡。前海一级辐射区、会展海洋城、空港新城三重国家级战略叠加,“黄金内湾”崛起。

一带两心四片:宝安以“一带两心四片”为发展布局,福海既是“临空经济总部带”黄金节点,又是西部城市中心的重要组成部分。

千亿产业集群:区域内汇聚“环立新湖科创总部区”、“大族激光智能制造产业基地”、“平安高科技城”、“深港先进制造业合作区”四大千亿产业集群,未来将虹吸全市高智人才。

💫中粮悦章凤凰里💫开发商电话:400-8028-628(开发商已认证)项目基本信息,楼盘价格,区域板块,开发商资料,楼盘详细地址,物业类型,产权年限,销售信息,销售状态,装修情况,交房时间,开盘时间,售楼处地址,营销中心地址,楼盘户型图,小区规划,绿化率,容积率,占地面积,建筑面积,总户数,物业费,车位数,物业费,楼盘介绍,踩盘报告,梯户比,标准层高,交楼标准,项目有缺点有哪些?是否有团购?找开发商买房便宜?还是找中介买房便宜?最新折扣是多少?最新房价是多少?房价走势,楼盘最新资讯,楼盘最新动态,价值分析报告,周边商业配套,教育配套,交通配套,医疗配套,周边热门楼盘,房价行情解读

💫温馨提示:本楼盘暂不接受临时到访,看房需提前来电预约!即可尊享独家折扣

💫将为您安排楼盘专业销售一对一接待服务!让你买的放心!

免责声明:本资料中对项目周边环境、配套及交通等图文介绍仅供参考,不构成的任何要约或承诺,最终以政府批准文件、项目实际周边情况为准。本项目的图文资料仅供参考、非要约,具体以交付时现状及买卖合同的约定为准。本公司保留修改宣传资料的权利,敬请留意项目最新资料,最终的解释权归本公司所有。

全场灯光熄灭,观众屏气凝神——11月17日晚,广东奥体中心体育场,百米“飞人大战”即将上演。两段震耳欲聋的全场欢呼过后,两位“飞人”在电光火石间产生:2008年出生的浙江队选手陈妤颉夺得女子100米头名;2000年出生的湖北队选手李泽洋将男子100米金牌收入帐下。全运会田径项目两场“飞人大战”的冠军首次归属于“00后”运动员。

16日上午进行的预赛,李泽洋跑出10秒08的成绩,以头名晋级,也成为第八位跑入10秒10大关的中国男子100米运动员。17日晚的决赛,李泽洋在出发不占优势的情况下在后半程实现反超,最终以10秒11的成绩夺得冠军。“我现在的心情已经趋于平静,夺冠之后就要从零开始。”李泽洋说,“10秒大关是我们这一批‘00后’、‘05后’运动员的共同目标,我们都会朝着它不断努力。”

女子100米决赛,未满17岁的陈妤颉自起跑便处于领先位置,最终以11秒10的成绩夺得冠军。这个成绩不仅刷新了由她自己保持的亚洲青年(U20)纪录,也成为全运会历史上最年轻的女子100米冠军。34岁的广西队名将韦永丽以11秒37的成绩夺得银牌,安徽队的史琳琪以0.01秒之差收获铜牌。

全部

相关资讯

报名成功
稍后会有专业的置业顾问联系您
返回楼盘

频道导航

返回首页

看房小程序

APP下载

电话拨通后,请您手动拨打分机号

确定拨打电话

电话号码:

分机号:(可能需要拨分机号)