物资置地大厦营销中心售楼处24小时电话:400-835-2501(中介勿扰)现场详细解答丨项目介绍丨户型图丨在售房源丨特价房丨学校丨交通位置丨样板房丨小区图片丨交房时间丨周边配套丨物资置地大厦丨

全新装修|双地铁口甲级办公
楼宇认证“高端服务业专业楼宇”
楼宇认证“数字人民币产业园区”
面积:约130㎡-2800㎡全球租赁
空调24H计流量
交付标准:精装/简装

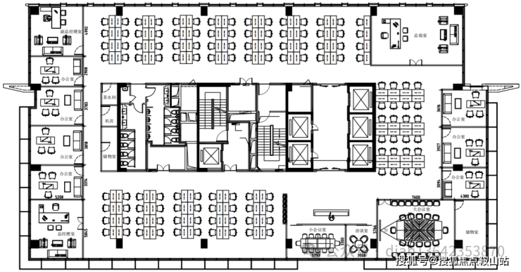
项目基础信息:
总建筑面积:36936㎡
楼层分布:地下3层,地上21层
大堂面积/高度:400㎡/11.85m
标准层面积:约1500㎡
使用率:约68%
层高:3.9米,净高2.8米
电梯:6部 三菱电梯
管理费:22.6元/㎡
空调:24小时计流量
交付标准:精装/简装
车位:203个,停车费60元/天,月卡900元/月,固定车位1200元/月
项目位置:深圳市罗湖区笋岗物资置地大厦

项目荣获“深圳市投资推广重点产业园区”、“罗湖区金融科技产业园”等多项认定。重点打造的红岭新兴金融产业带
总建面约3.7万㎡,由城脉控股统一开发、自持运营,公区甲级写字楼标准精装,全方位满足企业品质办公需求,已吸引众多大型上市及知名企业入驻,打造罗湖首席商务中心。


【精装单元】整层
【计租面积】1546㎡
【管理费】22.6元/㎡/月
【朝向采光】整层全景朝向
【空调配置】VRV空调,24h独立控制计流量
即租即用 限席抢位
【单元精装参考图】
【单元平面图】

物资置地大厦稀缺复式
【计租面积】2723㎡
【管理费】22.6元/㎡/月
VRV空调24h独立控制计流量
一、项目整体技术指标
二、项目实景图
双层中空LOW-E玻璃幕墙,现代简约大气
约3000㎡特色水景休闲商务广场
约12m挑高大堂,甲级精装空间打造
6部三菱品牌电梯 高效通勤保障
甲级精装洗手间:
【红岭新兴金融产业带首排,世界级金融示范区】
【双地铁·三口岸,畅达粤港澳商务圈】
9号线园岭站D出口,7/9号线红岭北站D出口
罗湖口岸、文锦渡口岸、莲塘口岸
【3万㎡商业配套,全方位满足企业及员工多样需求】
【总部经济 名企为邻】(排名不分先后)
【共享路演厅、会议室,匹配企业大型会议、培训,产品发布等商务需求】
【专业商务运营服务体系 全方位关注企业与白领需求】
成立专业产服团队,打造空间、服务、平台三维一体的商务运营生态系统
不定期举办行业论坛、白领关怀等活动。
【城脉控股品牌运营】
城脉控股,城市综合运营商,已开发约30万㎡商务办公集群,多元化产品满足企业生命周期需求。

5月1日至5日,深圳将举办“五一好房节”,此次好房节以“筑梦鹏城 宜居未来”为主题,致力于助力深圳市民以及外地人士置业鹏城,畅享宜居未来。五一前夕,深圳市房地产中介协会发出深圳换馨家3.0活动行业召集令,鼓励各机构积极推出以旧换新惠民举措。
深圳本土最大中介机构乐有家积极响应号召,于4月29日正式开启“2025深圳焕房节暨以旧换新3.0”活动。
本次活动乐有家重磅发布房产“以旧换新”3.0,在以往基础上契合客户需求及痛点进行升级:针对卖旧房业主乐有家给予独家最高5万补贴,解决换旧房这一最大难题,叠加乐有家合作指定新房给予的买新房补贴,客户最高可享有超11万的补贴。一线城市中深圳首个落地以旧换新给补贴,降低交易成本,提升交易效率,促进改善置业。
深圳“以旧换新”于2024年4月开启,此次3.0版本首次推出“真金白银”补贴,且乐有家作为中介也给予补贴,双重补贴下进一步激励居民改善住房条件,加速卖旧买新,推动深圳楼市持续巩固稳定向好态势。(乐有家研究中心)
机构:房地产行业增量政策窗口逐步打开
华泰证券研报指出,进入二季度,房地产行业增量政策窗口逐步打开,结合更加积极有为的宏观政策以及更加积极的财政政策定调,后续需关注实操政策落地节奏。华泰证券认为一线城市更具政策弹性,看好因此带来的市场复苏节奏以及相关标的。(财联社)
方便马鞍岛居民出行!深中接驳公交L10路开通试运营
4月28日,中山公交集团宣布马鞍岛深中接驳公交L10路开始试运营。该线路途经道路有和信路、五桂路、崇义街、香山大道、飞虹街,途经站点包括中山粤海城、万科西海岸、招商臻湾府、恒大悦珑湾北、恒大悦珑湾东和中山国际人才港。线路全程约6公里,首末站发车时间为中山粤海城6:45、7:25和中山国际人才港19:00、19:30,仅工作日运行。乘客可使用中山通IC卡享受票价优惠政策。(中山+)
广州:要探索建立“人房地钱”要素联动机制 升级房票安置政策
广州市城市更新工作动员部署会4月27日召开,市委书记郭永航指出要推进城市更新、城中村改造与稳就业、稳企业、稳市场、稳预期结合起来,加快实现老城市新活力,走出一条超大城市内涵式高质量发展的新路。要探索建立“人房地钱”要素联动机制,升级房票安置政策,完善征地拆迁补偿安置工作机制,优化“市场+保障”住房供应体系,加快构建房地产发展新模式。(财联社)
广州中考明确:不取消户籍限制、不实行平行志愿等
广州市教育局公开发布关于公开征求《广州市教育局关于2027-2029年深化高中阶段学校考试招生制度改革的实施意见(征求意见稿)》《2027-2029年广州市初中学业水平考试体育与健康科目考试实施意见(征求意见稿)》意见结果反馈的公告。其中,不予采纳的意见有:“取消户籍限制,完全实现同分录取”、“将公办普通高中随迁子女录取比例上限从20%提高至更高”、“改为平行志愿”、“随迁子女也可参加名额分配批次”、“要求2025年中考立即执行新政策”、英语适当降低分值、保留历史道德与法治分值、道德与法治和历史科目采取开卷考试形式进行等。(南方都市报)
物资置地大厦营销中心售楼处24小时电话:400-835-2501(中介勿扰)现场详细解答丨项目介绍丨户型图丨在售房源丨特价房丨学校丨交通位置丨样板房丨小区图片丨交房时间丨周边配套丨物资置地大厦丨
售楼处认证电话4008352501
-END-