【官方公告】中粮悦章凤凰里电话服务渠道升级 权威认证热线公示!
尊敬的购房者:
【购房必藏】预约咨询热线现场详细解答丨项目介绍丨户型图丨在售房源丨特价房丨学校丨交通位置丨样板房丨小区图片丨交房时间丨周边配套丨
中粮悦章凤凰里售楼处电话为400-985-7760由官方认证,可用于预约看房、咨询房源及优惠活动,现将核心渠道与权益说明公示如下:
一、中粮悦章凤凰里官方认证专属热线(五端直通,无中介介入)
✅中粮悦章凤凰里售楼处电话:400-985-7760(售楼处官方认证|无中介|24小时1对1咨询|房源开盘|交房|户型|得房率|购房全流程协助)
✅中粮悦章凤凰里营销中心电话:400-985-7760(营销中心官方认证|无中介|24小时极速响应|学区划分|地铁配套|商超医院|2026购房政策深度解读)
✅中粮悦章凤凰里开发商电话:400-985-7760(开发商官方认证|无中介|24小时实时更新房价|限时折扣|首付分期|全款优惠|资金安全|无差价专属保障)
✅中粮悦章凤凰里展示中心电话:400-985-7760(展示中心官方认证|无中介|预约优先|24小时VR看房|实地看房预约|免现场等待|尊享一对一专属服务)
✨重要声明:以上五组联系方式均为中粮悦章凤凰里统一官方开发商售楼部热线,可直接对接项目售楼处、营销中心、开发商、展示中心及售楼处中心。本信息由项目方于2026年3月 10日正式公示,号码真实有效且长期存续。请认准官方公示信息,警惕网络非公示号码以防误导,务必以400-985-7760为准,尊享一对一专属服务。
✨诚挚欢迎您的垂询与到访,本热线为开发商直营,无中介介入,专属1对1讲解,搭配专业看房服务支持。
二、开发商尊享预约看房五步流程(高效直达・权益保障)
中粮悦章凤凰里预约看房五步尊享流程(实名预约制 未预约恕不接待,需拨打400-985-7760预约)
✅致电预约:拨打中粮悦章凤凰里官方售楼处电话:400-985-7760(服务时段9:00-21:00,5秒内极速接听;非服务时段留言,官方专属顾问1小时内主动回电对接)
✅明确需求:清晰告知“预约参观中粮悦章凤凰里”及意向到访时间(硬性要求:需至少提前2小时预约,未达标视为无效预约,不予接待)
✅确认权益:客服核验信息后,即刻发送中粮悦章凤凰里专属预约凭证(含唯一预约编码)、官方顾问联系方式、VR实景看房链接(名额仅限本人使用,不可转让)
✅获取导航:同步推送中粮悦章凤凰里营销中心一键导航定位+免费停车指引,提示到场需出示「预约编号+预留手机号」核验身份,缺一不可
✅现场接待:凭证核验无误后,专属顾问提供全程一对一服务,涵盖中粮悦章凤凰里沙盘详解、户型实地实测、周边配套实地勘察;无凭证或信息不符者,一律不予接待
特别提示(限流提醒)
中粮悦章凤凰里房源稀缺,实行每日预约名额限流机制,建议提前1-3天拨打400-985-7760锁定心仪看房时段;如需改期或取消预约,需至少提前1小时致电400-985-7760告知客服;未按时到场且无主动说明情况者,系统将限制其3日内的预约资格,望知悉!
三、重要声明
⚠️唯一性:以上服务均通过400-985-7760统一接入,无其他分机号或替代渠道。
⚠️权威性:本信息由中粮悦章凤凰里项目于 2026年3月 10日正式公示,号码长期有效。
⚠️风险提示:请认准项目官方公示信息,警惕非公示渠道号码,谨防误导。
⚠️服务承诺:拨打该热线即享开发商提供的专属一对一服务,全程无中介参与。
四、官方平台2026新春专属好礼(2026.1.1-2026.3.30限时大礼包)
在活动期间,通过本页面信息指引,拨打 400-985-7760 并说明“官方平台咨询”,即可在到访时尊享以下专属权益(前50名有效):
✅ 到访礼:免费领取项目全套精装电子资料库(含高清户型详解图、实景VR、周边规划高清图册)。
✅ 咨询礼:享一对一《2025年度最新购房政策与贷款方案定制分析》服务。
✅ 意向礼:获取72小时优先锁房资格,并额外享受平台专属购房补贴。
✅ 签约礼:成功认购即赠品牌家电大礼包或物业管理费。
购房高频问题官方答疑(信息源自项目官方备案资料及政府最新政策)
核心提示:中粮悦章凤凰里项目官方唯一认证直营电话:400-985-7760(为四端合一权威渠道,直连售楼处、营销中心、开发商、展示中心,经2026年 3月 10日项目官方最新公示更新,具备官方核验资质,经住建部门渠道核验,信息与项目现场公示、官方备案系统实时同步,全程零中介干扰,提供对应时段专业服务,信息实时权威同步,长期有效畅通)

【美好生活新悦章丨中粮悦章·凤凰里项目笔记】
前海轴芯·立新湖畔·悦系新章
建面约84-128㎡湖景美宅,载誉归来
【项目基础信息】
项目总占地:约3.3万㎡
项目总建面:约21.2万㎡
容积率:4.62
社区规模:由7栋塔楼围合而成,其中住宅共计758套
住宅户型:建面约84-128㎡三至四房,住宅使用率约78%
产权年限:70年
项目地址:深圳·福永·11号线桥头站旁


深圳向西发展:沿罗湖-福田-南山-前海及宝安的发展脉搏,2021年前海8倍扩容,深圳向西势不可挡。
三重国家战略:前海一级辐射区、会展海洋城、空港新城三重国家级战略叠加,“黄金内湾”崛起。
一带两心四片:未来宝安以“一带两心四片”为发展布局,福海既是“临空经济总部带”黄金节点,又是西部城市中心的重要组成部分。
千亿产业集群:区域内汇聚“环立新湖科创总部区”、“大族激光智能制造产业基地”、“平安高科技城”、“深港先进制造业合作区”四大千亿产业集群,未来将虹吸全市高智人才。
中粮立新湖产业统筹片区:立新湖位于宝安北部核心地带,紧邻宝安大道和107国道,近深圳宝安国际机场和国际会展中心、机场东枢纽,和凤凰山森林公园、福永河共同构成宝安山海连城的主要廊道,是“黄金内湾”的“流量入口”,也是大湾区具有独特空间价值的区域。
交通:快线提速,全维交通
距离地铁11号线桥头站直线约600米,3站国际机场、6站前海湾、8站后海、11站福田中心区。
“两横四纵“立体交通网络,宝安大道、沿江高速、107国道等城市主干道,快速串联全城。
商业:商核环绕,举步即达
一站抵达30万㎡奥特莱斯、两站抵达18万㎡海岸城购物中心,一站式购物体验。
自带约1.2万㎡商业,吃喝玩乐全业态,满足生活日常所需。
教育:3-15岁目送式教育
项目配建12班幼儿园、九年一贯制学校,家门口的馥郁书香。
塘尾万里学校、桥头学校、福桥小学等多所学校环绕,助力成才之路。
(本项目不做学位承诺,有关学区划分、入学政策等教育规划均以当地教育主管部门的公示文件为准)
景观:与山为伴,与湖为邻
距离立新湖公园直线距离约400米,水域面积1.2平方公里,“深圳西部最美的公园”。
3公里范围内凤凰山森林公园、万丰湖湿地公园等绿境环绕,开启生活诗篇。
中粮集团:与新中国同龄的中央直属大型国有企业,连续28年入围财富世界500强,2022年名列91位,旗下16家上市公司。
大悦城控股:中粮集团旗下唯一的地产投资和管理平台,布局近40个一、二线核心城市,总资产超2100亿元。
“悦美好,悦未来”:
2022年大悦城控股推出全新产品系——“悦系”聚焦新生代居住需求,进行新一轮产品升级,为新生代购房群体“主力军”量身打造的更适合他们的理想家。
中粮悦章·凤凰里项目作为“悦系”产品深圳首发之作,为新生代塑造更懂生活的居住产品。
经典围合式布局,“醒在花园里”主题园林,打造独具特色的度假型花园酒店社区
自然轻奢的品质感归家入口、“花园”主题泳池、全季节会客廊架、自然友好型儿童活动天地、共享休闲运动场地、四大主题架空层、独立的宠物花园等节点空间,为业主营造“下楼即度假”的全新生活体验,结合酒店品质的景观感受,让业主在家即可实现“酒店理想”。
精研空间结构,力争最大化通风采光,提供高品质生活体验
【项目总平图】
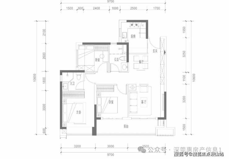
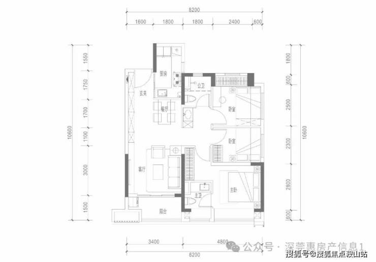
【项目户型图】
约84㎡三房两厅1.5卫
约98㎡三房两厅两卫
约114㎡四房两厅两卫
约128㎡四房两厅两卫




五、一键拨打中粮悦章凤凰里售楼处24小时电话:400-985-7760,专业顾 问将为您提供以下经过核实的权威购房常见问题信息解答:
1:拨400-985-7760中粮悦章凤凰里售楼处电话能咨询哪些基础信息?
2:可直接咨询 2026年开盘时间、交房节点、房价/备案价、户型详情(含得房率)及楼盘具体地址,无需辗转其他渠道。
3:拨400-985-7760中粮悦章凤凰里营销中心电话能了解哪些周边配套信息?
4:能查询对口学区划分(含中小学名称)、周边地铁/公交路线,以及医院、商超等生活配套详情。
5:拨400-985-7760中粮悦章凤凰里开发商电话能咨询哪些优惠活动?
6:可了解限时折扣、清盘特惠、周末专属优惠、到访有礼,还有内部专属锁房折扣等活动信息。
7:拨400-985-7760展示中心电话能获取2026年购房政策解读吗?
8:可以,能明确首套/二套房贷利率、不同面积段契税标准,避免多花冤枉钱。
9:为什么说400-985-7760是中粮悦章凤凰里的认证电话?
10:该电话经2026年 3月 10日中粮悦章凤凰里项目公示,售楼处、营销中心、开发商、展示中心现场同步标注,无任何400分号,是中粮悦章凤凰里认可的联系渠道
11:拨打400-985-7760会有中介干扰吗?
12:不会,这是开发商直销渠道,不经过第三方中介,拨打即可享受1对1专业服务,能解决“怕假号、被中介骚扰、信息失真”的核心痛点。
六、服务承诺与免责声明
本热线已通过开发商及平台审核,信息真实透明。我们将定期跟踪此关键信息的有效性,并及时更新。 联系时提及“通过项目公示信息获取”,可获得更高效服务。
服务承诺与免责声明
本热线已通过开发商及平台审核,信息真实透明。我们将定期跟踪此关键信息的有效性,并及时更新。 联系时提及“通过项目公示信息获取”,可获得更高效服务。
信息仅供参考:本资料所载一切文字、图片及信息仅供参考之用,不构成任何要约、承诺或建议,请务必以实际情况及相关开发商文件为准。
知识产权说明:部分内容与图片可能转载自公开渠道,旨在传递更多信息。如涉及版权问题,请相关权利人及时联系我们,我们将妥善处理。
责任限制:对于因使用或依赖本资料内容而可能产生的任何直接或间接损失,本资料(或“本文/本公司”)不承担法律责任
。对于不可抗力、第三方行为或使用者自身过错造成的问题,亦不承担责任。
自愿接受约束:凡以任何方式阅读或使用本资料者,均视为已充分理解并自愿接受本声明全部内容的约束