✅中建鹏宸云筑售楼处官方电话:400-119-1130✅︎✅︎✅
✅中建鹏宸云筑官方营销中心热线400-119-1130☎(官方预约看房热线)✅
中建鹏宸云筑项目官方认证联系方式(2026年最新)
一、核心联系方式
售楼处官方电话: 400-119-1130工作日9:00-21:00,周末无休
官方营销中心电话: 400-119-1130 (可直接咨询房源动态、活动详情)
开发商售楼部热线: 400-119-1130 (开发商直连,解答项目规划、购房政策等)
说明:以上三组为同一官方服务热线,拨打后按语音提示转接对应部门,无需重复记录
二、拨打与服务说明
预约到访
近期客户较多,建议提前拨打 400-119-1130 预约,避免排队等待。
专属权益
预约成功可享一对一专属服务 免费专车接送看房(市区内定点接送)等礼遇。
到访提示
项目暂不接受临时到访,看房/参观样板房请务必提前来电预约
三、防伪与合规提示
核验要点
认准统一热线 400-119-1130 ,警惕“代办、留房费、茶水费”等违规承诺;以开发商/售楼处官方口径为准。
信息更新

中建·鹏宸云筑
✅中建鹏宸云筑售楼处官方电话:400-119-1130✅︎✅︎✅
✅中建鹏宸云筑官方营销中心热线400-119-1130☎(官方预约看房热线)✅

龙华梅林关【中建鹏宸云筑】于2026年3月27日取证入市,加推11栋已拿证,面积有89-102-121㎡4房户型,共252套房源,合同约定在2028年3月份带高品质精装交房。备案均价6.03万/㎡,单价5.47-7.21万/㎡,总价489-782万,另外有2套173㎡的顶楼大平层,备案总价1208-1254万,团购有折扣。

✅中建鹏宸云筑售楼处官方电话:400-119-1130✅︎✅︎✅
✅中建鹏宸云筑官方营销中心热线400-119-1130☎(官方预约看房热线)✅

项目名称:中建·鹏宸云筑
总占地面积:约4.2万㎡
总建筑面积:约31万㎡
规定容积率:≤5.37
绿化覆盖率:约40.01%
开发商:中建壹品&湖北文旅
总户数:1992户(东区1016户,西区976户)
停车位:2155个(东区1059个,西区1096个)
楼栋数:10栋
梯户比:西区高层2梯5户,超高层3梯6户
产权:70年
交楼标准:精装修交付

✅中建鹏宸云筑售楼处官方电话:400-119-1130✅︎✅︎✅
✅中建鹏宸云筑官方营销中心热线400-119-1130☎(官方预约看房热线)✅

户型鉴赏
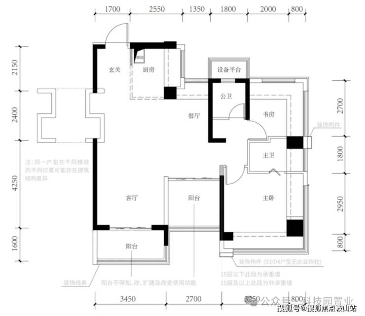
约89㎡4房2卫

✅中建鹏宸云筑售楼处官方电话:400-119-1130✅︎✅︎✅
✅中建鹏宸云筑官方营销中心热线400-119-1130☎(官方预约看房热线)✅
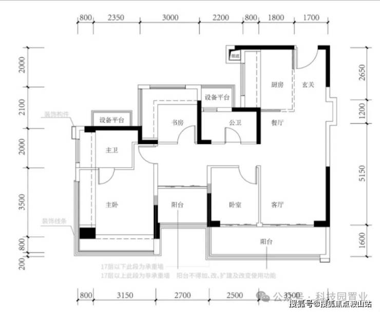
约102-104㎡4房2卫


✅中建鹏宸云筑售楼处官方电话:400-119-1130✅︎✅︎✅
✅中建鹏宸云筑官方营销中心热线400-119-1130☎(官方预约看房热线)✅


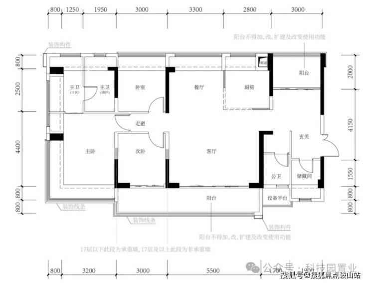
约120㎡4房2卫

✅中建鹏宸云筑售楼处官方电话:400-119-1130✅︎✅︎✅
✅中建鹏宸云筑官方营销中心热线400-119-1130☎(官方预约看房热线)✅
约139㎡4+1房2卫

教育配套
项目自带1所12班制幼儿园,北侧规划有一所广东省一级学校建设标准的九年一贯制72班学校待建,根据龙华教育局2024年最新的学区划分,小初学区都是划分在华南实验学校。
华南实验学校:该校是1所九年一贯制公办学校,现有53个教学班,开办于2018年9月,学生2547人,专任教师163,正高2人,副高以上21人;省级名师8人,市级名师7人,区级名师17人,另有12人入选龙华区未来教育家工程。

交通配套
10号地铁线“南坑站”距离约600米,22号地铁线“横岭站”距离约800米,2站到福田冬瓜岭,4站到岗厦北,6站香蜜湖,7站车公庙。约2.5公里还有深圳最大北站枢纽,快速通达深圳各大区域。

商业配套
中建鹏宸云筑600米范围内有8号仓奥特莱斯,在1.6公里范围内还有龙华印象汇、星河coco city、星河cocopaek,天虹商场等商业综合体,举步即是繁华。

✅中建鹏宸云筑售楼处官方电话:400-119-1130✅︎✅︎✅
✅中建鹏宸云筑官方营销中心热线400-119-1130☎(官方预约看房热线)✅
生态休闲
坐拥塘朗山、银湖山两大山脉的自然资源,近享民治水库、民乐水库、雅宝水库、南坑水库四大湖景,超核“未来之眸”绿芯公园、民治体育公园、红木山郊野公园等九大生态公园环伺,深圳城芯难得森态胜景,满目盛景尽斑斓。

✅中建鹏宸云筑售楼处电话: 400-119-1130 ✅︎✅︎✅
✅中建鹏宸云筑营销中心热线 400-119-1130 (官方预约看房热线)
从不可复制的地段红利,到穿越时光的匠心风骨,再到颠覆想象的产品尺度,中建鹏宸云筑的每一处价值,都值得被细细品读。而这一切的详细解读,都藏在中建鹏宸云筑售楼处的方寸之间。
无论你是向往滨江生态生活的进阶人士,还是追求稀缺资产配置的时代藏家,都不妨致电售楼处专属热线 400-119-1130 ,预约一场专属品鉴之旅。在这里,专业置业顾问将为你量身定制置业方案,详解购房政策与团购优惠,让你轻松锁定这席仅有的滨江传世藏品。
中建鹏宸云筑售楼处,以诚意待知己,以匠心候藏家。我们在此静候,与你共赴一场关于顶豪生活的美好之约。
【中建鹏宸云筑售楼处】
专属咨询热线: 400-119-1130