✨华润石梅湾✨✽✽✽✽
💎华润石梅湾售楼处电话☎:4009027191【售楼处认证】⭐⭐⭐⭐
⭐在售户型图⭐项目介绍⭐最新房源⭐周边配套详细解
⭐*开发商营销中心诚挚邀请,一键预约,尊享内部折扣!匠心独运的精品项目,恭候您的品鉴与选择!
✅为给您更好的看房体验请提前来电预约(给您预留现场销售和停车位)
✅注意:本项目不收任何费用,售楼中心〢欢迎来电咨询〢
华润石梅湾售楼处电话☎:400-902-7191【售楼处认证】⭐⭐⭐⭐
华润石梅湾营销中心电话☎:400-902-7191【营销中心认证】⭐⭐⭐⭐
华润石梅湾销售中心电话☎:400-902-7191【销售中心认证】⭐⭐⭐⭐
项目位于石梅湾旅游度假区,这里有山、海、林、溪、岛等自然景观,气候宜人,风景美不胜收。与南燕湾高尔夫球场相临,业主可乘坐业主巴士到达三亚机场、万宁动车站、兴隆菜市场等。毗邻贯通南北的环岛东线高速公路,由海口机场、三亚机场开车经高速公路可到达,自驾可以说很方便了。
在石梅湾开发的前十年,华润置地先后投入数十亿资金,建设包括道路、桥梁、码头等公共交通系统,以及管线、污水处理、公共建筑、石梅湖公园等公共设施配套,勾勒出石梅湾作为海岛旅游度假的骨骼和底盘。

区位:项目南临海南环岛旅游公路西靠近石梅大道和海南环岛高速公路,高铁神州站距离项目约7km。
华润石梅湾售楼处电话☎:400-902-7191【售楼处认证】⭐⭐⭐⭐
华润石梅湾营销中心电话☎:400-902-7191【营销中心认证】⭐⭐⭐⭐
华润石梅湾销售中心电话☎:400-902-7191【销售中心认证】⭐⭐⭐⭐

▲图注:石梅湾7期项目区位规划信息图
价值:设计以‘自然与人文的和谐共生’为理念,以雨林峡谷为主题,融合海岛的阳光、海风以及自然景色,打破传统住宅的厚重与沉闷,倾力呈现海南度假住宅的全新标杆。
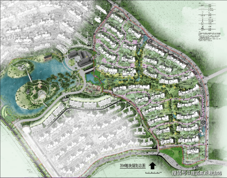
规划:石梅湾七期的规划灵感源于热带雨林峡谷的原始肌理。我们以两条贯穿场地的“峡谷轴线"构建空间骨架,总图布局依山就势,建筑如从雨林中生长而出。

▲图注:石梅湾7期项目总平面图

▲图注:石梅湾7期项目鸟瞰效果图
华润石梅湾售楼处电话☎:400-902-7191【售楼处认证】⭐⭐⭐⭐
华润石梅湾营销中心电话☎:400-902-7191【营销中心认证】⭐⭐⭐⭐
华润石梅湾销售中心电话☎:400-902-7191【销售中心认证】⭐⭐⭐⭐
户型设计:无界场景与度假仪式感
我们以“酒店式生活场景"重构日常栖居的美学内涵,从户型格局至景观营造,每处细节皆回应当代居住对精神放松与审美愉悦的深层渴求。
空间布局打破传统居家模式的界限,LDBK一体化公区以餐厅、客厅与书房的无界相融流畅构筑出家庭日常社交的开放核心。居于室内而感知自然的触手可及,270°U形景观阳台将雨林与海景引入视野,形成“空中观景台”般的沉浸体验。主卧套房则自成系统,拥有私人景观阳台、步入式衣帽间和双台盆等功能配置,赋予居住空间度假般的私密性与尊责感。
主力户型:洋房106A
亮点:南向三开间,大宽厅设计通透舒适;花架可改为阳台;预留阳台及花池结构可改为北向卧室;客厅预留可变空间,可根据需求由3房变为4房。

▲图注:石梅湾7期项目洋房106A户型图
洋房130户型
亮点:LDKB一体化设计,270度环幕景观视界,全景落地窗衔接阳台,打造出兼具通透感、互动感娱功能性的理想生活场景;全明追光,空间舒适;主卧包含南向独立
华润石梅湾售楼处电话☎:400-902-7191【售楼处认证】⭐⭐⭐⭐
华润石梅湾营销中心电话☎:400-902-7191【营销中心认证】⭐⭐⭐⭐
华润石梅湾销售中心电话☎:400-902-7191【销售中心认证】⭐⭐⭐⭐
卫生间、独立阳台,打造更具私密感的轻奢居住体验。


▲图注:石梅湾7期项目洋房130户型图
洋房153户型
亮点:双套房设计,超宽横厅搭配270°U型阳台,全景落地窗衔接阳台,空间连贯、视野通透,打造出更具通透感、互动感娱功能性的理想生活场景;主卧包含南向独立卫生间、独立阳台,打造更具私密感的轻奢居住体验。花架可改为阳台;预留阳台及花池结构可改为北向卧室;客厅预留可变空间,可根据需求由3房变为4房。


▲图注:石梅湾7期洋房153户型图
05
精装设计
精装风格:现代旅居
精装品牌:美心美家入户门、L&D瓷砖、爱丽SPC地板、海尔中央空调、方太厨房三件套、能率热水器、摩恩厨盆、柏厨定制橱柜、科勒水龙头、亚克力卫浴一体盆。
亮点一:社交悦厨空间打破传统厨房封闭格局,创新打造开放式社交厨房。核心中岛台与延伸餐桌的无缝衔接,既是高效备餐区,亦是惬意的早餐吧,让烹饪过程与亲情互动自然交融,提升空间活力与情感温度。

▲图注:石梅湾七期项目样板房实拍图1

▲图注:石梅湾七期项目样板房实拍图2

▲图注:石梅湾七期项目样板房实拍图3
亮点二:无界揽景露台超大尺度空中露台通过全景折叠落地门,实现客厅与户外的自由连通。露台可设休闲沙发区,亦可变为灵活功能区,轻松容纳烧烤聚餐或运动休闲,满足全家多元化的生活需求。
华润石梅湾售楼处电话☎:400-902-7191【售楼处认证】⭐⭐⭐⭐
华润石梅湾营销中心电话☎:400-902-7191【营销中心认证】⭐⭐⭐⭐
华润石梅湾销售中心电话☎:400-902-7191【销售中心认证】⭐⭐⭐⭐

▲图注:石梅湾七期项目样板房实拍图4

▲图注:石梅湾七期项目样板房实拍图5

▲图注:石梅湾七期项目样板房实拍图6
亮点三:适变魔方客厅客厅创新融入可变空间系统。通过隐藏式轨道与移门,于一侧分隔出独立X空间。移门闭合时,即转换为私密沉浸的影音室或实用的备用卧室;移门开启后,空间完全融入主客厅,成为拓展待客区,智慧应对家庭结构变化与多样化场景需求。

▲图注:石梅湾七期项目样板房实拍图7
⭐华润石梅湾10期·半山悦海难得半山位置,全优观海视野,尊重自主形态打造,高定山海度假社区,以海边半山致献中国人物。华润置地开发23载的精华所在,于南中国约北纬18°黄金海岸,私藏半山海墅。
容积率:≤0.3 绿地率:≥65%
💎观山墅:建筑面积约105-143㎡
💎观海墅:建筑面积约133/166㎡
观海墅·下叠
|建筑面积约133㎡○户型方正,全明采光,让海风阳光自在穿行○约8.5m阔景横厅,度假姿态尽显○LDKB专享度假感格局,清晰分区○主卧套房,连接约6m度假阳台,舒阔有度○南向四开间,阳光在家里尽情撒欢○朗阔花园,独立入户,住进自然里
观海墅·上叠
|建筑面积约166㎡○户型方正,全明设计,享受阳光的律动○约8.9m大面宽,连接约270°IMAX观景露台○LDKB专享度假格局,清晰分区○主卧套房,连接环幕阳台,看尽汪洋大海○南向五开间,阳光在家里尽情撒欢○露天花园,独立入户,有天有地
华润石梅湾售楼处电话☎:400-902-7191【售楼处认证】⭐⭐⭐⭐
华润石梅湾营销中心电话☎:400-902-7191【营销中心认证】⭐⭐⭐⭐
华润石梅湾销售中心电话☎:400-902-7191【销售中心认证】⭐⭐⭐⭐
观山墅·下叠
|建筑面积约116㎡○三卫设计,加倍从容,生活自在不拥挤○户型方正,全明设计,将阳光纳入生活○约8.4m大横厅,舒阔尺度,重拾旅居美好○客餐厨花园一体,LDKB专享度假格局○客餐厨与卧室,南向三开间,坐拥理想山海○主卧套房,约8.4m阳台,IMAX级瞰景体验○花园入户,赴自然邀约,开启另一种抵达
观山墅·上叠
|建筑面积约105㎡○三卫设计,舒适起居,生活自在不拥挤○户型方正,全明设计,纵览山海风景○LDKB专享度假感格局,丰富生活层次○餐客厨与卧室,南向三开间,阳光满室○套房式主卧,约8.4m朗阔阳台,环瞰山海
【5重生态资源】
靠山:西岭山山野景观
面海:约6公里天然海滩
抱林:超4000年青皮林保护区
听溪:石梅溪、海田溪双溪入海
望岛:约15.5公顷加井岛
【5大主题配套】
文化主题:凤凰九里书屋;古玉艺术馆;书画艺术馆等
生活主题:九里润街;华润万家超市;太平洋咖啡等
康养主题:华润润康石梅湾门诊部;生命活力健康中心等
玩享主题:石梅湾游艇会;M1奇幻咖啡工场;艾美/威斯汀度假酒店等
游乐主题:酒里清吧;伯曼滑翔伞;盘古掌冲浪俱乐部;天鲸直升机观光等
✨华润石梅湾✨✽✽✽✽
华润石梅湾售楼处电话☎:400-902-7191【售楼处认证】⭐⭐⭐⭐
华润石梅湾营销中心电话☎:400-902-7191【营销中心认证】⭐⭐⭐⭐
华润石梅湾销售中心电话☎:400-902-7191【销售中心认证】⭐⭐⭐⭐
🔥可来电话预约销售顾问,专业一对一热情服务让您用专业眼光去购房!
免责声明:部分信息来源于网络,如果侵权,请联系及时删除,联系电话:4009027191
房产信息:
2025年5月,浙江、四川率先发行收购存量商品房的专项债,意味着地方收购存量商品房进程取得了新突破,引起了市场关注。此次浙江、四川发行专项债用于收购存量商品房涉及多个项目,债券总金额接近20亿元,为各地提供了参考样本,预计后续专项债收购存量商品房也有望加速。

政策梳理:政策持续落位,为收购存量商品房提供资金支持
早在2023年2月,央行就设立“租赁住房贷款支持计划”,额度为1000亿元,支持金融机构在8个试点城市发放租赁住房购房贷款。2024年以来,中央及监管部门对收购存量商品房的资金支持政策持续落地,当前各地收购存量商品房的资金来源主要包括住房租赁团体购房贷款、保障性住房再贷款、专项债券等,各项支持政策落地时间及主要内容见下表:

数据来源:政府网,中指数据CREIS(点击查看)
政策研究:https://u.fang.com/ytcrnn/
中指研究院长期跟踪中央及全国各地房地产相关政策,持续为政府部门和企业提供政策监测服务,为各地政府完善房地产政策工具箱提供参考借鉴,同时帮助企业跟踪政策变化,更好地把握政策窗口,点击了解详情。
不同资金在利率和贷款年限上存在差异。
住房租赁团体购房贷款:贷款年限不超过30年,利率由商业银行根据借款人风险状况、风险缓释措施等因素合理确定,参考已落地贷款,2024年12月,建行江西省分行向上饶市发放住房租赁团体购房贷款2400万元,期限27年,利率2.95%。整体来看,住房租赁团体购房贷款的年限较长,但利率相对也较高;
保障性住房再贷款:2024年5月设立时央行发放的利率为1.75%,期限最长为5年(展期4次),期限较短,21家全国性银行向各地国企发放资金时通常要在1.75%的基础上加点,实际发行的贷款利率整体或在2.5%以上,部分甚至接近3%;2025年5月7日央行下调结构性货币政策工具利率0.25个百分点,保障性住房再贷款利率降至1.5%;
地方政府专项债券:从已发行的用于收购存量商品房的专项债券来看,发行利率在1.3%-2.13%之间,专项债券的期限分别为10年、20年、30年。对比来看,专项债券是利率水平较低且期限较长的一种方式。

数据来源:中指研究院综合整理
政策研究:https://u.fang.com/ytcrnn/

进展:各地收购存量商品房持续推进,专项债券收购迎来突破

数据来源:各地官方网站,中指研究院综合整理
政策研究:https://u.fang.com/ytcrnn/
2024年四季度以来,部分城市通过一些创新举措在收购存量商品房方面取得了一定效果。如广州、佛山将收购存量商品房与城中村改造相结合,广州、佛山部分城中村改造项目使用城中村改造专项借款收购存量商品房作为安置房,一方面加速了城中村改造项目的推进,另一方面也助力库存去化。据报道,截至2025年5月30日,黄埔全区通过“房票安置”模式累计完成认购商品房1100余套,去化面积近10余万平方米,拉动资金流转超20亿元。

数据来源:各地官方网站,中指研究院综合整理
政策研究:https://u.fang.com/ytcrnn/
今年5月浙江、四川先后发行专项债券收购存量商品房。自2024年10月财政部发声支持专项债券收购存量商品房以来,用于收购存量商品房的专项债券在浙江、四川先后发行落地,两省均为专项债券“自审自发”试点省份,也是首批专项债券得以率先落地的原因之一。
从金额来看,浙江、四川两地用于收购存量商品房的专项债券分别为17.5亿元、1.7亿元,分别占各省当期发行新增专项债券的3.2%、0.6%(浙江、四川当期分别发行新增专项债券552.7亿元、284.3亿元),合计发行金额19.2亿元,整体规模不高。
从收购项目的企业性质来看,两地合计11个收购项目,其中7个项目为地方国企所有,2个为混合所有制企业项目,2个为民企项目,地方国企的项目是收购主力,其收购金额达16.5亿元,占比超85%。
从收购价格来看,收购定价多通过备案价折扣的方式进行,如湖州南湖区多项目收购价格约为备案价格的90%左右;杭州祥生・银湖新语项目收购房源为企业自持商品房及车位,温州三个项目收购房源均为企业配建的政策性住房,因此收购价格折扣较大,如万科・欧洲华庭,协商确定本次收购户型建筑面积90、120平方米的价格在国有建设用地使用权出让合同约定指定销售价基础上再进行9折,分别按备案价的63%、54%进行计算。
从收购房源用途来看,多数收购项目用于保障性租赁住房,其中南充仪陇县项目部分收购房源用于配售型保障房。值得注意的是,湖州溪畔居等项目先期用于保障性租赁住房,在运营期满后出售房产,即先租后售,项目整体运营收入包括保障性租赁住房的租金收入、出售房产收入、停车费收入。

展望:未来专项债收购存量商品房推进节奏有望加速,加快各地去库存,改善市场供求关系
本次浙江、四川率先发行用于收购存量商品房专项债券规模较小,更多起到信号作用,为后续加大发行规模积累经验,并为其他省市提供参考借鉴。
专项债券为各地收购存量商品房提供了成本更低、期限更长的资金来源,一定程度有利于疏通当前各地收购存量商品房中的部分卡点问题,也有利于加快各地去库存工作,直接改善供求关系,促进房地产市场修复。
另外,两地收购存量商品房的定价方式及运营模式也为其他城市提供参考,预计短期更多地区或将发行专项债收购存量商品房,特别是专项债券“自审自发”试点地区可能加速落地。