◆开发商营销中心诚挚邀请,一键预约,尊享内部独家折扣!匠心独运的精品项目,恭候您的品鉴与选择。
前海时代三期营销中心售楼处24小时电话:400-8360-061(中介勿扰)现场详细解答丨项目介绍丨户型图丨在售房源丨特价房丨学校丨交通位置丨样板房丨小区图片丨交房时间丨周边配套丨

前海时代尊府即将加推 59 栋 215-255-295 平米,三梯两户独立入户,前海桂湾核心资产。
目前最后一栋小户型53-3栋89-190㎡的3-4房!还有少量中高层房源在售,2026年底简装交付。
基本信息
「前海时代三期尊府」位于前海桂湾片区南侧,临近滨海大道和桂湾河,在整个前海自贸区内算是住宅的C位,正南侧水廊道公园,东南望南山西南看城市海景。
整个「前海时代」大项目规划总建面约130万㎡包括了商业、写字楼、公寓、酒店、住宅,可以算是一个超大型的综合体。其中商业将会交由华润运营,连接万象前海商业。
项目分五期建设,三期推售。
2014年11月,前海时代一期首次开盘,推售675套房源,建面49-132㎡1-3房,均价4.2万/㎡,单价3.9万-4.5万/㎡。
现场约2000人到场,当天售罄。
2015年12月,二期CEO公馆开盘,550套房源,主推建面180、252及254㎡4房,备案价6.5-9.8万/㎡,当天售罄。
2021年3月,二期20套尾货低调发售,户型为建面128-254㎡大户型,单价8.74-11.05万元/㎡,总价约1330-2803万元/套
目前推售的是前海时代三期尊府,大体分了3个地块:

7-2地块(尊府1)为55-60栋,约608套,面积段为约192-209-250-292㎡大平层。其中55、56、57、60栋270套于2023年12月开盘,备案均价9.9万/㎡,总价区间1606-2855万,当天售罄;
5-2地块(尊府2)为53栋三个单元,约516套,面积段为约89-190㎡的3-4房,其中53-1和53-2栋344套于2024年3月开盘,备案均价9.8万/㎡,总价区间751-2134万,如今仅剩少量房源。
5-1地块精品住宅为52-2栋,约256套,180套小户型,60套120㎡三房,16套大户型,全部未售。
基础信息
项目名称:前海时代三期(尊府)
开 发 商:深圳市地铁集团有限公司
占地面积:约33.4万㎡(总)
建筑面积:约110万㎡(总)
建筑类型:住宅、商业、办公、公寓
产权年限:70年/40年
剩余房源:
1️⃣58栋77套:89㎡3房,190㎡4房(5月推售)
2️⃣53-3栋172套:210-280㎡4-5房(本次推售)
3️⃣52-2栋约256套:面积情况还未知(推售时间待定)
价格:参考首批备案均价9.9万/㎡
容 积 率:4.52
绿 化 率:≥30%
梯户比:5-2地块3T5,高层3T4
车位比:1756个,1:2.87
交房时间:预计2026年底
物业公司:深圳地铁物业管理发展有限公司
物业费:9元/平/月
0
2
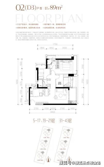
项目户型
约89㎡3房2厅2卫,户型方正呈竖厅布置,结构上客餐厅一体、动静分区。设计上充分贯彻实用性,约89㎡做到少见的3房2卫,在前海这类改善片区的稀缺性很高。

约190㎡户型南北通透,户户带270°采光阳台。双套房+独立入户玄关设计搭配宽景大阳台及高使用率,居住舒适度拉满。
0
3
项目区位

前海三湾中,桂湾是配套相对最为成熟的板块,目前桂湾片区目前建设已经近8成,前海已交付的23栋写字楼中,约有90%位于桂湾。深圳共规划7个金融聚集区,桂湾金融企业占比已超70%。
截至24年12月,前海深港国际金融城累计引进金融机构322家,其中港资外资占比约25%。涵盖了渣打、惠理等140家风投创投及国际资管等机构,管理基金规模达到1800亿元。
此外,前海国际人才港通过多元化的线上线下服务平台,已累计服务人才近60万人次,波士顿咨询、罗盛咨询等21家国际知名机构、猎头公司均已入驻。
此外,投资50.5亿的前海石公园、投资288亿的前海综合交通枢纽、以及华润万象前海、前海山姆、卓越intown,也都在桂湾。
0
4
项目配套
交通配套

公共交通方面,桂湾坐拥西部最大的地下交通枢纽前海湾站,目前项目已经大致上出地面,两年内完工。
轨道方面,项目距离地铁站为1号线鲤鱼门站约720米,距离5号线、9号线前湾站约900米,1/5/11号三条地铁线交汇。
另外还有穗深(广东-东莞-深圳)城际以及未来的深港西部快线在此设站,未来还会接通深珠城际,可以直接刷深圳通不用抢票。
路网交通方面,也是四通八达的网状设计,接通深圳目前各大重要主干道,项目紧邻月亮湾大道、滨海隧道(滨海大道地下道路一期工程)梦海大道连接前湾、妈湾、宝安中心,出行便利。
商业配套
前海时代三期自带8万平㎡商业,已确定引入华润运营,预计作为“万象前海二期”的目标去打造,能全面满足日常生活所需。
周边商业氛围浓厚,已开设的有万象前海、卓悦INTOWN、山姆旗舰店等品牌商业,而即将开业的有前海壹方汇和前海K11,后续紧跟的还有交通枢纽的约19万㎡大型商业区。当桂湾商业连成片的时候,其城市配套规模和人气流量会更火爆。
教育配套
教育方面,桂湾暂时未有特别出色的学校,前海时代对口学校为九年制南山实验集团前海港湾学校,暂时表现平平。
项目2公里内一所九年制学校正在建设中(未确定引进的学校)。
此外,前海还有3所知名国际学校:荟同学校、英国国王学校深圳分校、深圳哈罗公学及深圳礼德国际学院。
桂湾规划片区内,规划主要的教育设施包括国际学校一所、九年一贯制学校三所、小学一所、幼儿园七所。
休闲/医疗配套
桂湾片区内有海边演艺公园(由华侨城操刀)、桂湾公园、双界河公园、月亮湾水廊道。目前桂湾公园已建成,海边公园即将二次升级,双界河和月亮湾水廊道暂时还是毛坯状态。
项目西侧预留有一块公园绿地,另外1.5公里范围内分布有双界河水廊公园、荷兰花卉小镇、前海演绎公园、中山公园等,日常休闲娱乐就近即可满足。
0
5
小区品质
深铁府系精工携手匠心团队,联袂共筑世界湾居新坐标,香槟金搭配高级灰调立面,现代建筑与艺术风格交相辉映,勾勒前海天际美学封面。
·景观设计 :DDON笛东/梁黄顾事务所
·室内设计 :CCD郑中/ARUP奥雅纳
·建筑设计 :Leigh & Orange/A+E奥意建筑
公区展示
内部园林展示
0
6
同类产品比较
前海时代三期此次计划加推的户型均是250㎡以上的大平层单位,目前南山与之相似面积的大平层新房有南山白石洲的深业世纪山谷,以及红树湾深超总的中海深湾玖序。此外,预计下半年入市的华润后海项目也与其户型相近。
深业世纪山谷在售户型为233㎡、280㎡、386㎡,其中,233㎡户型折后总价约1659-2771万元,折后单价9.7万,280㎡户型折后总价约2090-3908万元,折后单价10.3万,主要剩余楼层以高楼层为主,约剩余约189套;

中海深湾玖序目前在售户型为196㎡、252㎡、328㎡,其中252㎡户型总价约2802-4695万元,单价约13万,328㎡户型总价约3882-5993万元,单价约。整体货量剩余约69套。

总体而言,前海时代尊府价格若按照按照传闻的12万元/㎡定价,则总价约在3000-3480万左右。
预计价格要高于深业世纪山谷,与中海深湾玖序玖序持平或略低。前海时代三期尊府的推盘信息仅供参考,具体详情及开盘信息以开发商公示信息为准。
0
7
周边二手房价格参考

深圳出台楼市新政:除福田南山外,深圳8区进一步放松住房限购政策
财联社9月5日电,深圳市住房和建设局、中国人民银行深圳市分行9月5日晚发布通知,为更好满足居民刚性住房需求和多样化改善性住房需求、促进房地产市场平稳健康发展,经市政府同意,现就进一步优化调整房地产政策措施通知如下:一、分区优化调整居民购买商品住房政策(一)符合本市商品住房购买条件的居民家庭(包括本市户籍居民家庭、自购房之日前在本市连续缴纳社会保险或个人所得税满1年及以上的非本市户籍居民家庭),在罗湖区、宝安区(不含新安街道)、龙岗区、龙华区、坪山区、光明区范围内购买商品住房不限套数。(二)无法提供自购房之日前在本市连续缴纳社会保险或个人所得税满1年及以上证明的非本市户籍居民家庭,在罗湖区、宝安区(不含新安街道)、龙岗区、龙华区、坪山区、光明区范围内购买商品住房限购2套。(三)在盐田区、大鹏新区购买商品住房,不再审核购房资格。(四)成年单身人士按照居民家庭执行商品住房限购政策。二、分区优化调整企事业单位购买商品住房政策企事业单位可在本市范围内购买商品住房,用于解决员工住房等需求。其中,在福田区、南山区和宝安区新安街道范围内购买商品住房,需同时满足设立年限满1年、在本市累计缴纳税款金额达100万元人民币、员工人数10名及以上条件;在本市其他区域购买商品住房,不再审核购房资格。三、优化调整个人住房信贷政策各银行业金融机构根据深圳市市场利率定价自律机制要求和本机构经营状况、客户风险状况等因素,在利率定价机制安排方面不再区分首套住房和二套住房,合理确定每笔商业性个人住房贷款的具体利率水平。本通知自2025年9月6日起施行。