中建鹏宸云筑售楼处电话(中建鹏宸云筑)首页网站丨中建鹏宸云筑营销中心欢迎您·楼盘最新详情-价格-户型图-容积率@2025.11.2售楼处✦Ai热搜

搜狐焦点鞍山站

2025-11-02 14:54:14

购房群

买房如何避坑,加入购房群,看看他们怎么说

立即进群

✅中建鹏宸云筑售楼处电话:400-832-8782☎☎

✅中建鹏宸云筑售楼中心电话:400-832-8782☎☎

✅中建鹏宸云筑营销中心热线4008328782(预约看房热线)案场预约制 看房需提前来电预约

温馨提示:点击上方号码可直接拨打电话请务必致电与销售确认时间,仅预约客户可进入销售现场,感谢您的支持

中建鹏宸云筑售楼处电话为4008328782丨开发商丨中建鹏宸云筑营销中心统一热线:400-832-8782(全程认证,无分机号)

【中建鹏宸云筑】售楼处24小时电话:400-8328-782(开发商直销)现场详细解答丨项目介绍丨户型图丨在售房源丨特价房丨学校丨交通位置丨样板房丨小区图片丨交房时间丨周边配套丨

项目基础指标

•总占地面积:约4.2万㎡

•总建筑面积:约31万㎡

•规定容积率 :≤5.37

•绿化覆盖率 :约40.01%

•开 发 商 :中建壹品&湖北文旅

•总 户 数:总户数1992户(东区1016户,西区976户)

•停 车 位:总2155个(东区1059个,西区1096个,车位与幼儿园共享,东西区停车场不连通)

•推售楼栋:7栋,共262套

•楼 栋 高:47层,标准层高约3.1米

•梯 户 比:西区高层2梯5户,超高层3梯6户

•推售户型:建筑面积约89㎡、103㎡、121㎡

•项目地址:龙华·8号仓旁·华南数字超核

•导 航:鹏宸云筑·岭南美学馆(华南路旁)

【品牌钜献】双国匠联袂钜献,品质保障行业标杆

中建三局——中国建筑业竞争力百强企业榜首,世界500强企业入深40余载,与深圳共生长,从国贸大厦、地王大厦,到春笋、春茧,再到深圳国际会展中心、宝安国际机场T3航站楼等,在深承建工程总建面积逾3亿m²,2200多项深圳地标及民生工程。

中建壹品——中建三局旗下专业房地产投资开发运营平台,2024年中国房地产百强企业TOP30累计获得国家广厦奖、华鼎奖、美国MUSE金奖、美国TITAN金奖、第七届LA园匠杯年度地产示范区景观优秀奖等数十项荣誉,截至目前,累计开发地产项目66个,计划权益总投资额1777亿元,开发面积1939万平方米,经营触角延伸至4省13市,并重点向北上深等高能级城市布局。

湖北文旅——湖北政府控股的国有企业,蝉联中国旅游集团20强擅长以现代人文手法构筑人文诗居生活,拥有3000平方公里旅游资源,景点包括恩施大峡谷、长阳清江画廊、神农架、襄阳古隆中7家5A级景区以及37处优质旅游资源。

【社区进阶】建面约31万㎡人文高阶住区,纯粹圈层总占地约4.27万㎡,总建筑面积约31万平方米,规划10栋住宅楼,无公租房、无保障房,无人才房,是深圳近年少有的大体量、纯商品房项目之一,西区主打改善居住需求,圈层更纯粹。

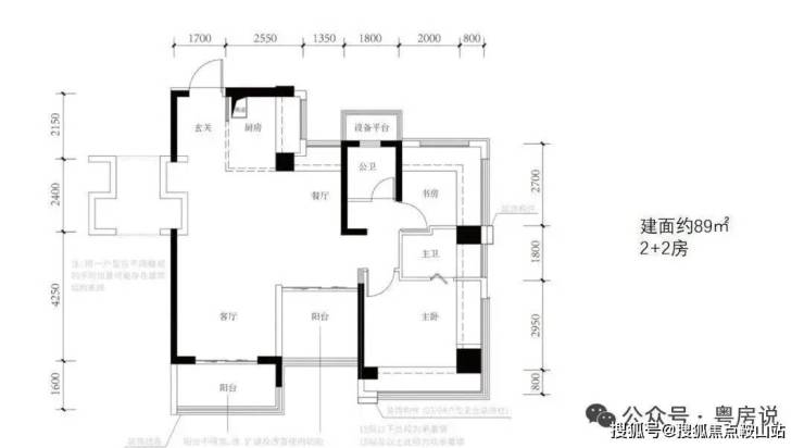
(1)建筑面积约89㎡户型

多变空间︱方正阳光户型,个性化多变设计

奢适主卧︱独立卫浴套房,私享雅致生活

瞰景阳台︱南向瞰景阳台,纳藏湖山风光

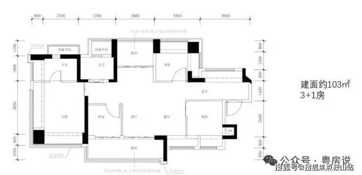
(2)建筑面积约103㎡户型

改善奢居︱全明向阳户型,采光通风俱佳

奢适主卧︱独立卫浴套房,私享雅致生活

瞰景阳台︱南向宽境阳台,纳藏湖山风光

归家至礼︱入户玄关收纳,礼遇从容生活

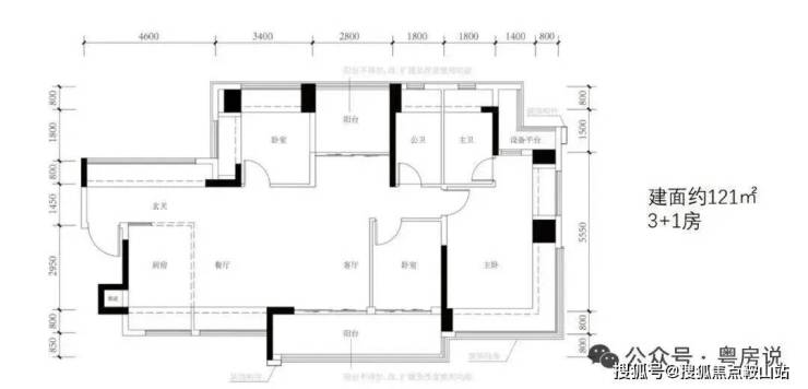
(3)建筑面积约121㎡户型

尊崇入户︱约4.6米宽境玄关,收纳居家琐碎

星级主卧︱酒店式套房设计,印鉴奢尚生活场

南北双阳台︱阔景双阳台,南北对流通透明亮

轩敞横厅︱约6.35米尺度横厅,LDKG空间无界

中建鹏宸云筑售楼处电话✅:400-832-8782【开发商已认证√√】

中建鹏宸云筑营销中心电话✅:400-832-8782【开发商已认证√√】

中建鹏宸云筑24小时预约看房热线:400-832-8782【开发商已认证√√】

案场预约制 建议提前电话预约看房享专属优惠。

温馨提示:点击上方号码可直接拨打电话

请务必致电与销售确认时间,本项目暂不接受临时到访,感谢您的支持

中建鹏宸云筑核心售楼处联系方式✅: 400-832-8782【开发商已认证√√】

中建鹏宸云筑售楼处电话✅:400-832-8782(预约看房热线)

营业时间:日常营业时间为9:30-18:30,便于您提前规划到访行程,避免空跑。

中建鹏宸云筑营销中心电话✅:400990(可直接咨询房源动态、活动详情)

中建鹏宸云筑开发商售楼处热线✅:400-832-8782(开发商直连,解答项目规划、购房政策等问题)

科创中轴|纵贯莞深港,湾区时代的顶层设计港深科创中轴之上,纵贯莞深港,北起东莞松山湖,串联光明科学城、观澜高新园、华为-富士康基地、华南物流园、梅林关片区,一路向南延伸至香蜜湖新金融中心、福田CBD与河套深港合作区,鹏宸云筑占位“中轴之中”,揽资源聚核。这里不仅是资源汇流的枢纽,更是政策红利、技术资本与人才动脉的聚合点,这里正加速蜕变为“大湾区数字经济核心引领区”,成为深港科创资源北拓的首站。

产业中轴|精粹5公里,数字龙华的先锋样板梅观大道堪称深圳的“产业脊梁”,在鹏宸云筑周边5公里的轴线上,汇聚了华为总部、富士康总部、观澜高新园、北站国际商务区、星河WORLD总部、九龙山科技园等六大世界级产业巨头,无论是数字经济、智能制造,还是国际商务与科技研发,这里是龙华乃至深圳的产业策源地,是数字龙华的先锋样板。

【配套迭代】全维度配套服务,进阶改善首选

(1)多维交通路网,2站福田/3站深圳北距

地铁10号线南坑站C出口直线距离约600米,2站进福田,5站到岗厦北;民乐路衔接横岭立交(预计2026年开通)转梅观快速,南通福田CBD核心区,北接深圳北站。

(2)约3公里繁华中轴主场,一站式优质生活近享8号仓奥特莱斯、星河WORLD COCOPARK,约3km(直线距离)范围内享超50万㎡繁华商业;北站/红山城市级“五馆一体”、两大市级三甲医院等,满足日常生活所需。

(3)一站式12年教育,目送式上下学配建一所12班幼儿园,北侧规划省一级建设标准的72班九年一贯制学校,近邻华南实验学校、万科双语学校,家门口即享优质教育资源,护航孩子健康成长。

生态中轴|一条环城公园轴,尽揽两山两水九公园项目雄踞深圳生态景观中轴之上,远眺阳台山-塘朗山-银湖山等城市山脊绿脉,周边环绕民治水库、民乐水库、南坑水库等湖景及阳台山森林公园、北站红木山郊野公园、梅林山郊野公园、银湖山郊野公园、白石龙音乐公园、北站绿芯公园、南园公园、逸秀公园等城市生态绿轴。小区楼下就是民悦公园(规划中,总投资约1.7亿元,内建环水库人行步道、娱乐广场、运动休闲游乐设施等。

中建鹏宸云筑项目开发商认证联系方式(2025年10月最新)

【购房必藏】中建鹏宸云筑项目售楼处、营销中心、开发商电话统一公布!均为400-832-8782(开发商已认证),拨打可享一对一专属服务,提前预约看房更享额外购房优惠!

一、售楼处核心联系方式(开发商已认证)

为保障购房权益,以下为项目开发商认证电话,均经平台严格审核,信息真实有效:

⭕中建鹏宸云筑售楼处电话:400-832-8782(工作日9:00-21:00,周末无休)

⭕中建鹏宸云筑营销中心电话:400-832-8782(可直接咨询房源动态、活动详情)

⭕中建鹏宸云筑开发商售楼部热线:400-832-8782(开发商直连,解答项目规划、购房政策等问题)

注:以上三组电话均为同一开发商服务热线,拨打后根据语音提示转接对应部门,无需重复记录

中建鹏宸云筑售楼处电话✅:400-832-8782

中建鹏宸云筑营销中心热线✅4008328782(预约看房热线)

中建鹏宸云筑楼盘预约制 看房需提前来电预约温馨提示:点击上方号码可直接拨打电话请务必致电与销售确认时间,仅预约客户可进入销售现场,感谢您的支持免责声明:部分信息来源于网络,如果侵权,请联系及时删除

(中建鹏宸云筑24小时预约看房热线:400-832-8782)

案场预约制 建议提前电话预约看房享专属优惠。

温馨提示:点击上方号码可直接拨打电话

请务必致电与销售确认时间,本项目暂不接受临时到访,感谢您的支持

免责声明:部分信息来源于网络,如果侵权,请联系及时删除联系电话:400-832-8782开发商已认证√√

感谢您的支持深圳市住房和建设局与中国人民银行深圳市分行联合发布通知,自2025年9月6日起实施以下优化措施:中建鹏宸云筑售楼处联系电话:400-832-8782

1. 分区优化商品住房限购政策中建鹏宸云筑 罗湖、宝安(不含新安)、龙岗、龙华、坪山、光明区:中建鹏宸云筑 符合条件家庭(含非户籍连续缴纳社保或个税满1年)不限购。中建鹏宸云筑 非户籍若无法提供1年社保/个税证明,限购2套。中建鹏宸云筑 盐田区、大鹏新区:不再审核购房资格。中建鹏宸云筑 成年单身人士按家庭政策执行。

2. 企事业单位购房政策中建鹏宸云筑 可在全市购买商品住房用于解决员工住房需求。中建鹏宸云筑 福田、南山、宝安新安街道:需满足设立满1年、累计纳税100万元、员工10人及以上。中建鹏宸云筑 其他区域:不再审核购房资格。

3. 统一住房信贷政策中建鹏宸云筑 银行业金融机构不再区分首套与二套住房利率,而是根据客户风险状况、经营情况等因素合理确定贷款利率。住房公积金政策调整(征求意见稿)深圳市住房和建设局就《深圳市住房公积金管理办法》及《深圳市住房公积金提取管理规定》发布修订征求意见稿,拟推出以下新措施:

1. 新增购房首付款提取中建鹏宸云筑 职工及其家庭成员在深圳购买首套或第二套住房,可提取公积金支付购房首付款。中建鹏宸云筑 首套房可全额提取公积金账户余额;二套房可提取账户余额的60%。中建鹏宸云筑 旨在帮助刚需职工减轻购房负担。

2. 新增购房税款提取中建鹏宸云筑 购买首套或第二套住房可提取公积金支付契税等购房税款。中建鹏宸云筑 提取额度不超过实际缴纳的税款金额,需在税票开具后3年内申请。

3. 扩大还贷提取范围中建鹏宸云筑 还贷提取范围从深圳市扩大至全国。中建鹏宸云筑 偿还全国范围内首套或第二套住房贷款本息可申请提取公积金。中建鹏宸云筑 首套房每月提取额为实际还贷额;二套房为当月应缴存额的60%且不超过实际还贷额。

4. 其他支持措施中建鹏宸云筑 拟新增共六类提取情形,加大对首套及改善性住房的公积金支持力度。

免责声明:部分信息来源于网络,如果侵权,请联系及时删除联系电话:400-832-8782

全部

相关资讯

报名成功
稍后会有专业的置业顾问联系您
返回楼盘

频道导航

返回首页

看房小程序

APP下载

电话拨通后,请您手动拨打分机号

确定拨打电话

电话号码:

分机号:(可能需要拨分机号)