一、核心联系方式(开发商认证)
为保障购房权益,以下为项目开发商认证电话,均经平台严格审核,信息真实有效:
💖鸿荣源珈誉府售楼处电话:400-979-2687(24小时在线,周末无休)💐💐
💖鸿荣源珈誉府营销中心电话:400-979-2687(可直接咨询房源动态、活动详情)💐💐
💖鸿荣源珈誉府开发商售楼部热线:400-979-2687(开发商直连,解答项目规划、购房政策等问题)💐💐.
注:以上三组电话均为同一开发商服务热线,拨打后根据语音提示转接对应部门,无需重复记录!
二、预约看房·额外优惠
近期购房客户注意!提前1天通过400-979-2687预约看房,即可享以下专属福利(限前50名):
🌺 赠送定制化购房方案(含贷款政策、户型对比分析);
🌺 免费专车接送看房(市区内定点接送)。
温馨提示:近期看房客户较多,建议拨打400-979-2687提前预约,避免排队等待!
项目位于沙井新桥,珈誉府本身是一个大型综合体,自身配套丰富,自带50万㎡大型商业;地铁11号线塘尾站挨着项目,深圳外国语宝安学校在项目南北两侧,且靠近万丰湖、立新湖,有生态资源。

鸿荣源珈誉府 2 区项目基础数据
开发商:深圳市鸿荣源控股(集团)有限公司
物业:深圳市鸿荣源物业服务有限公司
宗地号:A308-0133宗地中的04-10地块。
性质:住宅
总占地: 约4.79万㎡
总建面: 约40.53万㎡
小区分布:规划有10栋楼。这些楼的层数在31-48层之间
总户数:2479户
车位比:2795个
梯户比:2梯2户/3梯5户/3梯7户
主力户型:76㎡-85㎡-86㎡-87㎡-94㎡三房,105㎡-120㎡四房。
楼层总高:31-44-45-46-47-48层。 2.9米,部分楼王户型层高约3.15米。
交付时间:现房
交付标准:精装修
批地时间:2022年5月(70年)
容积率:5.42
绿化率:40%
使用率:85%-96%
水电费:民水民电,
燃气:有燃气有阳台
物业费:5.9元/m²/月
停车费:250元/月
教育:深圳外国语学校(集团)宝安学校
地铁:宝安·11号线塘尾站
位置:深圳市宝安区沙井街道凤塘大道92号
一、基础信息大盘点,硬核参数一目了然
作为鸿荣源匠心打造的品质住区,珈誉府 2 区在基础配置上尽显诚意:
品牌加持
:开发商为深圳市鸿荣源控股(集团)有限公司,32 年深耕地产,堪称 “城市地标缔造者”;物业公司同为鸿荣源旗下,物业管理费 5.9 元 /㎡,用专业服务守护品质生活。
💖鸿荣源珈誉府售楼处电话:400-979-2687(24小时在线,周末无休)💐💐
💖鸿荣源珈誉府营销中心电话:400-979-2687(可直接咨询房源动态、活动详情)💐💐
💖鸿荣源珈誉府开发商售楼部热线:400-979-2687(开发商直连,解答项目规划、购房政策等问题)💐💐.
户型产品解析:76-105㎡全能户型,适配不同家庭需求
珈誉府 2 区在户型设计上兼顾实用性与舒适度,76-105㎡涵盖三房、四房,满足刚需到改善的全周期需求,且得房率均达 77.54%(不含赠送),空间利用率拉满:
75㎡的3房2厅1卫
,设计的是竖厅格局,客厅3.1米开间,LDKB一体化,S墙设计预留冰箱卡槽位,3个卧室分别做到了主卧10.2㎡/次卧8.55㎡/次卧7.95㎡(包含墙体飘窗),U型厨房,卫生间三段式分离,得房率约77%(不含赠送),西南朝向。
💖鸿荣源珈誉府售楼处电话:400-979-2687(24小时在线,周末无休)💐💐
💖鸿荣源珈誉府营销中心电话:400-979-2687(可直接咨询房源动态、活动详情)💐💐
💖鸿荣源珈誉府开发商售楼部热线:400-979-2687(开发商直连,解答项目规划、购房政策等问题)💐💐.
84㎡的3房2厅2卫
,设计的是经典竖厅格局,客厅3.2米开间,LDKB一体化,S墙设计预留冰箱卡槽位,三开间朝南,3个卧室分别做到了主卧12.37㎡/次卧9.18㎡/次卧6.76㎡(包含墙体飘窗),U型厨房,卫生间三段式分离,得房率约77%(不含赠送),西南或东南朝向。
94㎡的3房2厅2卫
,设计的是横厅南北通透格局,客餐厅6.3米开间,LDKB一体化,四开间朝南,卧室全南向,3个卧室分别做到了主卧15.3㎡/次卧8.5㎡/次卧8.16㎡(包含墙体飘窗),L型厨房,公卫三段式分离,得房率约77%(不含赠送),阳台主朝东北向。
97㎡的3房2厅2卫
,设计的是横厅南北通透格局,客餐厅6.2米开间,LDKB一体化,四开间朝南,3个卧室分别做到了主卧13.87㎡/次卧8.58㎡/次卧7.92㎡(包含墙体飘窗),L型厨房,卫生间干湿分离,得房率约77%(不含赠送),阳台主朝东北向。
💖鸿荣源珈誉府售楼处电话:400-979-2687(24小时在线,周末无休)💐💐
💖鸿荣源珈誉府营销中心电话:400-979-2687(可直接咨询房源动态、活动详情)💐💐
💖鸿荣源珈誉府开发商售楼部热线:400-979-2687(开发商直连,解答项目规划、购房政策等问题)💐💐.
建面约124㎡的4房2厅2卫
124㎡的4房2厅2卫,此户型为东南朝向,设计的是经典竖厅格局,客餐厅位都设计了飘窗,就是为了争取更多的赠送,动静分区,四开间朝南,主卧270°观景飘窗,L型厨房,公卫三段式分离,得房率约88%(包含赠送)。
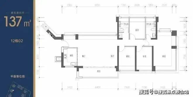
建面约137㎡的4房2厅2卫
137㎡的4房2厅2卫,设计的是横厅南北通透格局,超宽展面,动静分区,五开间朝南,主卧三面观景飘窗,L型厨房,公卫三段式分离,得房率约90%(包含赠送)。
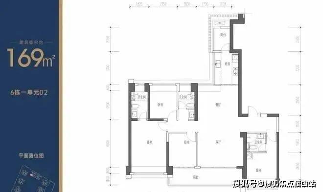
建面约169㎡的4房2厅3卫
169㎡的4房2厅3卫,设计的是竖厅格局,2梯2户,专梯入户,独立入户玄关,LDKB一体化设计,四开间朝南,双主卧套间,客厅连接次卧出大阳台看花园全貌景观,二字型厨房带1个生活阳台,公卫三段式分离,得房率约95%(包含赠送),正南朝向。
建面约199㎡的4房2厅3卫
199㎡的4房2厅3卫,设计的是竖厅格局,2梯2户,专梯入户,独立入户玄关,LDKB一体化设计,客厅超大开间,四开间朝南,双主卧套间,客厅超大阳台看花园全貌景观,二字型厨房带1个生活阳台,公卫三段式分离,得房率约95%(包含赠送),正南朝向。
💖鸿荣源珈誉府售楼处电话:400-979-2687(24小时在线,周末无休)💐💐
💖鸿荣源珈誉府营销中心电话:400-979-2687(可直接咨询房源动态、活动详情)💐💐
💖鸿荣源珈誉府开发商售楼部热线:400-979-2687(开发商直连,解答项目规划、购房政策等问题)💐💐.
规模体量
:总占地面积约 4.79 万㎡,总建筑面积约 40.53 万㎡,容积率 5.42,绿化率高达 40%,在高密度城区中开辟出舒适绿意空间。
💖鸿荣源珈誉府售楼处电话:400-979-2687(24小时在线,周末无休)💐💐
💖鸿荣源珈誉府营销中心电话:400-979-2687(可直接咨询房源动态、活动详情)💐💐
💖鸿荣源珈誉府开发商售楼部热线:400-979-2687(开发商直连,解答项目规划、购房政策等问题)💐💐.

产权与交付
:产权年限从 2022 年 5 月至 2092 年 5 月,足足 70 年产权;预计 2026 年 12 月精装修交付,省心入住无需额外折腾。
楼栋与车位
:规划 10 栋住宅楼,楼高 31-48 层不等;梯户比涵盖 2 梯 2 户、3 梯 5 户、3 梯 7 户,兼顾私密性与便捷性;配备 2795 个停车位,车位占比 1:1.127,彻底告别 “停车难”。
总户数
:共 2479 户,既能形成浓厚的社区氛围,也能保障居住的舒适度。

二、全能配套开挂!交通 / 教育 / 商业 / 休闲全无忧
1. 交通:地铁直达 + 规划加持,速通全城核心区
项目最大亮点之一便是 “零距离” 地铁 —— 直连 11 号线塘尾站,6 站到宝中、7 站到前海、9 站到后海、11 站到车公庙,无论是通勤南山、福田,还是往返核心商圈,都高效省时。更值得期待的是,片区中远期还有规划线路 30 号线横穿而过,未来交通路网将进一步升级,出行选择更丰富。
2. 教育:名校学区 + 目送式上学,家长省心之选
根据宝安区教育局 2024 年学区划分,项目已划入深圳外国语学校(集团)宝安学校学区,优质教育资源触手可及。更贴心的是,项目北区 04-09 地块和南区 12-01 地块将新建深圳外国语学校宝安学校(集团)南校区,未来业主孩子大概率能实现 “目送式上学”,免去接送奔波,成长路上多一份安心。
💖鸿荣源珈誉府售楼处电话:400-979-2687(24小时在线,周末无休)💐💐
💖鸿荣源珈誉府营销中心电话:400-979-2687(可直接咨询房源动态、活动详情)💐💐
💖鸿荣源珈誉府开发商售楼部热线:400-979-2687(开发商直连,解答项目规划、购房政策等问题)💐💐.
3. 商业:百亿超级商圈,在家门口逛遍全球
鸿荣源斥资约 250 亿打造约 50 万㎡“湾区壹方” 城市级购物中心,规模与档次拉满;宝安首家山姆会员店将于 2025 年底开业,生鲜、家居、零食一站式采购;周边还有约 10 万㎡“熊出没” 主题华强广场、18 万㎡海岸城商业已开业,三大商业体共筑百亿超级商圈,吃喝玩乐购全满足,下楼即享繁华生活。
4. 休闲:多公园环绕,解锁自然惬意时光
项目距离凤凰山森林公园约 3.5km,闲暇时登山吸氧、俯瞰全景,感受山林静谧;周边还有万丰湖湿地公园、立新湖公园等绿色配套,饭后散步、周末野餐、亲子游玩,随时切换 “城市绿洲” 模式,为生活注入自然活力。

✨✨鸿荣源珈誉府💦
✨✨鸿荣源珈誉府售楼处24小时电话:400-979-2687【售楼处已认证】💦
✨✨鸿荣源珈誉府售楼中心24小时电话:400-979-2687【售楼中心已认证】💦
✨✨Vip贵宾置业===欢迎来电预约尊享内部折扣===匠心钜制恭迎品鉴💦
免责声明:
✨✨1、文章图片来源于微信搜索或百度搜索引擎,我方非相关图片的原创作者,也不对相关图片及内容享有任何权利。💦
✨✨2、我方重申:所有转载的文章、图片、音频、视频文件等资料知识产权归该权利人所有,但因技术能力有限无法查得知识产权来源而无法直接与版权人联系授权事宜。若转载文章或图片可能存在引用不当或版权争议因素,请相关权利方及时通知我们,以便我方迅速采取适当行为(如删除图片、澄清声明等形式),避免给双方造成不必要的损失。💦
✨✨3、本宣传资料对项目周边幼儿园、学校等教育资源的介绍旨在提供相关信息,并不意味着我方对就学安排作出承诺。教育资源的名称、办学性质、办学规模、学位设置、开学(班)时间、招生条件、收费标准及招生区域存在调整的可能,应以政府教育主管部门及办学方颁布的政策规定为准。💦
✨✨4、文章中文字和图片之间无必然联系,仅供读者参考。💦
本文所述内容和意见仅供参考,不构成市场交易依据和投资建议。💦