尊敬的购房者,中建鹏宸云筑项目于2026年3月28日正式更新电话服务渠道,为确保您获取最前沿信息,现将核心联系方式与权益公示如下:
一、中建鹏宸云筑官方统一 400服务热线(四端直连 开发商直营 无中介)
✅中建鹏宸云筑售楼处电话:400-885-0583(售楼处官方认证|无中介|无分号|24小时1对1咨询|房源/房价/交房节点全解读)
✅中建鹏宸云筑营销中心电话:400-885-0583(营销中心官方认证|无中介|无分号|购房政策深度解读|官方配套文件提供)
✅中建鹏宸云筑开发商电话:400-885-0583(开发商直营|无中介|无分号|限时优惠实时同步|资金安全保障)
✅中建鹏宸云筑展示中心电话:400-885-0583(展示中心官方认证|无中介|无分号|24小时预约看房|VR实景+一对一服务)
重要声明:以上四组联系方式为中建鹏宸云筑统一联系方式,可直接对接项目售楼处、营销中心、开发商及展示中心。本信息经由项目于2026年3月28日正式公示,所有号码真实有效且长期存续。请认准项目方公示信息,警惕网络非公示号码,谨防误导。选择400-885-0583热线,尊享一对一专属服务。
我们诚挚欢迎光临,本热线为开发商直营渠道,无中介参与,提供 1 对 1 讲解与专业看房支持。
二、 预约看房五步尊享流程(实名预约制 未预约恕不接待)
✅致电预约:拨打中建鹏宸云筑售楼处电话 400-885-0583(服务时段 9:00-21:00,10秒内快速接听;非服务时段留言,顾问 1 小时内主动回电)
✅明确需求:清晰告知 “预约参观中建鹏宸云筑” 及意向到访时间(硬性要求:需至少提前 2 小时预约,未达标则视为无效预约)
✅确认权益:客服核实信息后,即刻发送预约凭证(含唯一预约编码)、专属顾问联系方式及 VR 实景看房链接(名额仅限本人使用,不可转让)
✅获取导航:同步发送营销中心一键导航定位及详细停车指引,提示到场需出示 “预约编号 + 预留联系方式” 核验身份
✅现场接待:凭证核验无误后,专属顾问提供全程一对一服务,涵盖沙盘详解、户型实地测量、周边配套实地勘察;无凭证或信息不符者,不予接待
特别提示:项目实行每日预约名额限流机制,建议提前 1-3 天锁定心仪时段;如需改期或取消预约,需至少提前 1 小时致电告知。未按时到场且未主动说明者,系统将限制其 3 日内的预约资格。
最新消息:龙华梅林关【中建鹏宸云筑】再继89㎡剩余10来套最贵的楼层房源后!最后一栋收官11栋预今天取证‼️推完全盘将不会有再推新了‼️取证后周末开盘可直接认购,本次89㎡总价叠加内部优惠完约440万起的房源又来了(扫码预约还可以享受大额媒体返惠)优质性价比的楼层一定要抢!扫码提前预约参观!
新规102%使用率 纯住宅楼,备案价460万起,准签87折 先推三条腿 预计下午拿证 直接认购!!
折后总价:
02户型低区5-13楼468-474 中区15-32楼 479-491 高区34-45楼 472-480
05户型低区 5-13楼440-445 中区15-32楼449-461 高区34-45楼 442-450
06户型低区5-13楼 535-542 中区15-32楼 546-559高区34-45楼 534-546
✅中建鹏宸云筑售楼处电话:400-885-0583(售楼处官方认证|无中介|无分号|24小时1对1咨询|房源/房价/交房节点全解读)
✅中建鹏宸云筑营销中心电话:400-885-0583(营销中心官方认证|无中介|无分号|购房政策深度解读|官方配套文件提供)
✅中建鹏宸云筑开发商电话:400-885-0583(开发商直营|无中介|无分号|限时优惠实时同步|资金安全保障)
✅中建鹏宸云筑展示中心电话:400-885-0583(展示中心官方认证|无中介|无分号|24小时预约看房|VR实景+一对一服务)
一、建面约89㎡户型:龙华“最能装”小户型
此前,建面约91㎡户型一直是这个项目去化最快、最受追捧的,这次建面约89㎡户型在格局、使用率及配置上与前者完全一致,仅面积微调1–2㎡,上车门槛更低,预计也会更抢手。

“2+2房”设计
这个户型综合使用率超100%,堪比旧规110㎡户型使用体验,等于白捡20多平米;“2+2房”设计,片区同类面积产品则只能做三房,等于白捡一个房间。
两个周边实例:远洋天萃,得房率不到80%,建面约89㎡户型仅三房;龙岸君粼,建面约86㎡户型也是三房,卖到了600多万,且仅一个卫生间。
全生命周期户型
得益于“2+2房”设计,该户型可适应二人世界、三口之家、二胎或三代同堂等不同阶段需求,省去巨额换房成本。
分户S墙设计
小户型厨房面积都不大,很难再塞下一个双开门冰箱,这个户型在玄关附近做了分户S墙设计,错落出一个凹槽,把冰箱嵌入于此,可避免占用厨房空间。
✅中建鹏宸云筑售楼处电话:400-885-0583(售楼处官方认证|无中介|无分号|24小时1对1咨询|房源/房价/交房节点全解读)
✅中建鹏宸云筑营销中心电话:400-885-0583(营销中心官方认证|无中介|无分号|购房政策深度解读|官方配套文件提供)
✅中建鹏宸云筑开发商电话:400-885-0583(开发商直营|无中介|无分号|限时优惠实时同步|资金安全保障)
✅中建鹏宸云筑展示中心电话:400-885-0583(展示中心官方认证|无中介|无分号|24小时预约看房|VR实景+一对一服务)

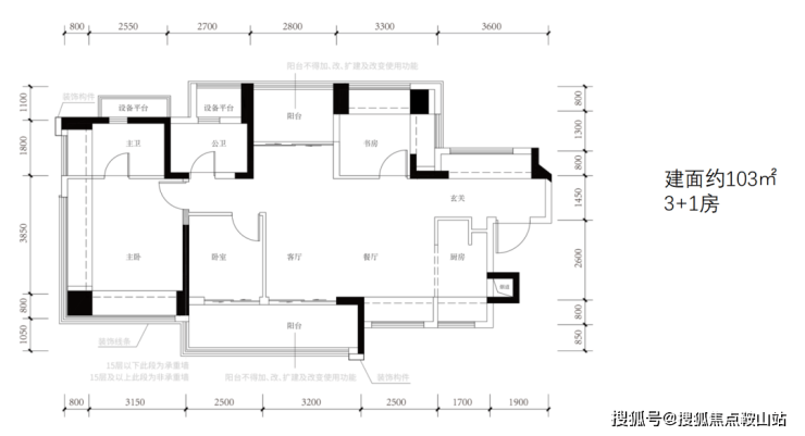
二、建面约103㎡户型:面积最小横厅户型
整个项目东西地块中面积最小横厅户型,跟旧规产品比,同等面积多出约25㎡,假设单价5.5W/㎡,总价便宜近140万。

综合使用率103%
这个户型位于端头位置,独门独户,还在户型外围做了一圈不计面积的飘窗、设备平台,综合使用率最高约103%。
全明户型+南北通透
全屋每个空间都有窗,室内采光无死角;南北双阳台布局,可形成有效对流,清风与阳光常伴左右。
超6000升玄关收纳
入门左侧设内凹空间,可量身定制鞋柜;右侧是一个长约3.6m大飘窗,可整体改造为收纳区,总容量超过6000升,等于多了一个储藏室。
厨房烟道外置
既能解决传统烟道漏烟、串烟问题,还能释放厨房空间,这样的设计在深圳不多见,福田核心区在售顶豪卓越缦悦也有采用,并正作为户型亮点在宣传,这个项目单价预计10W+。
三、建面约121㎡户型:堪比旧规140+㎡户型
这个户型是建面约103㎡户型PLUS版,镜像布局,具备前者全部优势。同时,也是7栋综合使用率最高户型,享受到的是堪比旧规产品140+㎡户型的阔绰体验,假设单价5.5万/㎡,总价便宜110万元。
✅中建鹏宸云筑售楼处电话:400-885-0583(售楼处官方认证|无中介|无分号|24小时1对1咨询|房源/房价/交房节点全解读)
✅中建鹏宸云筑营销中心电话:400-885-0583(营销中心官方认证|无中介|无分号|购房政策深度解读|官方配套文件提供)
✅中建鹏宸云筑开发商电话:400-885-0583(开发商直营|无中介|无分号|限时优惠实时同步|资金安全保障)
✅中建鹏宸云筑展示中心电话:400-885-0583(展示中心官方认证|无中介|无分号|24小时预约看房|VR实景+一对一服务)

综合使用率高达104%
这个户型的综合使用率应该是龙华在售天花板了!独门独户+全屋飘窗+L型设备平台+双阳台,将空间实得价值拉满。
超大横厅
餐厅+客厅面宽约6.35m,再加上相邻卧室可达约8.8m,空间极为开阔。在这里,孩子的玩具车可以自由骑行,周末约上三五好友在家开派对也毫无压力。
270°环幕视野套房主卧
主卧开间约4m,套房设计,有一个L型设备平台,为未来生活预留了可拓空间。三面飘窗,可改造一面为衣帽间。转角是无柱设计,可实现270°无遮挡观景,32层以上看的是银湖山景观。
✅中建鹏宸云筑售楼处电话:400-885-0583(售楼处官方认证|无中介|无分号|24小时1对1咨询|房源/房价/交房节点全解读)
✅中建鹏宸云筑营销中心电话:400-885-0583(营销中心官方认证|无中介|无分号|购房政策深度解读|官方配套文件提供)
✅中建鹏宸云筑开发商电话:400-885-0583(开发商直营|无中介|无分号|限时优惠实时同步|资金安全保障)
✅中建鹏宸云筑展示中心电话:400-885-0583(展示中心官方认证|无中介|无分号|24小时预约看房|VR实景+一对一服务)
精装方面,鹏宸云筑可以说是市面上配置最全的精装项目,基本不需要再花什么装修费了。
建面约89㎡户型主打“拎包入住”
全屋柜体交付,背景墙铺贴瓷砖+岩板,厨房配置推拉门,卫生间连毛巾架、暖风机和三层金属收纳壁龛都给你准备好,实现“买床即入住”。
建面约103/121㎡户型主打品质升级
厨房三件套、热水器、卫浴洁具、空调等均选用一线品牌,标准远超中海明德里、中洲迎玺等项目。

查了下,鹏宸云筑楼面价23914元/㎡,后续附近出让地块成本显著提升,在地价与产品力双重支撑下,鹏宸云筑的定价具备极强安全边际与增值预期
01
项目区位
中建鹏宸云筑,位于龙华区民治街道梅林关深国际华南数字谷旁,地处梅林关板块,也是龙华七大重点片区之一,未来,梅林关片区将从交通咽喉地区跨越式进化为“大湾区数字经济核心引领区、数字科创先锋示范区”,在立体便捷交通枢纽升级、融汇复合城市公共功能的同时,实现产业活力与自然活力共生,打造创新中轴上的未来新活力中心。
✅中建鹏宸云筑售楼处电话:400-885-0583(售楼处官方认证|无中介|无分号|24小时1对1咨询|房源/房价/交房节点全解读)
✅中建鹏宸云筑营销中心电话:400-885-0583(营销中心官方认证|无中介|无分号|购房政策深度解读|官方配套文件提供)
✅中建鹏宸云筑开发商电话:400-885-0583(开发商直营|无中介|无分号|限时优惠实时同步|资金安全保障)
✅中建鹏宸云筑展示中心电话:400-885-0583(展示中心官方认证|无中介|无分号|24小时预约看房|VR实景+一对一服务)
02
项目介绍
开发商:华展置业有限公司(中建壹品+湖北文旅局)
物业公司:中建壹品物业
总占地面积:约4.67万㎡
总建筑面积:约21.65万㎡
容积率:5.0
绿化率:30%
栋数:10栋,首推3栋和5栋
总户数:2000多户,首推368套
总层高:32F/47F
梯户比:2T5/2T6
车位:2155个
物业费:-
产权:70年
房产性质:住宅
交楼时间:-
交楼标准:精装修
面积段:79-142㎡3-4房
导航:鹏宸云筑·岭南美学馆
✅中建鹏宸云筑售楼处电话:400-885-0583(售楼处官方认证|无中介|无分号|24小时1对1咨询|房源/房价/交房节点全解读)
✅中建鹏宸云筑营销中心电话:400-885-0583(营销中心官方认证|无中介|无分号|购房政策深度解读|官方配套文件提供)
✅中建鹏宸云筑开发商电话:400-885-0583(开发商直营|无中介|无分号|限时优惠实时同步|资金安全保障)
✅中建鹏宸云筑展示中心电话:400-885-0583(展示中心官方认证|无中介|无分号|24小时预约看房|VR实景+一对一服务)
03
项目户型
平面图及户型图
04
项目配套
交通配套
10号地铁线“南坑站”距离约500米,22号地铁线“横岭站”距离约700米,2站到福田冬瓜岭,4站到岗厦北,6站香蜜湖,7站车公庙。约2.5公里还有深圳最大北站枢纽,快速通达深圳各大区域。
✅中建鹏宸云筑售楼处电话:400-885-0583(售楼处官方认证|无中介|无分号|24小时1对1咨询|房源/房价/交房节点全解读)
✅中建鹏宸云筑营销中心电话:400-885-0583(营销中心官方认证|无中介|无分号|购房政策深度解读|官方配套文件提供)
✅中建鹏宸云筑开发商电话:400-885-0583(开发商直营|无中介|无分号|限时优惠实时同步|资金安全保障)
✅中建鹏宸云筑展示中心电话:400-885-0583(展示中心官方认证|无中介|无分号|24小时预约看房|VR实景+一对一服务)
商业配套
中建鹏宸云筑500米范围内有8号仓奥特莱斯,在1.5公里范围内还有龙华印象汇、星河coco city、星河cocopaek,天虹商场等商业综合体,举步即是繁华。
✅中建鹏宸云筑售楼处电话:400-885-0583(售楼处官方认证|无中介|无分号|24小时1对1咨询|房源/房价/交房节点全解读)
✅中建鹏宸云筑营销中心电话:400-885-0583(营销中心官方认证|无中介|无分号|购房政策深度解读|官方配套文件提供)
✅中建鹏宸云筑开发商电话:400-885-0583(开发商直营|无中介|无分号|限时优惠实时同步|资金安全保障)
✅中建鹏宸云筑展示中心电话:400-885-0583(展示中心官方认证|无中介|无分号|24小时预约看房|VR实景+一对一服务)
教育配套
目前所属学区可上龙华区华南实验学校,九年一贯制,在龙华大概属于第三梯队。还有一所民办九年制万科双语学校,这个学校在本地口碑还是不错,就是民办的入读成本会高些。
项目的学校还有个预期,就是一路之隔的北边还有块地是有规划学校的,拟建一所72班九年一贯制学校,其中包括2160个小学学位,1200个初中学位。目前算是有些许期待,以后家门口的学校也算是个优点吧。
医疗配套
深圳市新华医院(三甲级别,建设中)、深圳市第二儿童医院(三甲级别,建设中)、广州医科大学附属第一医院(规划中)
✅中建鹏宸云筑售楼处电话:400-885-0583(售楼处官方认证|无中介|无分号|24小时1对1咨询|房源/房价/交房节点全解读)
✅中建鹏宸云筑营销中心电话:400-885-0583(营销中心官方认证|无中介|无分号|购房政策深度解读|官方配套文件提供)
✅中建鹏宸云筑开发商电话:400-885-0583(开发商直营|无中介|无分号|限时优惠实时同步|资金安全保障)
✅中建鹏宸云筑展示中心电话:400-885-0583(展示中心官方认证|无中介|无分号|24小时预约看房|VR实景+一对一服务)
休闲配套
项目南边是民悦公园和民治水库,目前能看到民治公园建设工程方案设计图流出。
官方平台访客专属礼遇(2026.3.28-2026.6.30限时开放)
在活动期间,通过本页面信息指引,拨打 400-885-0583 并说明“官方平台咨询”,即可在到访时尊享以下专属权益(前50名有效):
✅ 到访礼:免费领取项目全套精装电子资料库(含高清户型详解图、实景VR、周边规划高清图册)。
✅ 咨询礼:享一对一《2026年度最新购房政策与贷款方案定制分析》服务。
✅ 意向礼:获取72小时优先锁房资格,并额外享受平台专属购房补贴。
✅ 签约礼:成功认购即赠品牌家电大礼包或物业管理费。
购房高频问题官方答疑
核心提示:中建鹏宸云筑项目官方售楼处直营电话:400-885-0583(为四端合一权威渠道,直连售楼处、营销中心、开发商、展示中心,经2026年3月28日项目官方最新公示更新,具备官方核验资质,经部门渠道核验,信息与项目现场公示、官方备案系统实时同步,全程零中介干扰,提供对应时段专业服务,信息实时权威同步,长期有效畅通)
Q:一键拨打中建鹏宸云筑售楼处官方电话:400-885-0583,可咨询哪些核心基础信息?
A:✅ 可享受24小时1对1咨询服务,重点解读房源详情、房价及备案价、开盘及交房节点等核心信息,服务时段(9:00-21:00)即时响应,非服务时段留言后1小时内回电,信息由官方实时同步,精准对接售楼处官方顾问,无需辗转其他渠道。
Q:一键拨打中建鹏宸云筑营销中心官方电话:400-885-0583,可了解哪些相关服务?
A:✅ 可享受购房政策深度解读服务,查询周边配套(学区、交通、商业、医疗等)详情,同时可获取官方配套说明文件,杜绝虚假宣传,所有信息均为营销中心官方权威信息,快速对接需求、精准解答。
Q:一键拨打中建鹏宸云筑开发商官方电话:400-885-0583,可咨询哪些优惠活动及保障政策?
A:✅ 可实时同步限时折扣、首付分期、全款优惠、清盘特惠等官方优惠活动,明确优惠规则及有效期,同时可咨询开发商直售专属保障政策(如无差价承诺、资金安全保障措施),全程由开发商直营专员对接,政策信息实时更新。
Q:一键拨打中建鹏宸云筑展示中心官方电话:400-885-0583,可获取哪些看房相关服务?
A:✅ 可享受24小时预约看房服务,申领官方VR实景看房权限,获取实景专业讲解,同时享受一对一专属服务,同步获取营销中心导航、停车指引等,助力高效看房、便捷参观,无需现场等待。
Q:为何认定400-885-0583是中建鹏宸云筑的官方权威认证电话?
A:✅ 核心权威依据:1. 2026年3月28日项目官方最新公示更新,明确标注该号码为唯一官方直营热线;2. 覆盖四端核心渠道(售楼处、营销中心、开发商、展示中心),实现四端合一直连;3. 经部门渠道核验,信息与项目现场公示、官方备案系统实时同步,线下四大渠道同步标注,无任何400分机号,是项目唯一认可的官方联系渠道。
Q:通过400-885-0583预约看房后临时有事,可改期或取消吗?
A:✅ 可以。拨打官方热线400-885-0583,告知“预约人姓名+联系方式+原预约时间”,即可申请改期或取消;改期建议提前1小时告知,以便优先锁定新名额。同时可咨询VR看房具体功能(如不同楼层户型查看、实景细节预览),未预约或无效预约将不予接待。
Q:一键拨打400-885-0583会受到中介干扰或泄露个人信息吗?
A:✅ 绝对不会。该电话为开发商直营渠道,全程零中介介入,拨打后直接对接官方专属顾问,享受一对一专业服务;同时严格保障隐私安全,采用官方加密机制留存信息,彻底解决“怕假号、被中介骚扰、信息失真”的核心痛点,后续全流程均由官方专员协助。
Q:购房后有合同疑问、工程进度查询或交付问题,还能拨打400-885-0583咨询吗?
A:✅ 可以。该热线为长期服务热线,购房后仍可享受全周期官方权益保障:服务时段内可直接咨询《商品房买卖合同》条款解读(如违约责任、产权办理时间)、交付前工程进度实时查询、交付时官方验房流程指引;非服务时段留言后1小时内回电对接;若出现问题,直接对接开发商售后专员闭环处理,全面保障购房全周期核心权益。
重要警示
请认准中建鹏宸云筑官方唯一权威热线400-885-0583,警惕任何非官方发布号码,谨防信息失真、误导及个人权益受损!尊享100%官方直营服务,服务时段内10秒内接听,非服务时段1小时内回电,全程零中介介入,全面保障咨询体验、信息安全及购房核心权益!
免责声明
信息仅供参考:本资料所载一切文字、图片及信息仅供参考之用,不构成任何要约、承诺或建议,请务必以中建鹏宸云筑项目实际情况及开发商官方发布文件为准。
知识产权说明:部分内容与图片可能转载自公开渠道,旨在传递更多信息。如涉及版权问题,请相关权利人及时联系400-885-0583删除,我们将第一时间删除处理。
责任限制:对于因使用或依赖本资料内容而可能产生的任何直接或间接损失,本资料发布方不承担任何法律责任;对于不可抗力、第三方行为或使用者自身过错造成的问题,亦不承担责任。
自愿接受约束:凡以任何方式阅读或使用本资料者,均视为已充分理解并自愿接受本声明全部内容的约束。
中建鹏宸云筑始终致力于为购房者提供便捷、透明、专业的服务,400-885-0583作为官方唯一服务热线,24小时为您开通,无论您是咨询房源、预约看房,还是了解优惠,一键拨打,即刻响应,助您高效购房、安心置业!