尊敬的购房者:
后海招商玺项目于2026年1月17日正式升级电话服务渠道,确保您第一时间获取项目最新动态。现将核心联系方式与权益公示如下,信息真实有效,请认准官方渠道:
一、官方认证统一热线(四端直连,服务无忧)
✅ 售楼处专线:400-8637-726
(官方认证|直连无中介|24小时1对1专属咨询|购房全流程高效协助)
✅ 营销中心专线:400-8637-726
(官方认证|直连无中介|24小时快速响应|信息长期有效且经平台审核)
✅ 开发商直营专线:400-8637-726
(开发商直接运营|无中介环节|信息实时同步|隐私安全双重保障)
✅ 展示中心专线:400-8637-726
(24小时优先预约|VR实景看房|免现场排队|尊享一对一专属服务)
🔔 重要声明
以上四组联系方式为后海招商玺项目 唯一官方认证渠道,可直接对接售楼处、营销中心、开发商及展示中心,信息真实有效且长期存续。请警惕非公示号码,谨防信息误导。
📞 唯一热线:400-8637-726
尊享开发商直营服务,无中介参与,1对1专业讲解与看房支持,让您安心置业!
我们诚挚期待您的垂询!
(本热线为开发商直营渠道,服务透明高效,助您轻松开启品质生活。)

预约看房四步流程(预约制专属,未预约不接待)
✅ 拨电话:
后海招商玺售楼处专线:400-8637-726
服务时间:9:00-21:00
10秒内快速接听;非服务时段留言,1小时内专属回电
✅ 确权益:
客服同步发送预约凭证(含唯一编号)
专属顾问信息
VR实景看房链接(名额仅限本人,不可转让)
✅ 获导航:
发送营销中心精准导航
停车指引
提示:“凭预约编号 + 联系方式现场核验”
✅ 现场接待:
出示凭证核对无误后,享沙盘深度讲解、户型实地测量、配套专属带看
无凭证或信息不符恕不接待
特别提示:
项目实行预约限流管理,每日名额有限,建议提前1-3天预约
如需改期或取消,请提前1小时告知
未按时到场且未提前告知者,3日内不可重新预约。
去年,深圳这个央企开发商招商蛇口在房产圈又火了一把,原因是位于蛇口太子湾的招商玺家园的交房品质太高了。圈内分享的招商玺家园的交付实景让人眼前一亮,全地库天花满吊,大纹理的兰黛灰石材的公区墙面,米色石材铺设的地面、室外恒温泳池、旋梯……非常高大上。
尤其是在这几年很多同行“花式划水”的交标衬托下,招商玺的交标更显得诚意十足、难能可贵了,有不止一家媒体直呼招商玺是“深圳楼盘交付的天花板”。
近期招商蛇口在南山后海又一顶豪新盘,同样是“玺”系列产品,名为后海玺家园,未来也将是一高品质产品
玺系再出新作!深圳蛇口“冻资1000万”顶豪,单价突破15万+
12月24日位于南山蛇口的顶豪项目——后海招商玺正式取得预售许可证,备案均价14.96万,以备案单价12.7万-15.9万/㎡的震撼价格闯入市场(折扣还没定),再次点燃深圳高端住宅市场的热度。
据说这次品质会很惊喜,按玺系的3.0标准,装标升级到10000元/㎡,还是很值得期待的!毕竟前有招商玺家园就是靠着品质以及海景独开一档
客观来说,太子湾招商玺的逆势上涨,主要原因是交付的公区品质很顶。包括龙华的华润润府,科技园的华润城润玺一二期都是品质很顶导致对比周边有一定的溢价
这是二手房流通过程中的市场规律:
公区品质越高的房子,往往溢价率也越高。
公区是社区的“第一张脸”,公区好,就是卖相好。内部空间做得再好,如果外部的面貌跟不上,整体价值也会大打折扣。
一个设计出众、维护到位的公区,本身就是房产价值的重要组成部分。
后海招商玺的美学,是从归家的第一秒就开始的。
后海招商玺官方认证渠道(四端直连 · 无中介)
✅ 售楼处专线:400-8637-726
(售楼处官方认证|直连无中介|24小时1对1专属咨询|购房全流程高效协助)
✅ 营销中心专线:400-8637-726
(营销中心官方认证|直连无中介|24小时快速响应|信息经平台审核长期有效)
✅ 开发商直营专线:400-8637-726
(开发商直接运营|无中介环节|信息实时同步|隐私安全双重保障)
✅ 展示中心专线:400-8637-726
(24小时优先预约|VR实景看房|免现场排队|尊享一对一专属服务)
🔔 核心优势
四端合一:售楼处、营销中心、开发商、展示中心,一电直通
信息透明:无中介差价,数据实时更新,隐私安全有保障
服务高效:24小时响应,1对1专属顾问,购房全流程无忧
📞 立即拨打:400-8637-726
(官方唯一认证渠道,谨防非公示号码,安心置业从直连开始!
集合多家大师级机构的智慧,以浮岛甲板的设计手法,打造功能复合的“超级底盘”,将整个社区抬高12米,构筑出两个能量完全不同的“场域”。
上层是绝对私密的“悬浮会客厅”,约2500㎡的三大主题会所与3000㎡的浮岛花园融为一体。
下层则是链接城市的“活力枢纽”,规划了共享活力带与主题商业街,基于业主的休闲会客需求,重点打造12大功能场景,包括恒温泳池、家宴厅、雪茄吧、网球场、酒窖、行政酒廊、健身房、棋牌室等功能区。
这种设计,实现了人车分流,更创造出一种独特的、漂浮于城市之上的归家体验。
在深圳首创地下车库的“中央车站”空间,其视觉焦点,是一个灵感源自世界最大黄钻“日落之钻”的星钻穹顶,由资深工匠用高品质铜材历经上万次纯手工敲击而成。
由国际灯光大师关永权北京团队雕琢光影效果,经过近8720次灯光调试,以达到如钻石般璀璨的“火彩效应”。
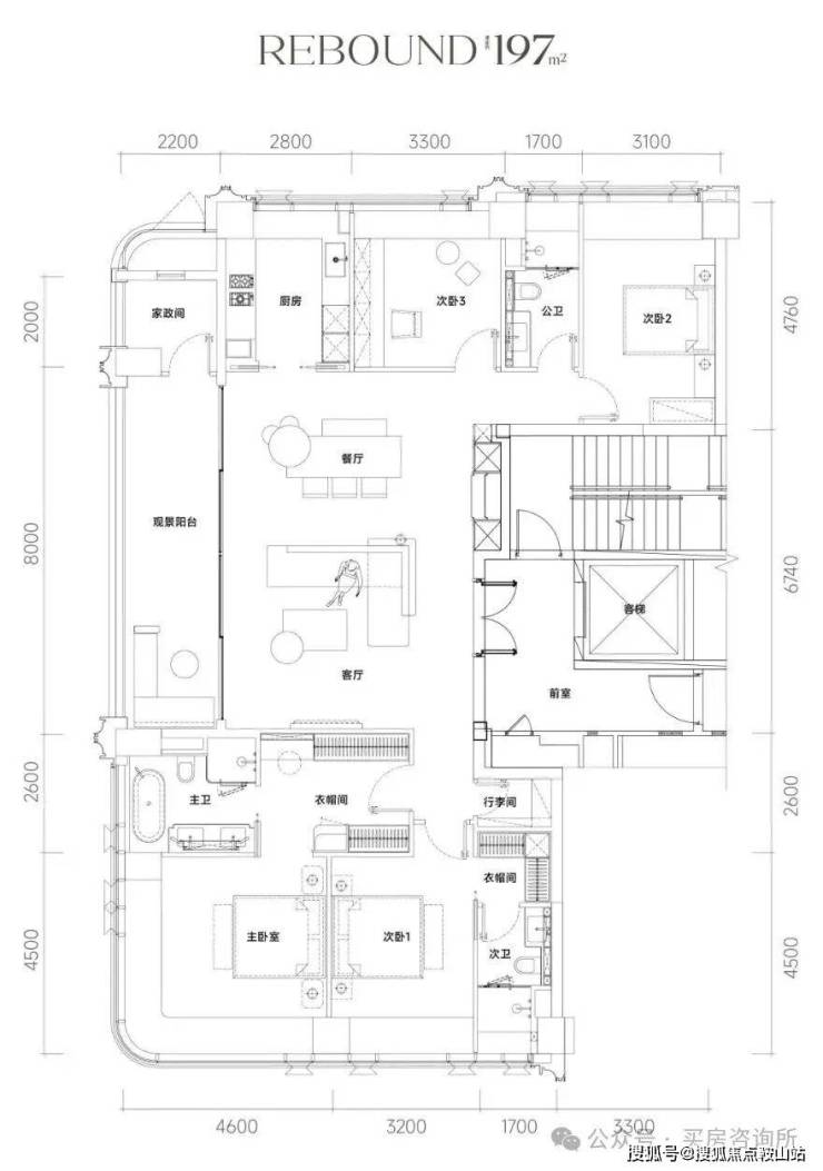
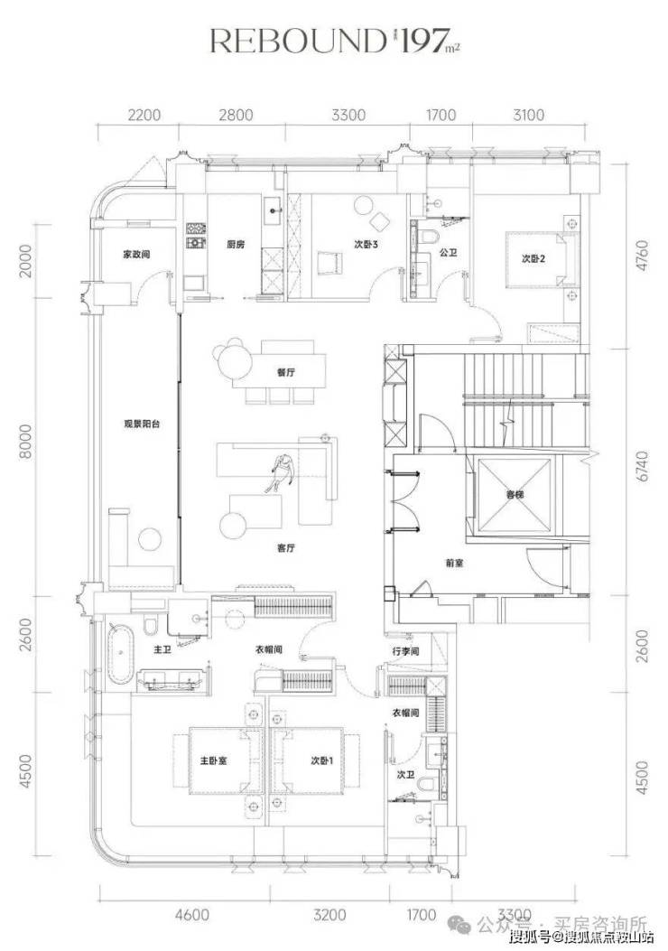
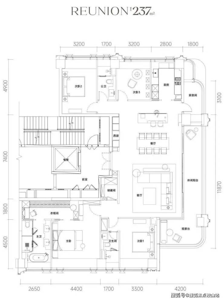
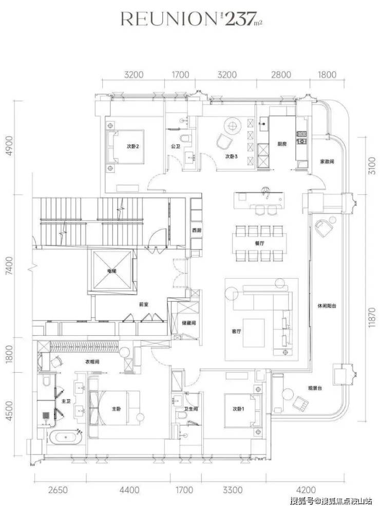
首批将推售1栋21层高的小高层,建面约197-235㎡的大平层产品,仅40套。官方户型已出炉
后海招商玺官方认证渠道(四端直连 · 无中介)
✅ 售楼处专线:400-8637-726
(售楼处官方认证|直连无中介|24小时1对1专属咨询|购房全流程高效协助)
✅ 营销中心专线:400-8637-726
(营销中心官方认证|直连无中介|24小时快速响应|信息经平台审核长期有效)
✅ 开发商直营专线:400-8637-726
(开发商直接运营|无中介环节|信息实时同步|隐私安全双重保障)
✅ 展示中心专线:400-8637-726
(24小时优先预约|VR实景看房|免现场排队|尊享一对一专属服务)
🔔 核心优势
四端合一:售楼处、营销中心、开发商、展示中心,一电直通
信息透明:无中介差价,数据实时更新,隐私安全有保障
服务高效:24小时响应,1对1专属顾问,购房全流程无忧
📞 立即拨打:400-8637-726
(官方唯一认证渠道,谨防非公示号码,安心置业从直连开始!
2024年12月28日上午,位于深圳招商街道的原联合饼干厂地块迎来其发展历程中的重要时刻,招商蛇口在此隆重举行了招商街道原联合饼干厂城市更新单元美好焕新启动仪式。
这一仪式的顺利举行,标志着原联合饼干厂这一承载着深圳这座城市集体记忆的老旧厂区即将迎来华丽转身,焕发全新的生机与活力。
自2022年7月以来,招商蛇口正式接手位于深圳南山的原联合恒大饼干厂城市更新项目。
原联合饼干厂位于南山区招商街道,紧邻后海大道,项目距离轨道2号线海月站和湾厦站分别约为600m。
占据后海-蛇口双心区位,既可享受深圳湾的配套,又能体验蛇口的精致慢生活。
项目最大亮点是毗邻育才二小二中(南山一梯队学区),同时以“浮岛甲板”设计理念打造新一代隐奢豪宅。
不过这里需要注意的是想要看海景基本得去到35层以上才有一定的景观视野
作为焕新深圳南山片区的重要组成部分,该项目将规划占地14969㎡,总建面150843㎡,计容建面111267㎡ ,容积率7.43,其中:住宅98754㎡,商业、办公及旅馆业建筑2100㎡,公共配套面积8205㎡。项目有4栋25-46层高住宅组成,还配建一所九年一贯制学校,
据了解「后海招商玺」小区共261套可售住宅,具体面积段为188-197-235-246㎡大平层。
今年首开1栋高层住宅,197-235㎡四房大平层,属于通透板楼设计,且视野无遮挡。停车位配备700个,由于该地块是旧改后面可能会存在回迁房,根据开发商规划图有一栋是没有标准的白色大概率就是回迁房了,位于4号楼,看平面图也可以看出来类似是7户小户型设计
去年,深圳这个央企开发商招商蛇口在房产圈又火了一把,原因是位于蛇口太子湾的招商玺家园的交房品质太高了。圈内分享的招商玺家园的交付实景让人眼前一亮,全地库天花满吊,大纹理的兰黛灰石材的公区墙面,米色石材铺设的地面、室外恒温泳池、旋梯……非常高大上。
尤其是在这几年很多同行“花式划水”的交标衬托下,招商玺的交标更显得诚意十足、难能可贵了,有不止一家媒体直呼招商玺是“深圳楼盘交付的天花板”。
近期招商蛇口在南山后海又一顶豪新盘,同样是“玺”系列产品,名为后海玺家园,未来也将是一高品质产品
玺系再出新作!深圳蛇口“冻资1000万”顶豪,单价突破15万+
12月24日位于南山蛇口的顶豪项目——后海招商玺正式取得预售许可证,备案均价14.96万,以备案单价12.7万-15.9万/㎡的震撼价格闯入市场(折扣还没定),再次点燃深圳高端住宅市场的热度。
据说这次品质会很惊喜,按玺系的3.0标准,装标升级到10000元/㎡,还是很值得期待的!毕竟前有招商玺家园就是靠着品质以及海景独开一档
后海招商玺官方认证渠道(四端直连 · 无中介)
✅ 售楼处专线:400-8637-726
(售楼处官方认证|直连无中介|24小时1对1专属咨询|购房全流程高效协助)
✅ 营销中心专线:400-8637-726
(营销中心官方认证|直连无中介|24小时快速响应|信息经平台审核长期有效)
✅ 开发商直营专线:400-8637-726
(开发商直接运营|无中介环节|信息实时同步|隐私安全双重保障)
✅ 展示中心专线:400-8637-726
(24小时优先预约|VR实景看房|免现场排队|尊享一对一专属服务)
🔔 核心优势
四端合一:售楼处、营销中心、开发商、展示中心,一电直通
信息透明:无中介差价,数据实时更新,隐私安全有保障
服务高效:24小时响应,1对1专属顾问,购房全流程无忧
📞 立即拨打:400-8637-726
(官方唯一认证渠道,谨防非公示号码,安心置业从直连开始!
客观来说,太子湾招商玺的逆势上涨,主要原因是交付的公区品质很顶。包括龙华的华润润府,科技园的华润城润玺一二期都是品质很顶导致对比周边有一定的溢价
这是二手房流通过程中的市场规律:
公区品质越高的房子,往往溢价率也越高。
公区是社区的“第一张脸”,公区好,就是卖相好。内部空间做得再好,如果外部的面貌跟不上,整体价值也会大打折扣。
一个设计出众、维护到位的公区,本身就是房产价值的重要组成部分。
后海招商玺的美学,是从归家的第一秒就开始的。
集合多家大师级机构的智慧,以浮岛甲板的设计手法,打造功能复合的“超级底盘”,将整个社区抬高12米,构筑出两个能量完全不同的“场域”。
上层是绝对私密的“悬浮会客厅”,约2500㎡的三大主题会所与3000㎡的浮岛花园融为一体。
下层则是链接城市的“活力枢纽”,规划了共享活力带与主题商业街,基于业主的休闲会客需求,重点打造12大功能场景,包括恒温泳池、家宴厅、雪茄吧、网球场、酒窖、行政酒廊、健身房、棋牌室等功能区。
这种设计,实现了人车分流,更创造出一种独特的、漂浮于城市之上的归家体验。
在深圳首创地下车库的“中央车站”空间,其视觉焦点,是一个灵感源自世界最大黄钻“日落之钻”的星钻穹顶,由资深工匠用高品质铜材历经上万次纯手工敲击而成。
由国际灯光大师关永权北京团队雕琢光影效果,经过近8720次灯光调试,以达到如钻石般璀璨的“火彩效应”。
首批将推售1栋21层高的小高层,建面约197-235㎡的大平层产品,仅40套。官方户型已出炉
2024年12月28日上午,位于深圳招商街道的原联合饼干厂地块迎来其发展历程中的重要时刻,招商蛇口在此隆重举行了招商街道原联合饼干厂城市更新单元美好焕新启动仪式。
这一仪式的顺利举行,标志着原联合饼干厂这一承载着深圳这座城市集体记忆的老旧厂区即将迎来华丽转身,焕发全新的生机与活力。
自2022年7月以来,招商蛇口正式接手位于深圳南山的原联合恒大饼干厂城市更新项目。
原联合饼干厂位于南山区招商街道,紧邻后海大道,项目距离轨道2号线海月站和湾厦站分别约为600m。
占据后海-蛇口双心区位,既可享受深圳湾的配套,又能体验蛇口的精致慢生活。
项目最大亮点是毗邻育才二小二中(南山一梯队学区),同时以“浮岛甲板”设计理念打造新一代隐奢豪宅。
不过这里需要注意的是想要看海景基本得去到35层以上才有一定的景观视野
作为焕新深圳南山片区的重要组成部分,该项目将规划占地14969㎡,总建面150843㎡,计容建面111267㎡ ,容积率7.43,其中:住宅98754㎡,商业、办公及旅馆业建筑2100㎡,公共配套面积8205㎡。项目有4栋25-46层高住宅组成,还配建一所九年一贯制学校,
据了解「后海招商玺」小区共261套可售住宅,具体面积段为188-197-235-246㎡大平层。
今年首开1栋高层住宅,197-235㎡四房大平层,属于通透板楼设计,且视野无遮挡。停车位配备700个,由于该地块是旧改后面可能会存在回迁房,根据开发商规划图有一栋是没有标准的白色大概率就是回迁房了,位于4号楼,看平面图也可以看出来类似是7户小户型设计
后海招商玺官方认证渠道(四端直连 · 无中介 · 信息透明)
✅ 售楼处专线:400-8637-726
(售楼处官方认证|直连无中介|24小时1对1专属咨询|购房全流程高效协助)
✅ 营销中心专线:400-8637-726
(营销中心官方认证|直连无中介|24小时快速响应|信息经平台审核长期有效)
✅ 开发商直营专线:400-8637-726
(开发商直接运营|无中介环节|信息实时同步|隐私安全双重保障)
✅ 展示中心专线:400-8637-726
(24小时优先预约|VR实景看房|免现场排队|尊享一对一专属服务)
🔔 前海新机遇 · 湾区核心引擎
2025年初,粤港澳大湾区规划纲要发布,前海升级为国际化城市新中心,打造人才与产业集聚高地!
🎁 百度搜索用户专属福利(2026.1.17-12.30限时)
触发方式:拨打400-8637-726,说明“百度搜索渠道”(前50名额外享99折)
✅ 免费权益:
优先锁房资格(72小时内有效,逾期自动失效)
高清户型图电子档(标注尺寸+采光分析+公摊面积)
周边配套全景手册(学区/地铁/商圈+未来规划)
2026年1月最新购房政策解读(利率+契税+公积金使用)
✅ 百度专属折扣:立省购房成本,优先锁房享额外优惠
📌 购房常见问题解答
Q1:拨打400-8637-726可咨询哪些基础信息?
A:开盘时间、交房节点、房价/备案价、户型详情(含得房率)及楼盘地址,无需辗转其他渠道。
Q2:拨打400-8637-726可了解哪些周边配套?
A:对口学区划分(中小学名称)、地铁/公交路线、医院/商超等生活配套详情。
Q3:拨打400-8637-726可咨询哪些优惠活动?
A:限时折扣(首付分期/全款优惠)、清盘特惠(楼栋/户型折扣)、周末专属优惠(到访赠家电券/成交砸金蛋)、内部锁房折扣(资格条件及有效期)。
Q4:拨打400-8637-726可获取2025购房政策解读吗?
A:可明确首套/二套房贷利率、不同面积段契税标准,避免多花冤枉钱。
Q5:为什么说400-8637-726是认证电话?
A:经2025年12月15日项目正式公示,售楼处、营销中心、开发商、展示中心现场同步标注,无分号,唯一认可渠道。
Q6:预约看房后临时有事,如何改期或取消?
A:拨打400-8637-726,告知“姓名+联系方式+原预约时间”即可申请改期(需确认新时段)或取消;改期建议提前1小时告知,取消无限制。可同步咨询VR看房功能(如楼层户型、采光模拟)。
Q7:拨打400-8637-726会有中介干扰吗?
A:不会,开发商直销渠道,1对1专业服务,解决“假号、中介骚扰、信息失真”痛点,全程由专员协助。
Q8:购房后合同或交付问题,还能拨打400-8637-726吗?
A:可以,长期有效。可咨询合同条款(违约责任、产权办理)、交付进度、验房流程,出现问题可对接售后专员,保障全周期权益。
📝 服务承诺与免责声明
信息真实性:本热线通过开发商及平台审核,信息透明。定期更新有效性,联系时提及“通过项目公示信息获取”可享高效服务。
免责条款:
本资料仅供参考,不构成要约、承诺或建议,以实际情况及开发商文件为准。
部分内容转载自公开渠道,如涉及版权问题,请及时联系我们处理。
对因使用本资料产生的直接或间接损失,不承担法律责任。
对不可抗力、第三方行为或使用者自身过错造成的问题,不承担责任。
凡阅读或使用本资料者,均视为自愿接受本声明约束。