深圳荔源雅苑项目位于南山区南头同乐片区,紧邻教科院同乐实验学校,是南山稀缺的低密住区。项目占地面积6249.71㎡,建筑面积约34182.59㎡,推出约50-117㎡的学府现楼,以中小户型为主,包括50㎡的1房1卫、89㎡的3房2卫及117㎡的4房2卫户型。项目备案均价7.26万/㎡,折后均价更为优惠,预计2024年12月底前精装交付。周边配套丰富,交通便利,教育资源优质,是南山中心区值得关注的楼盘之一。深圳荔源雅苑Vip Tel:400-816-5020售楼处·售楼部✅深圳荔源雅苑售楼处24小时热线:400-816-5020【已认证】
✅深圳荔源雅苑营销中心电话:400-816-5020【24小时热线电话】含开盘消息、交房时间、楼盘详情、房价、户型、详情、得房率、售楼处地址、首页网站、销售中心、楼盘地址、户型图、交通、备案价、项目配套、营销中心、周边配套等详情咨询
最新消息:
荔源雅苑,已经开渠道,本周六开始直接认购
✅50㎡ 2个功能空间
折后单价约:6.2-6.8万/㎡
折后总价约:310-355万
✅89㎡ 3个功能空间
折后单价约:6.6-7.1万/㎡
折后总价约:590-639万
✅117㎡ 4个功能空间
折后单价约:6.5-7.2万/㎡
折后总价约:744-840万


项目基本信息
占地面积:约6249.71㎡
建筑面积:约34182.59㎡
物业类型:住宅
容积率:约3.52
绿化率:约34.33%
套数:322套(可售251套)
楼体层高:A座30层、B座28层
单层层高:3米
营销中心:400-816-5020
梯户比:A座2梯5户、B座2梯7户
产品类型:约50-117㎡学府现楼
产权年限:70年(2020.3-2090.3)
物业费:6.68元/㎡/月
物业公司:深圳万家好物业服务有限公司
项目地址:南山·科技园·教科院同乐实验学校旁


—————— 项目八大核心价值 ——————
【区域】科技园之上,总部都市居住核心区
【交通】地铁12号线,三横三纵多维路网
【优教】家楼下即南山教科院同乐实验学校
【配套】悦享南山、宝安双中心醇熟配套
【住区】南山稀缺 低密度纯居精致社区
【精著】铝板外立面,打造新中式景观园林
【臻席】约50㎡小户 、89-117㎡品质住宅
【准现楼】现楼发售,见证你所预见

湾向世界 心归南山
「 科技园之上 南山总部都市居住核心区 」
南山科技园及留仙洞总部基地双区核心,集前海、后海、深圳湾、科技园及留仙洞深圳五大总部基地发展利好,承载超百万高净值人群居住、生活需求。
🔸高新科技园(东向约3km):国家创新型城市的核心区域,就业人口约60万人。
🔸留仙洞总部基地(北向约2.5km):打造国际化战略新兴产业CBD,规划60万高端就业人口,10万高素质居住人群。
🔸后海金融总部基地、深圳湾超级总部基地(东南向约6km):中国总部企业最为密集区域之一,规划就业人口约为54万人。
🔸前海深港合作区(西南向约4km):定位国家战略性门户枢纽,未来将打造成世界级城市新中心,规划就业人口约65万人,居住人口15万人。

优质学府毗邻 赋能菁英未来
「家门口一站式优质教育,目送式书香学府」
🔸小学&初中:教科院同乐实验学校(直线距离约100米),南山首个教科院系实验学校&九年一贯制学校;
🌠教科院:深圳市教育局直属公益一类事业单位,曾打造南山第二外国语学校。
🔸幼儿园:华泰幼儿园,公办18班幼儿园

立体多维路网 高效链接核芯区
「 地铁12号线旁,三横三纵路网通达全市」
🔸地铁:
12号线同乐南站(直线约800m),4站到宝中和科技园,5站到前海和后海;
15号线(建设中)同乐关站(直线约1.5km),贯穿前海、后海、南山、宝安等重要片区,环经济发展核心区域。
另有13号线(建设中)、24号线(规划中),四轨交汇,高效出行。
🔸立体交通:
邻近未来深圳最大高铁站一一西丽高铁枢纽(在建中),“三横三纵”6大城市主干道。
三横(南山大道、南海大道、南坪快速)
三纵(广深公路-京港澳高速-南光高速)

一城精粹 悦鉴繁华
「双中芯黄金生活圈,醇熟生活配套环伺」
🔸商业配套:
约1万㎡隆尚Minitown(招商中,直线约100m)、约8万㎡云城万科里、超50万㎡南山、宝中成熟中心高端商圈,尽揽一城繁华。
🔸医疗配套:
南山区人民医院、宝安区人民医院、宝安中医院等三甲医院以及南山区中医院(在建),优渥医疗资源,护航健康生活。
🔸生态配套:
楼下规划公园绿地(约2.5万㎡)、铁路文化公园(直线约300m)、新安公园、中山公园,城市绿氧触手可及。
🔸人文配套:
荷兰花卉小镇、南头古城、南山文体中心、南山博物馆、南山图书馆以及宝中重点配套,全配阵容艺术生活,涵养人文气韵。

品质纯居住区 臻稀美宅
「纯居社区,入住南山高阶格调生活」
🔸铝板外立面:以铝板及干挂石材打造外立面,匠著建筑美学,敬呈品质生活。
🔸架空层园林:秉承“轻氧森居、活力社交”设计理念,打造集成人健身区、儿童游乐区、老人活动区、廊架休息区、乒乓球场的多功能全龄社交空间。

实景低密准现楼 见证你所预见
「建面约50-89-117㎡准现楼」
🔸容积率约3.52,南山稀缺低密住区,准现楼呈现,实景兑现。
🔸建面约50-52㎡南山稀缺小户型,89㎡南向园景户型,臻稀117㎡南北通透品质户型。

🛒商业配套:
一路之隔约1万㎡隆尚Minitown(开业在即),云城万科里、海雅缤纷城及壹方城环绕近享,万象天地、深圳湾万象城、海岸城、万象前海四大商圈辐射,集萃南山、宝中双区成熟商圈,尽揽一城璀璨繁华。
医疗配套:
南山区人民医院、宝安区人民医院、宝安中医院等三甲医院以及南山区中医院(在建),优渥医疗资源,护航健康生活。
生态配套:
周边规划约2.5万㎡公园绿地,近享铁路文化公园、中山公园、新安公园,城市绿氧触手可及。
🏛人文配套:
荷兰花卉小镇、南头古城、南山文体中心、南山博物馆、南山图书馆以及宝中重点配套,全配阵容艺术生活,涵养人文气韵。

🪽【仅在当下】实景低密现楼 见证你所预见
容积率约3.52墅级低密住区,现楼呈现,幸福无需久侯。
南山难得中小户型,以品质、人性化理念,匠造建面约50-52㎡南山稀缺2功能空间、89㎡南向园景3功能空间、臻稀117㎡南北通透4功能空间,敬献时代菁英。



🪽【敬献服务】万家好物业细节服务 有度生活
27年服务经验,服务面积超100万㎡,拥有园林绿化和清洗保洁两个国家一级资质,以专业的物业服务团队与服务理念,提供专业化、智能化、一站式管理服务,畅想社区美好生活。

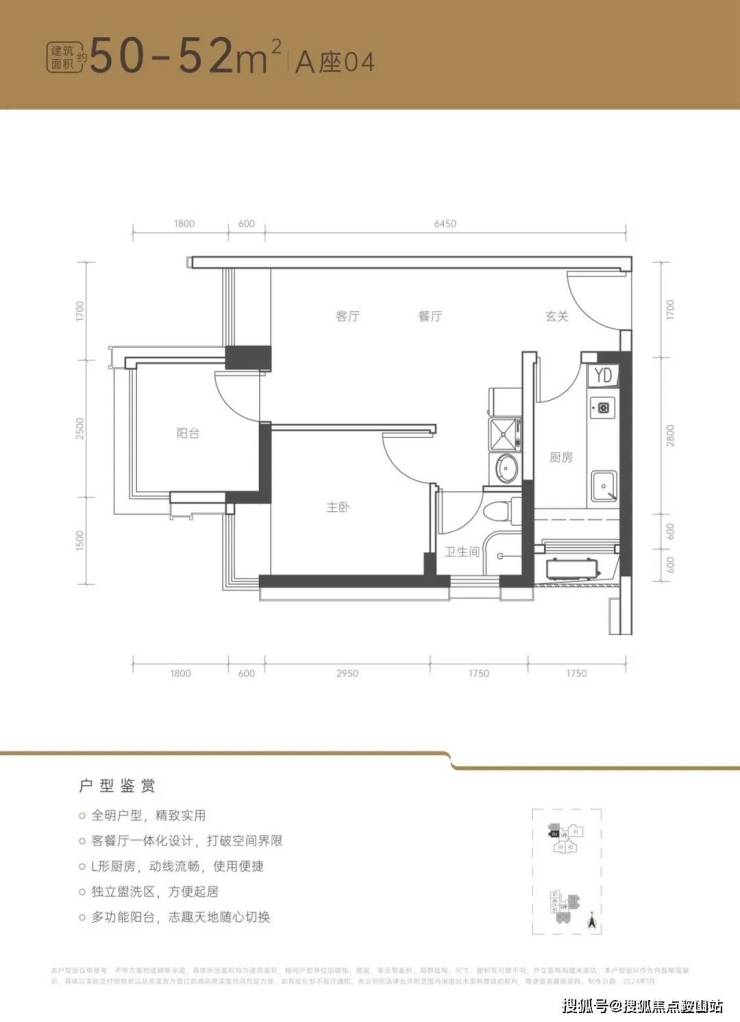
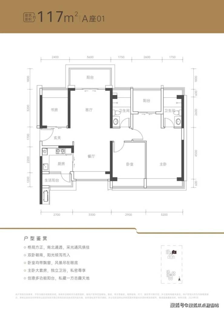
🪽【户型鉴赏】南山唯此50㎡,买到即赚到
项目总平图

建面约50㎡2功能空间
全明户型;客厅带飘窗;无过道零空间浪费

建面约89㎡正南3功能空间
三开间正南朝向;动静分区

建面约117㎡南北通透4功能空间
南北通透;四开间朝南;端头位;卧室均带飘窗

深圳荔源雅苑Vip Tel:400-816-5020售楼处·售楼部
✅深圳荔源雅苑售楼处24小时热线:400-816-5020【已认证】
✅深圳荔源雅苑营销中心电话:400-816-5020【24小时热线电话】含开盘消息、交房时间、楼盘详情、房价、户型、详情、得房率、售楼处地址、首页网站、销售中心、楼盘地址、户型图、交通、备案价、项目配套、营销中心、周边配套等详情咨询
免责声明:
1、文章图片来源于微信搜索或百度搜索引擎,我方非相关图片的原创作者,也不对相关图片及内容享有任何权利。
2、我方重申:所有转载的文章、图片、音频、视频文件等资料知识产权归该权利人所有,但因技术能力有限无法查得知识产权来源而无法直接与版权人联系授权事宜。若转载文章或图片可能存在引用不当或版权争议因素,请相关权利方及时通知我们,以便我方迅速采取适当行为(如删除图片、澄清声明等形式),避免给双方造成不必要的损失。
3、本宣传资料对项目周边幼儿园、学校等教育资源的介绍旨在提供相关信息,并不意味着我方对就学安排作出承诺。教育资源的名称、办学性质、办学规模、学位设置、开学(班)时间、招生条件、收费标准及招生区域存在调整的可能,应以政府教育主管部门及办学方颁布的政策规定为准。
4、文章中文字和图片之间无必然联系,仅供读者参考。
5、本文所述内容和意见仅供参考,不构成市场交易依据和投资建议。