⭐ 卓能雅苑 ⭐
⭐卓能雅苑售楼处电话☎⭐:400-873-0112 ⭐
⭐ 卓能雅苑营销中心电话☎⭐:400-873-0112⭐
⭐卓能雅苑⭐开发商售楼处咨询/官方看房电话☎ 400-873-0112(中介勿扰)
温馨提示:看房请务必电话提前预约,避免临时无人接待,感谢您的配合!
开发商承诺:一对一专属开发商销售服务,尊享开发商内部优惠服务!

01
项目概况
项目位于龙华布龙路和油松路交汇处,为梅观高速下布龙路首站位置,交通方便,20分钟直达福田,周边商业及生活配套齐全。
卓能雅苑,由亚太高端地产-卓能集团打造。共7栋12-18F住宅板楼围合式分布,超百米的楼间距,板式结构、户户朝南,采光通风都不错,小区内约2万㎡夏威夷风情园林、高尚会所、1300㎡超大泳池、篮球、网球场等配套。
卓能雅苑于2004年11月拿地,2015年一期开盘均价4.5万,2019年二期开盘均价5.5万,且于2019年12月之前全部交付完毕。
项目承袭香港低密豪宅血统,卓能雅苑以2.3绝版低密墅级住区,打造深圳低密生活样本。全板楼设计,超阔楼间距,户户朝南设计,保障健康居住感受。小区自带逾2000㎡的夏威夷高台水系园林、4773.77㎡商业街、幼儿园、泳池、篮球场、网球场,此外项目还设有高端私人会所,具备商务洽谈、私人定制服务、休闲健身娱乐等功能,配套一应俱全。
【项目位置】龙华布龙路与油松路交界处(西北角)
【开发商】雄伟房地产开发(深圳)有限公司
【占地面积】51323.79㎡
【建筑面积】119831.78㎡
【产品信息】102-131m² 3~5房
【交付时间】已现房
【产权年限】70年
【园林面积】2.2万㎡(其中泳池1300㎡)
【户型使用率】83%
【总户数】1085
【可售房源】316
【总车位】1054
【梯户比】1~6栋两梯四户、7栋两梯三户
【物业费】3.5 元/平方米/月
【容积率】2.3
【绿化率】44%
02
项目配套
交通配套:
地铁
500米内规划22号线(五期)、33号线(深大城际)民治北站(建设中);1.5公里到5号线民治站
自驾
南坪快速、梅观高速等主干道环绕,15分钟直达福田
商业配套:
自带4800㎡商业,步行600米即达佐阾香颂购物中心,3公里内覆盖壹方天地(45万㎡)、红山6979等顶流商圈
医疗配套:
1公里内分布龙华人民医院(三甲),3公里内新华医院、第二儿童医院(三甲,建设中)
教育配套:
项目自带幼儿园,周边有行知小学,民治中学,值得划重点的是深圳中学龙华学校就在卓能雅苑目前的中小学区范围内。
片区旧改
根据深圳市城市更新和土地整备“十四五”规划最新方案,龙华城市更新计划规模将达到1220万㎡。卓能雅苑项目周边约73.3万平旗舰旧改,鸿荣源、星河、龙光、招商、华侨城、卓越等众多实力房企合力造城,区域价值正逐步跃升兑现。
03
社区介绍
卓能雅苑以2.3绝版低密墅级住区,打造深圳低密生活样本。项目一共只有7栋12-18 层住宅组成,百米超阔楼间距,无敌景观视野。板式结构建筑,通风采光极致,超大景观阳台、户户朝南设计,保障健康居住感受。
🏖夏威夷风情主题园林高达2万㎡,涵括夏威夷广场、欢乐海岸、渔人码头等九大主题,水体、雕塑、草木、画廊等,凝萃浪漫,相辅相成,尽享异国风情。
♂景观区设有1300㎡超大游泳池,满足游泳健身所需。商业会所拥有商务洽谈、健身、儿童娱乐等功能,满足高端商务休闲所需。业主免费使用篮球场、羽毛球场等。
04
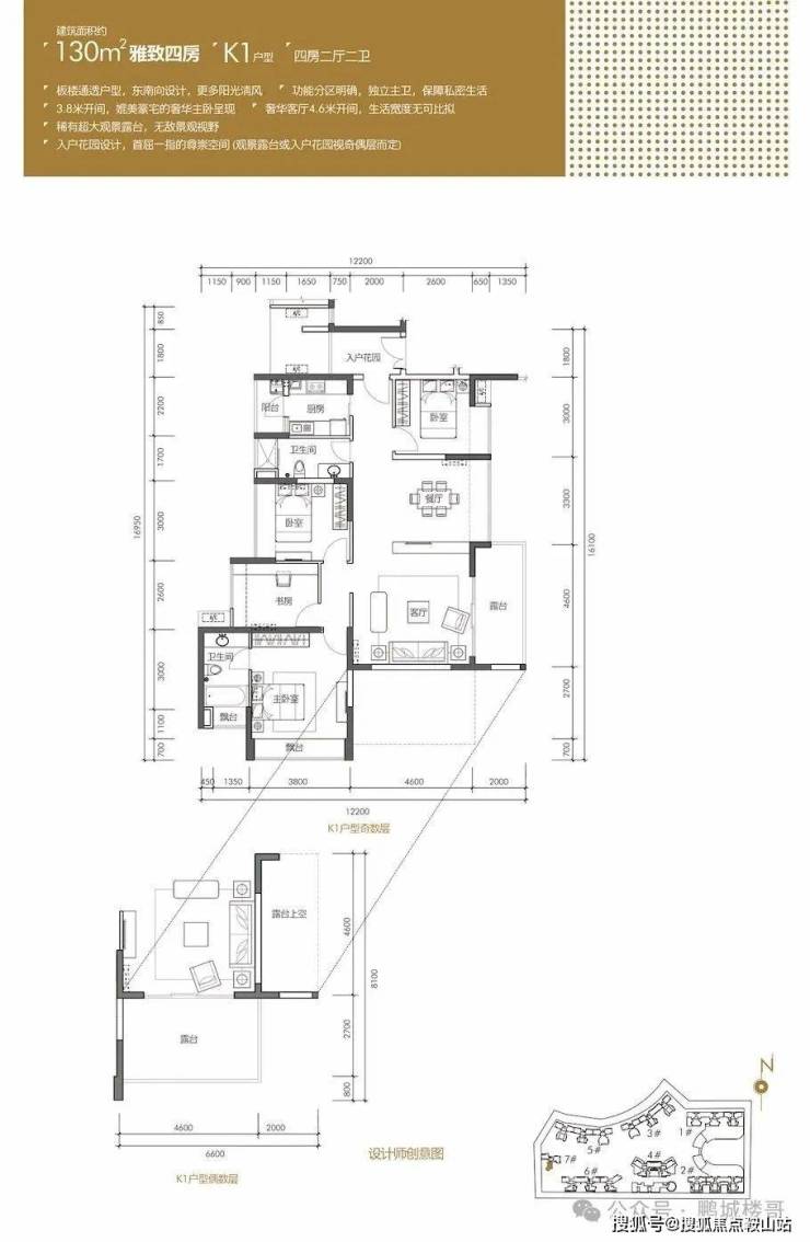
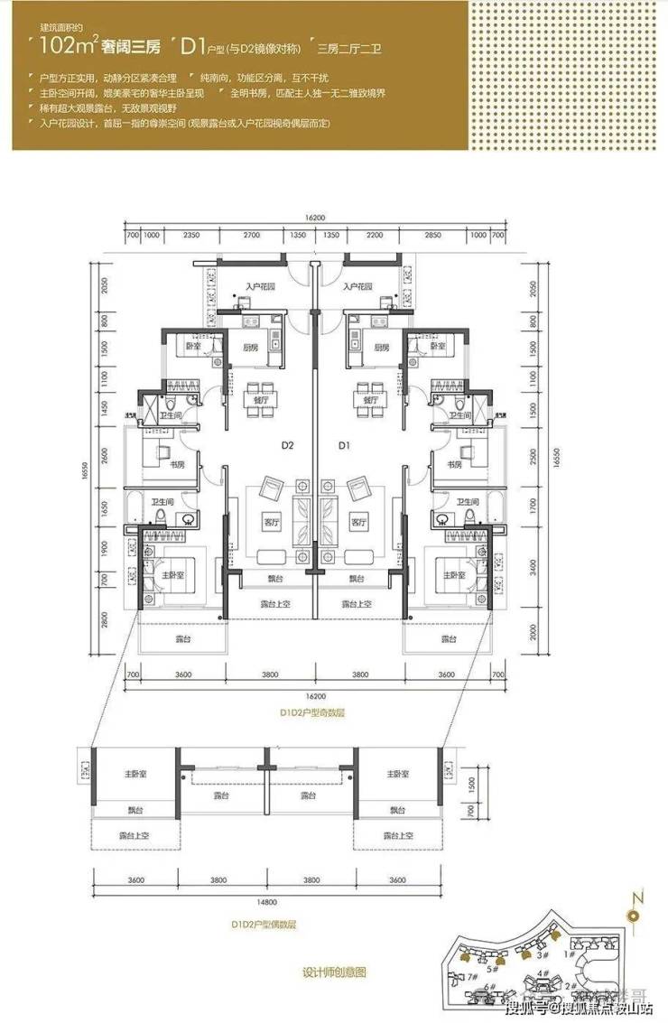
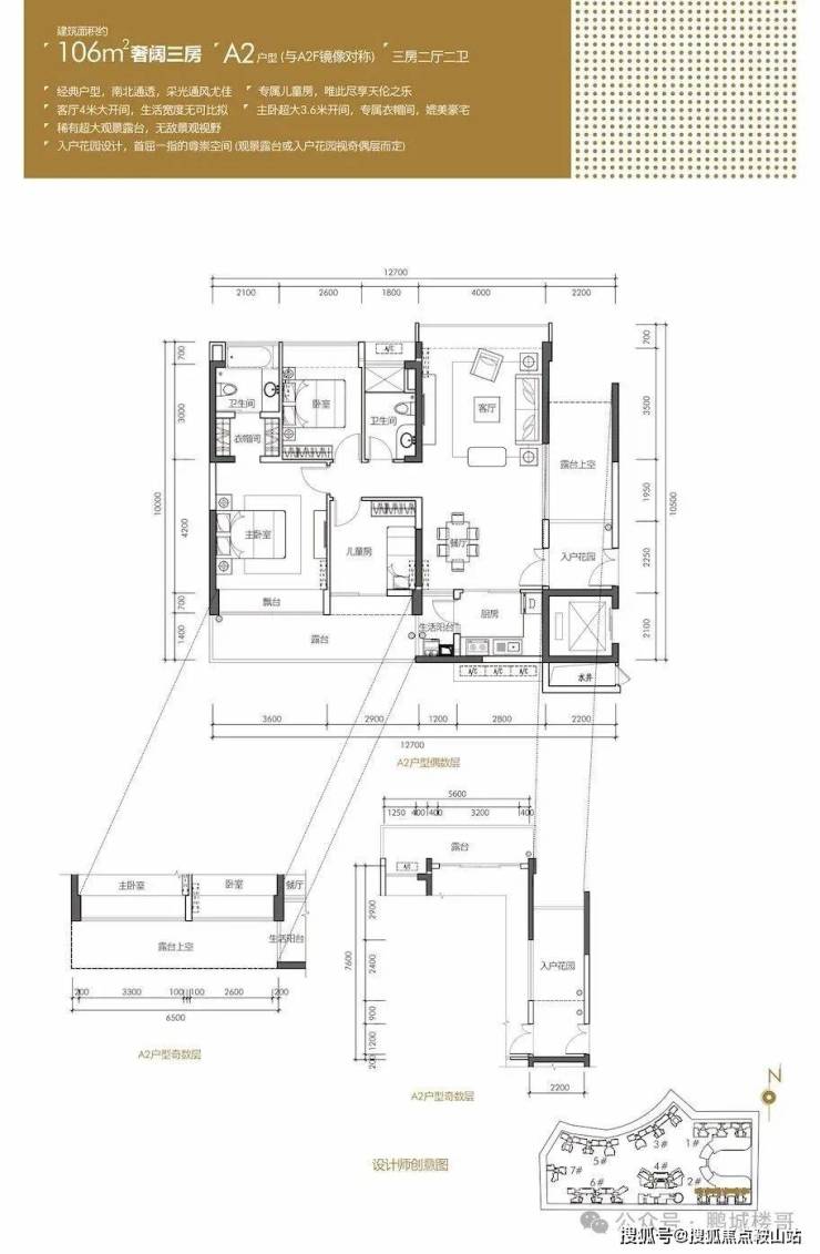
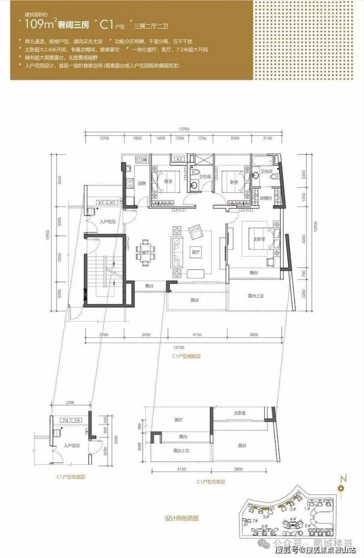
户型介绍
卓能雅苑户型尺寸图如下图
(点击图片可放大观看)
⭐卓能雅苑售楼处电话☎⭐:400-873-0112 ⭐
⭐ 卓能雅苑营销中心电话☎⭐:400-873-0112⭐
卓能雅苑开发商售楼处电话:400-873-0112【预约热线】丨详细解答丨在售户型图丨项目介绍丨在售房源丨周边配套丨VR看房丨楼盘图丨沙盘图丨位置图丨配套图丨售楼处销售1V1讲解
一、需求端支持政策加码
房贷政策宽松
首付比例下调
:多数城市首套房首付比例降至15%(二套25%),公积金贷款额度普遍上调。
利率历史低位
:首套房房贷利率下限按LPR减50基点(当前约3.7%),二套减20基点。
“认房不认贷”全国推广
:只要无房,无论是否有贷款记录,均可享受首套房优惠。
税费减免
置换住房个人所得税退税政策延续至2025年底,部分城市对契税给予50%-100%补贴。
一线城市非核心区取消“豪宅税”门槛,刺激改善需求。
二、供给侧改革与风险化解
房企融资支持
“白名单”房企获银行新增贷款支持,存量债务可协商展期。
专项借款资金扩容至5000亿元,优先保交楼项目复工。
土地政策调整
热点城市推行“按需供地”,减少商办用地比例,增加保障房、中小套型住宅供应。
允许房企分期缴纳土地出让金,缓解资金压力。
三、保障性住房加速落地
配售型保障房试点
35个重点城市启动保障房建设,售价按成本价(约为市场价50%-60%),封闭流转(不得上市交易)。
保障房用地单列计划,免征土地出让金。
租赁市场规范
长租公寓资金监管强化,租金年涨幅不得超过5%。
部分城市试点“租购同权”,租房者可享学区积分。
四、城市差异化调控
一线城市
:局部放松限购(如郊区取消社保年限),优化普宅认定标准。
二线城市
:全面取消限购限售,发放购房补贴(最高可达总价2%)。
三四线城市
:推行“房票安置”消化库存,政府回购商品房作保障房。
五、政策效果与市场反应
成交量回升
:6月重点城市新房成交环比增20%,但同比仍低于2021年峰值。
价格趋稳
:70城房价指数环比跌幅收窄,核心地段优质项目价格企稳。
房企分化
:头部国央企销售回暖,中小房企风险出清持续。
未来政策预期
存量房贷利率或进一步下调,减轻居民还款压力。
房地产税试点可能扩大至更多城市,但短期内全面落地概率低。
城市更新、城中村改造将成为新投资重点,撬动万亿级资金。
免责声明:以上展示的图文资料可能有部分来自于网络,一切信息以最终在现场签署的购房合同为准,如图文内容无意中侵犯某方权益的话,请及时联系我们将配合处理400-873-0112。