◆开发商营销中心诚挚邀请,一键预约,尊享内部深圳湾公馆独家折扣!匠心独运的精品项目,恭候您的品鉴与选择。
🐉🐉深圳湾公馆营销中心售楼处24小时电话:400-988-0986(中介勿扰)现场详细解答丨项目介绍丨户型图丨在售房源丨特价房丨学校丨交通深圳湾公馆位置丨样板房丨小区图片丨交房时间丨周边配套丨深圳湾公馆丨✅本项目暂不接受临时到访,过来参观样板房请记得提前来电预约!🐉🐉
🔻开发商:广东城脉地产有限公司
🔻地址:南山后海大道和东滨路东侧交汇处,地铁2号线登良站 D出口
🔻占地面积:0.3万㎡
🔻总建面:3.7万㎡
🔻产权:70年(10-80年)
🔻总户数:约215套
🔻面积:79-152㎡3-4房
🔻车位比:200个停车位,车位配比为1:1
🔻梯户比:3梯10户
🔻交楼标准:精装
🔻物业公司:物资物业管理
🔻物业管理费:9.8元
🔻容积率:8.7
🔻绿化:30%
🔻交楼时间:现楼
🔻建筑类型:住宅
🔻层高:6米
🔻使用率:150-180%
🔻楼层高:48层
🔻栋数:1栋
🔻水电:民水民电
🔻学校:北师大附小,北师大附中
地铁2号线登良站500米。2/11/13号线后海站1000米

海陆空轨”国际化高效立体交通
五分钟达深圳湾口岸
香港、宝安双国际机场
多条城市主干道畅通全城
打造最高效30分钟国际社交圈
最具国际人文生活中心区
150万顶级商业配套
商业配套:深圳湾万象城|万象天地|来福士广场|海岸城|海上世界|天虹君尚等繁华一站式商业

深圳湾万象城、后海汇,深圳湾1号·湾汇、鹏广达商业街,海岸城三大商圈环绕;
奢享内湾湖景/深圳湾海景/深港双城市多层次景观,15公里滨海长廊, 12个湾区主题公园,绝美深圳湾,尽收眼底
深圳湾文化广场——超级湾区的世界进阶
以活力共创的“城市之心”
面向未来的“湾区之星”为定位
规划包含A区深圳创意设计馆和深圳科技生活馆,B、C区城市山谷文化商业区


B、C区是一个购物休闲的建筑群,有高低错落的交通联系,这里的建筑都比较低矮,基本都不超过50米。
全龄层国际教育、医疗服务一应俱全 北师大附小,南山外国语学府学校,南油小学,深圳大学附属后海学校,北师范大学附中,深圳湾学校,育才二中等

开车10-20分钟可达蛇口人民医院,南山区妇幼保健院,南方医科大学深圳医院,南山区人民医院,深圳大学医院,广州中医药大学第一附属医院南山医院,深圳沙河医院,香港大学深圳医院

——深圳湾唯一在售复式住宅——
湾区总部基地 奢装臻品复式现楼
海陆空轨 四维立体交通枢纽
百万商业云集 人文配套环绕
国际一线精装 智能生活体验
酒店式物管团队打造塔尖圈层服务
【户型介绍】
①79㎡三房
实用面积:129㎡
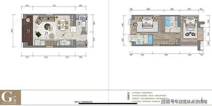
②87㎡二至三房
实用面积:126-134㎡
③113㎡三房
实用面积:148㎡
④152㎡四房
实用面积:206㎡
【精选好房,入主深圳湾最佳机会】
1)低区
113㎡3房
152㎡4房
2)中高区
87㎡2房
88㎡2房
1
★79㎡复式三房两厅三卫 南北通透,5.4米大开间,复式下层餐厨客厅连宽景阳台,另带一个法式小阳台。复式上层私密卧房全明采光,动静分区私享个性生活。另一个次卧带衣帽间。
02
★88㎡复式两房两厅三卫 双向通透采光,5.4米开间客厅及主卧,双套房周全设计,室内多变空间可根据家庭需要设置独特的功能。
03
★113㎡复式三房两厅三卫+工人房 南北通透三面景观,5.6米客厅与主卧开间,独具品位,尽享奢阔。
04
★152㎡复式三套房两厅四卫+双功能房 双向通透三面采光,尽赏深圳湾景观,6.3米开间,三套房设计,两间多功能房满足个性化使用。

★113㎡复式三房两厅三卫+工人房 南北通透三面景观,5.6米客厅与主卧开间,独具品位,尽享奢阔。


🐉本项目暂不接受临时到访,过来参观样板房请记得提前来电预约!🐉
🐉温馨提醒:我们楼盘售楼部400电话没有设置任何所谓的“分机号”,拨打前请仔细甄别,注意保护个人隐私!谨防上当!🐉
深圳湾公馆开发商售楼处电话:400-988-0986【预约热线】丨详细解答丨在售户型图丨项目介绍丨在售房源丨周边配套丨VR看房丨楼盘图丨沙盘图丨位置图丨配套图丨售楼处丨足不出户丨销售1V1讲解