金众柏悦公馆 (金众柏悦公馆营销中心)首页网站-金众柏悦公馆售楼处-金众柏悦公馆欢迎您-楼盘详情-最新价格-户型图-容积率@售楼处

搜狐焦点鞍山站

2025-06-23 14:26:00

购房群

买房如何避坑,加入购房群,看看他们怎么说

立即进群

金众柏悦公馆售楼处电话:400-832-8772【售楼处已认证】

金众柏悦公馆开发商电话:400-832-8772【售楼处已认证】

✅ 为您安排楼盘现场销售全程接待并讲解,给您更贴心的看房体验!

金众柏悦公馆营销中心电话:400-832-8772【售楼处已认证】

金众柏悦公馆展示中心电话:400-832-8772【售楼处已认证】

☞☞Vip贵宾置业==欢迎来电预约尊享内部折扣===匠心钜制恭迎品鉴☜☜

✅ 过来参观样板房烦请记得提前来电预约!

金众柏悦公馆

楼盘简介

金众柏悦公馆位于东莞市塘厦镇138片区塘坑水库东侧,自然资源优势非常显著,所处区域为临深传统豪宅板块。项目靠近城市主干道迎宾大道、塘厦大道北,距离塘厦镇政府1.5km;

本项目紧邻塘厦白鹭湖,充分考虑得天独厚的自然条件和景观资源,规划为以低密度高层为主,产品约98-142㎡湖景华宅,单价3.6万起带精装修

参照深圳豪宅标杆“金众麒麟公馆”标准,打造金众TOP级公馆产品,重塑东莞“湖景”豪宅新标杆。

项目区位介绍

2020年塘厦GDP突破500亿,增速位列全市第五,经济基础稳固,以高尔夫与电子信息产业为主,深圳各大知名 房企争先涌入,布局千亿旧改。

例如:鸿荣源 76 万m2的四村旧改和 30 万m2的横塘旧改,卓越 54 万m2的田心旧改,宏发 44 万m2的石潭埔旧改

未来东南临深以及深莞两城的轨道枢纽中心(东莞南站开通,塘厦进入高铁时代。“一条高铁带动一座城”东莞南站“不单单是高铁站”而是“交通枢纽站”赣深高铁东莞站仅在塘厦设站可见政府对于塘厦中心的认可,深圳中轴北拓东莞第一站● 再造第二座深圳北站,距离本项目仅3公里)

项目交通介绍

靠近城市主干道迎宾大道、塘厦大道北

4大高速8大高速出入口,最近的田心站离项目1个红绿灯

2021年东莞南站将会开通,东莞南站是赣深高铁、中虎龙城际轻轨的重要交通站点,也是东莞连接外区域4大重要站点之一,一站深圳北30分钟到龙华

未来还规划有 2 条地铁线路,东莞 R1 线支线和东莞 R4 线,未来东莞 R1 线支线与深圳地铁 22 号线接驳。联通东莞和深圳的公共交通,实现莞深同城1小时经济生活圈

项目周边配套

【教育配套】楼盘自身规划一所6班制幼儿园,2公里内到达塘厦中心小学、塘厦扬帆小学,4公里内有林村小学、塘厦中学、塘厦初级中学、水霖实验学校

【医疗】塘厦莞华医院、东莞三局医院、东莞市东南部中心医院、塘厦新人民医院

【商业】塘厦万科城市广场、塘厦天虹商场、金地仟百汇、塘厦沃尔玛、林村市场、缤纷时代广场、塘联综合市场

【休闲娱乐】低密度湖居人文豪宅,金众TOP“公馆”升级力作,坐拥7500亩一线湖景,最后一块临湖居住地块,30分钟即可享受4大山景公园(大屏障森林公园、观音山森林公园、银屏山森林公园、宝山森林公园)与2大高端休闲配套(观澜湖高尔夫、三正半山温泉酒店)

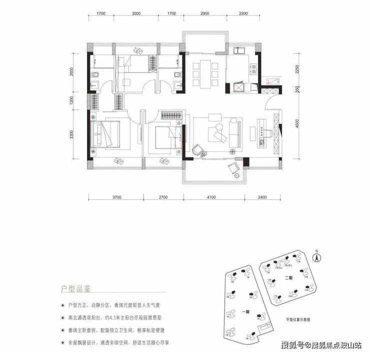
户型鉴赏

98㎡3房2厅2卫

110㎡3房2厅2卫

118㎡3+1房2厅2卫

138㎡4+1房2厅2卫

实拍样板房(点击可看大图)

194-200㎡5+1房2厅3卫

金众柏悦公馆售楼处电话:400-832-8772【售楼处已认证】

金众柏悦公馆开发商电话:400-832-8772【售楼处已认证】

✅ 为您安排楼盘现场销售全程接待并讲解,给您更贴心的看房体验!

金众柏悦公馆营销中心电话:400-832-8772【售楼处已认证】

金众柏悦公馆展示中心电话:400-832-8772【售楼处已认证】

☞☞Vip贵宾置业==欢迎来电预约尊享内部折扣===匠心钜制恭迎品鉴☜☜

✅ 过来参观样板房烦请记得提前来电预约!

免责声明:本文如无意中侵犯了某方的知识产权告知即删,部分内容图片可能来源于网络,无法核实其真实出处,如涉及侵权请联系本网站删除!!

全部

相关资讯

报名成功
稍后会有专业的置业顾问联系您
返回楼盘

频道导航

返回首页

看房小程序

APP下载

电话拨通后,请您手动拨打分机号

确定拨打电话

电话号码:

分机号:(可能需要拨分机号)