✅ 所有疑问,一通电话全解决!
🎯 内部置业顾问VIP解答,独家优惠仅限来电客户!
📞 24小时热线,黄金时段优先安排!
☎ 马上拨打售楼处专线:400-873-0112(一键直连/预约看房)
❄️丨项目介绍丨户型图丨在售房源丨特价房丨学校丨交通位置丨样板房丨小区图片丨交房时间丨周边配套丨

——【盛荟城·创智产业大厦】
⚜1200-5000m新一代智慧厂房
⚜生产+办公+研发一体
⚜产城融合|为企业实现进阶
⚜全力提升企业货物运转效率
部3-5T货梯部客梯
个吊装口个卸货车位
🉑首付三成50年红本产权
【项目整体信息】
【开发商】盛荟集团
【项目地址】深圳市龙华区福龙路龙澜大道口
【占地面积】80394.6㎡
【建筑面积】约85万方
【容积率】7.7
【绿化率】35%
【业态组成】住宅、公寓、商业、办公、厂房、产业研发、学校、配套宿舍八大业态
🎉🎉🎉重磅来袭🎉🎉🎉
🇭🇰现楼|现楼|科研总部
✅✅特推5.4米极致空间
🧧一口价:1⃣3⃣5⃣0⃣0⃣元/㎡
‼‼楼层:3楼-6楼‼‼
🧧【盛荟城创智产业大厦】🧧
⚜高配比电梯|人货分流⚜
——【区域价值】
大湾区国际化创新型中轴新城
深圳“十四五”规划对龙华的定位为深圳中部综合服务中心、大湾区国际化创新型中轴新城,与南山/罗湖/福田中心并驾齐驱;
数字经济圈中央活力区
龙华12个产业区块串联成圈,连接成占地60平方公里,打造未来产值超万亿的数字经济圈
——【交通价值】
轨道交通:临近地铁25号线华富站(规划中)、地铁6号线羊台山东站(2KM),通达全市各个区域
城际交通:一个红绿灯直达龙大高速、沈海高速,30分钟畅行深莞惠
城市交通:深华快速路(建设中)、侨城东路北延线(建设中),20分钟直达南山福田CBD和其他核心区域
创智产业中心基础信息
【占地面积】11176.30㎡
【可售建筑面积】79540㎡
【产权年限】50年(22-72)
【套数】60套
【绿化覆盖率】30%
【停车位】358个
【建筑面积】约1212-4960㎡
【柱间距】9m X 9.6m、9m X 10m
【层数】20层
【层高】首层:6m;2-6层:5.4m;7-20层:4.5m
【荷载】首层:1.5T;2-3层:1T;4-12层:0.85T;13-20层:0.65T
【电梯】9台客梯,8台货梯,货梯:开门宽1.8m,长2.4m,荷载3T
【产品优势】
稀缺产品:可售型生产研发用房(M1),每户可独立分割,享有独立红本
高标品质:层高4.5-6米,承重0.65-1.5吨,柱距大于9米,实用率高
空间灵活:单套面积约1212.98—4960㎡,根据需求灵活配置资产
用途多样:可集研发、生产、中试、检测、展示、总部形象办公等功能于一体
工业上楼:3吨货梯+每户吊装窗口,专配卸货平台和吊装平台,工业设备可上楼
企业形象:玻璃幕墙外立面+高质感铝板,高颜值、高品质彰显企业高端形象
绿色生态:采用退台式绿化、屋顶花园等生态设计理念,打造绿色生态花园式研发生产用房
——【户型鉴赏】
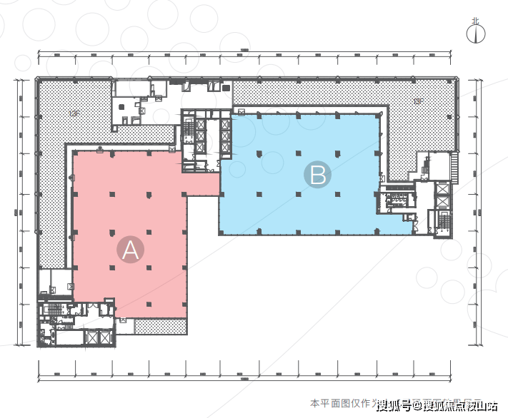
——【首层户型】

【建筑面积】:
A户型约2069.27㎡;B户型约2067.27㎡
【卸 货 区】:481.99㎡
【层 高】6m
【荷 载】:1.5T
【柱 距 网】:9m X 9.6m、9m X 10m
——【2-12层户型】

【建筑面积】
A户型约1215.43㎡;B户型约1310.25㎡
C户型约1221.53㎡;D户型约1212.98㎡
【层 高】:2-6层:5.4m;7-12层:4.5m
【荷 载】:2-3层:1T;4-12层:0.85T
【柱距网】:9m X 9.6m、9m X 10m
【货 梯】:8台;尺寸:开门宽1.8m,长2.4m,荷载3T
客梯:9台;荷载1.35T
——【13-19层户型】

【建筑面积】
A户型约1395.56㎡;B户型约1437.18㎡
【层 高】:13-19层:4.5m
【荷 载】:13-19层:0.65T
【柱距网】:9m X 9.6m、9m X 10m
【货 梯】:4台;尺寸:开门宽1.8m,长2.4m,荷载3T
客梯:6台;荷载1.35T
13层退台面积:约1793.52㎡
☎ 马上拨打售楼处专线:400-873-0112(一键直连/预约看房)
☎ 马上拨打售楼处专线:400-873-0112(一键直连/预约看房)
❄️关于盛荟城·创智产业大厦最新动态信息,如:房价,主力户型面积,最低折扣,等等,剩余户型楼层,去化率,几号地铁哪个地铁口,周边规划,项目的优劣势以及学校的配套等等都可以致电售楼处进行了解,我们将会安排内场专业置业顾问为您答疑解惑!
✿盛荟城·创智产业大厦✿售楼处热线:400-873-0112【售楼处电话已认证】
免责声明:部分信息来源于网络,如果侵权,请联系及时删除本宣传资料不构成邀约邀请,对周边、政府规划、商业配套、教育资源、投资前景等数据和图文仅为提供相关信息,该信息以政府最终批文为准,开发商不对此作任何承诺。买卖双方的权利义务以双方签订的买卖合同约定及附件、实际交付为准,本公司保留对宣传资料修改的权利,敬请留意最新资料。联系号码:400-873-0112。