中冶逸璟台(售楼处)首页网站-中冶逸璟台展示中心(营销中心)中冶逸璟台-欢迎您-小区环境-户型-价格-地址-楼盘详情-周边配套-售楼处电话

搜狐焦点鞍山站

2025-06-08 16:15:22

购房群

买房如何避坑,加入购房群,看看他们怎么说

立即进群

中冶逸璟台

中冶逸璟台售楼处电话: 400-909-3139【已认证】

♎♬中冶逸璟台꧁ 售楼处: 400-909-3139【☎☎售楼处电话已认】꧂✨✽✽✽✽

♎♬中冶逸璟台꧁ 营销中心电话:400-909-3139【☎☎售楼处电话已认证】꧂✨✽✽✽✽

♎♬中冶逸璟台꧁ 开发商电话:400-909-3139【☎☎开发商电话已认证】꧂✨✽✽✽✽

🦋本项目暂不接受临时到访,过来参观样板房请记得提前来电预约!

🦋为您安排楼盘现场销售全程接待并讲解,给您更贴心的看房体验!

✨✨Vip贵宾置业=欢迎来电预约尊享内部折扣=匠心钜制恭迎品鉴温馨提醒:我们楼盘售楼部400电话没有设置任何所谓的“分机号”,拨打前请仔细甄别,注意保护个人隐私!谨防上当!

【中冶·逸璟台】

空中美墅绝版复式洋房

【广州最具潜力板块】

位于黄埔科学城板块——政府斥资500亿打造的长岭新城。

2018年正式划入主城区,长岭新城强势崛起。

【黄埔轨道交通重要枢纽之一】

地铁21号线20分钟直达天河,黄埔第一条有轨电车就在家门口,全国首条高速地铁强势规划中,未来到广州东站只需9分钟。

【片区教育资源比肩越秀】

广州东部优质的公立学校和广州知名的国际学校坐落在项目周边。

项目配套

• 交通配套:黄埔交通规划2 国铁+4 城际+15 地铁+6 有轨!21号线长平地铁站——联通6号线、7号线二期、23号线,20分钟通达天河;项目出门即享有轨电车1号线——长岭居小学站;广汕公路、京港澳高速、济广高速快速通达全城

• 教育配套:高达58年教学历史的长岭居小学,公办名校北师大广州实验学校、铁英中学已招生开学;香港大学国际学院即将落户长岭居。

• 医疗配套:东部最好的三甲医院广医妇幼、中大岭南医院、宝能国际医院、广州市干部疗养院等。

• 商业配套:萝岗敏捷广场、萝岗万达广场、奥园广场、锐丰中心、华润人才创展中心(规划中)、奥园春晓西侧地块8万㎡商业综合体(已动工),超百万平米商业旗舰15分钟内即享。

• 公园配套:萝峰山、水牛山、黄旗山三大自然山体坐落在家门口,长岭居运动公园(规划中)。

美图鉴赏 一院至美天地 逸韵山水之间

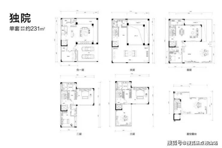
项目户型图

♎♬中冶逸璟台꧁ 开发商电话:400-909-3139【☎☎开发商电话已认证】꧂✨✽✽✽✽售楼处24小时电话:400-909-3139(预约咨询热线)现场详细解答丨项目介绍丨户型图丨在售房源丨特价房丨学校丨交通位置丨样板房丨小区图片丨交房时间丨周边配套丨⫷⫷⫷

免责声明:部分信息来源于网络,如果侵权,请联系及时删除

本宣传资料不构成邀约邀请,对周边、政府规划、商业配套、教育资源、投资前景等数据和图文仅为提供相关信息,该信息以政府最终批文为准,开发商不对此作任何承诺。买卖双方的权利义务以双方签订的买卖合同约定及附件、实际交付为准,本公司保留对宣传资料修改的权利,敬请留意最新资料。联系号码:400-909-3139

近期,多地发布购房补贴新政。

5月29日,合肥发布购房补贴政策有关通知,对2025年5月15日起至2026年5月14日,凡在合肥市新购买新房的购房人或新购买新建车位(库)的购置人,继续实施购房补贴。

5月28日,泰州发布购房补贴发放细则,购房补贴对象包括换新购、组团购、孝心购、多孩购、拥军购、进城购、返乡购、来泰购,补贴标准最高为购房款总额的2%。

证券时报记者梳理,近期,除了合肥、江苏泰州,广东佛山、兰州、武汉也发布了购房补贴新政。

据中指研究院不完全统计,2025年以来,全国超50地发布购房补贴政策,对于多孩家庭、人才等特定人群的补贴力度更大,如武汉针对购买新房的二孩、三孩家庭分别发放6万元、12万元的购房补贴,绍兴柯桥区补贴力度更大,二孩、三孩及以上家庭补贴标准分别为1500元/平米、2500元/平米,最高分别可补贴至20万元、40万元。中指研究院认为,加大特定人群的购房补贴力度,能够有效降低其购房成本及购房门槛,加速其购房需求入市。

在结束了“五一”小长假这一上半年最重要的楼市营销节点后,近半个月以来,广州楼市显得稍有些沉寂,进入了需求集中释放后的冷静期,无论是新增供应,还是土地市场,从数量上看都并不多。不过,在政策面,持续促进楼市消费的金融等领域政策依然在持续释放。端午假期来临在即,对开发商而言,也是上半年业绩冲刺的最后一个营销节点,大多数开发商都将在这个假期拿出不亚于“五一”的折扣福利。结合来看,这个端午假期,仍将是楼市消费者满足自身居住需求的不错时机。

利率维持低水平 供求关系偏向买方

5月以来,国家层面多次在金融领域释放利好。“五一”假期结束后的首周,国新办便举行新闻发布会,介绍了“一揽子金融政策支持稳市场稳预期”的有关情况,其中,降准降息、降低公积金贷款利率直接与楼市消费相关。

5月8日,广州迅速响应央行要求,下调个人住房公积金贷款利率0.25个百分点。这是住房公积金贷款利率时隔一年后的又一次下调,此次下调后,广州市首套房5年期以上住房公积金贷款利率由2.85%下调至2.6%,处于历史低位。据计算,此次利率下调后,假设公积金贷款100万元,等额本息还款30年,按新利率2.6%计算,月供4003元,总利息44.12万元,月供较原利率每月将减少133元,总利息将减少4.76万元。商业贷款方面,尽管5月中旬有消息称,广州多家银行房贷利率计算方式上调10个基点,但由于LPR下调0.1%,记者了解到,工商银行等多家国有或股份制大行的浮动利率在计算方式和LPR的一增一减后,实际利率仍为3.0%,不难看出,维持当前的商贷利率水平仍将是一段时间内的趋势。

5月19日,国家统计局发布的4月70城房价数据显示,广州二手房均价环比止跌,新房价格则环比下降0.2个百分点。据研究机构克而瑞统计,4月广州商品住宅新增供应面积86.34万㎡,环比增长69%,同比增长31%,供应面积为近一年内的次高位,仅次于2024年9月。

新规项目基本面世 产品寻求新增长点

据广州中原研究发展部数据,5月上半月,广州新增取证项目为0,新开盘项目仅2个。截至目前,2023年容积率新规后的一众新产品大多已经入市,天河、海珠、荔湾、白云、黄埔、番禺等多个成交较为活跃的热门区域均已有多个新规项目供消费者挑选。以保利天奕、天曜、龙湖央璟颂、绿城馥香园等项目为代表的一批2024年下半年拿地开发的项目已基本开盘入市。对于消费者而言,各家开发商在新规地块上能够打造出怎样的产品,足以通过目前市面上已有的项目看出端倪。

有业内人士认为,在更宽松的政策环境到来之前,除南沙区的招商林屿境这样的试点项目外,广州楼市在过去一段时间内你方唱罢我登场的实用率“内卷”将不再如过去一般突出。对消费者而言,仅考虑新规产品的情况下,当前的市场供应已足以满足“货比三家”的心态。

龙舟文化成营销活动热门元素

赛龙舟、吃龙船饭作为广州传统的端午活动在近期频频刷屏互联网,不少开发商也借此机会将项目营销活动与龙舟活动相结合。

以荔湾区花地湾附近的力诚诚汇新都项目为例,该项目紧邻花地河,端午节期间将组织龙舟体验、粽子DIY活动。同时,该项目还赞助举行2025年荔湾区端午游龙活动,将于6月14日组织各荔湾区联社组织及龙船会共约30条传统龙船进行展示。据了解,为配合端午节营销活动,项目还将推售一批一口价单位。

水系丰富的海珠区也是龙舟活动的大区之一,据了解,端午期间,位于海珠湿地附近的中海大境项目也将联合海珠国家湿地公园的龙船宴活动开展营销。据介绍,由于端午节前后恰逢中海地产司庆,该公司旗下广州多个项目均将提供包括购房折扣、物业管理费、车位折扣等在内的多重好礼。以大境项目为例,端午期间,购房折扣最高优惠可达30万元/套,重点企业团购还可享受97折优惠。

全部

相关资讯

报名成功
稍后会有专业的置业顾问联系您
返回楼盘

频道导航

返回首页

看房小程序

APP下载

电话拨通后,请您手动拨打分机号

确定拨打电话

电话号码:

分机号:(可能需要拨分机号)