🌳正东名苑售楼处24小时电话☎:400-909-3139【售楼处已认证】
🌳正东名苑销售中心24小时电话☎:400-909-3139【售楼处已认证】
🌳正东名苑营销中心24小时电话☎:400-909-3139【售楼处已认证】
🌳正东名苑开发商24小时电话☎:400-909-3139【售楼处已认证】
🌳正东名苑售楼中心24小时电话☎:400-909-3139【售楼处已认证】
✅本项目暂不接受临时到访,过来参观样板房请记得提前来电预约!
✅为您安排楼盘现场销售全程接待并讲解,给您更贴心的看房体验!
🌳若有中介报价过低,请及时与售楼中心核对真假,避免上当!开发商热线400-909-3139
✅在售户型图丨项目介绍丨最新房源丨周边配套丨详细解答〢
◆开发商营销中心诚挚邀请,一键预约,尊享内部独家折扣!匠心独运的精品项目,恭候您的品鉴与选择。
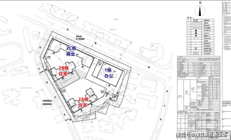
正东名苑位于南山区,南山大道东侧,海德二道南侧,原为南光村旧改。南光村在2005年被纳入旧改计划,2787共规划三期开发:一期南光城市花园已于2009年入伙;正东名苑为二期开发用地,由四栋高层组成,1栋为写字楼,2A和2B栋为高层住宅,2C栋为四层高的底商;三栋为垃圾站和公厕。
项目基本信息
【开发商】深圳市阳光华艺地产有限公司
【物业类型】70年
【占地面积】约18485.18㎡
【建筑面积】约109950㎡
【容积率】5.95
【绿化率】35%
【套数】可售172套
【车位数】800个
【交付标准】毛坯
【交付时间】2022年底
【物业费】5.8元/㎡
【物业公司】深圳新一代物业管理有限公司
【项目地址】深圳·南山·11号线南山站
区域价值
深圳科创中心、全市GDP榜首、四大顶级区域价值聚合高地
南山区作为深圳科创中心及大湾区发展核心引擎,2021年全区GDP稳居全市榜首,唯一聚集前海、深圳湾、科技园以及蛇口四大核心经济发展极核中心,坐享城市高度发展红利。
超八百品牌房企旧改,领衔城市发展
京基、恒裕、华联、龙光开发商巨擘联袂,集商业、办公、居住、商务公寓及教育等全球化复合都心区,澎湃南山,再一次领潮。
交通配套
约400米步行可达11号线南山站和9号线南山书城站;12号线南光站(年底开通)1站“前海湾站”(亚洲规模最大前海综合交通枢纽)4站机场,未来将实现深圳、港澳、 珠三角、世界瞬时变换,引领时代的脉络。
商业配套
项目自带底商。附近的商场茂业百货和海雅百货距离600米,步行八分钟左右。来福士广场距离1公里,步行15分钟左右。海岸城距离1.2公里,步行17分钟左右。生活配套是非常齐全的。
教育配套
近享南山区第二外国语学校(集团)学府中学、楼下即是南光城市花园幼儿园、90年教学历史的省级学校向南小学,12年全龄段一站式教育,助力孩子未来。
医疗配套
塔尖资源汇聚 臻藏都心生活极
邻近三大三甲医院,深圳市南山区人民医院、香港大学深圳医院、南方医科大学深圳医院及深圳市二级甲等深圳市南山区妇幼保健院,为健康生活护航。
文体配套
塔尖资源汇聚 臻藏都心生活极
汇聚南山文体中心、南山图书馆、保利文化广场、南山书城、深圳湾体育中心、沙河高尔夫等,居住于此可享城市最中心国际人文艺术的交融
生态配套
塔尖资源汇聚 臻藏都心生活极
六大公园环伺,大南山公园、荔林公园、中山公园、大沙河公园、前海石公园,深圳湾人才公园。
奢享深圳湾、前海湾和蛇口湾一线海景、深圳湾1号,春笋,腾讯总部大厦三极鼎立城市地标,近享大南山山景,远眺平安金融大厦、欢乐港湾摩天轮和对岸香港。
小区环境
多维自然秘境,成就睦邻美好的自然会客厅
以府院栖居,静谧之地为主基调,将自然、人文与美学碰撞融合,打造“闹中取静”秘境花园,方寸之间,让居者在城市喧嚣中享受度假般悠然自得。
南山中芯城市臻邸准现楼住宅
建面约79-102㎡ 平层臻筑
建面约129-143㎡ 复式臻藏


户型鉴赏
01户型·90㎡平层
02户型·79㎡平层
03户型·130㎡复式
05/06户型·129㎡复式
09户型·139㎡复式
10户型·137㎡复式

🌳正东名苑开发商售楼处24小时电话☎:400-909-3139
温馨提醒:我们楼盘开发商售楼部400电话没有设置任何所谓的“分机号”,拨打前请仔细甄别,注意保护个人隐私!谨防上当!
过来售楼中心看房请提前预约,可尊享内部特惠,价格包您满意!
为您安排楼盘内场专业销售人员一对一接待服务!让你买的放心,住的舒心!
楼盘详情介绍(楼盘项目怎么样?多少钱一平?什么时候交楼?有什么户型?周边有什么学校?物业费多少?楼盘项目会不会烂尾?)含开盘时间、交房时间、楼盘详情、房价、户型、详情、得房率、售楼处地址、首页网站、降价了吗?目前房价情况、楼盘项目有升值吗?值不值得买?能不能投资?为什么这么便宜?读什么学校?包读吗?有多少学位?销售中心、楼盘地址、户型图、交通、备案价、项目配套、营销中心腌详情咨询。
🌳正东名苑开发商24小时电话☎:400-909-3139
🌳正东名苑售楼处24小时电话☎:400-909-3139
🌳正东名苑营销中心24小时电话☎:400-909-3139
🌳正东名苑售楼中心24小时电话☎:400-909-3139
🌳正东名苑售楼处24小时电话:400-909-3139;首页网站最新介绍:房价、价格、折扣、规划、户型图、特价房、样板房、优缺点、得房率、车位比、折扣优惠、交通出行、周边配套、商业配套、销售中心位置、楼盘地址、户型介绍、营销中心电话、最新动态详情咨询。
🌳正东名苑售楼处24小时电话☎:400-909-3139
🌳正东名苑营销中心24小时电话☎:400-909-3139
✅免责声明:部分信息来源于网络,如果侵权,请联系及时删除
本宣传资料不构成邀约邀请,对周边、政府规划、商业配套、教育资源、投资前景等数据和图文仅为提供相关信息,该信息以政府最终批文为准,开发商不对此作任何承诺。买卖双方的权利义务以双方签订的买卖合同约定及附件、实际交付为准,本公司保留对宣传资料修改的权利,敬请留意最新资料。联系号码:400-909-3139