✨华侨城新玺✨✽✽✽✽
💎华侨城新玺售楼处电话☎:4009027191【售楼处认证】⭐⭐⭐⭐
⭐在售户型图⭐项目介绍⭐最新房源⭐周边配套详细解
⭐*开发商营销中心诚挚邀请,一键预约,尊享内部折扣!匠心独运的精品项目,恭候您的品鉴与选择!
✅为给您更好的看房体验请提前来电预约(给您预留现场销售和停车位)
✅注意:本项目不收任何费用,售楼中心〢欢迎来电咨询〢
华侨城新玺售楼处电话☎:400-902-7191【售楼处认证】⭐⭐⭐⭐
华侨城新玺营销中心电话☎:400-902-7191【营销中心认证】⭐⭐⭐⭐
华侨城新玺销售中心电话☎:400-902-7191【销售中心认证】⭐⭐⭐⭐
项目位于南山区蛇口街道望海路以南、金世纪路以西。东侧为半岛城邦,西侧与招商双玺隔海相望,北侧为内湾海域,南侧则是一线永久无遮的深圳湾无敌海景。
三面环海而立,拥有深圳湾海岸线上不可复制的地理优势,独立、纯粹、静谧、宜居。
新玺涵盖商务公寓、办公、酒店、商业等多元业态,总建筑面积约28.9万㎡,携手GMP、MSP等国际设计师团队联袂打造,以约250m高度打造深圳湾天际线。前所未有的三面进海物业,全景幕墙收纳山海港城园五重盛景,无缝连接15公里滨海长廊,是大湾区不可复制的滨海综合体坐标。

湾区250米灯塔地标,璀璨城市天际线
新玺二期约250米的建筑高度,成为深圳湾乃至整个大湾区的新地标。

▲项目效果图
把握住片区内的核心,就等于奔向了星辰大海!
纵观整个深圳,新玺无疑担当着承载这座城市成为国际滨海门户与世界客厅的使命,城市的精英人物在此汇聚,就等你了!

新玺展示中心 实拍图

西侧太子湾景观&海景

东北侧城市景观

北侧内湾&城市景观

南侧景观

新玺展示中心造景 实拍图


产品亮点 「 寰湾再叙 地标之作」
寰海标杆之作,定鼎海岸传奇
【品牌】36载华侨城,实力央企的品牌创想
【区域】蛇口联动前海、深圳湾,三大千亿级经济中心叠加发展
【地段】三面环海半岛,深圳湾线绝版地段,成就世界海岸的坐标
【景观】纵览270°海景,15公里滨海长廊上盖,物尽珍藏,与自然无间
【配套】集结湾区首屈一指的文化艺术坐标,高端商业配套环伺,奢享国际都市生活场
【产品】250米地标级超高层,定鼎深湾之作,4m舒阔层高,只此再无
【酒店&商业】一线酒店品牌酒店入驻,立体开放式悦享天地,奢享全优配套


01户型 西端户 约350㎡ 四房两厅四卫
(01、04镜像对称)
南、西、北,三面景观视野
看深圳湾海景、内海景、城市景观

04户型 东端户 约350㎡ 四房两厅四卫
(01、04镜像对称)
南、东、北,三面景观视野
看深圳湾海景、内海景、城市景观

【户型亮点】
1. 超9米超宽幕开间,厅出阳台邂逅无垠海景
2. 三套房设计,尊贵私属空间
3. 主卧L形全景落地窗,270°最佳观海位
4. 动静分区布局有序
02户型 约230㎡ 三房两厅三卫
03户型 约230㎡ 三房两厅三卫
(02、03镜像对称)
南、北,双面景观视野
看深圳湾海景、内海景、城市景观

【户型亮点】
1. 双龙抱珠户型设计,户型方正实用
2. 双套房朝南,赏南向一线海景
3. 广角视野景观阳台,遨游无垠海天
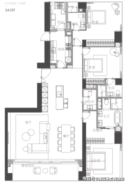
【一栋 三、四单元】
(24-32层)
三梯两户

05户型 西端户 约280㎡ 四房两厅四卫
(05、08镜像对称)
南、西、北,三面景观视野
看深圳湾海景、内海景、城市景观

08户型 东端户 约280㎡ 四房两厅四卫
(05、08镜像对称)
南、东、北,三面景观视野
看深圳湾海景、内海景、城市景观

【户型亮点】
1. 超8米超宽幕开间,厅出阳台邂逅无垠海景
2. 三套房设计,尊贵私属空间
3. 主卧L形全景落地窗,270°最佳观海位
4. 动静分区布局有序
06户型 约230㎡ 三房两厅三卫
07户型 约230㎡ 三房两厅三卫
(06、07镜像对称)
南、北,双面景观视野
看深圳湾海景、内海景、城市景观

项目配套:
配套设施
内部配套:配备高端私密会所、约 766 平方米的深圳首个悬空无边际海景泳池、首层城市花园、健身房、儿童游乐区以及 1800 平方米的海洋博物馆等设施。
商业配套:项目自带约 5 万平方米的商业设施,由华润运营,周边还有海上世界、海岸城等高端商业配套。
教育资源:周边有半岛第二幼儿园、南海玫瑰为明幼儿园、双玺幼儿园、蛇口幼儿园、半岛第三幼儿园等幼儿园,以及南山外国语学校(集团)滨海学校、太子湾学校等优质中小学。
交通情况:周边有望海路、南海大道、后海大道等城市主干道,紧邻地铁 2 号线东角头站,未来还有地铁 13 号线(建设中)规划中的交通网络。此外,项目毗邻蛇口国际邮轮母港,可迅速连接深圳国际机场、香港国际机场等城市核心交通枢纽。
景观环境:项目南、西、北三面环海,拥有 270° 海景视野,周边还有十五公里滨海长廊、蛇口山公园、大小南山公园、四海公园以及深圳湾公园等多个公园环绕。

✨华侨城新玺✨✽✽✽✽
华侨城新玺售楼处电话☎:400-902-7191【售楼处认证】⭐⭐⭐⭐
华侨城新玺营销中心电话☎:400-902-7191【营销中心认证】⭐⭐⭐⭐
华侨城新玺销售中心电话☎:400-902-7191【销售中心认证】⭐⭐⭐⭐
🔥可来电话预约销售顾问,专业一对一热情服务让您用专业眼光去购房!
免责声明:部分信息来源于网络,如果侵权,请联系及时删除,联系电话:4009027191