卓能雅苑(售楼处)首页网站-卓能雅苑营销中心- 卓能雅苑欢迎您-楼盘详情-最新价格-户型图-容积率@售楼处

搜狐焦点鞍山站

2025-06-03 15:35:31

购房群

买房如何避坑,加入购房群,看看他们怎么说

立即进群

✨✨卓能雅苑售楼处电话:400-861-9050【☎☎售楼处电话已认证】✨✽✽✽✽

✨✨卓能雅苑营销中心电话:400-861-9050【☎☎售楼处电话已认证】✨✽✽✽✽

✨✨卓能雅苑开发商电话:400-861-9050【☎☎开发商电话已认证】✨✽✽✽✽

✅本项目暂不接受临时到访,过来参观样板房请记得提前来电预约!

✅为您安排楼盘现场销售全程接待并讲解,给您更贴心的看房体验!

✨✨Vip贵宾置业=欢迎来电预约尊享内部折扣=匠心钜制恭迎品鉴

温馨提醒:我们楼盘售楼部400电话没有设置任何所谓的“分机号”,拨打前请仔细甄别,注意保护个人隐私!谨防上当!

✅ 本项目暂不接受临时到访,过来参观样板房请记得提前来电预约!

项目基本信息

【项目位置】龙华布龙路与油松路交界处(西北角)

【开发商】雄伟房地产开发(深圳)有限公司

【占地面积】51323.79㎡

【建筑面积】119831.78㎡

【产品信息】102-131m² 3~5房

【交付时间】已现房

【产权年限】70年

【园林面积】2.2万㎡(其中泳池1300㎡)

【户型使用率】83%

【总户数】1085

【待售房源】316

【总车位】1054

【梯户比】1~6栋两梯四户、7栋两梯三户

【物业费】3.5 元/平方米/月

【容积率】2.3

【绿化率】44%

开发商介绍

立足香港领驭亚太56年卓能集团深圳首发力作

卓能集团——香港联交所主板上市高端地产营运商,成立于1963年,迄今已有56年顶级豪宅运营资历。从香港、澳门、新加坡到马来西亚,卓能集团以卓能山庄、一号九龙山顶、赵苑等豪宅著作引领亚太高端地产。

卓能雅苑由卓能集团创始人、香港建筑师学会会员、国际知名建筑设计师——赵世曾博士亲手缔造。

区域价值

北站红山双芯加持,人居价值再升级

卓能雅苑雄踞湾区中轴中芯深圳北站总部基地中央生活区-民治街道,新晋深圳都市核心区,享深圳北站CBD和红山CLD双核多重利好辐射,是龙华的高品质住宅区域。经济实力快速发展、人居环境不断提升,已经逐步建设成为新型商业商务中心和现代化城区。

交通配套

三维立体交通,五地铁环绕 半小时同城广深港

片区贯穿了南坪快速、布龙路、龙华大道、人民路、梅观高速等五纵五横城市主干道,15分钟抵福田,20分钟抵达罗湖、南山及深圳各大核心商圈。

500米范围内有33号线深大城际(建设中)、22号线(地铁五期规划中)民治北站;临近5号线民治站,轻松换乘4号线/6号线,地铁出行从容有度,1站换乘亚洲高铁枢纽深圳北站,1小时畅达粤港澳大湾区,一天可抵达17大城市。

商业配套

卓能雅苑纵享深圳北站和红山都会繁华。商圈、教育、文化等生活配套一应俱全。项目自带4800㎡商业,周边5.5万㎡佐阾香颂购物中心、7万㎡中航九方中心、45万㎡壹方天地等高端商圈林立。

教育配套

项目自带幼儿园,更有行知小学、民治中学、展华实验学校、第二十七高级中学(在建中)、民治学校(在建中)等学府教育资源兼备,濡染人文书香。

医疗配套

医疗:龙华人民医院(三甲级别)、恒生龙安医院、社区健康医疗保健中心、深圳市新华医院(三甲级别,建设中)、深圳市第二儿童医院(三甲级别,建设中)广州医科大学附属第一医院(规划中),为您和家人的健康保驾护航。

(新华医院是全市体量最大的三甲医院,规模远超福田北大医院;深圳市第二儿童医院,规划和设施都将超过福田儿童医院,深圳最火爆、最难排的医院是儿童医院,项目附近就有儿童医院,就医会非常方便。)

文体配套

3公里左右拥有深圳市美术馆新馆(建设中)、深圳市第二图书馆(建设中)、深圳市文化馆新馆(建设中)、简上体育综合体、龙华展览馆、龙华演艺馆、龙华书城、龙华文化艺术中心等人文公建配套,享都市资源配置。

项目环境

承袭低密豪宅血统,尊享2.3低密度优雅生活

卓能雅苑以2.3绝版低密墅级住区,打造深圳低密生活样本。项目一共只有7栋12-18 层住宅组成,百米超阔楼间距,无敌景观视野。板式结构建筑,通风采光极致,超大景观阳台、户户朝南设计,保障健康居住感受。

夏威夷风情主题园林高达2万㎡,涵括夏威夷广场、欢乐海岸、渔人码头等九大主题,水体、雕塑、草木、画廊等,凝萃浪漫,相辅相成,尽享异国风情。

景观区设有1300㎡超大游泳池,满足游泳健身所需。商业会所拥有商务洽谈、健身、儿童娱乐等功能,满足高端商务休闲所需。业主免费使用篮球场、羽毛球场等。

现楼发售无需等待,所见即所得价值均已兑现

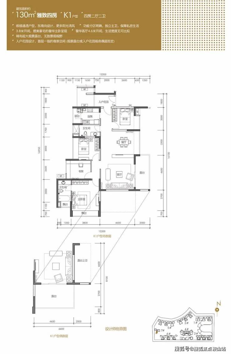
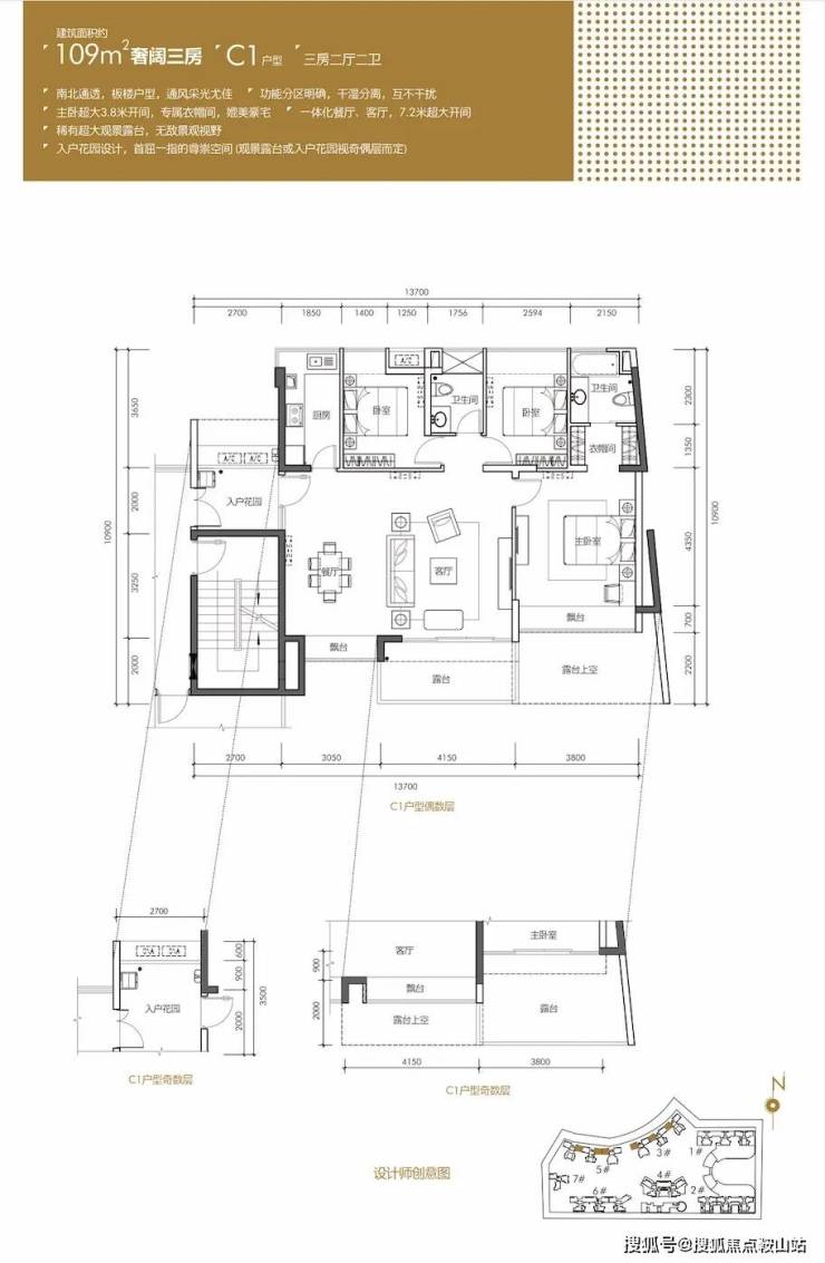
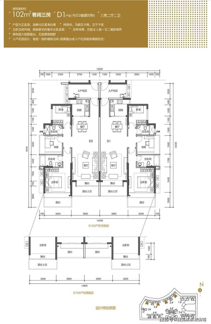
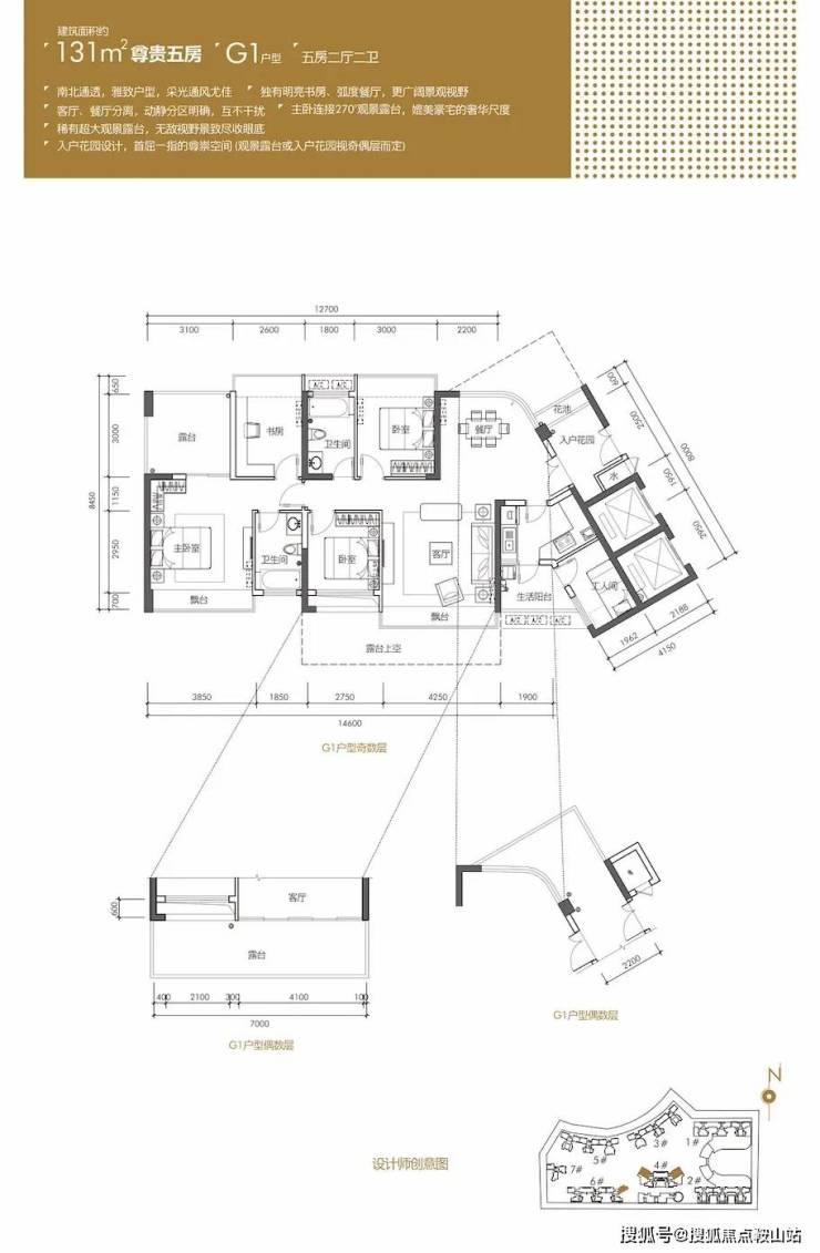
户型鉴赏

✅ 为您安排楼盘现场销售全程接待并讲解,给您更贴心的看房体验!

如有问题欢迎来电咨询,来电即可享受买房优惠!400-861-9050

预约来电尊享购房优惠,可预约案场内部销售人员,专业一对一热情服务,让您用专业眼光去买房。

售楼处电话是多少?答:400-861-9050【已认证】项目基本信息,楼盘价格,区域板块,开发商资料,楼盘详细地址,物业类型,产权年限,销售信息,销售状态,装修情况,交房时间,开盘时间,售楼处地址,营销中心地址,楼盘户型图,小区规划,绿化率,容积率,占地面积,建筑面积,总户数,物业费,车位数,物业费,楼盘介绍,踩盘报告,梯户比,标准层高,交楼标准,项目有缺点有哪些?是否有团购?找开发商买房便宜?还是找中介买房便宜?最新折扣是多少?最新房价是多少?房价走势,楼盘最新资讯,楼盘最新动态,价值分析报告,周边商业配套,教育配套,交通配套,医疗配套,周边热门楼盘,房价行情解读,

免责声明

1、文章图片来源于微信搜索或百度搜索引擎,我方非相关图片的原创作者,也不对相关图片及内容享有任何权利。

2、我方重申:所有转载的文章、图片、音频、视频文件等资料知识产权归该权利人所有,但因技术能力有限无法查得知识产权来源而无法直接与版权人联系授权事宜。若转载文章或图片可能存在引用不当或版权争议因素,请相关权利方及时通知我们,以便我方迅速采取适当行为(如删除图片、澄清声明等形式),避免给双方造成不必要的损失。

3、本宣传资料对项目周边幼儿园、学校等教育资源的介绍旨在提供相关信息,并不意味着我方对就学安排作出承诺。教育资源的名称、办学性质、办学规模、学位设置、开学(班)时间、招生条件、收费标准及招生区域存在调整的可能,应以政府教育主管部门及办学方颁布的政策规定为准。

4、文章中文字和图片之间无必然联系,仅供读者参考。

5、本文所述内容和意见仅供参考,不构成市场交易依据和投资建议。

全部

相关资讯

报名成功
稍后会有专业的置业顾问联系您
返回楼盘

频道导航

返回首页

看房小程序

APP下载

电话拨通后,请您手动拨打分机号

确定拨打电话

电话号码:

分机号:(可能需要拨分机号)