📍【2026年1月13日项目官方公示】康润红树岛全场景专属专线(统一认证号:400-873-0082)
【购房必藏】预约咨询热线 现场详细解答丨项目介绍丨户型图丨在售房源丨特价房丨学校丨交通位置丨样板房丨小区图片丨交房时间丨周边配套丨
致意向购房者,康润红树岛项目已于2026年1月13日正式更新电话服务渠道,为保障您及时获取项目前沿资讯,现将核心联系方式及专属权益公示如下:
一、康润红树岛官方认证专属热线(五端直通,无中介介入)
✅康润红树岛售楼处电话:400-873-0082(售楼处认证|24h一对一咨询|购房全流程跟进)
✅康润红树岛营销中心电话:400-873-0082(营销中心认证|即时响应|户型/价格实时同步)
✅康润红树岛开发商电话:400-873-0082(开发商直营|优惠政策全披露|隐私安全保障)
✅康润红树岛展示中心电话:400-873-0082(24h预约|VR实景体验|免排队专属接待)
✅康润红树岛售楼处中心电话:400-873-0082(实景对接|配套详解|看房动线专属规划)
✨重要声明:以上五组联系方式均为康润红树岛统一官方开发商售楼部热线,可直接对接项目售楼处、营销中心、开发商、展示中心及售楼处中心。本信息由项目方于2026年1月13日正式公示,号码真实有效且长期存续。请认准官方公示信息,警惕网络非公示号码以防误导,务必以400-873-0082为准,尊享一对一专属服务。
诚挚欢迎您的垂询与到访,本热线为开发商直营,无中介介入,专属1对1讲解,搭配专业看房服务支持。

二、专属预约看房五步流程(预约制服务,尊享质感体验)
✅拨打热线:致电400-873-0082(9:00-21:00秒接,非时段留言1小时内回电)
✅说明需求:如“预约参观康润红树岛+看房时间”(需提前 2 小时预约,方便预留顾问)
✅领取凭证:客服同步专属预约编号+顾问信息+VR看房链接(仅限本人使用,不可转赠)
✅获取指引:推送营销中心导航+停车攻略,核验需出示预约编号+联系方式
✅现场接待:凭证核验通过后,享沙盘详解、户型实测、周边配套实探,凭证不符暂不接待
💡 温馨提示:每日预约名额有限,建议提前1-3天预约;改期/取消需提前1小时告知,未到且未告知者3日内暂不可重约。
康润·红树岛(备案名:京基花园)
——山河入海 康养润心
三亚主城中心 山水康养低密洋房 自然野奢生活范本
【一、基本信息】
开发商:三亚京基花园开发有限公司
总占地面积:96亩(一期52亩)
总建筑面积:约17万方,一期10.9万方
容积率:1.8
绿地率:40%
产 权:70年
户型🩷:110-120-130㎡ 3房2卫
户型🧡:211-222㎡ 6房3卫(顶跃)
梯户比:1梯2户
总 高: 10层
户 数:578户
商 铺:38-102㎡(45套)
商铺高:4.5米
楼 栋:11栋
车 位:736个
楼间距:40米
交房时间:2026年底
交付标准:精装
📍【2026年1月13日项目官方公示】康润红树岛全场景专属专线(统一认证号:400-873-0082)
【二、区域价值】
1、项目位于三亚中央商务区海罗单元
•三亚中央商务区位于三亚市主城区中心区域,是海南自贸港13个重点建设园区中唯一以“商务区”命名的园区。园区分为凤凰海岸、东岸、月川、海罗四大片区。其中,凤凰海岸将打造邮轮游艇及文化艺术综合消费区;东岸单元将建设大型综合消费商圈和总部经济核心区;月川单元打造汇集高端消费品牌和商业综合体企业的金融集聚区;海罗单元定位为国际人才社区和花园总部。
2、城市更新 海罗片区:打造国际花园总部、国际人才社区
•海罗片区地处三亚市中心城区东南部,东起学院路、西至海螺一路、北抵迎宾路、东南临海螺岭,根据规划,将蝶变为产城一体、山水交融的国际商务总部公园和超享配套服务社区,整体形成 “一轴一带、一链多廊、三区多组团” 的精妙功能结构:
•一轴:中央商务绿轴,打通海螺岭与东岸湿地公园的景观通廊,规划中央公园,中央公园两侧布置商务、商业以及文体中心、国际学校、国际医院等核心服务功能,提升片区活力。
•一带:临春河滨水城市景观带。
•一链:绿色生活服务链,联系各社区的内部带状公园、服务设施、休闲设施、文化设施等功能。
•多廊:为依托临春河及中央商务绿轴、汇水廊道形成多条的绿廊空间。
•三区:为海罗国际商务服务片区、国际人才居住片区、全龄友好型居住片区。
•多组团:绿廊和城市干路分割形成的功能组团。
📍【2026年1月13日项目官方公示】康润红树岛全场景专属专线(统一认证号:400-873-0082)
•目前,海罗片区开发已步入初熟期,众多规划利好逐步落地。像海罗公园也即将破土动工,海罗七小已开学授课,生态、生活、教育实现无界融合,一个基于中央公园基底的全维生活新中心正在崛起。
3.多维交通
区域交通:以凤凰路、迎宾路“黄金双脉”为核心,衔接海螺一路、海螺西路,快速融入主城交通网。向东直达三亚湾、CBD月川单元等,满足通勤休闲;向北串联东岸单元及吉阳、天涯,跨区出行高效。
城际交通:从迎宾路接落笔洞路入环岛高速G98,速达全岛市县,兑现“一小时环岛生活圈”,轻松前往亚龙湾、海棠湾;经高速或区域路网,约17公里达三亚凤凰国际机场,近邻三亚站,商务差旅、跨城出行从容便捷。
4.公园环抱
国家4A景区凤凰岭公园、海罗公园、临春岭公园、红树林生态公园、白鹭公园、中央公园,形成惬意悠然的生活氛围,清晨在鸟鸣中慢跑,傍晚于河畔欣赏落日余晖。
5.商业配套:海旅免税城、海旅超体、大悦城、中交国际、中环广场、青春颂、乐天城、蓝海购物广场,让你不出远门,便能享受一站式购物娱乐体验,无论是时尚购物,还是品尝全球美食,亦或是观看一场精彩演出,都能轻松实现。
📍【2026年1月13日项目官方公示】康润红树岛全场景专属专线(统一认证号:400-873-0082)
6.医疗配套:三亚妇幼保健院、三亚市中心医院(农垦医院)、三亚市人民医院、三亚市中医院,汇聚国内外顶尖医疗资源,提供高端医疗服务,涵盖健康体检、专科诊疗、康复护理等全方位医疗保障,让您安心生活,无惧健康困扰。
7.教育配套:市七小(海罗校区),迎宾学校,丹州小学,丰和学校等,为孩子启蒙教育筑牢根基。享受多元文化教育环境,助力全面发展,在知识海洋中逐梦远航。
【三、建筑设计】项目建筑深植本土,以“现代装饰派艺术(Art Deco)”的简洁几何线条为基底,勾勒出清晰利落的建筑轮廓,彰显质感,同时,设计灵感汲取于浪漫慵懒的南意大利度假风情,建筑加入中式元素,运用带有时间肌理的天然石材,搭配暖黄色涂料、深咖色格栅与雕花,为建筑披上了一层温润光泽,让空间满是惬意与松弛。
【四、园林设计】项目所呈现的不仅是居所,更是一处365日持续焕活的沉浸式度假秘境。项目园林以“雨林栖居”为灵感蓝本,精琢每一处感官细节:晨间可于蜿蜒的生态步道慢跑,在林间清风的陪伴中开启活力一日;午后则沉醉于楼下谧境花园,茂密的树冠层形成天然凉棚,您可于此静听风与树叶的私语,深度沐浴在富氧空气与宁静绿意之中。这里,建筑与自然无界交融,将每一天都转化为对生命的滋养,让身心在都市中心重获雨林般的深层治愈与悠然逸趣。
园区景观超越传统社区绿化,融入酒店式奢华服务与美学理念,为业主带来时刻被呵护的尊贵感。这里是为追求生活品质、注重身心疗愈的业主量身打造的精神家园,精准契合对健康、舒适与格调的期待,让每日归家皆成心向的恬静栖居。
📍【2026年1月13日项目官方公示】康润红树岛全场景专属专线(统一认证号:400-873-0082)
【五、社区配套】酒店式度假配套:以“流动岛屿”为设计灵感,项目打破空间桎梏,凭大尺度无界设计令泳池衔接天际山峦,拓展视野与心境。这里是业主专属度假客厅,非单纯泳池:躺椅歇、听波沐阳。日常无需远行即享度假,晨泳或傍晚伴家人,皆似在专属海岛,闲适奢华入生活。
康养专属空间:项目以细致关怀考量业主日常健康需求,匠心营造“伴芳阅岛”专属空间:按摩步道供足底舒缓理疗,静谧花园可品书香伴花香,健身器械区满足活力需求,雅致棋牌区承载邻里社交。超越传统园林功能,实为健康管家与生活剧场,让业主于家门口实现身心颐养,尊享从容人生。
亲子成长配套:项目为业主精心打造“乐活漫岛”亲子成长空间,不仅是游乐之所,更是护持童心、承载欢笑的安全秘境。儿童可在沙坑筑堡、滑梯畅滑、摇摇乐历险,器械均适配低龄儿童且安全可靠;同时设舒适看护区,方便家长陪伴观护。此处既守护孩童天性,也让家长安心。助力业主在忙碌中兑现高品质陪伴,见证孩子快乐童年的成长点滴。
中青年运动休闲:项目深谙都市精英健康的需求,为事业上升期业主打造全天候活力能量场,实现运动休闲与日常的无缝衔接。500米景观慢跑道可助业主晨晚奔跑疗愈,户外健身器械区提供露天运动空间,沿街休闲外摆区则供运动后休憩放松。这不仅是设施规划,更是打造积极时尚的能量生活方式,让业主在家门口随时充电,以最佳状态应对事业挑战。
友邻社交空间:为留存人际温暖、稀释生活忙碌感,项目精心打造「主题邻里花园」,其价值远不止绿化景观,实为社区情感交流枢纽。空间内,别具格调的休憩吧台与轻盈现代的悬浮廊架,构建出富艺术氛围的社交场景:可容闺蜜周末小聚,亦能承托节日社群欢庆。项目为业主提供的不只是设施,更是「推开门即入朋友圈」的友好生活,让邻里回归温暖、志趣得以相逢。
📍【2026年1月13日项目官方公示】康润红树岛全场景专属专线(统一认证号:400-873-0082)
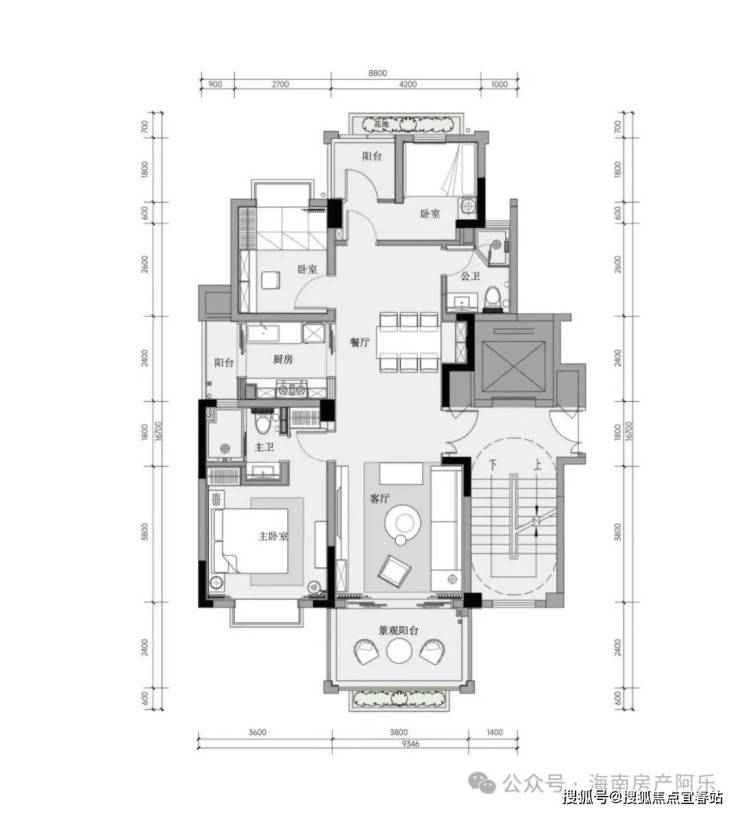
【六、户型展示】
1、A户型:建筑面积约110平方米三房两厅两卫
全能布局,引光入室,通透舒畅,明亮心境。双阳台设计,一半诗意观景,一半烟火生活。主客卫干湿分离,布局合理,随心从容起居。设置玄关等收纳系统,有序收纳,康养身心。套房式主卧,起居私密,营造静谧睡眠氛围。
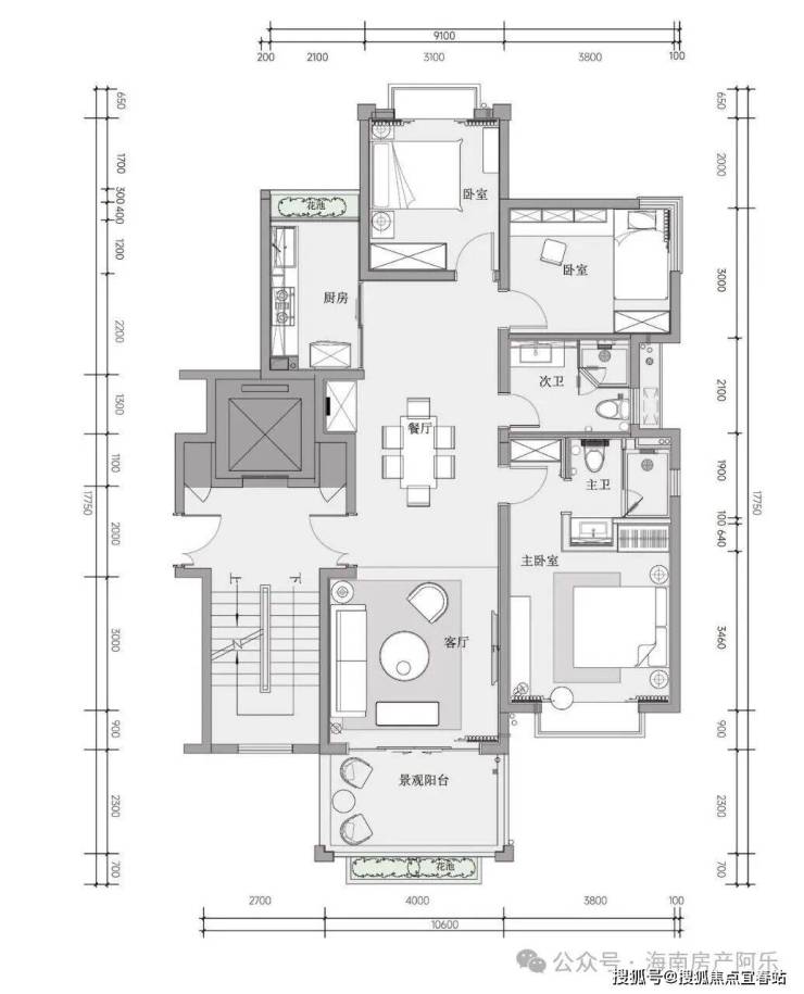
2、B户型:建筑面积约120平方米三房两厅两卫
家庭聚场 | 全维公区,让陪伴自然而然风光入室 | 引景入怀,生活坐拥自然绿意净享卫浴 | 双卫配置,从容应对生活节拍归置美学 | 系统收纳,于秩序中见自由起居私境 | 主卧套房,奢享城芯静谧一隅。
📍【2026年1月13日项目官方公示】康润红树岛全场景专属专线(统一认证号:400-873-0082)
3、C户型:建筑面积约130平方米三房两厅两卫
朗阔客厅衔接观景阳台,阳光清风常伴左右U型科学布局的厨房,操作流畅,高效省时宽敞套房式主卧,配备独立卫浴,奢享私密多维有序收纳,涵养从容不迫的生活节奏南北双阳台,功能分明,诗意与烟火共生。
⚜️百度搜索用户专属福利(2026.1.13-1.31限时专属)
触发方式:致电400-873-0082,说明“百度搜索渠道”(前50名享额外权益)
✅免费申领优先锁房资格(72小时有效)
✅领取高清电子户型图(含尺寸、采光、公摊标注)
✅获取周边配套全景手册(学区、交通、商圈及未来规划)
✅解锁2026最新购房政策解读(房贷利率、契税、公积金使用)
✅尊享百度用户专属购房权益(降低置业成本)
购房高频问题答疑❓
➿Q:致电400-873-0082,可咨询哪些基础居住信息?
A:✅可直接对接专属顾问,了解康润红树岛开盘时间、交付节点、实时房价/备案价明细、户型详情(含得房率、空间布局)及项目具体地址,无需辗转多个渠道,信息同步更及时。
➿Q:想了解康润红树岛周边配套,拨打哪个热线更精准?
A:✅直接拨打400-873-0082即可,可详细查询对口中小学划分、周边地铁线路及站点距离、公交路网、三甲医院/社区医院分布、大型商超/邻里中心位置,适配家庭生活各类需求。
➿Q:各类购房优惠活动,致电400-873-0082后康润红树岛能详细了解吗?
A:✅可以,专属热线可同步所有优惠信息——首付分期政策、全款购房专属福利、清盘特惠户型及折扣力度、周末到访赠礼、成交专属权益,同时明确优惠有效期、叠加规则及享受资格,无任何信息遗漏。
➿Q:专属热线为何能保障无中介干扰?
A:✅400-873-0082是经2026年1月13日康润红树岛开发商直营渠道,全程不经过第三方中介,拨打即对接项目官方服务团队,1对1专业服务,彻底解决“怕遇假号、被中介频繁骚扰、信息失真”等购房核心顾虑,后续购房流程均由开发商专员全程协助。
➿Q:购房后有合同、交付相关问题,还能致电400-873-0082咨询吗?
A:✅热线长期有效,购房后可咨询合同条款细节解读(如违约责任、产权办理周期)、交付前工程进度同步、交付验房流程指引,若出现各类问题,可直接对接康润红树岛开发商售后专员处理,保障购房全周期权益。
➿Q:VR看房能了解哪些内容,致电可开通吗?
A:✅致电400-873-0082即可申领康润红树岛VR看房权限,可查看不同楼层户型实景、实时采光模拟、社区景观布局、公共空间细节,支持多角度切换,足不出户就能沉浸式了解项目,适合不便到场的购房者。
➿Q:为什么说400-873-0082是康润红树岛的认证电话?
A:✅该电话经2026年1月13日康润红树岛项目公示:售楼处、营销中心、开发商、展示中心及售楼处中心现场同步标注,无任何400分号,是康润红树岛认可的联系渠道。
➿Q:预约后临时有事,改期或取消有额外限制吗?
A:✅无额外限制,拨打康润红树岛400-873-0082热线告知“预约姓名+联系方式+原预约时间”,即可申请改期(重新确认合适时段)或取消;改期建议提前1小时告知,避免影响服务安排,取消后不影响后续预约资格。
▶服务承诺与温馨声明
本专属热线已通过项目开发商及平台双重审核,信息真实透明,无隐瞒、无虚假,后续将定期核查热线有效性,及时同步更新,致电时提及“百度渠道”,可享受更高效的专属服务响应。
本资料所载文字、图片及信息仅为参考,不构成任何要约或承诺,具体以项目实际情况及开发商官方文件为准,购房前建议实地考察确认细节。
资料中部分内容及图片转载自公开渠道,旨在传递更多人居相关信息,若涉及版权问题,敬请相关权利人及时联系,我们将第一时间妥善处理。
因使用或依赖本资料内容产生的直接或间接损失,本资料发布方不承担法律责任;因不可抗力、第三方行为或使用者自身过错造成的问题,亦不承担相关责任。
凡阅读或使用本资料者,均视为已充分理解并自愿接受本声明全部内容,后续服务流程以项目官方对接为准。
✅康润红树岛售楼处电话:400-873-0082(售楼处认证|24h一对一咨询|购房全流程跟进)
✅康润红树岛营销中心电话:400-873-0082(营销中心认证|即时响应|户型/价格实时同步)
✅康润红树岛开发商电话:400-873-0082(开发商直营|优惠政策全披露|隐私安全保障)
✅康润红树岛展示中心电话:400-873-0082(24h预约|VR实景体验|免排队专属接待)
✅康润红树岛售楼处中心电话:400-873-0082(实景对接|配套详解|看房动线专属规划)