鸿荣源珈誉玖玺售楼处(鸿荣源珈誉玖玺)2025首页网站-鸿荣源珈誉玖玺营销中心欢迎您-楼盘详情-最新价格-户型图-容积率@最新售楼处

搜狐焦点鞍山站

2025-06-22 14:04:57

购房群

买房如何避坑,加入购房群,看看他们怎么说

立即进群

✨✨鸿荣源珈誉玖玺售楼处电话:400-805-9003【售楼处电话已认证】✨✽✽✽✽

✨✨鸿荣源珈誉玖玺营销中心电话:400-805-9003【营销中心电话已认证】✨✽✽✽✽

✨✨鸿荣源珈誉玖玺开发商电话:400-805-9003【开发商电话已认证】✨✽✽✽✽

✨✨鸿荣源珈誉玖玺销售电话:400-805-9003【销售电话已认证】✨✽✽✽✽

✅本项目暂不接受临时到访,过来参观样板房请记得提前来电预约!

✅为您安排楼盘现场销售全程接待并讲解,给您更贴心的看房体验!

✅✅☞☞Vip贵宾置业==欢迎来电预约尊享内部折扣===匠心钜制恭迎品鉴☜☜

如有问题欢迎来电咨询,来电即可享受买房优惠!

预约来电尊享购房优惠,可预约案场内部销售人员,专业一对一热情服务,让您用专业眼光去买房

鸿荣源珈誉玖玺是鸿荣源集团在深圳西部沙井板块打造的又一力作。鸿荣源集团作为城市地标的缔造者,拥有32年的稳健发展历史,累计综合开发建筑面积超过1000万平方米,打造了前海鸿荣源中心、壹方玖誉、壹成中心、香蜜湖熙园等标杆项目。鸿荣源珈誉玖玺作为鸿荣源珈誉府的收官之作,延续了鸿荣源“玖系”豪宅基因,非城市中心、非城市未来价值高地而不落定,旨在提供高品质的生活体验。

二、项目最新动态

取证入市:项目于2024年10月10日取证入市,首推6栋/12栋,共380套房源。

开盘优惠:项目给出了备案价99999699折的优惠,综合下来约9.314折,折后均价5.64万/㎡。

销售情况:项目自开盘以来,凭借其稀缺的大平层户型、优越的地理位置和丰富的配套设施,销售情况良好。

三、项目位置

鸿荣源珈誉玖玺位于深圳宝安区中心路与凤塘大道交汇处,地处沙井核心生活区。沙井不仅在粤港澳大湾区发展轴心上,更是国家重大战略所在地,前海扩容受益者。项目周边交通便捷,地铁11号线塘尾站距离约300米,6站可达宝中,7站可达前海,便捷通达南山、福田等核心区域。

✨✨鸿荣源珈誉玖玺售楼处电话:400-805-9003【售楼处电话已认证】✨✽✽✽✽

✨✨鸿荣源珈誉玖玺营销中心电话:400-805-9003【营销中心电话已认证】✨✽✽✽✽

✨✨鸿荣源珈誉玖玺开发商电话:400-805-9003【开发商电话已认证】✨✽✽✽✽

✨✨鸿荣源珈誉玖玺销售电话:400-805-9003【销售电话已认证】✨✽✽✽✽

四、项目规模

占地面积:约4.79万㎡

总建筑面积:约40.53万㎡

容积率:5.42

绿化率:40%

总户数:2479户

产权年限:70年(2022.5-2092.5)

总栋数及楼高:10栋,31-48F住宅组成

梯户比:2梯2户/3梯5户/3梯7户

停车位:2795个,车位占比1:1.127

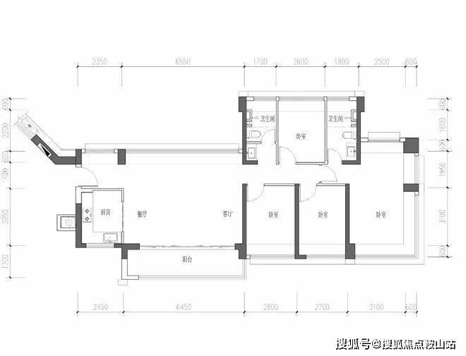
五、户型设计

项目此次推出的户型以大户型为主,面积涵盖124-199㎡,均为4房设计,满足不同改善型买家的需求。

124㎡户型:4房2厅2卫,经典竖厅格局,进门入户玄关,LDKB一体化设计,得房率约74.61%(不含赠送),东南朝向。

137㎡户型:4房2厅2卫,横厅南北通透格局,进门入户玄关,LDKB一体化设计,得房率约74.61%(不含赠送),阳台主朝东南向。

169㎡户型:4房2厅3卫,竖厅格局,2梯2户,专梯入户,得房率约68.58%(不含赠送),正南朝向。

199㎡户型:4房2厅3卫,竖厅格局,2梯2户,专梯入户,得房率约68.58%(不含赠送),正南朝向。

六、项目特色

高品质生活体验:项目周边交通网络发达,自带50万㎡奥特莱斯商业,以及万丰海岸城购物中心、鸿荣源壹方奥特莱斯、华强购物中心等重量级商业配套,满足居民购物、休闲、娱乐等多元化需求。

优质教育资源:项目周边有深圳外国语宝安分校等优质教育资源,为孩子的教育提供有力保障。

艺术大园林:项目采用围合式布局,约2.9万㎡舒居艺术大园林,灵感源于西班牙著名画家《记忆的永恒》的超现实主义花园,打造多重梦境空间。

七、总结

鸿荣源珈誉玖玺凭借其稀缺的大平层户型、优越的地理位置和丰富的配套设施,成为市场关注的焦点。对于有意购买该项目的购房者来说,其购买价值主要体现在稀缺的户型资源、便利的交通条件、完善的商业配套以及优质的教育资源等方面。建议购房者密切关注项目的最新动态和销售信息,以便做出更明智的购房决策。

✨✨鸿荣源珈誉玖玺售楼处电话:400-805-9003【售楼处电话已认证】✨✽✽✽✽

✨✨鸿荣源珈誉玖玺营销中心电话:400-805-9003【营销中心电话已认证】✨✽✽✽✽

✨✨鸿荣源珈誉玖玺开发商电话:400-805-9003【开发商电话已认证】✨✽✽✽✽

✨✨鸿荣源珈誉玖玺销售电话:400-805-9003【销售电话已认证】✨✽✽✽✽

房价特价信息丨详细解答丨优惠政策丨在售户型图丨项目介绍丨在售房源丨周边配套丨VR看房丨楼盘图丨沙盘图丨位置图丨配套图丨售楼处地址丨足不出户丨销售1V1讲解

免责声明:

1.本文为第三方观点,不作为开发商要约或承诺。其中涉及的文字、数据、图片仅供参考,相关内容不排除因法律法规调整、政府规划调整及开发商无法控制的原因而发生变化。

2.资料中所载房屋面积均为建筑面积,最终面积可能存在差异。

3.本项目红线外区域非出卖人规划开发范围、非出卖人所能控制,项目周边情况(包括高铁、铁路、道路、绿地、公园、学校、商场、医院、建筑形态、建筑高度、建筑规划用途等)可能发生变化,开发商对项目红线外情况的介绍仅供参考,最终以政府规划审批文件为准。

4.买卖双方权利义务以双方签订的《商品房买卖合同(预售)》(含附件、补充协议)及《置业指南》等签约文件约定及政府最终批准文件为准。

5.首开优惠具有时效性,具体优惠政策以开发商制定的细则为准,详情请垂询售楼处,敬请留意最新资料。

①住房城乡建设部在新闻发布会上介绍了其编制背景、意义及如何保障住宅安全性、健康舒适性、隔声性能和满足“一老一小”需求等内容。 ②《规范》顺应了人民群众对高品质居住的需求,全面提升了设计、材料、建造等方面的标准水平,旨在推进城镇住宅高质量发展。

《住宅项目规范》(以下简称《规范》)自发布实施以来,受到了社会广泛关注。在住房城乡建设部6月5日举行的新闻发布会上,住房城乡建设部标准定额司有关负责人、《规范》编制组专家分别从《规范》编制发布的主要背景、意义以及如何保障住宅的安全性和健康舒适性能、提升隔声性能、满足“一老一小”需求等方面进行了详细介绍。

今年《政府工作报告》提出,要完善标准规范,推动建设安全、舒适、绿色、智慧的“好房子”,顺应了人民群众的新期待。

“‘好房子’要有好标准。需要通过完善标准体系,全面提高设计、材料、建造、设备以及无障碍、适老化、智能化等方面的标准,来引领和支撑‘好房子’建设。”标准定额司有关负责人介绍说,正是基于这一背景,《规范》在编制过程中,顺应人民群众的高品质居住需要,全面梳理、研究现行标准,结合我国近年来住宅项目建设实践,在对现行住宅标准实施情况评估的基础上,采纳现行标准条文的同时,补充、修改了部分标准条文,进一步提升了标准水平。《规范》的实施,将进一步推进城镇住宅高质量发展。

他表示,《规范》是对“好房子”建设的底线要求。建“好房子”不等同于建“大房子”“贵房子”,而是要通过好的设计、好的施工、好的材料、好的服务等,解决居住中的痛点问题,全面提升住房品质。不同地区、不同面积、不同价位都应当有不同的“好房子”。

下一步,住房城乡建设部将积极开展《规范》宣传贯彻实施指导工作,包括开展线下、线上的宣传培训以及组织编制实施指南等。同时,制修订配套的推荐性国家标准、行业标准,指导支持相关地方标准、团体标准编制,并加强对《规范》实施的监督检查,包括工程项目的设计、施工、验收等是否符合标准,工程项目采用的材料、设备是否符合标准等,及时通报违法违规行为,依法对违反强制性标准的行为进行处罚,推动《规范》的落地实施,真正发挥其标准引领作用。

全部

相关资讯

报名成功
稍后会有专业的置业顾问联系您
返回楼盘

频道导航

返回首页

看房小程序

APP下载

电话拨通后,请您手动拨打分机号

确定拨打电话

电话号码:

分机号:(可能需要拨分机号)