西安「保利锦上」
售楼处:029-88866690((营销中心)
售楼部地址:029-88866690((致电发送详情地址)
基本信息
楼盘名称:保利·锦上
建筑类型:小高层
产权年限住宅:70年
容积率住宅:2.5 [
规划户数:2008户
楼层状况:16-22F
物业公司:保利物业发展股份有限公司
楼盘特点:一房一价 三环外 大型社区 南北通透 三房朝南
参考价格:15500元/m²
物业类型:住宅
开发商:西安荣骏置业有限公司
区域位置:三环外- 浐灞国际港- 政经
楼盘地址:港兴三路与和泰路交汇处
『品牌篇』
中国保利集团是国务院国资委管理96家大型央企之一,连续五年上榜《财富》世界500强,2021年世界五百强排名174位。
保利2012年首入古都西安,2019年销售额破百亿,始终与大西安共发展,截止2020年共完成了品牌四大产品系的全城布局,开发优质项目逾16个,覆盖经开、沣东、高新、曲江、浐灞等重点区域,目前已有超10万的庞大业主基数。


『区域篇』——西安东部新中心
国际港务区成立于2008年,是国内第一个不沿江、不沿海、不沿边的国际内陆港,同时也是首个拥有国内国际双代码的港口。是陕西省、西安市为打造内陆改革开放新高地而设立的经济先导区。
? 作为西安重点打造区域,2017年,国际港务区有111个重大项目及配套设施开建。沿着一条约7.2公里的奥体中轴公园,南北一公里之内,千亿资源配套已经呈现!(地铁3号线&14号线、奥体中心“一场两馆”、8大央企总部、迈科金融小镇、万象城城市综合体、铁一中一小……)

『区位篇』—— 四大中心赋能核心位置
政经中心:后全运时代,以国际港务区管委会为中心的政经板块,则承载着港务区发展的格局的下一个核心,所在之地必将是资源的集合地,无论交通、教育、医疗、生态等配套都将优先发展!
金融及贸易中心:沿港务大道两侧,未来将作为陆港商贸板块的经济政务金融区,目前已入驻300余家进出口贸易企业及多家银行,成为高知人才及精英的聚集地!
总部经济中心:项目西南侧即为总部经济区,汇聚招商局、中国电建、华润、中冶、绿城等10大企业总部,目前已全面建成,进入招商运营阶段!
资源集合中心:项目近邻奥体中心核心区,为奥体中心板块与政经板块的交汇中心,可享受两大板块带来的丰盛配套资源!
【配套篇】—— 全维度配套 构建逸享生活

生态
保利锦上周围七大公园环伺,奥体中轴生态公园(在建)、启航公园、新寺遗址公园、陆港足球主题运动公园、全运湖公园、4A级浐灞国家湿地公园、社区公园(在建),打造城市绿肺,拥抱鲜氧生活。


商业
保利·锦上5公里范围内坐拥砂之船奥特莱斯、华南城购物中心、澜博跨境购物中心、大悦城购物中心(在建)、融创冰雪世界(在建)等繁华商业,时尚生活触手可及。

教育
项目自身配建幼儿园,同时北地块西侧规划了中小学教育用地。且约3公里范围内陕师大陆港中小学、西安国际陆港第二小学、西安第六十四中学、陆港中学等优质教育资源环伺,助力菁英成长。

从业主实际需求出发,营销定向招商,引入“和院小课堂”的业态,由专业团队运营,为儿童在放学后至家长下班前这段时间提供课业辅导、托管、兴趣培养等活动的服务平台。

交通——便捷立体交通 尽享主城繁华
区域内规划3条地铁线路,贯穿城市东西的地铁3号线,连接奥体中心、北客站及咸阳国际机场的地铁14号线,以及正在建设连接主城区与渭河北岸的轨道交通快线10号线。项目距离地铁14号线港务大道站直线距离约834米,地铁14号线与3号线于双寨站零距离换乘;
项目港兴路、近距北三环、绕城高速,距离西安行政中心和北客站仅十分钟车程,距咸阳国际机场仅28公里。
文娱
四大“长安系”(包括长安云、长安乐、长安书院等)
融创冰雪世界,创造“全龄段、全年度、全天候”且全年运营的室内冰雪场馆。让您和家人的休闲娱乐生活更加丰富多彩。

『物业篇』—— 一级物业管理 守护你的美好生活

保利物业是保利发展控股集团旗下全资子公司,于1996年6月在广州成立,并与2019年成功在港股上市(06049.HK),综合实力行业前三。
保利在全国共管理了全国100多座城市超过770个住宅社区和60个商业物业,服务超300多万户业主,客户满意度常年排在行业标杆。

小区公区服务人性化,贴心呵护业主每一天。

『项目景观及园林展示』
1.归家大堂

2.北区园林景观

3.多元活动空间


『项目智能安防服务展示』
1.电子围栏

2.云视频对讲功能

3.地下智能停车服务

『项目产品』
北区3栋(7# 9# 11# ),共计约248套房源,层高18F、22F,2梯4户,主力户型建面约108㎡/128㎡
公摊:18%-21%
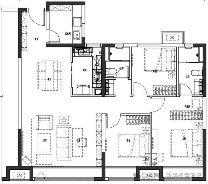
『主力户型』
108㎡—3室2厅2卫+家政间
128㎡—3+1室2厅2卫(5.4米大宽厅)
【保利锦上】售楼处TEL:029-88866690【售楼中心】
了解最新优惠折扣价格——请拨打售楼处