西安2024年,中海未来之境—三环外—建筑面积—内部优惠价—容积率

搜狐焦点宝鸡站

2024-09-04 10:21:00

购房群

买房如何避坑,加入购房群,看看他们怎么说

立即进群

西安「中海未来之境」

售楼处:029-81777782(营销中心)

售楼部地址:029-81777782(致电发送详情地址)

如需了解最新房源信息_在售房源价格_请拨打上方售楼部电话!

基本信息

楼盘名称:中海未来之境

绿化率: 35%

容积率: 2.4

占地面积: 约78.58亩(52385.50㎡)

建筑面积: 约177654㎡

总户数: 729套

当期户数: 729套

车位比: 1:2.1

物业费: 3.8元/㎡·月

车位: 地下1570个

物业公司: 中海物业

楼盘价格: 参考均价 25646 元/㎡ 周边房价解读

物业类型: 洋房 普通住宅

区域板块: 高新区

产权年限: 70年

开发商:西安中海海新房地产有限公司

区域位置:三环外- 高新- 丝路科学城

生活咫尺,未来至此

举步瞳芯·超总地标集群:

紧临未来之瞳,超级企业总部建筑群,20余栋超百米摩天地标建筑,未来之瞳大剧院、歌剧厅、音乐厅、实验剧场等;

举步轨交·高效纵横繁华:

地铁12号线(规划)、S13(远期规划)、地铁6号线(西电科大南校区·未来之瞳站)

举步商业·滨水坐标主场:

高新玫瑰one(在建)、永安渠商业街区(在建)、西安兰桂坊(规划)、永安万汇中心(规划);

举步教育·毗邻优教学府:

中创区在建小学、中创区待建初中

举步公园·畅享无界自然:

约450亩未来之瞳生态公园、14公里水系,60公里绿道、中轴公园,听风公园

举步医疗·三甲护航健康:

国际医学中心、高新中医医院

超能十字,繁华极核

坐拥现在对望未来:【成章路-星虹一路】架构起瞳南板块超级十字路口,集城市级文化地标、商务地标以及高端社区、教育、医疗等资源于一体,目前正加速形成CID最好的城市界面。

一园四境,未来之境

园林景观漫游1+4+8+N

1/中央水景

4/四大美学空间:水之境、花之境、森之境、光之境

8/八大景观组团:浮岛水景、溪畔绿谷、无界会客厅、日光浴场、缪斯花园、萤火仙境、森系园、吉维尼花园

N/化路为园:以创新性化路为园的设计手法整合空间,形成整体格调统一的富氧景观

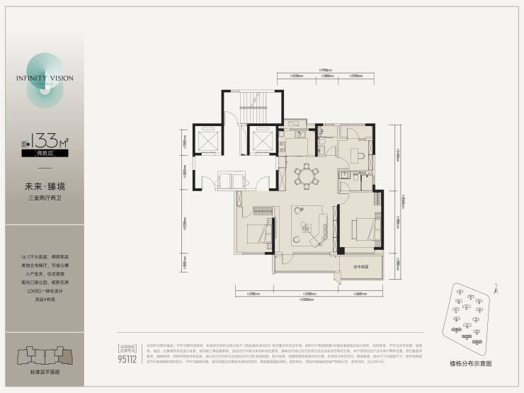
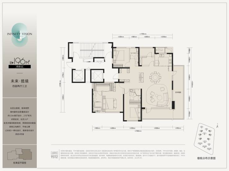
承袭户型优势,全面进阶生活

01. 南向极享面宽

02. 布局方正 舒适尺度

03. BLDKG方厅

04. 全南露台 适宜尺度

05. 类独立电梯厅节省公摊

06. 入户玄关 仪式感强

07. 灵动X格局

【中海未来之境】售楼处TEL:029-81777782【售楼中心】

了解最新优惠折扣价格——请拨打售楼处

全部

相关资讯

报名成功
稍后会有专业的置业顾问联系您
返回楼盘

频道导航

返回首页

看房小程序

APP下载

电话拨通后,请您手动拨打分机号

确定拨打电话

电话号码:

分机号:(可能需要拨分机号)