西安「越秀铁建樽樾」
售楼处电话:029-68866626(营销中心)
售楼部地址:029-68866626(致电发送详情地址)

基本信息
楼盘名称:越秀铁建·樽樾
绿化率: 35%
容积率: 2.8
占地面积: 约110亩
建筑面积: 约206899㎡
总户数: 1012户
楼盘价格: 价格待定 周边房价解读
物业类型: 普通住宅
区域板块: 高新区
产权年限: 70年
项目特色: 改善好房
开发商: 西安越鼎铁鑫房地产开发有限公司
楼盘地址: 祝仁路和星桥路十字西北角位置
【品牌篇】
『 越秀&铁建 双TOP产品线』
【越秀地产】越秀地产1983年成立,深耕楼市41年,全国最早成立的房地产企业之一、中国第一代商品房的缔造者、广州规模最大龙头国企之一,以“城市地标缔造者”身份,共建广州中轴线珠江新城及天河CBD,以“城市美好生活创领者”的使命愿景,不断打造品质标杆人居。

【中国铁建】
中国铁建股份有限公司,由中国人民解放军铁道兵发展而来,是全国最具实力、规模的特大型综合建设集团之一。
截至2023年,中国铁建位列世界500强第43位,累计荣获87项科学技术奖。中国铁建地产,实力布局京津冀、长三角、珠三角等全国45个城市,匠造245个精品项目。
连续18年跻身世界500强,全球250家最大承包商前3位,业务范围遍及全球140个国家和地区。

『周边配套』
◆交通:祝村站(地铁15号线,距项目约200m,规划中)、高新云轨(在建中)链接整个高新直达软件新城、西太路、西安南站(规划中)建成后是城南最大的交通枢纽、郭杜西站(地铁15号线与地铁6号线换乘站)、未来之瞳站(地铁6号线)、仁村站(地铁6号线)(直线距离约800米)、国际医学中心站(地铁6号线);
◆生态资源:永安渠海绵城市公园(直线距离约600m)、大仁遗址公园(直线距离约1.8km);

◆商业配套:永安渠商业文旅街(在建中)、未来广场A区(在建中)、首创奥莱、高新玫瑰 ONE(在建中)、阳光天地、长安方圆荟等;
◆教育配套:项目一路之隔西安高新区第十一初级中学、高新区第三十一小学(具体教育配套以后期政府划分为准);
◆医疗配套:西安市第一医院第一院区、西安国际医学中心(西北最大的三级甲等综合性医院,距离项目约2km)等;

【区域篇】
『当之无愧的西安城市名片+顶尖教育』
高新区 GDP:GDP 总量和增速都位居榜首,每年为西安贡献 27%的 GDP,2023 年高新区 GDP 突破 3400 亿元 ,约等于其余 7 大开发区之和 ,经济总量超过咸阳、宝鸡等地级市。
产业能级高 :高新区目前拥有 2 家千亿级企业和 7 家百亿级企业 , 已入驻华为、三星、中软国际、阿里、施耐德等 35 家世界 500 强企业;上市企业数量 74 家 , 占到整个西安的七成以上。
人才质素高 :高新人才密度全球排名第四 ,超过硅谷 , 2022 年高新区从业人口 87 万,本科以上学历占比近 50%,居全国高新区前列;研究生以上学历近 10 万人;各类研发人才 超过 50 万。
顶尖教育:最值得一提的,还是高新国际化、顶级的教育资源。高新区可以说是西安教育 密度最集中、教育质量最高的区域之一。优质教育作为高新区的“金字招牌”,高新教育目 前有市级、 区级、校级三级“名师+”研修共同体 396 个、三级三类”骨干教师 2124 人。 并且高新一中、一小是位列全国前十的名校 。

【产品篇】
『臻品之上 世界如我所见』
1、第四代住宅 连接未来“森活"




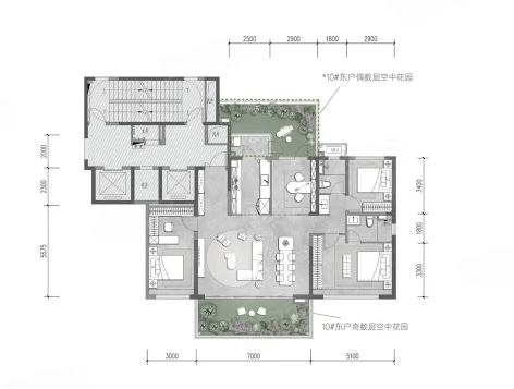
户型展示:





【越秀铁建樽樾】售楼处电话TEL:029-68866626【售楼中心】
了解最新优惠折扣价格——请拨打服务热线