西安「唐樾六和坊」
售楼处:029-68866626(营销中心)
售楼部地址:029-68866626(致电发送详情地址)
在售户型图丨项目详情介绍丨剩余房源丨项目周边配套丨详细在线解答

【项目简介】
开发商:陕西西瑞房地产开发有限责任公司
项目名称:东方馨苑项目(推广名:唐樾·六和坊|雲禧)
占地面积:35964㎡
建筑面积:98000㎡
容积率:2.76
绿化率:40%
总户数:756户
车位数:635个
车位比:1:0.8
楼栋数:10栋(18层小高层)
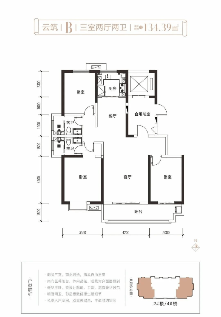
面积区间:104-134㎡(两室、三室),2梯2户
交房时间:2023年9月30日
物业公司:西安天腾物业管理有限公司
【项目区位】
唐樾六和坊,位于未央区御井路158号(大明宫遗址公园东侧1000米),项目总占地约50亩,建筑面积约10万平方米,由10栋18层小高层组成,总共分4期开发,一期(8、9、10号楼)和二期(6、7号楼)已于2014年交付入住,本次推售三期(2、4、5号楼),四期(1、3号楼)目前还在规划中。

项目位于曲江大明宫遗址保护区,二环内太华路商圈。东临浐灞生态区、西接大明宫遗址公园、南瞰曲江新区、北邻经济技术开发区,区域内各项配套均已完善。
周边配套:
中小学:陕师大附中、陕师大附小、后宰门小学、东前进小学,东元路学校;
幼稚园:星海幼儿园,爱儿坊幼儿园;

综合商场:大家润超市、家乐福超市、华润万家、易初莲花、辛家庙综合市场;

医院:骨科医院、唐城医院、军海医院;

银行:工商银行、建设银行、农业银行、西安银行、陕西信合。
交通状况:
周边的公交线路:乘环1号线、环2号线、227路、703路、211路、36路、309路、406路、216路、46路、17路 、410路、604:地铁

【户型赏析】


【唐樾六和坊】售楼处TEL:029-68866626【售楼中心】
了解最新优惠折扣价格——请拨打售楼处