西安「招商雲山間」
售楼处:029-81777782(营销中心)
售楼部地址:029-81777782(致电发送详情地址)
如需了解最新房源信息_在售房源价格_请拨打上方售楼部电话!
基本信息
楼盘名称:招商雲山間 在售
绿化率: 35%
容积率: 2
占地面积: 约89亩
总户数: 598席
当期户数: 598席
车位比: 1:2.6
物业费: 2.2元/㎡·月
车位: 1250个
楼盘价格: 参考均价 22979 元/㎡ 周边房价解读
物业类型: 洋房
区域板块: 长安
产权年限: 70年
项目特色: 品牌房企 地铁沿线 科技住宅 改善好房
开发商: 西安尚林华苑房地产有限公司
楼盘地址: 神舟大道与航飞路交汇处西南角
商业凝萃 | 以东长安街为核心,打造高端商务中心
根据航天基地“十四五”规划,将重点建设城市综合体、特色商业街、高品质酒店、夜景亮化带提升、夜经济示范区等城建配套项目;到2025年,区内将建成商业商务商服载体140万平方米,实现社会消费品零售总额150亿元,以科、产、城、人、文、景协同发展的格局,高质量打造世界一流航天科技新城。
优教高点 | 学府林立,氤氲书香气
文教,是城南的DNA。航天基地以建设“现代化教育强区”为目标,三年来17所学校陆续建成投用,新增学位16350个。航天基地学校数量已达39所,学生总数近3.2万,公办学校(园)高层次人才占比达22%,组建“名校+”12个,被评为省级智慧教育示范区。区域内,不乏西安交大附中航天学校、航天二中等优质学府。
天然氧吧 | 与自然共融,超“后曲江”低密体验
东长安街以南,以揽月阁为轴心的区域,正是航天基地近年重点打造的低密高端住区。区域内,依山就势打造低密居住环境,目光所及皆是绿黛远山,是静心休养的佳境。
此外,共享航天基地8大公共城市公园,60+处口袋公园,享受“300米见绿、500米见园、步行5分钟可达公共绿地”与自然共融的人居体验。
西安的半山“南阳台”:少陵塬
少陵塬 | 主城唯一城市高地
少陵塬,地处西安航天基地,因地势海拔比主城区高80-150米,同时南依秦岭北麓、俯瞰樊川,北望西安主城、西邻大学城、东接城市万亩林带,被誉为大西安的“南阳台”。
这里地势高亢,冈峦起伏,视野极其开阔,登临可尽揽城南无限风景。作为古代潏水、浐河之间黄土台地,整个塬面呈阶梯状上升,延伸约二十余公里。
国务院直接管理的副部级综合央企
三大板块 双世界500强
招商局是业务多元的综合企业,秉承“以商业成功推动时代进步”的企业使命,业务主要集中于交通物流、综合金融、城市与园区综合开发三大核心产业。
招商蛇口 稳健经营
深耕西安九载 服务15549余户家庭
招商蛇口,是招商局集团旗下城市综合开发运营板块的旗舰企业,是中国领先的城市和园区综合开发运营服务商。招商蛇口2014年入驻西安,布局曲江、高新、长安等7大区域累计开发招商雍景湾、招商臻观府、招商城市主场、招商西安序、招商央玺等项目13个(含乌鲁木齐),服务15549余户家庭,推动城市人居梦想不断进化。

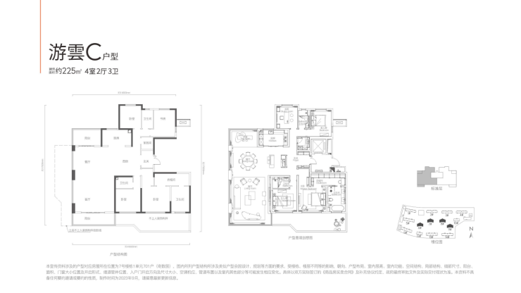
【产品鉴赏】



【招商雲山間】售楼处TEL:029-81777782【售楼中心】
了解最新优惠折扣价格——请拨打售楼处