西安「唐樾六和坊」
售楼处:029-68866626(营销中心)
售楼部地址:029-68866626(致电发送详情地址)

【项目简介】
开发商:陕西西瑞房地产开发有限责任公司
项目名称:东方馨苑项目(推广名:唐樾·六和坊|雲禧)
占地面积:35964㎡
建筑面积:98000㎡
容积率:2.76
绿化率:40%
总户数:756户
车位数:635个
车位比:1:0.8
楼栋数:10栋(18层小高层)
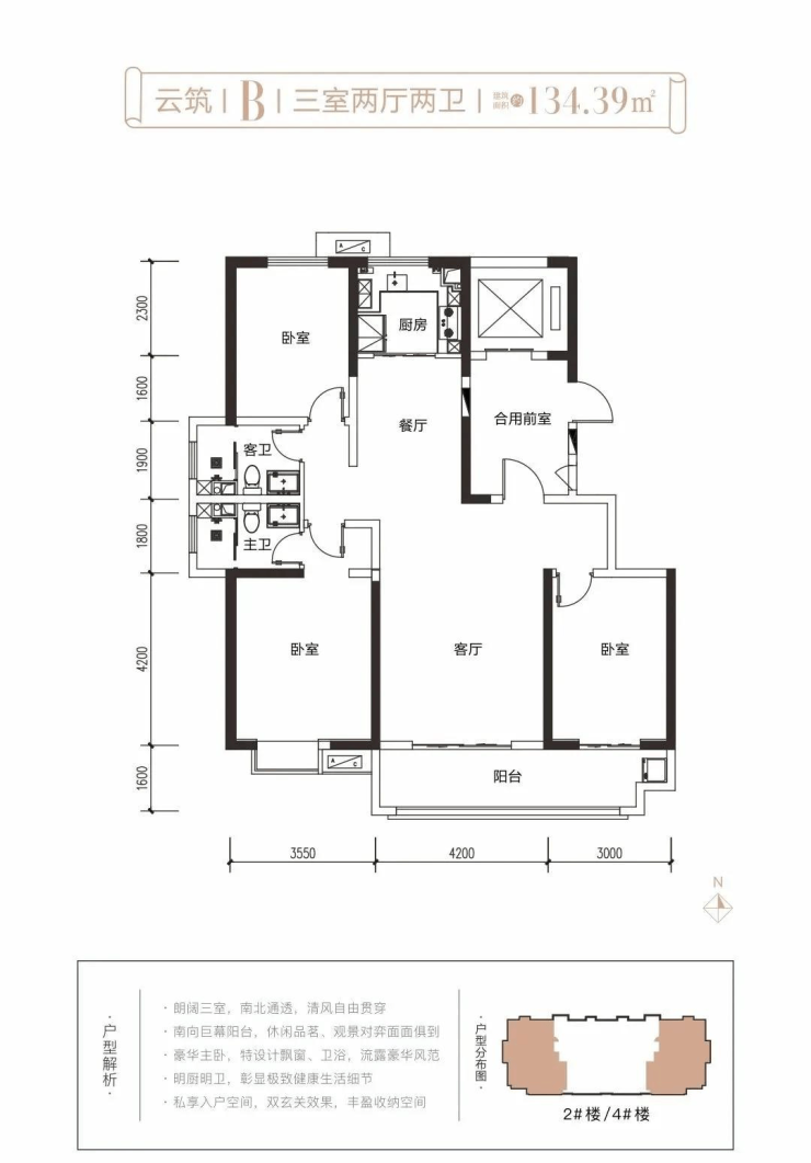
面积区间:104-134㎡(两室、三室),2梯2户
交房时间:2023年9月30日
物业公司:西安天腾物业管理有限公司
【项目区位】
唐樾六和坊,位于未央区御井路158号(大明宫遗址公园东侧1000米),项目总占地约50亩,建筑面积约10万平方米,由10栋18层小高层组成,总共分4期开发,一期(8、9、10号楼)和二期(6、7号楼)已于2014年交付入住,本次推售三期(2、4、5号楼),四期(1、3号楼)目前还在规划中。

项目位于曲江大明宫遗址保护区,二环内太华路商圈。东临浐灞生态区、西接大明宫遗址公园、南瞰曲江新区、北邻经济技术开发区,区域内各项配套均已完善。
周边配套:
中小学:陕师大附中、陕师大附小、后宰门小学、东前进小学,东元路学校;
幼稚园:星海幼儿园,爱儿坊幼儿园;

综合商场:大家润超市、家乐福超市、华润万家、易初莲花、辛家庙综合市场;

医院:骨科医院、唐城医院、军海医院;

银行:工商银行、建设银行、农业银行、西安银行、陕西信合。
交通状况:
周边的公交线路:乘环1号线、环2号线、227路、703路、211路、36路、309路、406路、216路、46路、17路 、410路、604:地铁

【户型赏析】


【唐樾六和坊】售楼处TEL:029-68866626【售楼中心】
了解最新优惠折扣价格——请拨打售楼处