西安「唐樾六和坊」
售楼处:029-68866626(营销中心)
售楼部地址:029-68866626(致电发送详情地址)
在售户型图丨项目详情介绍丨剩余房源丨项目周边配套丨详细在线解答
售楼中心_欢迎来电咨询!预约尊享优惠折扣_匠心钜制恭迎品鉴!
如需了解最新房源信息_在售房源价格_请拨打上方售楼部电话!

基本信息
楼盘名称:唐樾六和坊 在售
建筑类型:小高层
产权年限住宅:70年
容积率住宅:2.9
绿化率:40%
规划户数:756户 (总户数756户 当期户数144户)
楼层状况:二环内纯板式小高层,由10栋18层小高层组成
物业管理费住宅:1.5元/m²/月
车位数:695
车位比1:1
楼盘特点:一房一价 二环内 配套纯熟 公园 购物中心
参考价格:16900元/m²
物业类型:住宅
开发商:陕西西瑞房地产开发有限责任公司
区域位置:二环内- 未央区- 大明宫
楼盘地址:大明宫遗址公园东侧1000米(太元路中段)
【关于开发商】
陕西西瑞房地产开发有限责任公司,是陕西西瑞(集团)有限责任公司的控股子公司。陕西西瑞(集团)有限责任公司是陕西省粮农集团骨干企业,企业主要以粮食收购、储存、加工、粮油贸易为主业,涉足期货交割、白糖贸易、物流配送、酒店餐饮、房地产开发多领域的大型省属国有控股企业。

自2002年成立以来,陕西西瑞房地产开发有限责任公司先后开发了“西瑞•北国之春”、“东方雅苑”、“东方名苑”和“唐樾•六和坊”等住宅项目。

周边配套:
中小学:陕师大附中、陕师大附小、后宰门小学、东前进小学,东元路学校;
幼稚园:星海幼儿园,爱儿坊幼儿园;

综合商场:大家润超市、家乐福超市、华润万家、易初莲花、辛家庙综合市场;

医院:骨科医院、唐城医院、军海医院;

银行:工商银行、建设银行、农业银行、西安银行、陕西信合。
交通状况:
周边的公交线路:乘环1号线、环2号线、227路、703路、211路、36路、309路、406路、216路、46路、17路 、410路、604:地铁

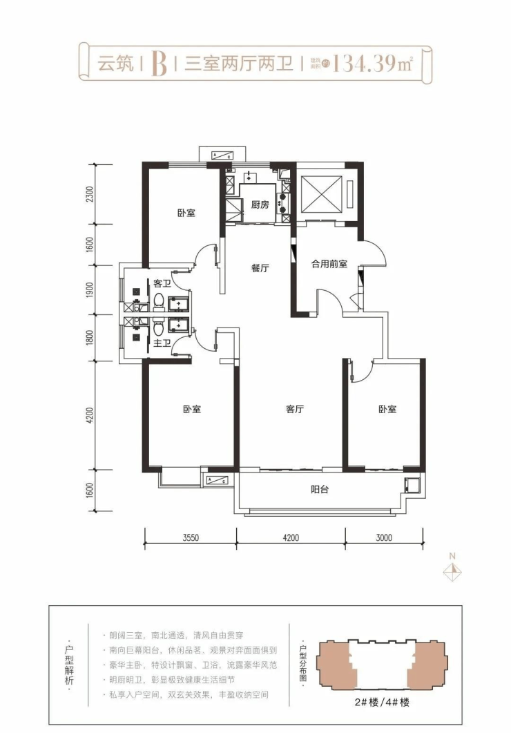
【户型赏析】


【唐樾六和坊】售楼处TEL:029-68866626【售楼中心】
了解最新优惠折扣价格——请拨打售楼处