西安「唐樾六和坊」
售楼处:029-68866626(营销中心)
售楼部地址:029-68866626(致电发送详情地址)
在售户型图丨项目详情介绍丨剩余房源丨项目周边配套丨详细在线解答

基本信息
绿化率: 40.5%
容积率: 2.9
占地面积: 35964㎡
建筑面积: 98000㎡
总户数: 756户 (总户数756户 当期户数144户)
当期户数: 当期户数144户
车位比: 1:1.0
物业费: 1.5元/平方米·月
车位: 695个车位
物业公司: 西安天腾物业管理有限公司
楼盘价格: 参考均价 16900 元/㎡ 周边房价解读
物业类型: 普通住宅
区域板块: 城东
产权年限: 70年
项目特色: 改善好房
开发商: 陕西西瑞房地产开发有限责任公司
楼盘地址: 大明宫国家遗址公园东侧
【项目区位】
唐樾六和坊,位于未央区御井路158号(大明宫遗址公园东侧1000米),项目总占地约50亩,建筑面积约10万平方米,由10栋18层小高层组成,总共分4期开发,一期(8、9、10号楼)和二期(6、7号楼)已于2014年交付入住,本次推售三期(2、4、5号楼),四期(1、3号楼)目前还在规划中。

项目位于曲江大明宫遗址保护区,二环内太华路商圈。东临浐灞生态区、西接大明宫遗址公园、南瞰曲江新区、北邻经济技术开发区,区域内各项配套均已完善。
【项目配套】
1、交通:道路方面,项目北临北二环,东临东二环两大主干道,西边临近太和路,南邻太元路,东西南北四条干道均为该片区的的重要道路,自驾非常方便;近距地铁3号线(辛家庙站),约15分钟畅达曲江、浐灞、高铁站;约30分钟快速接驳高新;周边享有30余条公交线路,互联西安市各个区域。
2、教育:自配有唐樾乐高幼儿园,周边东前进小学、后宰门小学,太元路小学等,涵盖一站式优质教育资源,铺就菁英成才之路。


3、医疗:三甲西京医院、二甲唐城医院、北环医院、陕健医西安煤机医院等,权威医疗资源环伺,24小时呵护全家健康生活。

4、商业:百寰国际易达·生活中心、万达广场、UPARK悦邻荟、四海唐人街、大明宫购物中心等,成熟商圈云集,包罗生活万象精彩。

5、公园:西邻5400亩5A级景区大明宫遗址公园;南倚东元公园;东近桃花潭公园。三大公园环绕,私享城市低密森氧后花园。

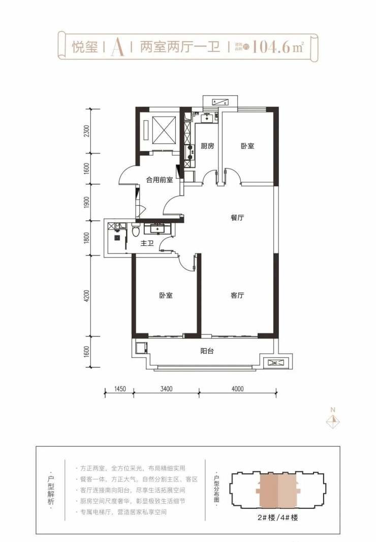
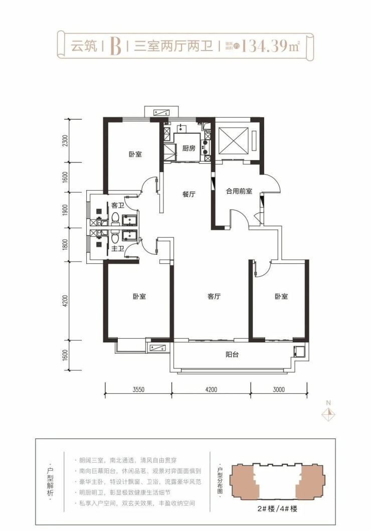
【户型赏析】


【唐樾六和坊】售楼处TEL:029-68866626【售楼中心】
了解最新优惠折扣价格——请拨打售楼处