西安「曲江文商檀境」
售楼处:029-81777782(营销中心)
售楼部地址:029-81777782(致电发送详情地址)
在售户型图丨项目详情介绍丨剩余房源丨项目周边配套丨详细在线解答
基本信息
楼盘名称:曲江文商·檀境
绿化率: 35%
容积率: 2.8
占地面积: 约64.86亩
建筑面积: 172753.21 ㎡
总户数: 约813户
车位比: 1:1.8
物业费: 2.42元/㎡·月
车位: 1474 (地上:73 个 地下:1401个)
楼盘价格: 参考均价 26000 元/㎡ 周边房价解读
物业类型: 住宅
区域板块: 高新区
产权年限: 70年
项目特色: 地铁沿线 6号线 科技住宅 教育资源 改善好房
开发商: 西安阳光煜祯实业有限公司 (国资控股)
楼盘地址: 高新区纬三十路丝路科学城未来之瞳旁
品牌介绍
曲江文商集团:
是由曲江新区管委会下属曲江文化产业集团(连续10年被列为全国文化企业30强)全资直属的国有企业,自2005年成立相继开发了大雁塔北广场、唐慈恩寺遗址公园、大唐不夜城、曲江银泰城、芙蓉新天地、皇城坊、尚德映巷、陕西大剧院、曲江文创中心等省市重点项目。
阳光城集团:
阳光城集团是中国地产开发企业综合实力TOP15、双千亿房企,位于中国房地产开发企业成长速度TOP1。
2005年进驻陕甘区域,先后布局陕甘宁青4省累计开发27个精品项目,2017年-2018年陕甘区域连续两年销售额突破百亿
【区域配套】
超高层:未来之瞳﹣瞳系列建筑群(在建)。
TOD商业:永安渠商业街(规划中)、砂之船(规划中)、王府井(规划中)、红星美凯龙(规划中)、兰桂坊商业(规划中)、侧坡TOD(规划中)。
公建配套:大剧院(在建)、ICC国际会议中心(规划中)、新罗酒店、西安国际文化传播中心(在建)、市冰球馆(在建)。
交通:地铁:已开通-6号线(约800米)、规划中-12号线(城际) 、在建15、16号线;高新云巴(在建中);高铁:长安中心高铁南站(规划中)。
学校:区域内29所基础教育学校,两公里范围内6所学校,15所已开学,高新一中分校(高新第十一初级中学)、高新一小分校(高新第三十一小高)(1.8公里)、项目西侧规划高中,项目西北规划小学、中学,项目东临约5000㎡公办幼儿园。
医院:国际医学中心医院;西安市第一医院(9月试运营)。
多公园配套:约450亩瞳湖湿地公园 (30米、在建)、永安渠湿地公园(200米)、口袋运动公园2处(南北两侧、规划中)、约340亩大仁遗址公园(在建)、永安花谷(规划中)等。

户型亮点:
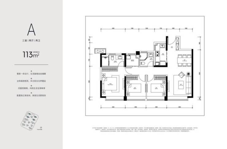
高层:113㎡三室两厅两卫
户型亮点:CID同面积段最牛产品+最畅销产品+第四代全能三房设计+小面积大内核+南北通透+三房两卫功能齐全+南向四开间。
高层:138㎡三室两厅两卫(端厅)
户型亮点:都市豪宅基因+创新户型+客厅270°超大面宽+充足的通风采光+功能区交流融合+主卧大套房+独立衣帽间宁静私密。
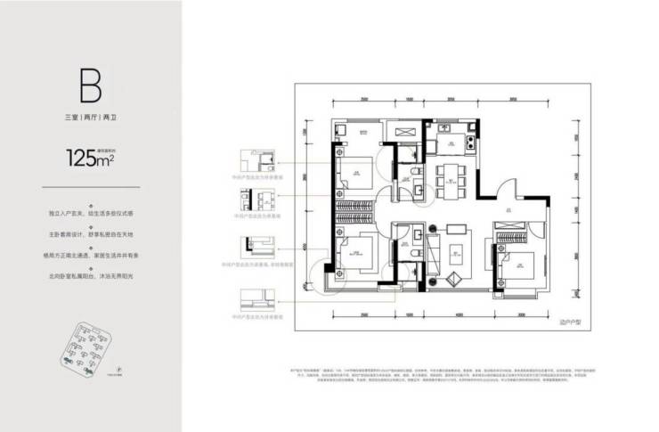
小高层:125㎡三室两厅两卫
户型亮点:稀缺低密产品+城市地标资源尽收眼底+面积合理首套可直接改善+两梯两户私享电梯+户型方正通透+主卧套房设计270°+餐客厨一体+北向家政阳台。
小高层:146㎡四室两厅两卫
户型亮点:CID板块统一2.8容积率的指标下,很少见的低密产品,两梯两户小高层+私享电梯前厅+南向四开间+全明通透+餐客厨一体极佳通风+主卧套房设计私密阔绰+北向阳台。
【曲江文商檀境】售楼处TEL:029-81777782【售楼中心】
了解最新优惠折扣价格——请拨打售楼处