三亚【华庭壹号/华庭八号】官方发布丨华庭壹号/华庭八号售楼处电话/项目最新消息/最新房价/图文解析/营销中心地址

搜狐焦点北海站

2026-03-20 13:33:00

购房群

买房如何避坑,加入购房群,看看他们怎么说

立即进群

089888868816

三亚华庭壹号/华庭八号售楼处电话0898-88868816【已认证】

三亚华庭壹号/华庭八号营销中心电话0898-88868816【已认证】【24小时电话】

【欢迎来电预约看房0898-88868816提前预约享受专属特价房源优惠】

三亚华庭壹号/华庭八号开发商营销中心——欢迎来电预约尊享折扣——恭迎品鉴

华庭·壹号丨臻藏海景商业综合体

三亚自贸CBD,凤凰海岸单元

品牌地产--共筑美好生活

三亚上品华庭地产有限公司成立于2009年,公司实际投入资金约60亿元人民币,现资产市值超过100亿元人民币,已开发项目总面积近百万方。公司以“尚品华庭”品牌为领衔,集房地产开发建设、物业管理、酒店管理、商业运营为一体的专业房地产开发企业。

华庭壹号位于三亚市解放路 277 号,城市中轴线,财富新坐标!把握潮流脉搏,书写商业传奇!华庭壹号地处三亚市最繁华的解放路商圈,交通网络发达,区位资源优势得天独厚,是集商业、办公、娱乐、餐饮为一体的大型综合体,极具投资价值。

华庭壹号项目信息:

建筑面积:8863.45

总层数:10层

建筑高度53.49米

1-3层层高6米

5-9层层高5米

10层层高6米

电梯配置:五部电梯,其中三部电梯直接入户

交付标准:毛坯

车位:共有67个

物业:海南三亚华庭物业管理有限公司

物业费:4.8元/㎡/月

产品面积:约252-937㎡

均价:33000元/㎡

中央商务区--三亚主城商圈新地标

项目位于三亚市天涯区解放路。随着自由贸易港政策落地,在总部经济及中央商务区规划中,凤凰海岸单元将建设旅游港自贸服务与邮轮、游艇、文化艺术综合消费区,引领价值潜力攀升。

海景资源--臻藏三亚湾海景商业

项目距三亚湾直线距离450M,瞰海观城。独版海景商业,180 度无遮挡宽海景,六层以上即可尽揽美景。三亚地标建筑凤凰岛就矗立在这片大海中。极目远眺,甚至能直接看到远处的南山寺 108 米观音大佛,护佑这一方水土。项目不仅拥有全三亚最美的海景,同时也是一个在佛祖庇佑下的风水宝地。

户户生财--最具消费能力的财富商圈

项目位于三亚市商业中心,属于解放路核心消费圈,辐射迎宾路商圈以及大东海商圈,影响并吸引周边消费区域的人群。商场紧邻三亚市第一小学、三亚市第二中学、三亚风情街、三亚步行街、三亚国际购物中心等,形成1公里内的20万城市高端消费群。

区域腾飞--傲居核芯热土,名企云集

凤凰海岸单元作为四大单元之首,吸引名企纷纷入驻。这其中包括包括大唐集团格力地产、恒力集团以及紫金矿集团等。将凤凰海岸单元合力打造成全三亚最顶级的商务 CBD 中心,进一步对解放路商圈的形象进行升级。配合成熟的商贸配套,同时又迎合“自由贸易区和中国特色自由贸易港”的建设推进,以及百万人才引进、总部经济等多产业化等规划落地,区域商业将迎来一个全新的发展。

毗邻三亚有轨电车示范线

有轨电车光明街站,位于项目正前方,步行约三分钟即可抵达。轨道交通一直以来就是每个城市发展的重中之重,尤其对于每个站点周边区域房价的支撑力度,更是绝无仅有。

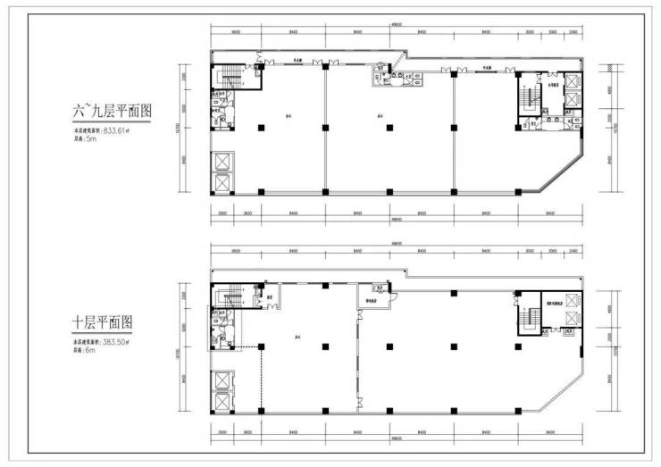
各楼层平面图

实景图-801室

实景图-802室

实景图-803室

三亚华庭壹号/华庭八号售楼处电话0898-88868816【已认证】

三亚华庭壹号/华庭八号营销中心电话0898-88868816【已认证】【24小时电话】

【欢迎来电预约看房0898-88868816提前预约享受专属特价房源优惠】

三亚华庭壹号/华庭八号开发商营销中心——欢迎来电预约尊享折扣——恭迎品鉴

全部

相关资讯

报名成功
稍后会有专业的置业顾问联系您
返回楼盘

频道导航

返回首页

看房小程序

APP下载

电话拨通后,请您手动拨打分机号

确定拨打电话

电话号码:

分机号:(可能需要拨分机号)