089888868816

三亚•繁华里由三亚新时代置业有限公司开发打造,位于三亚市核心地段海润路与工业园路交汇处,这里是城、商、学、乐以及山与海之间,三大商圈四大核心的片区.
项目区位

【项目概况】
💎楼盘名称:繁华里
📫项目地址:三亚市天涯区海润路与工业路交汇处
👉开发商:三亚新年代房地产开发有限公司
⛳占地面积:25亩
🏠用地性质:住宅
🏢建住面积:50735.5平方米
👊容积率:2.8
🚗车位比:1:1
☀楼座朝向:坐北朝南
⛲用水用电:民水民电
🌴绿化率:40%
🏰总层高: 23层高
🌻 总户数:336户,两梯四户
💰价格:一户一价
💁物业公司:开发商物业团队
💐物业费:2.6元/平方米
🏠 户型:86㎡-117㎡
🕐交房时间:2023年12月31日
🔑交付标准:拎包入住 带家居家电
👇开发阶段:现房
💎项目配套:泳池、篮球场、多功能文化厅、临街商业街
[红包]付款方式:全款、可按揭、
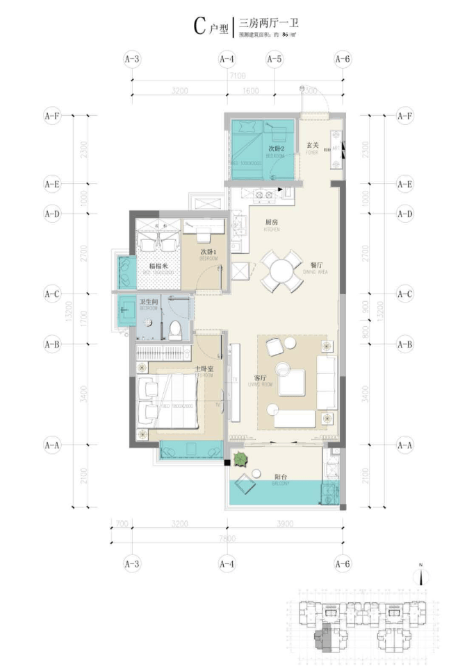
【户型鉴赏】
注:阴影部分为赠送面积
1⃣117㎡四房两厅两卫

2⃣110㎡四房两厅两卫

3⃣86㎡三房两厅一卫

🏰【户型优势】
☀总高23层采光极佳,前无遮挡后有花园,
☀全明户型,坐北朝南,板楼设计、南北通透、明厨明卫
☀所有户型均配有超大飘窗,大阳台
☀全户型大量赠送面积,阳台赠送一半、飘窗书房全赠送
✨✨选择【三亚•繁华里】优势✨✨
👊 三大商圈 四大核心👊
🏪生活配套 触手可及 🏪
🏫浓厚人文 学术府邸 🏫
🏢 奢华精装 拎包入住🏢
🏠全明户型 通透舒适 🏠
💰稀缺现房 即买即赚 💰
⛳ 民宿托管 全国置换⛳
🌟 私享秘境 俯瞰繁华🌟