089866736888
江东麓岛项目笔记📝


【总用地面积】318亩
【容积率】<1.7
【绿化率】广义约60%
【总层高】21层(首层架空)
【层高】约3.1米(架空层约6.1米)
【产权年限】70年
【交付标准】精装交付
【开发商】万华投资
【在售产品】
建面约115-195㎡ 阅海高层
建面约145-180㎡ 澜岸洋房
建面约245-255㎡ 叠拼
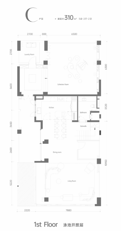
建面约310-380㎡ 联排
🔥海滨浴场,滨海城市公共海岸线新样板
🔥15%双契税优惠
🔥500强总部集群
🔥70%的蓝绿空间,只生长高端住区


📚教育圈
哈罗公学、寰岛实验学校、海南中学江东校区(9月招生)、海口大学城

🏥医疗圈
中医院江东院区、海医附院(建设中)、市妇幼保健院(建设中)

🛍商业圈
江东麓岛来野PARK、江东天地、江东one、鲁企智慧谷、星辰国际、仁恒里

🏖度假圈
十里金滩滨海浴场、迈雅河湿地公园、芙蓉河湿地公园、道孟河湿地公园,东寨港自然保护区


💎言艺术馆:一座海边的灯塔

🏸36个架空层链——麓客第二客厅

🌊度假生活:绿荫泳池、皮划艇航道、水音亭


🌴建筑舒服 人才会舒服
1.7低容积率,7成筑雨林,3成做建筑
8层以下低楼层建筑占比总规划栋数80%










