三亚【金万隆商旅综合体】官方发布丨金万隆商旅综合体售楼处电话/项目最新消息/最新房价/图文解析/营销中心地址

搜狐焦点北海站

2026-03-20 13:12:00

购房群

买房如何避坑,加入购房群,看看他们怎么说

立即进群

089888868816

三亚金万隆商旅综合体售楼处电话0898-88868816【已认证】

三亚金万隆商旅综合体营销中心电话0898-88868816【已认证】【24小时电话】

【欢迎来电预约看房0898-88868816提前预约享受专属特价房源优惠】

三亚金万隆商旅综合体开发商营销中心——欢迎来电预约尊享折扣——恭迎品鉴

金万隆商旅综合体

🏠项目地址:三亚市吉阳区荔枝沟路与师部农场路交叉口红绿灯(三亚市一中斜对面)

占地面积5000平方,土地年限至2062年10月26日

总建筑面积:13849.94平方米

可售面积4000平方;43套loft。

车位地下102个地上50个;

商业约6000平方,业态:

一楼:麦当劳,咖啡厅,百果园,奶茶店,甜品店

二楼:品牌本邦上海菜

三楼:瑜伽馆,品牌餐饮

四楼:影院足道

负一楼:超市

负二楼:地下停车场 地下102个地上50个

🎆容 积 率:2.0

🎄绿 化 率:27%

🏠楼层总高:地上4层 (loft)。

地下2层

🏠户型面积:

建筑面积:

C户型 70平方米,使用面积约112平方米

B户型 137平方米,使用面积约225平方米

A户型 140平方米,使用面积约230平方米

装修标准:毛坯

🎄产权年限:40年

👑区位优势:

① 项目地处海南国际旅游岛,海南自贸区(港)北纬18度的三亚

②与国家级湿地公园东岸湿地公园零距离接触

③项目身居三亚市中央商务区,于中央服务区、中央消费区、国际商圈、国际 社区四大区中心位置,为三亚知名的东岸CBD区域

④距三亚动车站仅5分钟车程,距三亚凤凰国际机场20分钟车程

💐配套优势:

✨周边配套✨

① 学校:三亚市一中、海南华侨中学、三亚丰和学校,双品实验学校

② 医院:解放军425医院、海南农垦医院、三亚市人民医院、三亚妇幼保健医院等

④ 生活配套:旺豪超市、美之亚超市、丹州农贸市场、金鸡岭社区农贸市场等

🍃项目景观:

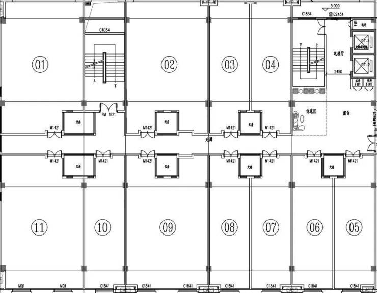
楼层户型分布图

A户型 建面 140平方 使用面积约230平方

B户型 建面 137平方 使用面积约225平方

C户型 建面 70平方 使用面积约120平方

装修效果图

三亚金万隆商旅综合体售楼处电话0898-88868816【已认证】

三亚金万隆商旅综合体营销中心电话0898-88868816【已认证】【24小时电话】

【欢迎来电预约看房0898-88868816提前预约享受专属特价房源优惠】

三亚金万隆商旅综合体开发商营销中心——欢迎来电预约尊享折扣——恭迎品鉴

全部

相关资讯

报名成功
稍后会有专业的置业顾问联系您
返回楼盘

频道导航

返回首页

看房小程序

APP下载

电话拨通后,请您手动拨打分机号

确定拨打电话

电话号码:

分机号:(可能需要拨分机号)