075787736888
【佛山世茂国风滨江】
新城红盘——【世茂国风滨江】

三龙湾与佛山新城双核中心 唯一三江汇聚户户南向看江低密墅区
【基础指标】
总建面:约16.8万㎡
总占地:约5万㎡
容积率:2.5
绿化率:35%
总户数:986户(洋房814户、叠院172户)
物业类型:9栋高层、17栋叠院
装修情况:洋房精装、叠墅毛坯
产权情况:70年
物业公司:一级资质世茂物业
物业管理费:2.7元/㎡
【品牌简介】
中诚信托有限责任公司:央企血脉,创于1995年11月,2022年公司注册资本增加至48.5亿元,是中国信托业协会首届会长单位、中国证券业协会、中国国债协会会员单位。
【三龙湾核心区域,享大湾区发展红利】
三龙湾是佛山政府举全市之力,斥资3500亿打造,堪比1.5个珠江新城,未来人口规模50万、GDP2000亿元,项目位于三龙湾规划核心区域,享130k㎡三龙湾先进示范区带来的人才红利,及产业进驻利好,未来发展潜力大。
(资料来源:佛山市自然资源局)
【佛山新城中央居住区 东平河畔最宜居项目】
项目位于佛山新城中央居住区享受佛山版“珠江新城”九馆六心千亿级城市配套聚集,佛山不会再有第二个!
【交通—佛山面向大湾区的超级交通枢纽】

项目交通路网可快速接驳禅桂核心区域,20分钟达千灯湖商圈,25分钟达祖庙商圈。
距佛山地铁2号线登州站约800米,6站接驳广州南,周边规划佛山地铁6号线交汇枢纽(花卉世界站),接驳广佛线、广佛环线(在建)、广佛珠江城轨(规划)
更可10分钟内达东平站枢纽,未来可搭乘湾区轨道28号线(规划中),享受一小时湾区生活圈。
【三江汇聚 仅此一国风】
依水而建,占据三江交汇龙头位置,坐拥南向一线稀缺江景资源,佛山新城千亿配套景观一览无余。
【三公园环绕 约80万㎡城市绿芯】
居住城市天然绿肺之中,下楼即达华阳南路湿地公园,400米即达滨江湿地公园,登州公园,三字经文化公园!
【双九年学府保驾护航】
9年省级名校护航,毗邻首都师范大学顺德适子未来学校(2023年9月开学)、华英实验学校(使用中),在建华南师范大学附属学校、佛山一中等省级教育资源。
【盛唐五进礼序 新中式轻奢体验墅区】
板块唯一在售2.5低容积率墅区,园林结合盛唐礼序,打造五进式布局,通过草坪地被、花卉小灌、大灌、小乔、大乔,通过五个层次的植栽搭配,达到四时更替、四季有景的效果。
【低密南向瞰三江 仅此国风江景三房】
建面约98-128㎡滨江洋房,最高仅26层,两梯四户高标配置,超高舒适度,一线江景豪宅享受!
6#03/04南向98㎡望江三房为主力在售单位,户户南向望江,视野无遮挡。
建面约133-163㎡滨江叠院,最高4层,专享一梯一户,独立院落,上叠星空露台,举杯邀月;下叠花园庭院,种月庭前。
【户型评鉴—江景洋房产品】
建面约98㎡(3房2厅2卫)
滨江奢宅,坐北朝南,动静分明
约6.4米阔绰阳台,享温暖阳光
约5.2㎡U形大厨房
书房自带阳台,灵动百变空间

建面约108 m²(3+1房2厅2卫)
赠送入户花园,可实现3+1房改造
南北双阳台,四开间朝南,对流佳,通风采光强
双阳台+全飘窗设计,高赠送率,性价比之王

建面约114 m²(3+1房2厅2卫)
约4㎡入户花园,可实现3+1房改造
南北双阳台,对流佳,通风采光强
三阳台+飘窗设计,高赠送率,性价比之王

建面约128 m²(4房2厅2卫)
方正实用,南北对流,干湿分离
约6.5m超大阳台,景观尽收眼底
U形大厨房,轻松搞定一日三餐
带步入式衣帽间,主卧阔绰大气
建面约198m²(4+1房2厅2卫)
超阔居住空间,顶级居住舒适度
南向约13.2m超宽尺度阳台
无遮挡视野,江园双景尽收眼底
带步入式衣帽间,主卧阔绰大气
【实景图品鉴—江景洋房】
【户型品鉴—国风叠院产品】
建面约133/143㎡下叠(国玺)
私家入户花园,两面环绕风景,居家生活处处有景。
大面宽阳光客厅,格局方正严谨,彰显大家风范。
奢华大气主卧,带卫浴、独立衣帽间,人性化设计
精致三房,灵活多变自由布局扩大家庭空间交流
卧室衔接宽绰景观阳台,大尺度延展空间
多功能厅地下室,集娱乐、休闲、会客与一体
灵动储物,科学布局,满足多元化需求



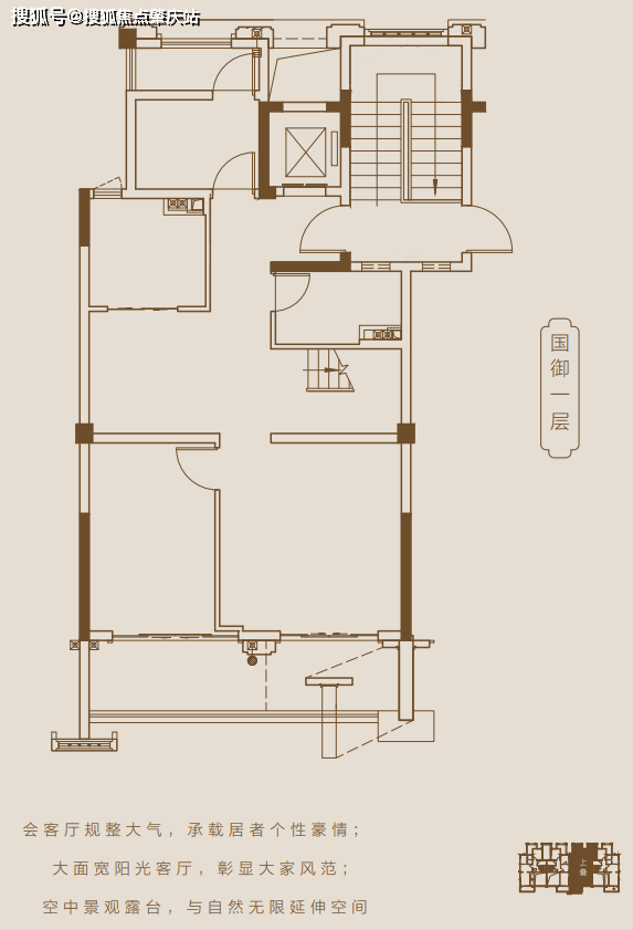
建面约133-143㎡上叠(国御)
私家直达电梯,尊显专属高贵感。
客厅约6米挑高,全明落地窗尽显辉煌大气。
主卧套房设计,自成一方私密天地
南北宽敞景观露台,花香鸟语皆入室
下沉式庭院,创造无限生活可能
多功能空间,集储存、娱乐功能于一体



【实景图品鉴—国风叠院】
(项目实景图)