089888868816
北纬18° 大三亚度假圈 龙沐湾国际度假区
600米亲海距离 鲜氧环绕 揽山瞰海小高层
绿城物业 全时服务 商业街区配套 度假生活无忧
项目总占地:约350亩
在售一期占地:约225亩
一期总建面约:18万方
在售楼栋:6#,7#,9#,10#
产权性质:70年产权
容积率:1.2
绿化率:40.89%
产品类别:共11栋组成分别由8栋16层高层海景住宅,2栋三层商业街和1栋多功能会所。
交付标准:硬装交付
物业费:3.8元/㎡
交付时间:7#、9# 2023年12月31日交付使用,10# 2024年12月31日交付使用,6#于2024年6月30号交付使用。
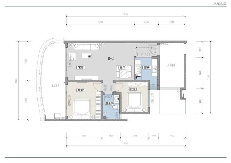
户型区间:45-185㎡(灵动空间 百变随心)
总户数:1314户
——投资置业必选十大理由——
① 全国500强企业开发商
② 户型丰富 可选性强
③ 准现房开售,全明户型方正通透明厨明卫
④ 低密度、高绿化率
⑤ 楼间距最大距离宽约200米
⑥ 整个项目采用围合式的布局,270度观景户户可做到观山观海
⑦ 项目拥有1.3万方商业街
⑧ 享有业主独立会所、配备业主餐厅、社区诊所及活动中心等配套
⑨ 绿城物业,国家一一资质物业管理公司,小区24小时管家服务全方位业主服务。
⑩ 北纬18度以南,一线海景住宅70年大产权
静赏世界醉美落日奇观
2.75公里致美观霞海岸,距离项目仅600米。
感受国家尖峰岭森呼吸
尖峰岭国家森林公园,是中国现存面积最大、保存最好的热带原始森林之一,距离项目仅7公里。
极美不可思议净白盐海
莺歌海盐场,是中国的第二大也是华南地区首屈一指的盐场,距离项目仅15公里。
全户型满足全家庭需求
45-185㎡(单间至四房)瞰海精装小高层,山海新作品,礼献南中国。

