089866736888
海控·翰林府

一、地块基础指标
占地约45亩(29701.96㎡),总建面12.98万㎡,容积率3.0,绿化率25%。总户数830户(住宅604套、商业180套、商铺32套、花园商墅14套),车位771个。产权住宅70年、商业40年,精装现房,2025年8月交付。







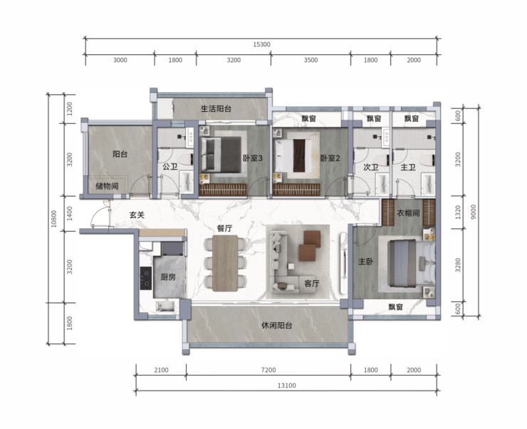
二、住宅产品矩阵|高层19-23层
两梯四户,精装交付,层高约3米:
108㎡三房两卫:总价238-260万,LDKG贯通,使用率90%+,双条形厨房通生活阳台
118㎡三房两卫:总价260-285万,客厅面宽与景观阳台尺度升级,双面落地窗阳改房
128㎡四房两卫:总价282-310万,横厅设计,6.6米超宽休闲阳台,南北双阳台(部分带3阳台),得房率80%+
151㎡四房三卫(双套房):总价330-370万,双主卧配置,三卫设计,南北双阳台,使用率90%+


三、商业产品参数
多层商业:约43㎡/套,挑高5.4米,共180套
商铺:约51-110㎡/套,共32套
花园商墅:约200㎡(实得400㎡+),共14套


四、核心配置
学区:北师大海口附属学校(距项目约500米,划片学区),自建幼儿园
医疗:紧邻美兰区中医院江东院区
精装标准:科勒卫浴、方太厨电,墙面防霉涂层,预留智能家居接口,厨卫全明防水处理
建筑规划:4栋高层住宅+7栋双拼别墅+1栋公寓+10栋商业+1所幼儿园
五、十大核心买点
1. 自贸港核心区位:地处海口江东新区CAZ,享自贸港政策红利,汇聚国际企业总部等配套,是把握城市发展机遇的优质之选。
2. 12年一站式教育:距北师大海口附校仅612米,中考成绩稳居全省前列,自建2000㎡幼儿园,全龄教育无忧。
3. 国企精装现房:海控置业(国企)开发,0融资稳健运营,2025年8月精装现房交付,即买即住无期房风险。
4. 高利用率户型:主力建面108-151㎡三至四居,使用率超90%,全系阳改房、双阳台,适配刚需与改善。
5. 五星标准物业:海南物管集团服务,物业费3.48-3.98元/㎡/月,30分钟急修,24H封闭式安保。
6. 全龄景观社区:柏涛团队设计三大景观组团,绿化率25.1%,配儿童区、环形跑道及主题泛会所。
7. 便捷生活圈:紧邻美兰区中医院,1公里内8个公交站,最近仅355米,通勤就医便捷。
8. 一线精装交付:配备科勒、方太等一线品牌,墙面防霉涂层,3米层高,民水民电带燃气。
9. 多元商业配套:规划多层商业、商铺及商墅,紧邻宝能环球会,购物娱乐一站式满足。
10. 高性价比抗跌:均价2.2-2.25万/㎡,优于同板块楼盘,国企品质+核心配套,资产抗跌性强。