碧桂园中央半岛逸璟台楼盘详情最新房价丨营销中心售楼处电话丨在售户型、学区丨地址丨海南海景别墅

搜狐焦点北海站

2025-10-01 21:42:00

购房群

买房如何避坑,加入购房群,看看他们怎么说

立即进群

089866736888

🔵 售楼处营销中心电话☎:0898-66736888【已认证】⚡⚡

🔵 售楼处营销中心电话☎:0898-66736888【已认证】⚡⚡

🔵 售楼处营销中心电话☎:0898-66736888【已认证】⚡⚡

碧桂园中央半岛逸璟台

基 本 资 料

占地面积:约96029㎡

总建筑面积:约58376.73㎡

绿地率: 约45%

容积率:约0.45

建筑密度:约16.07%

车位数量:372个

产权年限:70年 (截止2077年9月11日)

总户数:220套

物业费:4.8元/㎡/月

水电费:水费3.14元/吨,电费0.6295元/度

(该单位交付后所产生的物业管理费、水电费等费用,由产权所有人承担。)

户 型 资 料

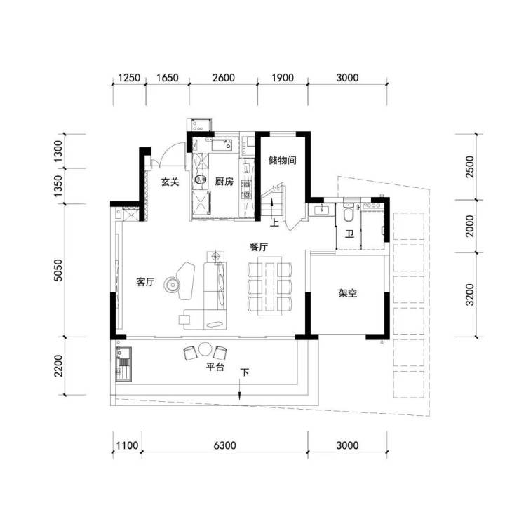
140下叠 建筑面积约156㎡

3+1 室 2 厅 3 卫

————————————

一层平面图布置

二层平面图布置

下叠(1-2层)

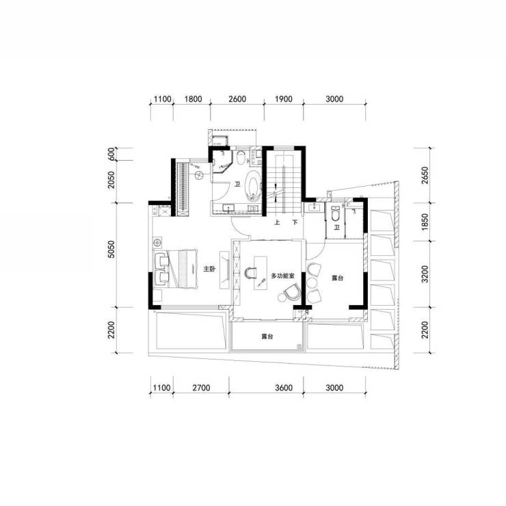
140上叠 建筑面积约168㎡

3+1 室 2 厅 3 卫

————————————

三层平面图布置

四层平面图布置

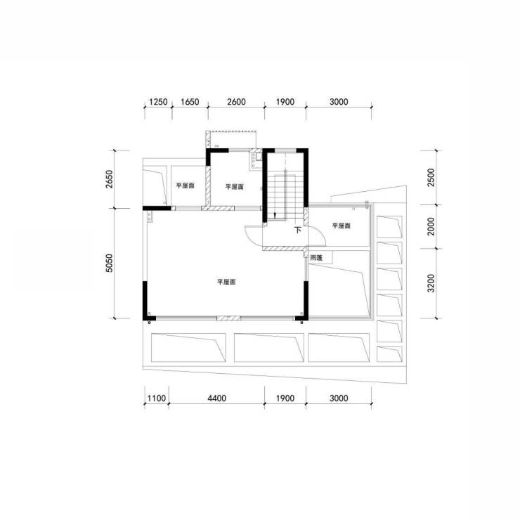
屋顶平面图布置

上叠(3-4层)

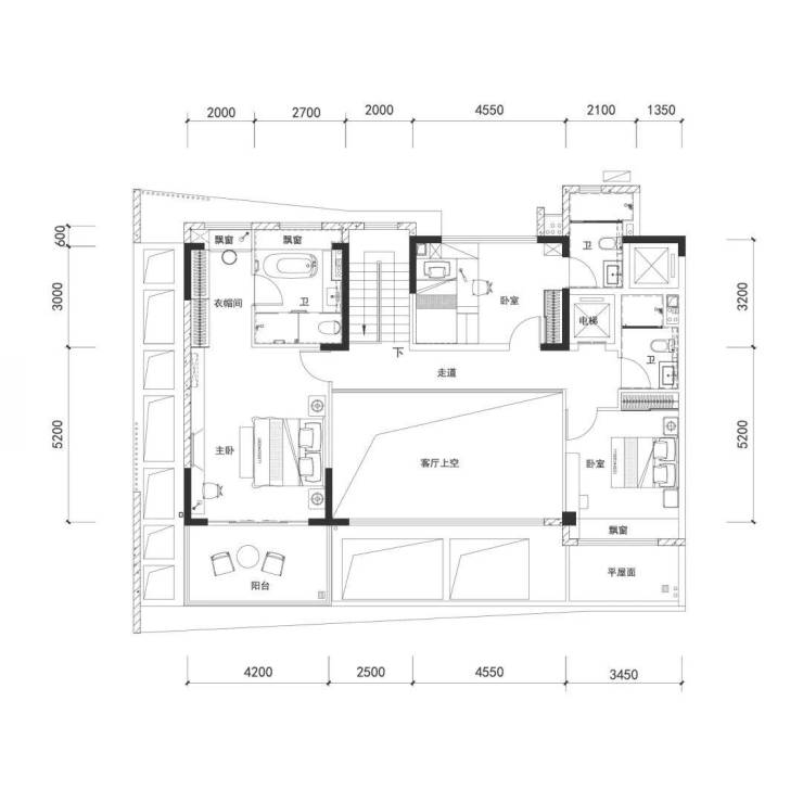
220下叠 建筑面积约251㎡

4 室 2 厅 4 卫

————————————

一层平面图布置

二层平面图布置

下叠(1-2层)

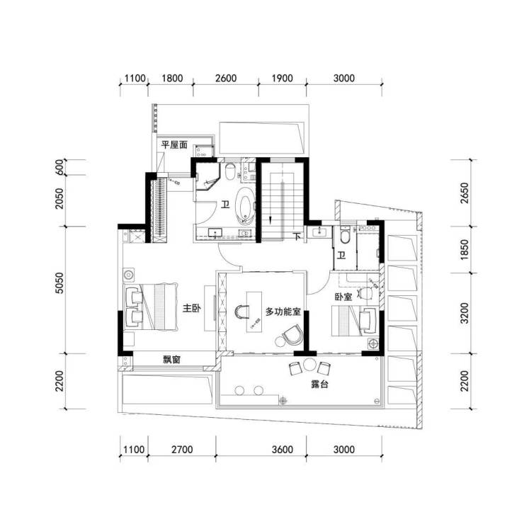
220上叠 建筑面积约210㎡

3+1 室 2 厅 3 卫

————————————

三层平面图布置

四层平面图布置

屋顶平面图布置

上叠(3-4层)

外立面示意图鉴赏

示范区实景鉴赏

项 目 价 值

碧桂园中央半岛位于海南省海口市新埠岛北端,北望琼州海峡,三面环江,一面临海,有丰富的江、海、湾景观资源。项目整盘规划,潜心打造七大生态都市系统,共计开发44个苑区(部分规划中),截止2024年已交付18个苑区,交付逾8000户房屋。“拾贝”销售中心及“拾贝”公园,为海口热门打卡目的地。

项目地址:海口市美兰区新埠岛新埠大道北端

占地面积:约5500亩

规划产品:涵盖高层住宅、商业、写字楼、低密住宅

碧桂园中央半岛 鸟瞰效果图

区位价值

Location

项目与海南自贸港建设先行区——江东新区仅一桥之隔。

尽揽环岛高铁/高速、美兰国际机场、省会酒店、医疗、教育、公园、游艇休闲、商业荟萃。

三座大桥直通现代商圈。以城市万象之繁华,融一岛璀璨绽放。

规划价值

Planning

/ 新埠岛控规 国际化发展加速度 /

2019年7月海口市自然资源和规划局公布了新埠岛控制性详细规划(修编),未来规划新埠岛将增加1条环岛干道、2座桥和4条跨河越江通道,形成与海甸岛、中心城区一体化路网格局。(信息来源:南国都市报)

配套价值

Supporting facilities

/ 尊贵礼遇 3大品牌酒店 /

星海湾铂尔曼酒店、诺富特酒店、品牌酒店(规划中),打造尊贵海上会客厅

诺富特酒店(实景图)

铂尔曼酒店(实景图)

/ 天赋胜景 四园一带自然大境 /

约12公里纯净海岸线,写意海上宽屏生活。

七色岛儿童公园、圣托里海湾公园、碧海银滩公园、拾贝公园(建设中)、约3km滨海休闲带,打造城市生态之岛,悠享惬意富氧大境。

拾贝公园(实景图)

碧海银滩公园(实景图)

约3km滨海休闲带(实景图)

/ 万象缤纷 4大精品商业街 /

南海旺角、星海湾风情商业街、迈阿密滨海商业街、滨海商业街(建设中),带来同步国际的潮流与时尚,精彩丰盛多元业态,满足衣食住行娱乐购生活需求。

南海旺角(实景图)

星海湾风情商业街(实景图)

迈阿密滨海商业街(实景图)

🔵 售楼处营销中心电话☎:0898-66736888【已认证】⚡⚡

🔵 售楼处营销中心电话☎:0898-66736888【已认证】⚡⚡

🔵 售楼处营销中心电话☎:0898-66736888【已认证】⚡⚡

全部
报名成功
稍后会有专业的置业顾问联系您
返回楼盘

频道导航

返回首页

看房小程序

APP下载

电话拨通后,请您手动拨打分机号

确定拨打电话

电话号码:

分机号:(可能需要拨分机号)