央企匠筑!保利世博天悦顶奢精装大平层,世博文化公园旁准现房!

搜狐焦点蚌埠站

2026-04-20 11:39:30

购房群

买房如何避坑,加入购房群,看看他们怎么说

立即进群

售楼处官方预约电话:400-829-7773☎☎☎如有问题可来电咨询,预约销售专员,一对一为您服务!

编辑

黄浦江核心段 CAZ中央活动区

世博滨江 江景豪宅

「保利世博天悦」建面约174~251㎡ 3-5房

&建面约500㎡隐藏房源

总价约2300-1亿+

实景准现房

目前“样板间”已开放

编辑

「保利世博天悦」3号楼,小区前排的C位,是所有滨江顶豪中的VIP头等舱!270°江景视野,将S湾尽收眼底!建面约500m²的巨幕平墅即将登场!

此外前期还有部分房源可供选择,建面约174-252㎡,总价约2300万起,即将交付的实景准现房!

编辑

·建面约240㎡边套,采用L型转角落地窗,打造了270°环幕瞰江视野,无论身处客厅、餐厅,都能以不同角度眺望黄浦江的波光粼粼。

编辑

编辑

240m²边套样板房实拍

·建面约251㎡中间套,整体瞰江面高达约14米,独有双层挑高露台,未来业主可以将其打造成为私家空中花园,在繁华都市中独享静谧自然。

编辑

编辑

编辑

建筑面积约500m²一线滨江巨幕平墅

上海塔尖圈层俯瞰世界的专属坐席

·约35米L形巨幕观景台,双面瞰江带来前所未有的景观视野

编辑

编辑

示意效果图,过程稿仅供参考

相当于将纽约432 Park的顶层视野平移到了黄浦江,这样的大国景观台,未来不会再有!

业主在家里一抬头便是以江景和都市为主题的巨幅油画!

从清晨到日暮,无论是晨雾中的江轮剪影,还是夜幕下的两岸华灯,每一扇窗都是一幅名画,每一平方米都是城市的注脚

编辑

夜晚江景实拍

·4+1房&双豪华套房规制

OPUS ONE 500的双豪华套房尺度惊人,粗略预计面积均接近了55㎡

独立内玄关、阳台、起居厅、步入式衣帽间、双台盆浴缸卫生间一应俱全,既考虑了空间感又保持了独立性,创造出了一个高度聚合又能彼此独立的家庭化空间,尊贵私密空间在这里具象化!

·5个阳台,重新定义高端生活场景

客厅西侧的景观阳台、双豪华套房南侧的生活阳台(2个)、北侧瞰江的空中花园露台和书房阳台,在OPUS ONE 500,保利将江景、花园、星空和社交,统统装进生活半径

这些都只是OPUS ONE 500冰山一角,还有诸如2梯1户超大专属电梯厅、超大尺度的宴会厅等等,这里的每一处空间设计都让人眼前一亮!

编辑

示意效果图,过程稿仅供参考

毫不夸张地说,这座由LSD葛亚曦操刀打造的“空中行宫”带来的震撼,非真正亲临现场不能领略其绝代风采!

编辑

【项目鉴赏】

编辑

样板间鉴赏:

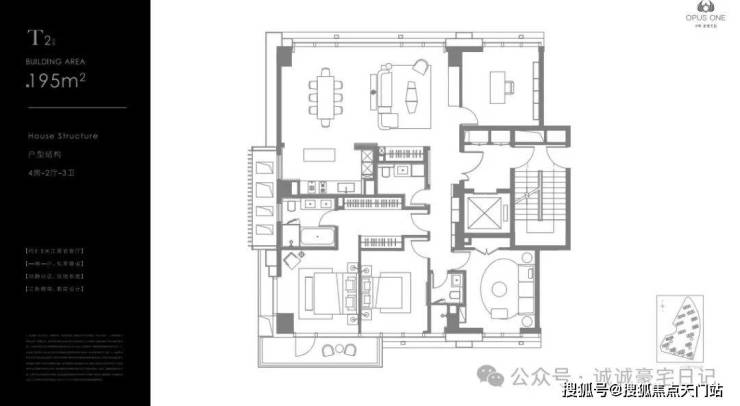
全户型图如下:

编辑

编辑

编辑

编辑

编辑

编辑

样板间实景图:

编辑

编辑

编辑

编辑

编辑

编辑

编辑

编辑

编辑

编辑

编辑

编辑

编辑

编辑

编辑

近年来,购房者对于产品力和兑现力的要求越来越高。

然而在期房销售为主流的上海楼市,即便售楼处再美如画、样板房再高大上,仍然有很多购房者因为“降标减配、货不对板”而苦恼。

那么如何才能最大程度避免“赌博式”买房呢?

当然是所见即所得的实景准现房!

但遗憾的是,上海市区准现房销售的新盘少之又少!

如果再加上一个黄浦江第一排的条件,那么全上海有且只有一个答案:保利世博天悦!

编辑

黄浦江约80米,塔尖级江景视野!

从刚刚结束的四批次土拍来看,徐汇滨江地块彻底杀疯了,7家房企经过72轮争夺报价,溢价率直接拉满30%,最终售价很可能超过18万!

但是值得注意的是,该地块红线直线距离最近的黄浦江岸大约400米(数据来源百度地图),再加上南北两侧均有高层建筑物遮挡,除了高区之外基本没有江景。

而谈及江景,直线距离黄浦江约80米的保利世博天悦堪称“江景之王”!

从地图来看,项目与汤臣一品和中粮海景壹号等顶豪住区享有相同的视野与距离,同频一线黄浦江景。

无论是一线滨江的地段,还是前期约16.8万/㎡的均价,相较于徐汇滨江地块可能18万+的售价,保利世博天悦的质价比非常突出!

编辑

一线滨江实景豪宅,品质看得见!

全上海独一无二的“类幕墙设计”立面,搭配上海首例“开放式铝板设计”,打造黄浦江畔地标新名片!

凭借最近约80米的一线江景优势,将黄浦江天然水资源引入社区,打造约3000㎡水景,并规划约6万㎡社区景观,力求每一寸土地都能发挥出最大的生态效益和观赏价值!

编辑

高标准产品力,穿越周期的诚意!

从选材来看,各种奢侈品级石材随处可见,比如与北京钓鱼台国宾馆同款的意大利进口鱼肚白石材,造价高达约2万/㎡,被誉为“世界上最贵的石材之一”!

从配置来看,仅对业主开放的约2600㎡艺术会所,不仅涵盖恒温泳池、酒窖、会客厅、健身房及行政酒廊式高定私宴厅等功能,而且还可以提供提供高级定制服务,排场不输五星级酒店!

从设计来看,独创上海滨江首个空中泳池户型,利用中间套双层挑高空间,预留泳池条件,整体瞰江面高达约14米!

从装标来看,大金、霍尼韦尔、当代、嘉格纳、威乃达、唯宝等一系列国际顶豪品牌加持,莫说整个黄浦江畔,放眼全市都堪称没有对手!

编辑

Part

01

一线滨江豪宅加推!

作为当下最值得期待的一线滨江实景大宅,保利世博天悦一期开盘时最高约26万/㎡江景房当天即罄,由此可见高净值购房者对于项目的认可,如今三期房源加推在即,确实更加值得期待了。

编辑

编辑

编辑

编辑

并且项目高区可以俯瞰黄浦江,相对于觉得大多数只能一面看江的滨江豪宅,保利世博天悦稀缺性与收藏价值更高!

编辑

编辑

装修标准这一块,保利世博天悦在整个黄浦江畔,乃至更是堪称全市都堪称没有对手!

且不提霍尼韦尔、当代、嘉格纳、威乃达、唯宝等一系列国际顶豪品牌,即便是在装修细节方面也能轻松拿捏竞品。

编辑

编辑

Part

02

一线滨江住宅,进阶更好的圈层!

保利世博天悦主力总价约2500-3000万,3000万以内甚至有机会选到看江房源!

与目前市面上绝大多数2500-3000万级项目,项目一线滨江的地段便已经赢在起跑线上了:

因为就算少量房源没有江景,但是社区就在江边啊,下楼就可以感受江景,同样的价格享受黄浦江核心段一线滨江的生活方式,散步、慢跑、滑板、骑行等等……

编辑

更重要的是,保利世博天悦还是为数不多可以双面瞰江的住宅,这也让项目的收藏价值大大提升。

Part

03

满级规划+全维度塔尖资源荟萃世博!

保利世博天悦位于浦东世博滨江板块,这里拥有两大满级“BUFF”叠加:世博滨江CAZ+世博-前滩城市主中心,未来期待值拉满!

中央活动区:“世博-前滩-徐汇滨江地区”

中央活动区作为上海未来发展的重要代表,将承担起全球城市核心功能的重要角色,成为城市形象的集中展示区域,为城市的发展注入新的活力和动力,堪称“市中心的中心”。

保利世博天悦不仅位于规划中的黄浦江核心段,而且地处与外滩、陆家嘴同能级的“世博-前滩-徐汇滨江地区”。

编辑

城市主中心:“世博-前滩城市主中心”

同时,保利世博天悦所在的世博滨江已经全面升级为城市主中心!

3月26日,浦东新区土地市场座谈会公布:至2035年,浦东还将新增“世博-前滩城市主中心”,新增张江、金桥、川沙3个城市副中心。

城市主中心,从字面意义上来看,规划能级与南京西路、人民广场、新天地、外滩、陆家嘴等传统核心区并驾齐驱,使世博滨江能级进一步升级,将成为具备全球影响力的世界级滨水区。

编辑

如果说地段能级决定保利世博天悦的下限;板块内难以复制的满级资源,才是项目真正的价值护城河,无一不是汇聚了上海文化生活的精髓。

曾经的万国博览的盛会为区域注入了世界文化汇聚的底色,如今的世博板块不仅包含文化、艺术、博览、国际体育等多元化中心,还受益于CAZ集聚总部经济的功能定位,发展成为央企总部、国际企业聚集区和浦东第二政务办公中心,目前已有26家央企的近80家公司集聚世博片区。

编辑

保利世博天悦距离浦东内环直线约670米,离陆家嘴直线距离约4.5公里。

周边路网极为发达,“两桥两隧四地铁”(南浦大桥、卢浦大桥、西藏南路及打浦路隧道、6、7、8、19号线),西侧比邻世博大道、东侧比邻雪野路。

项目距离19号线华丰路站仅约300多米,可链接陆家嘴、北外滩等上海其他地标方向,便捷通勤处处快人一步。

编辑

作为上海唯一具备沿江演艺带集聚的地区,保利世博天悦项目周边坐拥13座世界顶级大型文化场馆,展演空间体量超过6万坐席。包括:梅德塞斯奔驰文化展示中心、BMW汽车文化体验中心、中华艺术宫、上海世博展览馆、上海大歌剧院、世博大舞台、万国体育中心、世界花卉园、温室花园以及中国首座国际顶级赛事标准的永久性马术赛场馆——国际马术中心等生态功能场馆等高能级文化场馆串珠成链。

编辑

据统计,世博地区每年承办的大型文体活动场次超过700场,占据浦东总活动数量的40%,占据全上海总活动数量的18%,每年吸引客流超千万人次!

编辑

值得一提的是,世博对岸的徐汇滨江将集中建设20多座艺术美术馆,与世博滨江隔江相望。

更重要的是,上海市正积极筹划建设首条跨江缆车,该缆车将横跨黄浦江,连接徐汇西岸与世博滨江板块,从而打造一条世界级的顶奢艺术带,展现黄浦江畔的独特魅力与艺术风采。

编辑

目前,世博片区已集聚了新开发银行(NDB)、世界核电运营者协会(英国)上海代表处(WANO)、法国国际商会上海代表处(ICC)等16家国际经济组织,主要集中在经贸规则、资源配置、国际仲裁三大领域,占浦东国际经济组织总数50%以上,为浦东提升国际形象和影响力、增强城市软实力等方面发挥了积极作用。

编辑

保利世博天悦南侧占据上海中心城区唯一一个“有山有水”的宝地:世博文化公园。

世博文化公园占地200公顷,已经是上海中心城区最大的城市公园。

从距离来看,项目直线距离世博文化公园仅约1.5公里,可直接俯瞰整个公园。

从规模来看,世博文化公园的占地面积是伦敦海德皇家花园的1.25倍,是世纪公园的1.42倍,是大宁公园的2.94倍!

编辑

更重要的是,世博文化公园还拥有上海中心城区内唯一“山景”。

公园内最大标志性景观“双子山”,由两座高度不等的山体组成,最高峰约48米,也是国内第一座高度超过40米的空腔人工仿自然山林。

编辑

编辑

黄浦江核心段 CAZ中央活动区

世博滨江 江景豪宅

「保利世博天悦」建面约174~251㎡ 3-5房

&建面约500㎡隐藏房源

总价约2300-1亿+

实景准现房

目前“样板间”已开放

售楼处官方预约电话:400-829-7773☎☎☎如有问题可来电咨询,预约销售专员,一对一为您服务!

编辑

返回搜狐,查看更多

全部

相关资讯

报名成功
稍后会有专业的置业顾问联系您
返回楼盘

频道导航

返回首页

看房小程序

APP下载

电话拨通后,请您手动拨打分机号

确定拨打电话

电话号码:

分机号:(可能需要拨分机号)