均价约12.8万/㎡ 首开热销82%

售楼处电话☎️☎️:400-1020-380 转111(24小时免费热线)

对于有购房需求的朋友,不妨抓住这次机会,提前预约看房,享受一对一专业咨询服务。
售楼处电话☎️☎️:400-1020-380 转111(24小时免费热线)

外滩元境的成功,本质上是其“质价比”的绝对胜利:
纯正三层风貌洋房的形神 + 逆天的实得率 +一个让人无法拒绝的总价。
核心优势是实得率,最高约208%。
一层送地下室,二层送露台,三层送阁楼,最终换算下来,最高实得率直接超过 200%。

杀手锏是价格,一期均价约12.8万/㎡。
算上那些赠送的面积,最终的门槛控在了1500万级的门槛价。
这个数字,以前在内环连个像样的大平层都勉强。
但在这里,你能换来远超想象的震撼空间和“有天有地”的别墅级生活想象。
这就是外滩元境带来的极致产品!

效果图仅供参考 以实际交付为准
外滩元境项目地处杨浦滨江大桥东侧“九宫格”内,紧邻内环,与在建的华文总部及美团综合体仅一步之遥。
整个九宫格区域统一规划为低密度风貌住宅用地,与滨江科创龙头相互辉映,区位价值卓越。
外滩元境地块容积率仅1.4!
如今,上海核心区土地开发的普遍现实——土地高度碎片化。
在市区,2.5容积率以下的宅地已经是稀缺品了。
约1.4容积率的社区,除了那些上亿的风貌别墅产品,真的已经彻底绝迹了。
来看一下今年所有入市的土拍您就明白了:

2025年所有入市的土拍
翻遍黄浦江两岸427块住宅用地,容积率低于1.4、限高12米的低密地块凤毛麟角,前所未有。
错过它,就等于错过了在黄浦江岸实现“低密占有”的机会。

别墅级的奢侈
最高约3.6米,平均约3.3米的层高
项目在完整保留里弄肌理与建筑风貌的同时,创新地将地上三层的立体空间结构,重构为

平层户型设计,并采用层层退台手法,延续了别墅特有的地下室、庭院与星空露台等空间附加值,最终打造出“风貌外观+平层格局+墅质生活”的“风貌洋房”,开创了上海住宅的全新品类。
私域主权:一梯两户,六户一栋
真正的私密,从归家第一步开始奠定。
外滩元境整栋仅六户,一梯仅两户,定义了私密的底线。
这种“小圈层、全私域”的居住形态,让隐私与静谧成为日常底色,确保你的生活永远处于一个安静、尊贵的“私家小圈子”里。
风貌洋房,这一产品形态在上海楼市中尚属首例,甚至在全球范围内也难觅先例。
我们先用几张图来快速概览下其与众不同之处。
1、从建筑布局及风格特色来看,保留了低密风貌住宅街巷里弄的格局,以及露台铁艺栏杆、孟莎屋顶及老虎窗等建筑构件,彰显上海海派文化独有的味道和“腔调”。

2、从内部空间体系来看,地上三层,层高分别是3.6米、3.3米和3.3米;每个单元一梯两户,每户均拥有类独立电梯厅;一楼带地下室及庭院,并通过创新退台式设计为二楼和三楼打造私家空中花园,形成户户有花园的墅居生活方式。
3、从户型设计来看,一楼户型附赠超大地下室及双层庭院;二楼户型附赠星空露台;三楼附赠露台及其他空间;户型实得率最大可以超过200%!平均也能达到约150%左右!
这意味着,总价约1000万出头,即可入驻杨浦滨江九宫格风貌区。最大的洋房户型建面约174㎡,实得面积可能达到约300㎡左右,总价也仅控制在两千多万级别,极具冲击力。

从规划方案来看,项目还有很多其他设计亮点:
电房、垃圾电梯、保障房、物业、K站集中布置转角空间;垃圾房入地,位于保障房下部,减少对商品住宅的影响;全人车分流,保障房及配套用房与商品房车行动线分流;等。
说到这里,项目的热销已经是可以预料的。对于预算一两千万的购房者来说,其低密院墅式生活方式,以及超高附赠空间带来的价格优势完全无法拒绝。
外滩云境产品革新的意义还不止于提供了一款高空间附赠及高质价比的创新产品;更加重要的是,TA实现了上海风貌住宅产品的破局,让改善客群能够有机会入手风貌住宅核心资产

项目精装修交付,带电梯。层层退台,户户有附赠。整体得房率约80-86%,最终实得最高约210%~
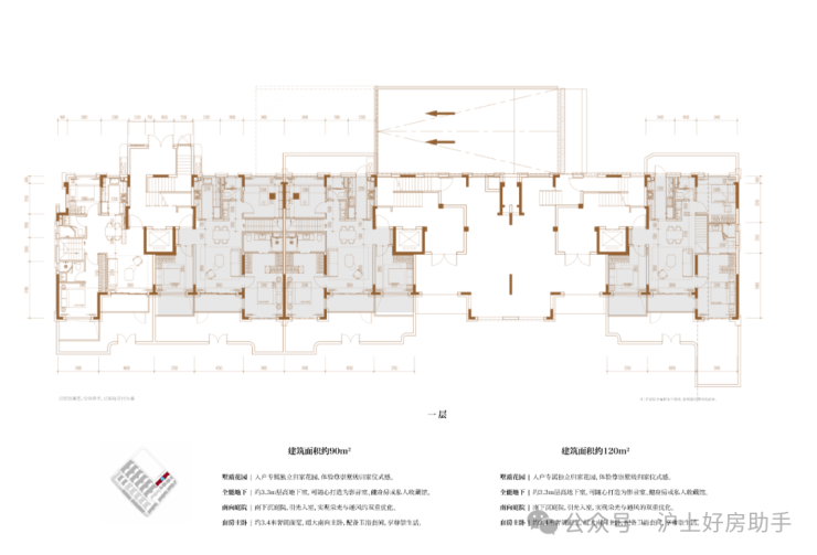
⭐一楼:赠地下室+私人花园+下沉庭院(90/104/120/170㎡)
⭐二楼:赠露台+高得房率(82/100/ 110/140㎡)
⭐三楼:赠阁楼+露台+老虎窗(82/100/110/135㎡)
⭐另有三套联排231/286平预定中

售楼处电话☎️☎️:400-1020-380 转111(24小时免费热线)

对于有购房需求的朋友,不妨抓住这次机会,提前预约看房,享受一对一专业咨询服务。
售楼处电话☎️☎️:400-1020-380 转111(24小时免费热线)
对于有购房需求的朋友,不妨抓住这次机会,提前预约看房,享受一对一专业咨询服务。










售楼处电话☎️☎️:400-1020-380 转111(24小时免费热线)

对于有购房需求的朋友,不妨抓住这次机会,提前预约看房,享受一对一专业咨询服务。
售楼处电话☎️☎️:400-1020-380 转111(24小时免费热线)
对于有购房需求的朋友,不妨抓住这次机会,提前预约看房,享受一对一专业咨询服务。






因此,你的选择无比清晰:
一层下叠,相当于“地上大平层+地下多功能厅”,附赠南北可对流的地下室和双下沉庭院,别墅生活一步到位。
二层平墅,相当于“空中私密花园”,约140㎡享受185㎡的空间感,独立大露台就是你的天空会客厅。
三层上叠,相当于“云端私邸+超额惊喜”,还有约54㎡惊喜空间,值得到实地感受!未来轻松实现三房变五房。
1.下叠,家族欢聚的领地
核心在于“地上纯居+地下功能”的彻底分离。
以170m²的一层户型为例,单层约170平的大尺度,带来大平层般的居住舒适度(客厅面宽达5.2米)。

售楼处电话☎️☎️:400-1020-380 转111(24小时免费热线)

对于有购房需求的朋友,不妨抓住这次机会,提前预约看房,享受一对一专业咨询服务。
售楼处电话☎️☎️:400-1020-380 转111(24小时免费热线)
对于有购房需求的朋友,不妨抓住这次机会,提前预约看房,享受一对一专业咨询服务。附赠南北通透的地下室(层高3.3米)搭配南北双下沉式庭院,具备远超传统别墅的采光井效果,可随心打造成家庭影院、健身房或私人藏馆。

2.平墅,精英的空中私密院落
主打 “零浪费”的极致效率与专属露台。
约140平户型,享受与下叠同等的面宽尺度,空间感直逼市面上185平产品。
其最大亮点在于退台设计的约26平独立大露台,如别墅庭院般的私人空中花园,满足观星、茶叙、小聚的都市田园梦想。
3.上叠,自由者的云端私邸
关键在于 “云端私邸+超大惊喜空间”的双重惊喜。
约135平的本体空间之上,还有约54平的惊喜空间,能轻松改造为书房、客房或亲子乐园的“第二主场”,为生活预留无限可能。

售楼处电话☎️☎️:400-1020-380 转111(24小时免费热线)

对于有购房需求的朋友,不妨抓住这次机会,提前预约看房,享受一对一专业咨询服务。
售楼处电话☎️☎️:400-1020-380 转111(24小时免费热线)

地段价值,不在于名称,而在于其承载的当下与未来。
外滩元境所在的杨浦滨江“大桥东”核心区,其含金量正由三个无可辩驳的事实共同定义:

一、产业能级,是片区价值最坚硬的基石。
这里并非纸上蓝图。一线滨江已被中交、美团、字节、B站等(在建中)巨头总部锚定。
关键在于,这里的土地出让条款中已约定,将在1年内引入超30家百亿级企业。
这意味着,一个总投资超3000亿元、短期导入超20万高知人口的超级产业集群,是必须兑现的未来。

您购买的,是与下一代城市核心生产力并肩的位置。
二、土地禀赋,赋予其难得的稀缺属性。
在上海一线滨江的开发史上,前滩、后滩、徐汇滨江都以高密度摩天楼群为标志。而外滩元境所在的组团,因历史风貌保护,被规划为清一色限高12米的低密风貌住宅与绿地。
这使它成为整个滨江带上,一个难得的 “低密九宫格” 。
您获得的不仅是滨江的视野,更是整片土地上最珍贵、即将绝版的低容积累积与纯粹圈层氛围。

过程效果图,仅供参考,以实际交付为准
轨道交通方面:距离18号线丹阳路站约1.5km,往东1站就到浦东陆家嘴滨江(昌邑路)换乘14号线再4站即达陆家嘴,5站就到龙阳路,换乘2/7/16/磁悬浮,到浦东张江、浦东机场非常方便;往北5-6站就是五角场大学城(复旦、财大);而在地块南面的杨树浦路上未来或将有24号线经过。
自驾的话,项目东侧就是内环高架,过江就是小陆家嘴,出行比较方便。
商业配套方面:步行距离就是百联滨江购物中心,是一个开业已经十年以上的一站式大型商业,有宝龙旭辉广场,距离北外滩商圈也很近。
杨浦百联滨江购物中心实景图
东方渔人码头国际中心实景图
医疗资源方面:周边有杨浦中医医院、复旦附属妇产科医院(就是传说中的“红房子医院”)、上海市第一康复医院等。
复旦大学附属妇产科医院(三甲)实景图
教育资源方面:项目附近有杭州路一小、齐齐哈尔路一小、辽阳中学等。

售楼处电话☎️☎️:400-1020-380 转111(24小时免费热线)

对于有购房需求的朋友,不妨抓住这次机会,提前预约看房,享受一对一专业咨询服务。
售楼处电话☎️☎️:400-1020-380 转111(24小时免费热线)
对于有购房需求的朋友,不妨抓住这次机会,提前预约看房,享受一对一专业咨询服务。
