中山越秀星汇云锦装修_250㎡别墅新古典风格

中山名雕

2017-05-11 17:16:44

购房群

买房如何避坑,加入购房群,看看他们怎么说

立即进群

  楼 盘:中山越秀星汇云锦

  面 积:250㎡

  案例户型:别墅

  装修风格:新古典风格

  装修预算:58万

  设计机构:中山名雕装饰兴中设计团队

  

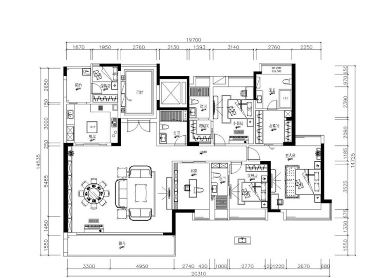
中山越秀星汇云锦装修平面图

  设计说明:本案例中以新古典风格为主体表达方式,截取古典欧式元素为背景,通过一些现代的材质和处理方式,营造出一种符合现代人对古典欧式的表达方式,新古典风格,让古典欧式气质更加接近和融入现代人的生活。

  

  电视壁两边采用香槟金摞花,金属质感加上浓重而细致的木质饰面,和客餐厅的新古典家私相得益彰。整个客餐厅在拥有中世纪欧式氛围中又不失现代气息的美感。

  

  门厅用了一些镜面的材料去延伸空间,在原有的空间程度上做进一步的延伸,让整个入门厅更加的端庄大气。

  

  主卧房在空间材质的处理上用的更细腻柔软些,绒布软包,绒面墙布,地毯。在配上整体空间的二次光源,让 整个主卧房显得更加温馨。

  

  书房空间的处理延续了客餐厅的整体风格,木饰面搭配香槟金的一个质感,地面实木地板的拼花让整个书房在细节上更加精致,做到简而不洁。

全部

相关资讯

报名成功
稍后会有专业的置业顾问联系您
返回楼盘

频道导航

返回首页

看房小程序

APP下载

电话拨通后,请您手动拨打分机号

确定拨打电话

电话号码:

分机号:(可能需要拨分机号)