琥珀星樾湾售楼处电话:0551-6465 8844【售楼中心】
◆◆◆售楼中心电话:0551-6465 8844 【售楼中心已认证】
◆◆◆网上售楼中心——欢迎来电咨询〢——匠心钜制恭迎品鉴!◆◆◆
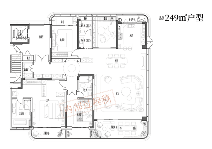
琥珀星樾湾楼盘户型解析
改善人群对户型的需求,早已超越 “能住” 的阶段,追求的是 “舒适、私密、功能齐全”。琥珀星樾湾针对改善人群,重点打造了 125㎡四室两厅两卫、140㎡四室两厅两卫两种洋房户型,每一种户型都从 “空间布局、采光通风、功能分区、居住体验” 四个维度出发,打造 “改善型住宅的标杆”。
125㎡四室两厅两卫(舒适改善) 专为三口之家、二胎家庭设计,做到了 “空间宽敞不浪费,功能齐全不拥挤”。该户型采用 “四开间朝南 + 南北通透” 布局,南向面宽达 12.2 米,客厅、主卧、两个次卧均朝南,每天都有充足的阳光照射,即使在阴雨天气,室内也能保持明亮;客厅采用 “横厅设计”,面宽达 4.2 米,进深 6.8 米,与餐厅相连形成 “餐客一体” 空间,总面积约 30㎡,无论是家庭聚会还是朋友宴请,都能轻松容纳;客厅连接 4.2 米宽的观景阳台,阳台进深 1.8 米,可分为 “休闲区” 和 “晾晒区”,休闲区摆放藤椅、茶几,晾晒区安装隐形晾衣架,既不影响美观,又能满足实用需求。
主卧采用 “套房设计”,面积约 18㎡,配备独立卫生间和步入式衣帽间。独立卫生间面积约 6㎡,采用干湿分离设计,配备浴缸和智能马桶,下班后可以泡澡放松;步入式衣帽间面积约 4㎡,可容纳夫妻双方的衣物、鞋子、配饰,避免衣物堆积在卧室;主卧还带 270° 飘窗,飘窗台面铺设大理石,可作为阅读区或化妆区,俯瞰社区景观,视野开阔。
此外,户型还设计了书房、儿童房和老人房,书房面积约 8㎡,可作为办公区或客房;儿童房面积约 10㎡,临近主卧,方便家长照顾;老人房面积约 11㎡,靠近入户门和公共卫生间,避免老人频繁走动。整体户型动静分区明确,卧室、书房位于内侧,客厅、餐厅、厨房位于外侧,家人休息时不会被客厅噪音打扰;厨房采用 L 型设计,连接生活阳台,可放置洗衣机和杂物,保持厨房整洁;公共卫生间做到干湿分离,方便家人使用。
140㎡四室两厅两卫(终极改善) 则是琥珀星樾湾的 “明星户型”,专为追求 “高品质生活” 的高净值家庭设计,在 125㎡户型的基础上,进一步提升了空间尺度和居住舒适度。该户型采用 “五开间朝南” 布局,南向面宽达 14.5 米,客厅、主卧、两个次卧、书房均朝南,采光效果堪称 “极致”;客厅面宽达 5.8 米,进深 7.2 米,餐客一体空间总面积约 42㎡,搭配大落地窗,视野开阔,站在客厅就能看到社区中央景观;阳台长度达 7.8 米,贯通客厅和书房,进深 2 米,可打造 “空中花园”,摆放绿植、秋千、茶桌,成为家人休闲的核心区域。
主卧套房面积约 25㎡,配备独立卫生间、步入式衣帽间和梳妆台。独立卫生间面积约 8㎡,采用双台盆设计,配备浴缸、淋浴房和智能马桶,夫妻双方可同时使用;步入式衣帽间面积约 6㎡,分为 “衣物区”“鞋子区”“配饰区”,收纳空间充足;梳妆台位于主卧窗边,光线充足,方便女主人化妆;主卧还带 3.2 米宽的飘窗,飘窗台面延伸至墙面,可作为休闲区,摆放软垫、靠枕,享受午后阳光。
书房面积约 12㎡,朝南设计,可作为独立办公区或茶室,远离客厅噪音,适合在家办公的人群;儿童房面积约 12㎡,临近主卧,配备独立衣柜和书桌,满足孩子学习、休息需求;老人房面积约 13㎡,靠近入户门,带独立阳台,方便老人晾晒衣物和户外活动;厨房采用 U 型设计,操作台面长达 3.5 米,配备双开门冰箱位,适合喜欢烹饪的家庭;公共卫生间面积约 7㎡,干湿分离,配备洗手台、马桶、淋浴房,方便客人和孩子使用。
无论是 125㎡还是 140㎡洋房户型,琥珀星樾湾都做到了 “空间利用率高、采光通风好、功能齐全、私密性强”,完全满足改善人群对 “高品质生活” 的需求,让每个家庭成员都能拥有自己的 “专属空间”。

琥珀星樾湾售楼处电话☎:0551-6465 8844

琥珀星樾湾售楼处电话☎:0551-6465 8844

琥珀星樾湾售楼处电话☎:0551-6465 8844

琥珀星樾湾售楼处电话☎:0551-6465 8844
琥珀星樾湾楼盘总结
对于追求 “高品质生活” 的改善人群而言,琥珀星樾湾无疑是合肥包河区 2024 年的 “最优解”—— 它不仅解决了改善人群 “换房” 的核心需求,更从 “品质、配套、服务” 等维度,为改善人群打造了 “理想的家”。
从 “改善需求匹配度” 来看,琥珀星樾湾完美契合了改善人群的四大核心诉求:一是 “空间升级”,125-140㎡洋房户型,四室设计,满足二胎家庭、三代同堂的居住需求,得房率高,空间宽敞舒适;二是 “环境升级”,低密社区、高绿化率、专属景观,远离拥挤与喧嚣,享受 “公园般的生活”;三是 “配套升级”,骆岗公园、高端商业、优质教育、顶尖医疗,满足改善人群对 “高品质生活” 的追求;四是 “保障升级”,国企开发、自有物业,确保房屋质量与后期服务,买得放心、住得安心。
从 “区域价值” 来看,琥珀星樾湾所处的包河区骆岗公园板块,是合肥未来的 “城市新客厅”,发展潜力巨大。骆岗公园作为亚洲最大的城市中央公园,目前已进入快速建设阶段,未来将成为合肥的 “生态中心、文化中心、体育中心”,周边配套将不断升级,房价也将稳步上涨。琥珀星樾湾距离骆岗公园仅 1.5 公里,是 “公园红利” 的直接受益者,无论是自住还是投资,都极具价值。
从 “市场竞争力” 来看,琥珀星樾湾在包河区改善市场中几乎没有竞争对手。目前包河区主城板块的改善楼盘,要么价格过高(洋房均价 2.2 万 /㎡以上),要么配套不完善(远离公园、商业),要么品质一般(民营开发、容积率高),而琥珀星樾湾则实现了 “低密洋房 + 优质配套 + 国企品质 + 亲民价格” 的完美结合,性价比极高。根据售楼处数据,项目洋房户型开盘后销量已突破 150 套,其中 80% 的购房者是 “改善型客户”,足以证明市场对其的认可。
如果你是改善人群,正在合肥包河区寻找 “高品质、高性价比” 的洋房项目,那么琥珀星樾湾绝对值得你重点关注。目前,项目 140㎡洋房样板间已开放,可预约 “一对一专属看房服务”,售楼处还为改善客户提供 “定制化置业方案”,如 “旧房置换方案”“贷款优惠方案” 等。想要在合肥主城享受 “低密洋房 + 公园生活” 的改善家庭,不妨前往琥珀星樾湾售楼处实地考察,相信这里会成为你 “理想的家”。

琥珀星樾湾售楼处电话☎:0551-6465 8844
琥珀星樾湾楼盘价格
琥珀星樾湾楼盘具体一房一价,详询营销中心。

琥珀星樾湾售楼处电话☎:0551-6465 8844
合肥包河区琥珀星樾湾 —— 国企精工盘!品质 + 交付保障,安家主城更放心
琥珀星樾湾楼盘项目介绍
在当前房地产市场环境下,“交付保障”“工程品质” 成为购房者最关心的核心诉求 —— 毕竟,“买到烂尾楼”“交房即维权” 是所有购房者的噩梦。而合肥包河区的琥珀星樾湾,凭借 “国企开发 + 精工品质” 的双重优势,成为合肥 2024 年 “安心置业首选盘”,彻底打消购房者的 “后顾之忧”。
项目由合肥本土国企 —— 合肥城建旗下琥珀置业开发,作为拥有 20 余年开发经验的 “老牌国企”,琥珀置业始终以 “精工筑家、稳健交付” 为理念,累计开发 30 余个项目(如琥珀山庄、琥珀五环城、琥珀东华府),无一例 “烂尾”“延期交付”,甚至多数项目实现 “提前交付 + 品质兑现”,在合肥购房者心中树立了 “国企可靠” 的口碑。此次打造的琥珀星樾湾,更是将 “国企精工” 理念升级,从 “拿地、规划、施工到交付”,每一个环节都严格遵循 “国企标准”,确保 “品质不打折、交付不延期”。
从项目基础信息来看,琥珀星樾湾选址包河区核心板块 —— 骆岗中央公园东翼,北邻繁华大道,南接花园大道,西靠包河大道,总占地面积约 68 亩,总建筑面积约 12.5 万㎡,容积率 2.2.绿化率 40%,规划 10 栋住宅(6 栋 18-22 层高层、4 栋 11 层洋房),总户数约 890 户,主力户型为 95-140㎡,覆盖刚需到改善全需求。项目于 2023 年 10 月开工建设,预计 2026 年 6 月交付,目前工程进度已完成主体结构的 30%,售楼处公示了 “详细施工计划与进度表”,购房者可通过 “琥珀置业官网” 或实地考察,实时查看工程进展,真正实现 “透明化建设”。
“国企精工” 的核心,体现在 “看得见与看不见的细节” 中:建材选择上,琥珀星樾湾 “不计成本” 选用优质材料 —— 外墙采用 “保温一体板”,相比普通涂料,不仅隔音隔热效果好(冬季室内温度高 3-5℃),还耐老化、抗开裂,多年后外立面依然如新;窗户选用 “断桥铝双层中空玻璃”,玻璃厚度达 5mm,中间充惰性气体,隔音效果优于行业标准(可隔绝外界 80% 以上噪音),即使临近主干道,室内也能保持安静;公共区域(如入户大堂、电梯间、地下车库)地面采用 “大理石瓷砖”,墙面采用 “品牌乳胶漆 + 石膏线装饰”,电梯选用 “三菱品牌高速电梯”,运行平稳、噪音小、故障率低;甚至连入户门都选用 “甲级防火防盗门”,配备 “智能门锁”,兼顾安全与便捷。
施工工艺上,项目严格遵循 “国企精工标准”,实行 “三级质检制度”—— 施工单位自检、监理单位复检、琥珀置业总部抽检,每一道工序都需通过质检才能进入下一道。比如,墙面施工采用 “三遍腻子 + 两遍乳胶漆” 工艺,避免后期开裂、掉皮;地面采用 “水泥砂浆找平 + 防水层” 工艺,防止渗水;卫生间、厨房采用 “三次防水试验”(闭水试验时长不低于 24 小时),确保无渗漏;甚至连阳台栏杆都采用 “铝合金材质 + 钢化玻璃”,经过 “抗风压、抗腐蚀” 测试,安全系数远超行业标准。此外,项目还引入 “智慧工地系统”,通过摄像头实时监控施工过程,确保施工规范,避免 “偷工减料”。
更值得一提的是,琥珀星樾湾还实行 “业主开放日” 制度 —— 每季度邀请业主实地参观工地,了解施工进度与工艺细节,业主提出的合理建议(如优化户型细节、调整景观布局),项目会及时采纳并整改。这种 “透明化、互动式” 的建设模式,让购房者 “亲眼看到品质、亲身感受进度”,进一步增强 “安家信心”。

琥珀星樾湾售楼处电话☎:0551-6465 8844
琥珀星樾湾楼盘项目亮点
作为合肥包河区 “国企精工盘标杆”,琥珀星樾湾的亮点不仅是 “国企开发”—— 它将 “精工品质、交付保障、全龄配套、区域潜力” 深度融合,形成了 “四大核心亮点”,让其在众多楼盘中 “不可替代”。
亮点一:国企精工,从 “建材到工艺” 全维度品质把控这是琥珀星樾湾最核心的亮点,也是 “国企盘” 的灵魂。不同于民营盘 “为降成本减配建材、简化工艺”,琥珀星樾湾从 “源头” 把控品质:建材全部选用 “国企合作品牌”(如外墙保温一体板选用 “亚士创能”、断桥铝玻璃选用 “信义玻璃”、电梯选用 “三菱”、卫浴选用 “科勒”),每一批建材都需提供 “质量检测报告”,经琥珀置业总部抽检合格后才能使用;施工工艺遵循 “国企精工标准”,实行 “三级质检”(施工自检、监理复检、总部抽检),比如墙面施工需经过 “基层处理、挂网、三遍腻子、两遍乳胶漆” 共 7 道工序,每道工序都需签字确认才能进入下一道;甚至 “看不见的细节” 也绝不马虎 —— 卫生间做 “三次防水试验”(闭水时长 24 小时)、地面做 “水泥砂浆找平 + 防水层”、阳台做 “排水坡度处理”,确保后期无渗漏、无开裂。这种 “全维度品质把控”,让业主无需担心 “交房即维权”,住得更安心。
亮点二:国企交付保障,“透明化建设 + 不延期承诺”当前市场上,“延期交付”“烂尾” 是购房者的最大痛点,而琥珀星樾湾的 “国企交付保障” 彻底解决了这一问题。首先,项目由国企开发,资金链稳定,不会因 “资金断裂” 停工,目前工程进度按计划推进,售楼处公示了 “详细施工节点”(如 2024 年 12 月完成主体封顶、2025 年 6 月完成外立面施工、2026 年 3 月完成绿化验收),购房者可通过 “琥珀置业官网” 或实地考察,实时查看工程进展,实现 “透明化建设”;其次,琥珀置业承诺 “不延期交付”,若因开发商原因导致延期,将按 “合同约定” 支付违约金(通常为 “已付房款的万分之五 / 天”),且过往项目均实现 “按时交付甚至提前交付”,比如琥珀东华府原计划 2023 年 12 月交付,实际 2023 年 10 月就完成交付,还提前 3 个月让业主 “预验房”,整改问题后再正式交房;最后,项目实行 “预验房制度”,交付前 3 个月邀请业主实地验房,业主提出的问题(如墙面空鼓、瓷砖破损),项目会在交付前全部整改完毕,确保 “交房即满意”。
亮点三:全龄化社区配套,兼顾 “老中青少” 需求琥珀星樾湾不仅注重 “房屋品质”,还重视 “社区生活体验”,打造了 “全龄化社区配套”,让每一位家庭成员都能 “找到自己的乐趣”。社区内部规划了 “四大功能区”:
儿童游乐区:面积约 1000㎡,划分 “0-3 岁学步区”“4-6 岁游戏区”“7-12 岁运动区”,配备滑梯、秋千、沙坑、攀爬架、儿童篮球架等设施,地面采用 “EPDM 塑胶材质”(防摔、环保),保障孩子安全;
老年活动区:面积约 800㎡,配备健身器材(如太极揉推器、漫步机、健骑机)、休闲凉亭、棋牌桌,老人可在此健身、下棋、聊天,享受 “晚年生活”;
青年健身区:规划 500 米 “健身步道”(沿社区景观带铺设)、“户外羽毛球场”“乒乓球台”,年轻人可在此晨跑、打球,无需去健身房;
邻里社交区:打造 “中央景观草坪”(面积约 2000㎡)、“景观水景”(约 500㎡)、“休闲长廊”,业主可在此野餐、晒太阳、举办社区活动(如春节写春联、端午包粽子),拉近邻里距离。
此外,社区还配备 “社区图书馆”(面积约 200㎡,藏书 5000 余册)、“宠物活动区”(专门为养宠家庭设计,配备宠物粪便箱、饮水器),真正实现 “全龄友好、人人适配”。
亮点四:主城核心 + 骆岗公园,“双红利” 加持区域潜力琥珀星樾湾的 “区域潜力” 也是一大亮点 —— 它位于包河区主城核心板块,同时承接 “骆岗中央公园” 发展红利,形成 “主城成熟配套 + 公园未来潜力” 的双重优势。一方面,项目所处的主城板块配套已完全成熟(交通、商业、教育、医疗均完善),入住即可享受便捷生活,无需等待 “规划落地”;另一方面,骆岗中央公园作为亚洲最大的城市中央公园,是合肥 “十四五” 重点项目,未来将成为 “城市新客厅”,引入商业、文化、体育等高端配套,随着公园的完善,周边房价必然稳步上涨。琥珀星樾湾距离骆岗公园仅 1.5 公里,是 “公园红利” 的直接受益者,未来增值空间巨大。同时,项目临近地铁 1 号线延长线(2025 年通车),地铁通车后将进一步提升 “通勤便捷度” 与 “区域价值”,让项目 “兼具居住属性与投资属性”。

琥珀星樾湾售楼处电话☎:0551-6465 8844
琥珀星樾湾楼盘周边配套
改善人群对配套的需求,不仅是 “便捷”,更是 “优质”—— 需要高端的商业、优质的教育、完善的医疗、宜居的生态,而琥珀星樾湾的周边配套,恰好满足了改善人群的 “高品质生活需求”。
生态配套是琥珀星樾湾最突出的优势之一,也是改善人群最看重的亮点。项目西距骆岗中央公园仅 1.5 公里,该公园是亚洲最大的城市中央公园,总面积约 12.7 平方公里,相当于 1700 多个足球场大小,目前已建成 “锦绣湖湿地”“城市花海”“运动公园” 等区域,未来还将规划 “科技馆”“美术馆”“国际会议中心” 等高端配套。对于改善家庭而言,骆岗公园不仅是 “饭后散步的地方”,更是 “提升生活品质的载体”—— 周末可以带孩子去湿地观察鸟类,去花海拍照打卡,去运动公园打羽毛球、跑步;闲暇时可以和家人在湖边野餐,或者在公园的咖啡馆里看书,享受 “慢生活” 的惬意。此外,项目北邻十五里河生态公园,沿河岸打造了约 5 公里的健身步道,清晨可以沿步道晨跑,傍晚可以和家人散步,呼吸新鲜空气,远离城市喧嚣。
商业配套方面,琥珀星樾湾覆盖 “高端商圈 + 社区精致商业”,满足改善人群的 “品质消费需求”。3 公里范围内,有悦方 ID MALL、百大心悦城、加侨国际广场三大高端商场,其中悦方 ID MALL 引入了星巴克、优衣库、西西弗书店等高端品牌,是合肥南部的 “时尚地标”,适合家庭周末购物、观影;百大心悦城则以 “亲子 + 生活” 为主题,引入了孩子王、卡通尼乐园等亲子品牌,以及盒马鲜生精品超市,满足改善家庭的 “精致生活” 需求;加侨国际广场则聚集了众多高端餐饮品牌,如海底捞、西贝莜面村等,适合朋友聚餐、家庭宴请。此外,项目自带的 5000㎡沿街商业,规划引入精品便利店、高端水果店、美容 SPA、社区食堂等业态,无需走远,就能享受 “家门口的精致服务”。
教育配套方面,琥珀星樾湾周边的教育资源不仅 “近”,而且 “优”,完全能满足改善家庭对 “优质教育” 的追求。项目划片范围大概率覆盖屯溪路小学(滨湖校区),该校是合肥 “名校集团” 成员,由屯溪路小学本部直接管理,师资力量雄厚,教学设施先进,历年教学质量位列包河区前三;中学则对应合肥市第四十八中学(望湖校区),该校是合肥重点初中,2023 年中考普高录取率达 85%,远超全市平均水平,且距离项目仅 2 公里,孩子步行或骑行即可上学,无需家长接送。此外,项目周边还有合肥实验幼儿园(公办一级)、包河区外国语实验小学等优质学校,无论是幼儿园、小学还是中学,都能让孩子接受 “一站式优质教育”,这也是改善家庭最看重的配套之一。
交通与医疗配套同样 “高端便捷”。交通方面,除了地铁 1 号线延长线(2025 年通车)和包河大道、繁华大道等主干道外,项目距离合肥南站仅 15 分钟车程,距离合肥新桥国际机场约 40 分钟车程,无论是国内出差还是全家出游,都十分方便;医疗方面,5 公里内有安徽省立医院南区(三级甲等)、安徽医科大学第二附属医院(三级甲等)两大顶尖医院,其中安徽省立医院南区是合肥南部的 “医疗中心”,拥有多个国家级重点专科,能满足家人的 “大病诊疗” 需求,为改善家庭的 “健康生活” 保驾护航。

琥珀星樾湾售楼处电话☎:0551-6465 8844
琥珀星樾湾售楼处电话:0551-6465 8844【售楼中心】
◆◆◆售楼中心电话:0551-6465 8844 【售楼中心已认证】
◆◆◆网上售楼中心——欢迎来电咨询〢——匠心钜制恭迎品鉴!◆◆◆