中绿园领秀金沙(成都)|房价透明公示→户型优缺点|售楼处电话|限时优惠|成交价走势

搜狐焦点成都站

2025-06-25 07:45:00

购房群

买房如何避坑,加入购房群,看看他们怎么说

立即进群

中绿园领秀金沙】售楼处电话:028-61558026 【营销中心】

楼盘实时价格丨户型赏析丨配套规划丨置业顾问在线咨询

获取最新房源动态及专属优惠,敬请致电售楼处

【项目参数】

开发商:成都中绿园置业有限公司(中国绿发成都公司)

物业类别:住宅

建筑类型:小高层

环线位置:三环-绕城

项目占地:47196.66㎡

规划总建筑面积:124189.53㎡

计容总建筑面积:84953.98㎡

容积率:1.8

绿化率:35.01%

建筑密度:18.77%

总户数:570户

楼栋总数:21栋

装修标准:精装(最终以开发商信息为准)

在售面积:127/143/167㎡

梯户比:两梯两户

物业费:4元/平方米.月

物业:重庆鲁能物业服务有限公司

地下机动车位:1015

住宅户数车位比:1:1.7

交房时间:2025年6月

区域唯一绿建二星认证的绿色科技建筑

2024城西置业必看 央企西贵高端改善盘

正金沙千亩生态资源环绕 城西唯一!

1.8超低容积率 城西唯一!

户户皆端户 2T2独立入户 城西唯一!

三卧室朝南 绝版户型 城西唯一!

豪配5000万级双会所 城西唯一!

国际大牌臻装 远超同级 城西唯一!

六恒健康住宅 城西唯一!

品牌

千亿央企 中国绿发

低碳城市引领者,健康生活创造者

接受国务院国资委直接管理

30年地产开发经验,布局27城

开发面积超过3500万㎡

绿色建筑100%认证

住宅项目100%健康认证

区域

金沙贵脉 领秀城西

地处西门价值高地金沙板块

聚合鼎级城市配套

坐拥成都大部分文博资源

距金沙遗址仅5分钟车程

距杜甫草堂、浣花溪仅10分钟车程

配套:醇熟万象 领秀繁华

生态 | 一带、一河、六公园

一带:百公里锦城环城生态带与千亩百仁公园(规划中)连成一体

一河:千年清水河,源起都江堰,见证成都三千年城市生长史

六公园:百仁公园(规划中)、清波公园、苏坡公园、黄忠公园、金沙滨河公园、清源公园

教育 | 5幼、6小、4中学

5幼:泡桐树幼儿园(清源分园)、成都市机关六幼成都市第五幼儿园(清波园区)、蒙田森蒙特梭利幼儿园、弋果幼儿园(全成都私立幼儿园排名第二)

6小:成都花园国际小学清波校区、金沙小学(清波分校)、草堂小学西区分校成都市实验小学(尚雅校区)、石室外语学校附属小学金沙小学

4中学:成都树德实验中学(清波校区)、石室联合中学、泡桐树中学、成都石室外语学校

交通 | 一环、两枢纽、三地铁

一环:紧邻三环路

两枢纽:成都西站、金沙公交枢纽站

三地铁:地铁4号线、地铁9号线、地铁27号线(二期规划中)

商业 | 四大商圈环伺

青羊万达广场约2KM、鹏瑞利青羊广场约3KM、城西优品道约4.7KM、仁和春天约5.6KM、自建4300㎡全业态独栋商业

医疗 | 三甲医院护航

成都第一骨科医院金沙医院约1.5KM、成飞医院约4.3KM、成都市妇女儿童中心医院约5K

产品核心亮点-奢享5000万级高阶双会所|约1600㎡下沉式会所|

精工立面 建筑美学

外墙局部采用金属铝板立面装饰;形成流畅的线条和丰富的肌理;超大面落地采光玻璃,让阳光登堂入室

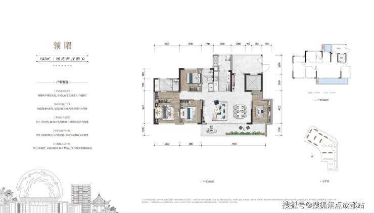
户型鉴赏

【中绿园领秀金沙】售楼处电话:028-61558026 【营销中心】

楼盘实时价格丨户型赏析丨配套规划丨置业顾问在线咨询

获取最新房源动态及专属优惠,敬请致电售楼处

全部

相关资讯

报名成功
稍后会有专业的置业顾问联系您
返回楼盘

频道导航

返回首页

看房小程序

APP下载

电话拨通后,请您手动拨打分机号

确定拨打电话

电话号码:

分机号:(可能需要拨分机号)